Maison à construire à Montverdun (42130)
Images
Description
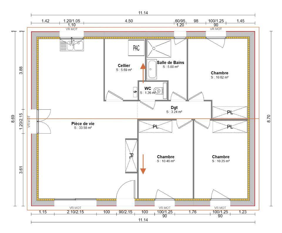
VENTE d'une maison T5 (80 m²) à Montverdun
IDÉALEMENT SITUÉE - MAISON 5 PIÈCES NEUVE
À vendre : nous vous proposons cette maison de 5 pièces de plain-pied de 80 m², idéalement située dans Montverdun (42130). Conçue de plain-pied, elle propose trois chambres, une cuisine et une salle de bains.
Le terrain du bien s'étend sur 850 m².
Cette maison est neuve.
La maison est située dans un secteur prisé. Il y a l'École Primaire Bourg à moins de 10 minutes à pied. Niveau transports en commun, on trouve la gare Boën-sur-Lignon à moins de 10 minutes en voiture. L'autoroute A72 est accessible à 10 km. Il y a une bibliothèque et une boulangerie à quelques minutes à peine.
Son prix de vente est de 210 000 €.
Prenez contact avec Philippe MONNIER ((Numéro supprimé)) pour plus de renseignements sur la maison ou sur les démarches à suivre. Maisons France Confort Andrézieux-Bouthéon est là pour vous accompagner à toutes les étapes de l'achat.
Annonce proposée par un Agent Commercial Partenaire.
Logement susceptibles de vous intéresser
Nous vous proposons de découvrir aussi cette sélection de logements situés à moins de 10km de Montverdun et qui seraient susceptibles de vous intéresser.
Sainte-Agathe-la-Bouteresse
TERRAINSainte Agathe la Bouteresse. 15 minutes de Montbrison. 10 minutes de l’autoroute de Feurs.Terrain constructible plat de 378 m2 environ, à 15 minutes de Montbrison, secteur calme.Viabilisé pour l’eau et l’assainissement, le reste est en bordure de parcelle.Les informations sur les risques auxquels ce bien est exposé sont disponibles sur le site GéorisquesSelon l’article L.561.5 du Code Monétaire et Financier, pour l’organisation de la visite, la présentation d’une pièce d’identité vous sera demandée.Prix : 32 200 euros Honoraires charge vendeurMandat réf : 430480- Le professionnel vous conseille et sécurise votre projet immobilier.Pour visiter et vous accompagner dans votre projet, contactez Morgan SERCY, au (Numéro supprimé) ou, par courriel à (Email supprimé).Selon l’article L.561.5 du Code Monétaire et Financier, pour l’organisation de la visite, la présentation d’une pièce d’identité vous sera demandée.Cette présente annonce a été rédigée sous la responsabilité éditoriale de Morgan SERCY agissant sous le statut d’agent commercial immatriculé au RSAC quimper 890 130 073 auprès de SAS PROPRIETES PRIVEES, au capital de 44 920 euros, ZAC LE CHÊNE FERRÉ – 44 ALLÉE DES CINQ CONTINENTS 44120 VERTOU; SIRET 487 624 777 00040, RCS Nantes. Carte Professionnelle Transactions sur immeubles et fonds de commerce (T) et Gestion immobilière (G) n°CPI 4401 2016 000 010 388 délivrée par la CCI Nantes – Saint Nazaire. Compte séquestre n(Numéro supprimé)67 BPA SAINT-SEBASTIEN-SUR-LOIRE (44230). Garantie GALIAN-SMABTP – 89 rue de la Boétie, 75008 Paris – n°28137 J pour 2 000 000 euros pour T et 120 000 euros pour G. Assurance responsabilité civile professionnelle par GALIAN-SMABTP n° de police 28137.JMandat réf : 430480. – Le professionnel garantit et sécurise votre projet immobilier. Morgan SERCY (EI) Agent Commercial – Numéro RSAC : quimper 890 130 073 – .
Champdieu
TERRAINVENTE : terrain de 1 832 m² à ChampdieuIDÉALEMENT SITUÉÀ Champdieu (42600) idéalement situé, projetez la maison de vos rêves sur ce terrain de 1 832 m² dont 735 m2 constructible. Il bénéficie d’une exposition sud-ouest. Dans un quartier convoité, le terrain est proche des écoles et des commerces. Il y a l’École Primaire Champdieu à moins de 10 minutes à pied. Côté transports en commun, on trouve la gare Montbrison à moins de 10 minutes en voiture. L’autoroute A72 est accessible à 12 km. Il y a un tennis, une bibliothèque, une boulangerie, une boucherie-charcuterie et une épicerie à proximité du bien.Son prix de vente est de 79 000 €. Prenez contact avec Philippe MONNIER ((Numéro supprimé)) pour obtenir de plus amples renseignements sur le terrain. Maisons France Confort Monistrol-sur-Loire vous accompagne dans toutes vos démarches et à toutes les étapes de votre projet.Annonce proposée par un Agent Commercial Partenaire.
Champdieu
TERRAIN ET MAISONVENTE : maison F4 (80 m²) à ChampdieuIDÉALEMENT SITUÉE – MAISON 4 PIÈCES NEUVEÀ vendre : nous vous proposons cette maison de 4 pièces de plain-pied de 80 m², idéalement située dans Champdieu (42600). Son intérieur comporte trois chambres, une cuisine et une salle de bains.Le terrain de cette maison est de 1 832 m².La maison est neuve.Cette maison est située dans un quartier attractif. Il y a l’École Primaire Champdieu à moins de 10 minutes à pied. Côté transports en commun, on trouve la gare Montbrison à moins de 10 minutes en voiture. L’autoroute A72 est accessible à 12 km. Il y a un tennis, une bibliothèque, une boulangerie, une épicerie et une boucherie-charcuterie à proximité de la maison.Elle est proposée à l’achat pour 246 000 €.Contactez Philippe MONNIER (tél : (Numéro supprimé)) pour tout renseignement sur le bien.Annonce proposée par un Agent Commercial Partenaire.
Champdieu
TERRAIN ET MAISONMaison T4 (90 m²) à vendre à ChampdieuIDÉALEMENT SITUÉE – MAISON 4 PIÈCES NEUVEVotre agence Maisons France Confort Andrézieux-Bouthéon est ravie de vous présenter cette maison de 4 pièces de plain-pied de 90 m² idéalement située dans Champdieu (42600).Son intérieur est composé de trois chambres, d’une cuisine et d’une salle de bains. Cette maison est neuve.Le terrain de la propriété est de 1 820 m².Cette maison se trouve dans un quartier attractif. Il y a l’École Primaire Champdieu à moins de 10 minutes à pied. Niveau transports, on trouve la gare Montbrison à moins de 10 minutes en voiture. Il y a un accès à l’autoroute A72 à 12 km. Il y a un tennis, une bibliothèque, une boulangerie, une boucherie-charcuterie et une épicerie dans les environs.Elle est proposée à l’achat pour 268 000 €.Contactez notre constructeur (Philippe MONNIER : (Numéro supprimé)) pour plus de renseignements sur le bien. Concrétisez vos projets immobiliers avec Maisons France Confort Andrézieux-Bouthéon.Annonce proposée par un Agent Commercial Partenaire.
Champdieu
TERRAIN ET MAISONChampdieu : maison T4 (84 m²) en venteIDÉALEMENT SITUÉE – MAISON 4 PIÈCES NEUVEEn vente : venez découvrir, idéalement située dans Champdieu (42600), cette maison de 4 pièces de plain-pied de 84 m² et de 1 832 m² de terrain.Conçue de plain-pied, elle est composée de trois chambres, d’une cuisine et de deux salles de bains. Cette maison est neuve.La maison se trouve dans un secteur attractif. Il y a l’École Primaire Champdieu à moins de 10 minutes à pied. Niveau transports, on trouve la gare Montbrison à moins de 10 minutes en voiture. L’autoroute A72 est accessible à 12 km. Il y a un tennis, une bibliothèque, une boulangerie, une boucherie-charcuterie et une épicerie à quelques minutes à peine.Elle est à vendre pour la somme de 244 000 €.Prenez contact avec notre agence (MONNIER Philippe : (Numéro supprimé)) pour tout renseignement sur la maison, sur les démarches à suivre ou sur les modalités de vente. Faites de vos projets immobiliers une réalité avec Maisons France Confort Monistrol-sur-Loire.Annonce proposée par un Agent Commercial Partenaire.
Champdieu
TERRAIN ET MAISONMaison T5 (100 m²) en vente à ChampdieuIDÉALEMENT SITUÉE – MAISON 5 PIÈCES NEUVEÀ vendre : Maisons France Confort Monistrol-sur-Loire vous propose, idéalement située dans Champdieu (42600), cette maison de 5 pièces de plain-pied de 100 m² et de 1 832 m² de terrain.Son intérieur comporte quatre chambres, une cuisine et deux salles de bains. La maison est neuve.Cette maison est située dans un secteur recherché. L’École Primaire Champdieu est implantée à moins de 10 minutes à pied. Côté transports en commun, il y a la gare Montbrison à moins de 10 minutes en voiture. L’autoroute A72 est accessible à 12 km. On trouve un tennis, une bibliothèque, une boulangerie, une épicerie et une boucherie-charcuterie à quelques minutes du bien.Elle est à vendre pour la somme de 270 000 €.Prenez contact avec notre agence (Philippe MONNIER : (Numéro supprimé)) pour toute information sur la maison, sur les démarches à suivre ou sur les modalités de vente. Concrétisez vos projets immobiliers avec Maisons France Confort Monistrol-sur-Loire.Annonce proposée par un Agent Commercial Partenaire.
Champdieu
TERRAIN ET MAISONVENTE : maison de 4 pièces (84 m²) à ChampdieuIDÉALEMENT SITUÉE – MAISON 4 PIÈCES NEUVEEn vente : idéalement située dans Champdieu (42600), nous sommes ravis de vous présenter cette maison de 4 pièces de plain-pied de 84 m² et de 1 820 m² de terrain.Conçue de plain-pied, elle est composée de trois chambres, d’une cuisine et de deux salles de bains. Cette maison est neuve.Cette maison est située dans un quartier convoité. L’École Primaire Champdieu est implantée à moins de 10 minutes à pied. Niveau transports, on trouve la gare Montbrison à moins de 10 minutes en voiture. L’autoroute A72 est accessible à 12 km. Il y a un tennis, une bibliothèque, une boulangerie, une épicerie et une boucherie-charcuterie à proximité du logement.Elle est proposée à l’achat pour 244 000 €.Contactez Philippe MONNIER (tél : (Numéro supprimé)) pour obtenir de plus amples renseignements sur la maison, sur les modalités de vente ou sur les démarches à suivre. Maisons France Confort Andrézieux-Bouthéon est là pour vous accompagner dans tous vos projets immobiliers.Annonce proposée par un Agent Commercial Partenaire.
Champdieu
TERRAIN ET MAISONVENTE d’une maison de 4 pièces (90 m²) à ChampdieuIDÉALEMENT SITUÉE – MAISON 4 PIÈCES NEUVEEn vente idéalement située dans Champdieu (42600), nous sommes ravis de vous proposer cette maison de 4 pièces de plain-pied de 90 m² et de 1 820 m² de terrain.Elle compte trois chambres, une cuisine et une salle de bains. La maison est neuve.La maison est située dans un quartier recherché. On trouve l’École Primaire Champdieu à moins de 10 minutes à pied. Côté transports en commun, il y a la gare Montbrison à moins de 10 minutes en voiture. Il y a un accès à l’autoroute A72 à 12 km. On trouve un tennis, une bibliothèque, une boulangerie, une boucherie-charcuterie et une épicerie à proximité du bien.Elle est proposée à l’achat pour 250 000 €.Prenez contact avec Philippe MONNIER (tél : (Numéro supprimé)) pour tout renseignement sur la maison ou sur les démarches à suivre.Annonce proposée par un Agent Commercial Partenaire.
Champdieu
TERRAIN ET MAISONVENTE : maison de 4 pièces (90 m²) à ChampdieuIDÉALEMENT SITUÉE – MAISON 4 PIÈCES NEUVENous sommes ravis de vous proposer cette maison de 4 pièces de plain-pied de 90 m² à vendre, idéalement située dans Champdieu (42600).Elle comporte trois chambres, une cuisine et une salle de bains. Cette maison est neuve.Le terrain du bien est de 1 832 m².La maison se trouve dans un secteur attractif. Il y a l’École Primaire Champdieu à moins de 10 minutes à pied. Niveau transports, on trouve la gare Montbrison à moins de 10 minutes en voiture. L’autoroute A72 est accessible à 12 km. Il y a un tennis, une bibliothèque, une boulangerie, une boucherie-charcuterie et une épicerie dans les environs.Elle est à vendre pour la somme de 268 000 €.N’hésitez pas à prendre contact avec notre agence (Philippe MONNIER : (Numéro supprimé)) pour obtenir de plus amples informations sur la maison. Maisons France Confort Monistrol-sur-Loire vous accompagne à toutes les étapes de votre projet et dans tous vos projets immobiliers.Annonce proposée par un Agent Commercial Partenaire.
L’actualité immobilière à Montverdun
27/11/2023
02/11/2023
30/10/2023
20/10/2023
16/10/2023
16/10/2023