Images
Description
Sur ce terrain, nous vous proposons cette maison neuve : la Blainium, une maison résolument moderne et très singulière.
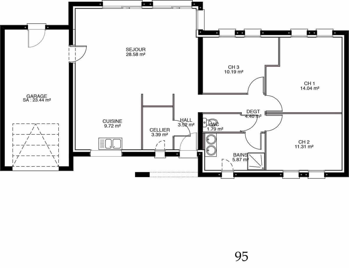
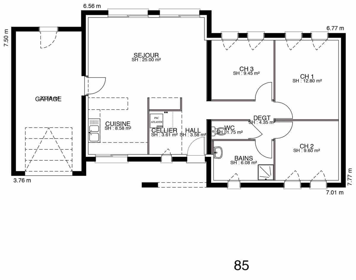
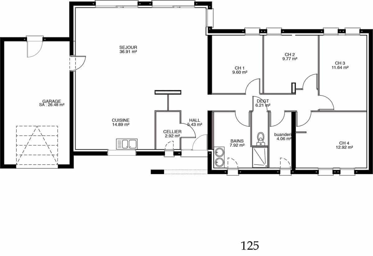
La Blainium, une maison de plain-pied contemporaine, propose une façade très stylée et originale avec ses jeux de toiture et de façades. Par ailleurs, ses grandes fenêtres laissent entrer généreusement la lumière extérieure. Cette demeure est disponible en plusieurs variantes, dans des dimensions allant de 85 à 125 m². En configuration 3 ou 4 chambres, avec ou sans bureau, dressing, salle d'eau privative, notre seule limite c'est votre imagination.
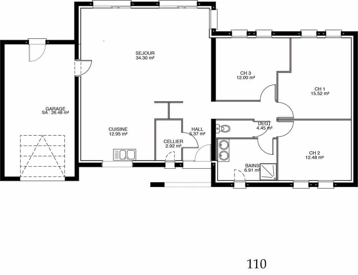
Avec une surface de 110 m², cette maison dispose de 3 chambres et de 4 pièces. En partie jour, vous disposerez d’un hall d'entrée qui donne sur un vaste séjour, une cuisine ouverte qui se prête à accueillir un grand îlot central, et un cellier. Le garage pratique d'accès est accolé. Parmi les caractéristiques principales, vous trouverez un toit plat, un garage accolé, un dressing et une suite parentale.
Les options les plus demandées par nos clients sont également disponibles : menuiseries en aluminium, enduit bi-ton, plancher chauffant et double garage.
Cette maison neuve est basse consommation et conforme à la RE2020, vous garantissant ainsi une habitation éco-responsable et économique.
Maisons Privat, constructeur centenaire avec les meilleurs avis clients de la région, vous permet de vivre votre rêve dans une maison unique. Posséder une maison neuve exceptionnelle n'a jamais été aussi accessible.
La Blainium permet de vivre son rêve dans une maison unique. Cette habitation vous permettra de réaliser votre rêve : posséder une maison neuve exceptionnelle.
Logement susceptibles de vous intéresser
Nous vous proposons de découvrir aussi cette sélection de logements situés à moins de 10km de Basse-Goulaine et qui seraient susceptibles de vous intéresser.
Vertou
TERRAINFiche N°Id-TCT177471 : VERTOU Fiche BC177471 : Vertou, secteur Les pegers, Terrain d’environ 1250 m2 – – Equipements annexes : – chauffage : Aucun – Plus d’informations disponibles sur demande… – Mentions légales : Proposé à la vente à 162000 Euros (Dont 8% TTC d’honoraires à la charge de l’acquéreur, soit un prix hors honoraires de 150000 Euros) – Affaire suivie par Mr Mickael CLEMENCEAU (Agent commercial independant) – Reseau Immo-Diffusion Vertou – Pour plus d’informations, contactez notre secrétariat au (Numéro supprimé) (Appel gratuit ou prix d’une communication locale)
Rezé
TERRAINRezé : terrain de 470 m² à vendreEMPLACEMENT PRIVILÉGIÉ – VUE SANS VIS-À-VISÀ 21 km de l’océan Atlantique à Rezé (44400), terrain de 470 m². Réalisez-y votre résidence principale ou secondaire. Il profite d’une vue sans vis-à-vis en bord de sevre et est orienté au sud-est. Dans un secteur recherché, ce terrain bénéficiant d’un emplacement d’exception est proche des écoles et des commerces. Il y a plusieurs écoles (maternelle, élémentaire et collège) à moins de 10 minutes à pied, tout comme trois crèches. Niveau transports en commun, on trouve neuf gares à moins de 10 minutes en voiture. L’autoroute A83 et les nationales N844, N249 et N444 sont accessibles à moins de 9 km. Il y a une bibliothèque, des commerces, des boulangeries, un supermarché, un bureau de poste et deux épiceries à quelques minutes de la propriété.Il est proposé à l’achat pour 150 000 €. N’hésitez pas à prendre contact avec Franck DUJARDIN ((Numéro supprimé)) pour toute question sur ce terrain.
Saint-Sébastien-sur-Loire
TERRAINVENTE : terrain de 420 m² à Saint-Sébastien-sur-LoireEMPLACEMENT PRIVILÉGIÉÀ Saint-Sébastien-sur-Loire (44230) à 26 km de l’océan Atlantique, donnez vie à votre projet immobilier sur ce terrain de 420 m². Il bénéficie d’une exposition sud-ouest. Dans un quartier attractif, ce terrain bénéficiant d’un emplacement d’exception est proche des commerces et des écoles. Le Collège René Bernier, l’École Maternelle Publique Centre et l’École Élémentaire Publique Théodore Monod sont implantés à moins de 10 minutes à pied, tout comme trois crèches. Côté transports en commun, on trouve 11 gares à moins de 10 minutes en voiture. Des autoroutes et les nationales N844 et N249 sont accessibles à moins de 10 km. Il y a une bibliothèque, un tennis, des commerces, des boulangeries, un supermarché, un bureau de poste et une poissonnerie dans les environs. Enfin, le marché Place Cambronne a lieu tous les mardis matin.Ce terrain est proposé à l’achat pour 230 000 €. N’hésitez pas à prendre contact avec Franck DUJARDIN ((Numéro supprimé)) pour tout renseignement sur le terrain. Maisons Tradilignes Saint-Sébastien-sur-Loire vous accompagne à toutes les étapes de l’achat et dans tous vos projets immobiliers.
Rezé
TERRAIN ET MAISONRezé : maison de 6 pièces (187 m²) en venteEMPLACEMENT PRIVILÉGIÉ – MAISON 6 PIÈCES NEUVEÀ 21 km de l’océan Atlantique, notre agence Maisons Tradilignes Saint-Sébastien-sur-Loire est ravie de vous présenter cette maison de 6 pièces de plain-pied de 187 m² et de 470 m² de terrain bénéficiant d’un emplacement privilégié dans Rezé (44400).Elle est composée de cinq chambres, d’une cuisine et de deux salles de bains. Cette maison est neuve.La maison se trouve dans un secteur recherché. Plusieurs établissements scolaires (maternelle, élémentaire et collège) sont implantés à moins de 10 minutes à pied, tout comme trois crèches. Niveau transports en commun, on trouve neuf gares à moins de 10 minutes en voiture. L’autoroute A83 et les nationales N844, N249 et N444 sont accessibles à moins de 9 km. Il y a une bibliothèque, des commerces, des boulangeries, un supermarché, deux épiceries et un bureau de poste à quelques minutes.Son prix de vente est de 685 000 €.Contactez Franck DUJARDIN ((Numéro supprimé)) pour toute question sur la maison, sur les modalités de vente ou sur les démarches à suivre. Faites de vos projets immobiliers une réalité avec Maisons Tradilignes Saint-Sébastien-sur-Loire.
Rezé
TERRAIN ET MAISONMaison T5 (144 m²) à vendre à RezéEMPLACEMENT PRIVILÉGIÉ – MAISON 5 PIÈCES NEUVEÀ 21 km de l’océan Atlantique, nous vous présentons cette maison de 5 pièces de 144 m² et de 470 m² de terrain bénéficiant d’un emplacement d’exception dans Rezé (44400). Elle comporte quatre chambres, une cuisine et deux salles de bains.Cette maison possède 2 niveaux. Elle est neuve.Le bien se trouve dans un secteur convoité. Plusieurs établissements scolaires (maternelle, élémentaire et collège) sont implantés à moins de 10 minutes à pied, tout comme trois structures d’accueil pour la petite enfance. Niveau transports en commun, on trouve neuf gares à moins de 10 minutes en voiture. L’autoroute A83 et les nationales N844, N249 et N444 sont accessibles à moins de 9 km. Il y a une bibliothèque, des commerces, des boulangeries, un supermarché, un bureau de poste et deux épiceries dans les environs.Il est à vendre pour la somme de 507 000 €.Contactez Franck DUJARDIN (tél : (Numéro supprimé)) pour plus de renseignements sur la maison. Donnez vie à vos projets immobiliers avec Maisons Tradilignes Saint-Sébastien-sur-Loire.
Rezé
TERRAIN ET MAISONRezé : maison de 4 pièces (139 m²) à vendreEMPLACEMENT PRIVILÉGIÉ – MAISON 4 PIÈCES NEUVEÀ vendre : à 21 km de l’océan Atlantique, bénéficiant d’un emplacement d’exception dans Rezé (44400), Maisons Tradilignes Saint-Sébastien-sur-Loire vous propose cette maison de 4 pièces de 139 m².Cette maison compte 2 niveaux. Elle compte trois chambres, une cuisine et deux salles de bains. La maison est neuve.Le terrain du bien est de 470 m².Cette maison se situe dans un secteur prisé. Plusieurs établissements scolaires (maternelle, élémentaire et collège) sont implantés à moins de 10 minutes à pied, tout comme trois crèches. Niveau transports, il y a neuf gares à moins de 10 minutes en voiture. L’autoroute A83 et les nationales N844, N249 et N444 sont accessibles à moins de 9 km. On trouve une bibliothèque, des commerces, des boulangeries, un supermarché, un bureau de poste et deux épiceries à quelques minutes de la maison.Elle est proposée à l’achat pour 485 000 €.Prenez contact avec notre agence (Franck DUJARDIN : (Numéro supprimé)) pour toute question sur la maison, sur les démarches à suivre et sur les modalités de vente. Maisons Tradilignes Saint-Sébastien-sur-Loire est là pour vous accompagner dans tous vos projets immobiliers.
Rezé
TERRAIN ET MAISONRezé : maison de 4 pièces (95 m²) en venteEMPLACEMENT PRIVILÉGIÉ – MAISON 4 PIÈCES NEUVEÀ 21 km de l’océan Atlantique, à vendre bénéficiant d’un emplacement d’exception dans Rezé (44400), nous sommes heureux de vous proposer cette maison de 4 pièces de plain-pied de 95 m². Conçue de plain-pied, elle propose deux chambres, une cuisine et une salle de bains.Le terrain de la propriété s’étend sur 470 m².Cette maison est neuve.La maison est située dans un quartier recherché. On trouve plusieurs écoles (maternelle, élémentaire et collège) à moins de 10 minutes à pied, tout comme trois crèches. Côté transports en commun, il y a neuf gares à moins de 10 minutes en voiture. L’autoroute A83 et les nationales N844, N249 et N444 sont accessibles à moins de 9 km. On trouve une bibliothèque, des commerces, des boulangeries, un supermarché, deux épiceries et un bureau de poste dans les environs.Elle est proposée à l’achat pour 395 000 €.Prenez contact avec Franck DUJARDIN ((Numéro supprimé)) pour obtenir de plus amples informations sur le bien ou sur les démarches à suivre. Maisons Tradilignes Saint-Sébastien-sur-Loire vous accompagne à toutes les étapes de votre projet et dans tous vos projets immobiliers.
Rezé
TERRAIN ET MAISONVENTE : maison T3 (113 m²) à RezéEMPLACEMENT PRIVILÉGIÉ – MAISON 3 PIÈCES NEUVEEn vente à 21 km de la côte atlantique, notre agence Maisons Tradilignes Saint-Sébastien-sur-Loire est ravie de vous présenter cette maison de 3 pièces de plain-pied de 113 m² et de 470 m² de terrain, bénéficiant d’un emplacement d’exception dans Rezé (44400).Elle offre trois chambres, une cuisine et une salle de bains. La maison est neuve.Cette maison se situe dans un quartier convoité. Plusieurs écoles (maternelle, élémentaire et collège) sont implantées à moins de 10 minutes à pied, tout comme trois structures d’accueil pour les tout-petits. Niveau transports en commun, on trouve neuf gares à moins de 10 minutes en voiture. L’autoroute A83 et les nationales N844, N249 et N444 sont accessibles à moins de 9 km. Il y a une bibliothèque, des commerces, des boulangeries, un supermarché, un bureau de poste et deux épiceries à proximité.Son prix de vente est de 354 000 €.Contactez notre agence (DUJARDIN Franck : (Numéro supprimé)) pour toute question sur la maison ou sur les modalités de vente. Maisons Tradilignes Saint-Sébastien-sur-Loire vous accompagne dans tous vos projets immobiliers et à toutes les étapes de l’achat.
Saint-Sébastien-sur-Loire
TERRAIN ET MAISONSaint-Sébastien-sur-Loire : maison de 6 pièces (187 m²) à vendreEMPLACEMENT PRIVILÉGIÉ – MAISON 6 PIÈCES NEUVEÀ vendre : à 26 km de la côte atlantique, bénéficiant d’un emplacement privilégié dans Saint-Sébastien-sur-Loire (44230), Maisons Tradilignes Saint-Sébastien-sur-Loire vous présente cette maison de 6 pièces de plain-pied de 187 m² et de 420 m² de terrain.Elle se divise en cinq chambres, une cuisine et deux salles de bains. Cette maison est neuve.La maison se trouve dans un quartier attractif. Il y a le Collège René Bernier, l’École Maternelle Publique Centre et l’École Élémentaire Publique Théodore Monod à moins de 10 minutes à pied et trois structures d’accueil pour les tout-petits. Côté transports en commun, on trouve 11 gares à moins de 10 minutes en voiture. Des autoroutes et les nationales N844 et N249 sont accessibles à moins de 10 km. Il y a une bibliothèque, un tennis, des commerces, des boulangeries, un supermarché, une boucherie-charcuterie et un bureau de poste dans les environs. Ne manquez pas le marché Place Cambronne chaque mardi matin.Elle est proposée à l’achat pour 782 000 €.Contactez Franck DUJARDIN (tél : (Numéro supprimé)) pour toute information sur la maison ou sur les démarches à suivre. Maisons Tradilignes Saint-Sébastien-sur-Loire est là pour vous accompagner à toutes les étapes de votre projet.
L’actualité immobilière à Basse-Goulaine
27/11/2023
02/11/2023
30/10/2023
20/10/2023
16/10/2023
16/10/2023