Images
Description
Sur ce terrain, nous vous proposons une maison contemporaine pensée pour le bien-être de toute la famille. Avec ses 90,57 m² de surface habitable et ses espaces lumineux cette maison à étage est idéale pour ceux qui recherchent un cadre de vie agréable et fonctionnel.
Un intérieur chaleureux et optimisé
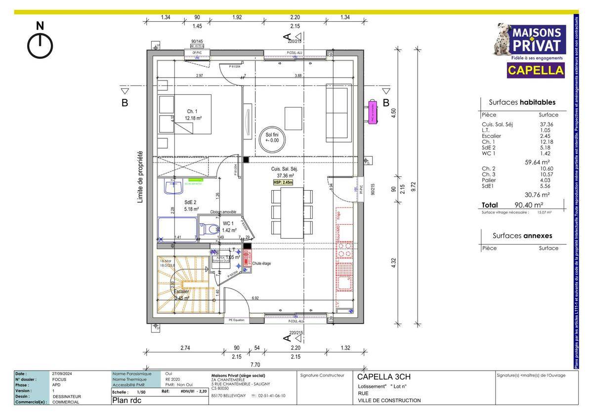
Dès l’entrée, découvrez une belle pièce de vie de 37 m², spacieuse et lumineuse grâce à ses larges ouvertures donnant sur le jardin . L’espace salon-salle à manger se prolonge harmonieusement avec une cuisine ouverte, idéale pour partager des moments conviviaux.
Le rez-de-chaussée accueille également une suite parentale confortable de 12,18 m², garantissant calme et intimité. Une salle d’eau moderne et des WC indépendants complètent ce niveau.
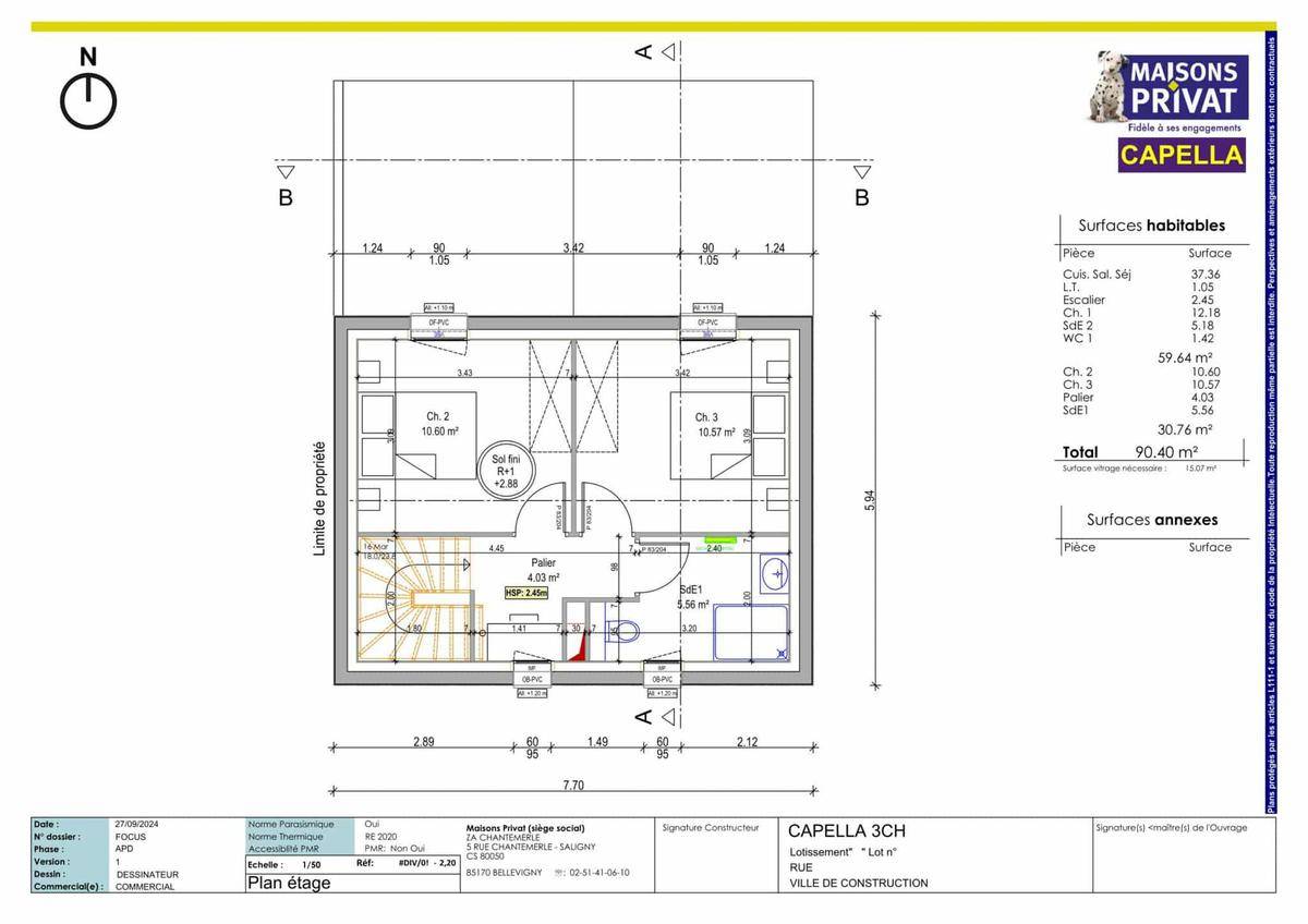
Un étage conçu pour la famille
À l’étage, deux chambres de 10,70 m² et 10,74 m² offrent un espace de vie agréable pour les enfants ou les invités. Une grande salle d’eau de 5,56 m² ainsi qu’un palier pouvant être aménagé en coin bureau ou espace détente complètent ce niveau.
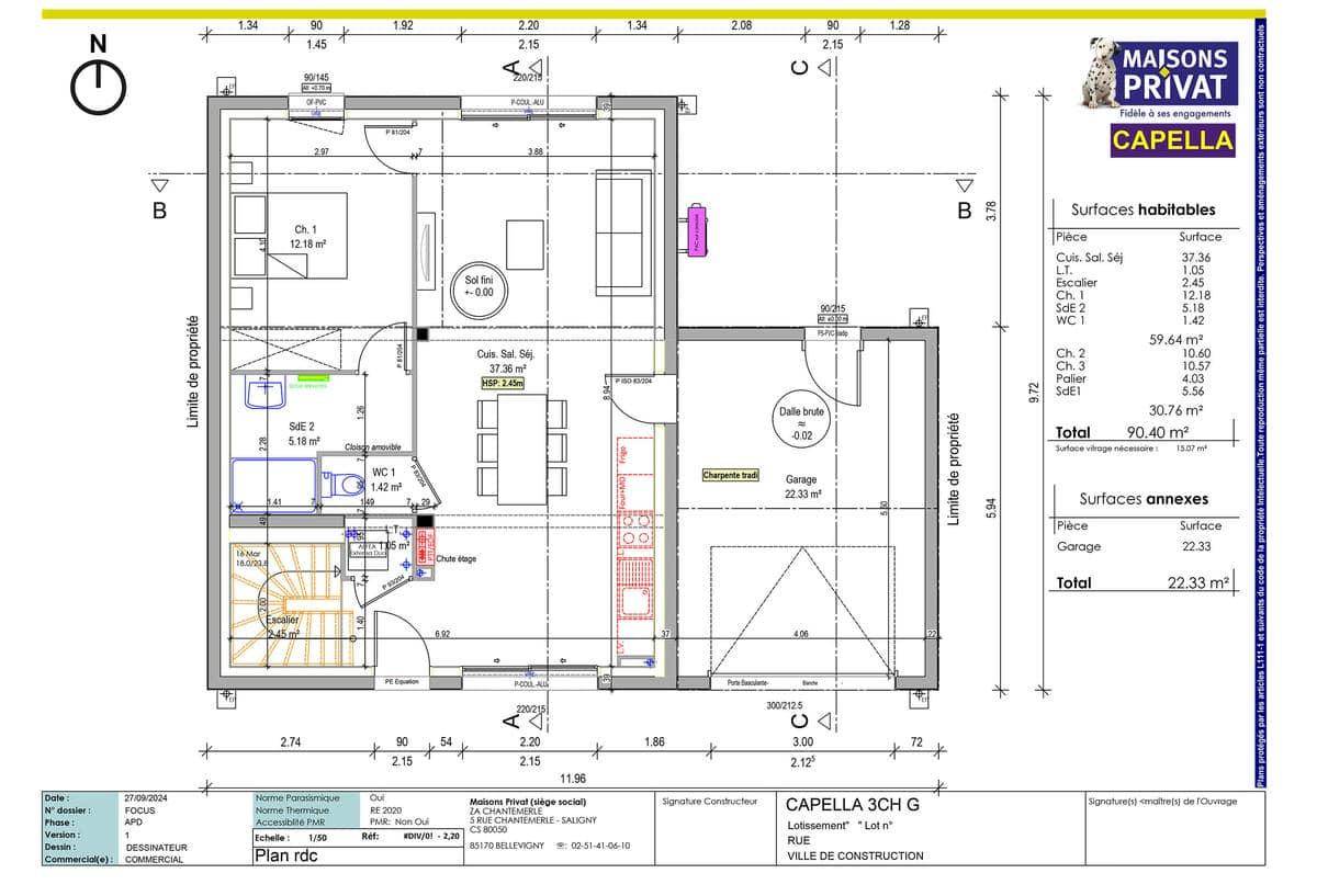
Sur cette version, un garage peut être ajouté en option.
* Prix indiqué hors branchements, hors sanitaires, hors revêtement des sols et des murs. Assurance dommages ouvrages incluse.
Logement susceptibles de vous intéresser
Nous vous proposons de découvrir aussi cette sélection de logements situés à moins de 10km de Bouaye et qui seraient susceptibles de vous intéresser.
Bouguenais
TERRAINPrix : 102500 €.Sur ce terrain de 410 m² à BOUGUENAIS, Alliance Construction vous propose de réaliser votre projet de construction de maison individuelle.Avec Alliance Construction, habitez une maison spécialement pensée et conçue pour vous et votre famille, prête à décorer, adaptée à vos modes de vie, personnalisée selon vos goûts grâce à un large choix d'options, de matériaux et d'innovations ! Demandez une étude gratuite et personnalisée de votre projet de construction sur ce terrain à BOUGUENAIS !Contactez Laurent LASSIMONNE au (Numéro supprimé) (Alliance Construction – Agence de Vallet).Prix hors frais de notaire. Terrain sélectionné par ALLIANCE auprès de nos partenaires fonciers, selon disponibilité, pour la construction d'une maison neuve. Non mandaté pour réaliser la vente (loi du 2 janvier 1970 n°70-9). Visuels non contractuels. Voir détails en agence.Cette annonce a été créée et diffusée avec le logiciel VITAHOME.
La Montagne
TERRAINPrix : 49500 €.Sur ce terrain de 111 m² à LA MONTAGNE, Alliance Construction vous propose de réaliser votre projet de construction de maison individuelle.Avec Alliance Construction, habitez une maison spécialement pensée et conçue pour vous et votre famille, prête à décorer, adaptée à vos modes de vie, personnalisée selon vos goûts grâce à un large choix d'options, de matériaux et d'innovations ! Demandez une étude gratuite et personnalisée de votre projet de construction sur ce terrain à LA MONTAGNE !Contactez Laurent LASSIMONNE au (Numéro supprimé) (Alliance Construction – Agence de Vallet).Prix hors frais de notaire. Terrain sélectionné par ALLIANCE auprès de nos partenaires fonciers, selon disponibilité, pour la construction d'une maison neuve. Non mandaté pour réaliser la vente (loi du 2 janvier 1970 n°70-9). Visuels non contractuels. Voir détails en agence.Cette annonce a été créée et diffusée avec le logiciel VITAHOME.
Saint-Jean-de-Boiseau
TERRAINPrix : 130000 €.Sur ce terrain de 630 m² à SAINT-JEAN-DE-BOISEAU, Alliance Construction vous propose de réaliser votre projet de construction de maison individuelle.Avec Alliance Construction, habitez une maison spécialement pensée et conçue pour vous et votre famille, prête à décorer, adaptée à vos modes de vie, personnalisée selon vos goûts grâce à un large choix d'options, de matériaux et d'innovations ! Demandez une étude gratuite et personnalisée de votre projet de construction sur ce terrain à SAINT-JEAN-DE-BOISEAU !Contactez Laurent LASSIMONNE au (Numéro supprimé) (Alliance Construction – Agence de Vallet).Prix hors frais de notaire. Terrain sélectionné par ALLIANCE auprès de nos partenaires fonciers, selon disponibilité, pour la construction d'une maison neuve. Non mandaté pour réaliser la vente (loi du 2 janvier 1970 n°70-9). Visuels non contractuels. Voir détails en agence.Cette annonce a été créée et diffusée avec le logiciel VITAHOME.
Saint-Philbert-de-Grand-Lieu
TERRAINPrix : 68000 €.Sur ce terrain de 430 m² à SAINT-PHILBERT-DE-GRAND-LIEU, Alliance Construction vous propose de réaliser votre projet de construction de maison individuelle.Avec Alliance Construction, habitez une maison spécialement pensée et conçue pour vous et votre famille, prête à décorer, adaptée à vos modes de vie, personnalisée selon vos goûts grâce à un large choix d'options, de matériaux et d'innovations ! Demandez une étude gratuite et personnalisée de votre projet de construction sur ce terrain à SAINT-PHILBERT-DE-GRAND-LIEU !Contactez Laurent LASSIMONNE au (Numéro supprimé) (Alliance Construction – Agence de Vallet).Prix hors frais de notaire. Terrain sélectionné par ALLIANCE auprès de nos partenaires fonciers, selon disponibilité, pour la construction d'une maison neuve. Non mandaté pour réaliser la vente (loi du 2 janvier 1970 n°70-9). Visuels non contractuels. Voir détails en agence.Cette annonce a été créée et diffusée avec le logiciel VITAHOME.
Port-Saint-Père
TERRAINPrix : 93000 €.Sur ce terrain de 375 m² à PORT-SAINT-PERE, Alliance Construction vous propose de réaliser votre projet de construction de maison individuelle.Avec Alliance Construction, habitez une maison spécialement pensée et conçue pour vous et votre famille, prête à décorer, adaptée à vos modes de vie, personnalisée selon vos goûts grâce à un large choix d'options, de matériaux et d'innovations ! Demandez une étude gratuite et personnalisée de votre projet de construction sur ce terrain à PORT-SAINT-PERE !Contactez Laurent LASSIMONNE au (Numéro supprimé) (Alliance Construction – Agence de Vallet).Prix hors frais de notaire. Terrain sélectionné par ALLIANCE auprès de nos partenaires fonciers, selon disponibilité, pour la construction d'une maison neuve. Non mandaté pour réaliser la vente (loi du 2 janvier 1970 n°70-9). Visuels non contractuels. Voir détails en agence.Cette annonce a été créée et diffusée avec le logiciel VITAHOME.
Rezé
TERRAINRezé : terrain de 470 m² à vendreEMPLACEMENT PRIVILÉGIÉ – VUE SANS VIS-À-VISÀ 21 km de l’océan Atlantique à Rezé (44400), terrain de 470 m². Réalisez-y votre résidence principale ou secondaire. Il profite d’une vue sans vis-à-vis en bord de sevre et est orienté au sud-est. Dans un secteur recherché, ce terrain bénéficiant d’un emplacement d’exception est proche des écoles et des commerces. Il y a plusieurs écoles (maternelle, élémentaire et collège) à moins de 10 minutes à pied, tout comme trois crèches. Niveau transports en commun, on trouve neuf gares à moins de 10 minutes en voiture. L’autoroute A83 et les nationales N844, N249 et N444 sont accessibles à moins de 9 km. Il y a une bibliothèque, des commerces, des boulangeries, un supermarché, un bureau de poste et deux épiceries à quelques minutes de la propriété.Il est proposé à l’achat pour 150 000 €. N’hésitez pas à prendre contact avec Franck DUJARDIN ((Numéro supprimé)) pour toute question sur ce terrain.
Bouguenais
TERRAINVENTE d’un terrain de 470 m² à BouguenaisQUARTIER RECHERCHÉEn vente à 14 km de l’océan Atlantique à Bouguenais (44340), terrain de 470 m². Il est exposé au sud-ouest. Dans un quartier attractif, ce terrain construit dans un quartier recherché est proche des commerces et des écoles. On trouve des écoles maternelles et élémentaires à moins de 10 minutes à pied. Niveau transports, il y a sept gares à moins de 10 minutes en voiture. La nationale N844 est accessible à 1 km. On trouve une bibliothèque, un tennis, un bassin de natation et sept commerces dans les environs.Ce terrain est à vendre pour la somme de 135 000 €. Contactez Franck DUJARDIN (tél : (Numéro supprimé)) pour obtenir de plus amples renseignements sur le terrain ou sur les démarches à suivre. Faites de vos projets immobiliers une réalité avec Maisons Tradilignes Saint-Sébastien-sur-Loire.
Bouguenais
TERRAINVENTE : terrain de 330 m² à BouguenaisQUARTIER RECHERCHÉÀ 14 km de la côte atlantique à Bouguenais (44340), terrain de 330 m². Réalisez-y la maison de vos rêves. Il bénéficie d’une exposition sud-ouest. Dans un quartier attractif, le terrain situé dans un secteur prisé est proche des commerces et des écoles. Il y a des établissements scolaires primaires à moins de 10 minutes à pied. Niveau transports en commun, on trouve sept gares à moins de 10 minutes en voiture. On trouve un accès à la nationale N844 à 1 km. Il y a une bibliothèque, un tennis, un bassin de natation et plusieurs commerces à quelques minutes du bien.Son prix de vente est de 110 000 €. N’hésitez pas à prendre contact avec Franck DUJARDIN (tél : (Numéro supprimé)) pour tout renseignement sur le terrain ou sur les démarches à suivre. Maisons Tradilignes Saint-Sébastien-sur-Loire vous accompagne à toutes les étapes de l’achat et dans tous vos projets immobiliers.
Rezé
TERRAIN ET MAISONRezé : maison de 6 pièces (187 m²) en venteEMPLACEMENT PRIVILÉGIÉ – MAISON 6 PIÈCES NEUVEÀ 21 km de l’océan Atlantique, notre agence Maisons Tradilignes Saint-Sébastien-sur-Loire est ravie de vous présenter cette maison de 6 pièces de plain-pied de 187 m² et de 470 m² de terrain bénéficiant d’un emplacement privilégié dans Rezé (44400).Elle est composée de cinq chambres, d’une cuisine et de deux salles de bains. Cette maison est neuve.La maison se trouve dans un secteur recherché. Plusieurs établissements scolaires (maternelle, élémentaire et collège) sont implantés à moins de 10 minutes à pied, tout comme trois crèches. Niveau transports en commun, on trouve neuf gares à moins de 10 minutes en voiture. L’autoroute A83 et les nationales N844, N249 et N444 sont accessibles à moins de 9 km. Il y a une bibliothèque, des commerces, des boulangeries, un supermarché, deux épiceries et un bureau de poste à quelques minutes.Son prix de vente est de 685 000 €.Contactez Franck DUJARDIN ((Numéro supprimé)) pour toute question sur la maison, sur les modalités de vente ou sur les démarches à suivre. Faites de vos projets immobiliers une réalité avec Maisons Tradilignes Saint-Sébastien-sur-Loire.
L’actualité immobilière à Bouaye
27/11/2023
02/11/2023
30/10/2023
20/10/2023
16/10/2023
16/10/2023