Images
Description
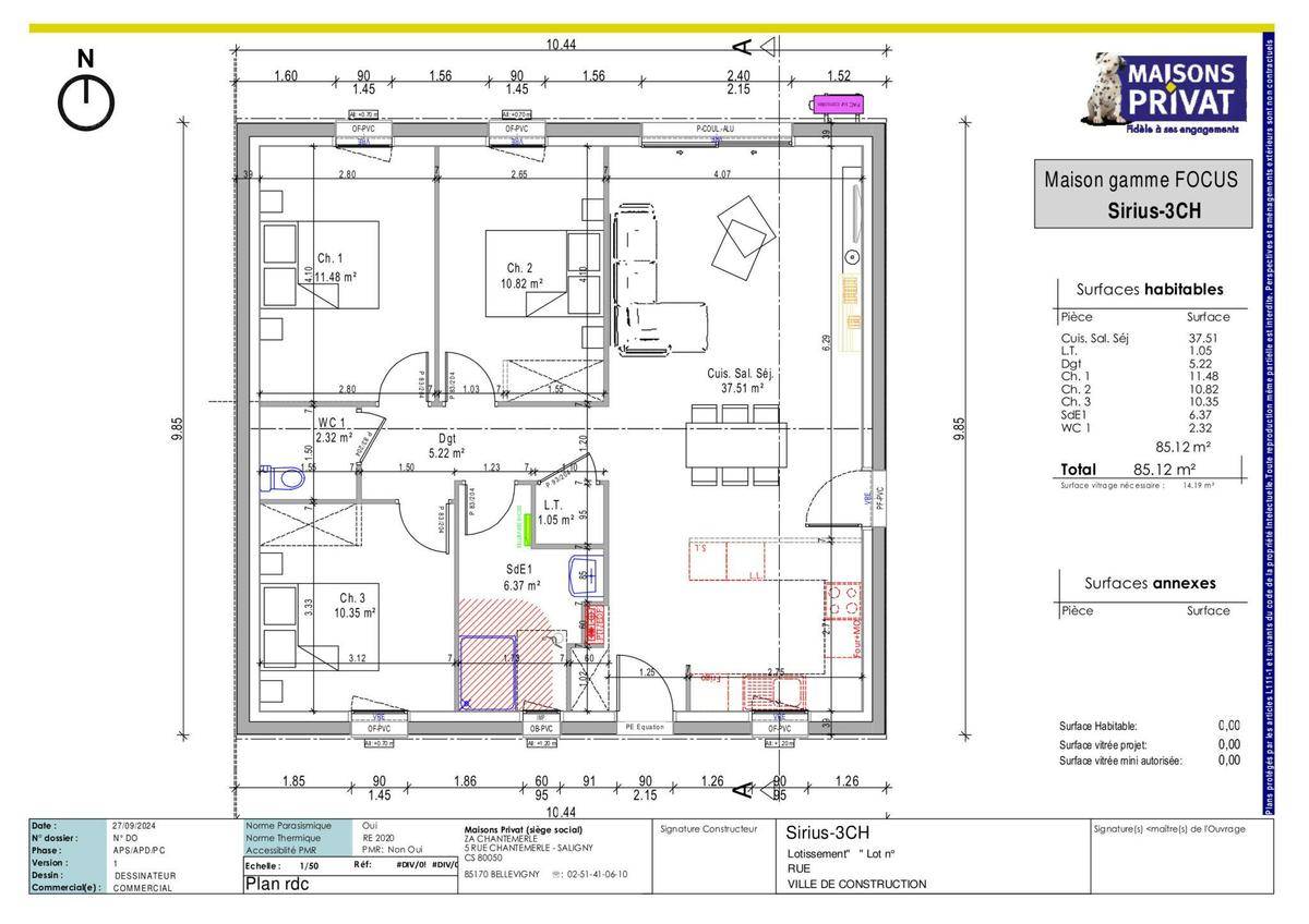
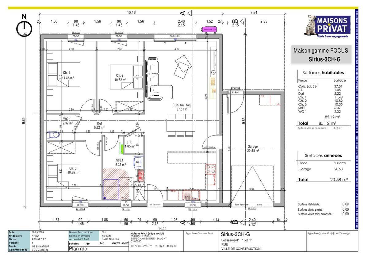
Sur ce terrain, nous vous proposons cette élégante maison de plain-pied, dont la conception soignée mise sur la luminosité et la convivialité. Dès l’entrée, vous serez accueilli par une généreuse pièce à vivre de plus de 37 m², inondée de lumière naturelle, qui rassemble salon, salle à manger et cuisine ouverte pour des moments de partage en famille ou entre amis.
La partie nuit se compose de trois chambres confortables, offrant chacune la possibilité d’aménager rangements et espace de travail selon vos envies. Une salle de bain moderne, un WC indépendant viennent compléter un agencement pensé pour simplifier votre quotidien.
Sur cette version, un garage peut être ajouté en option.
Avec sa disposition ingénieuse et ses volumes agréables, cette maison saura vous séduire par son atmosphère chaleureuse et son potentiel d’aménagement. Ne manquez pas cette belle opportunité et venez la visiter sans tarder?!
Logement susceptibles de vous intéresser
Nous vous proposons de découvrir aussi cette sélection de logements situés à moins de 10km de Chaumes-en-Retz et qui seraient susceptibles de vous intéresser.
Rouans
TERRAIN ET MAISONMaison T4 (84 m²) à vendre à RouansIDÉALEMENT SITUÉE – MAISON 4 PIÈCES NEUVEÀ vendre : à 20 km de l’océan Atlantique et à quelques kilomètres de Nantes, Maisons Tradilignes Pornic vous propose, idéalement située dans Rouans (44640), cette maison de 4 pièces de plain-pied de 84 m² et de 509 m² de terrain.Elle est composée de trois chambres, d’une cuisine et d’une salle de bains. Cette maison est neuve.Cette maison se trouve dans un quartier recherché. L’École Primaire Privée Saint Martin et l’École Primaire Publique Jules Verne sont implantées à moins de 10 minutes , tout comme une crèche. Côté transports en commun, il y a deux gares (Saint-Hilaire-de-Chaléons et Sainte-Pazanne) à moins de 10 minutes en voiture. L’autoroute A82 et les nationales N165, N444 et N844 sont accessibles à moins de 19 km. On trouve un tennis, un commerce, une boulangerie, une épicerie et un bureau de poste dans les environs.Elle est proposée à l’achat pour 256 500 €.Contactez Vincent COUCHAUX ((Numéro supprimé)) pour toute question sur la maison, sur les modalités de vente ou sur les démarches à suivre.
Chaumes-en-Retz
TERRAINPrix : 52000 €.Sur ce terrain de 269 m² à ARTHON-EN-RETZ, Alliance Construction vous propose de réaliser votre projet de construction de maison individuelle.Avec Alliance Construction, habitez une maison spécialement pensée et conçue pour vous et votre famille, prête à décorer, adaptée à vos modes de vie, personnalisée selon vos goûts grâce à un large choix d'options, de matériaux et d'innovations ! Demandez une étude gratuite et personnalisée de votre projet de construction sur ce terrain à ARTHON-EN-RETZ !Contactez Laurent LASSIMONNE au (Numéro supprimé) (Alliance Construction – Agence de Vallet).Prix hors frais de notaire. Terrain sélectionné par ALLIANCE auprès de nos partenaires fonciers, selon disponibilité, pour la construction d'une maison neuve. Non mandaté pour réaliser la vente (loi du 2 janvier 1970 n°70-9). Visuels non contractuels. Voir détails en agence.Cette annonce a été créée et diffusée avec le logiciel VITAHOME.
Rouans
TERRAIN ET MAISONRouans : maison de 4 pièces (75 m²) à vendreIDÉALEMENT SITUÉE – MAISON 4 PIÈCES NEUVEEn vente : à 20 km de l’océan Atlantique et à quelques kilomètres de Nantes, idéalement située dans Rouans (44640), Maisons Tradilignes Pornic vous présente cette maison de 4 pièces de plain-pied de 75 m². Elle compte trois chambres, une cuisine et une salle de bains.Le terrain de la propriété est de 509 m².La maison est neuve.La maison se trouve dans un secteur attractif. L’École Primaire Privée Saint Martin et l’École Primaire Publique Jules Verne sont implantées à moins de 10 minutes , tout comme une crèche. Niveau transports, il y a les gares Saint-Hilaire-de-Chaléons et Sainte-Pazanne à moins de 10 minutes en voiture. L’autoroute A82 et les nationales N165, N444 et N844 sont accessibles à moins de 19 km. On trouve un tennis, un commerce, une boulangerie, un bureau de poste et une épicerie à quelques minutes du logement.Elle est proposée à l’achat pour 233 000 €.Prenez contact avec notre agence (Vincent COUCHAUX : (Numéro supprimé)) pour tout renseignement sur la propriété ou sur les modalités de vente. Maisons Tradilignes Pornic est là pour vous accompagner dans toutes vos démarches.
Chaumes-en-Retz
TERRAIN ET MAISONIdéal pour un projet locatif, une maison à rentabilité optimisée ou un premier investissement foncier, ce terrain constructible de 375 m² situé à Chaumes-en-Retz, (Côté Arthon), présente un excellent potentiel. Découvrez EVOLIA, la maison évolutive qui s'adapte à chaque étape de votre vie. Transformez facilement une maison de 2 chambres en une maison de 3 chambres grâce à un garage aménageable de 15 m². Flexible et personnalisable, EVOLIA évolue avec vous, que vous soyez une jeune famille, un couple ou une personne seule. Ne laissez plus vos besoins en logement vous limiter. Contactez nos experts conseillers dès aujourd’hui et faites de EVOLIA la maison de vos rêves. Prix hors fourniture et pose : des appareils sanitaires (sauf système de chauffage et d'eau chaude sanitaire), du carrelage, de la faïence, de la cuisine aménagée, des revêtements de sol dans les chambres. Hors décoration, aménagement intérieur, peinture, raccordements, frais de notaire et dommage ouvrage. (Surface habitable 49 m²+garage 15 m²). // Réf. : 2586-213331-MVR. Prix terrain : 62 000 €, hors frais d'agence à la charge de l'acquéreur. Ce terrain vous est proposé, par nos partenaires fonciers, dans le cadre d'un projet de construction avec nous. Les informations sur les risques auxquels ce bien est exposé sont disponibles sur le site Géorisques (www.georisques.gouv.fr). Prix maison : 94 943 €.
Chauvé
TERRAIN ET MAISONSur ce terrain, nous vous proposons cette maison neuve : La Montoise, une maison traditionnelle de plain-pied dans laquelle il fait bon vivre. Amoureux des formes simples, du bien-vivre et de la fonctionnalité, vous aimerez ce modèle de maison de plain-pied. Son fonctionnement optimal a été conçu pour assurer le confort parfait de votre famille, quelle que soit sa composition.Une surface optimisée pour plus de confort. Vous serez séduits par son espace de vie avec cuisine ouverte, bien éclairé et spacieux. Nous avons exploité le moindre centimètre pour vous offrir des espaces confortables. Ce modèle se décline en plusieurs versions, proposé de 2 à 4 chambres avec salle de bain et w.c séparés, ses surfaces oscillent de 70 à plus de 100 m². Cette maison est adaptable aux normes en vigueur si vous souhaitez la construire pour la louer.La Montoise dispose d’une surface de 70 m², comprenant 2 chambres et 3 pièces. Vous avez le choix entre une toiture à 2 pans ou 4 pans, et la maison est équipée de baies coulissantes pour un maximum de luminosité. Les options les plus demandées par nos clients incluent un garage accolé, un carport, et des menuiseries en aluminium. Cette maison neuve est basse consommation et conforme à la RE2020, garantissant des performances énergétiques optimales et un confort de vie exceptionnel.Faites confiance à Maisons Privat, constructeur centenaire avec les meilleurs avis clients de la région, pour réaliser votre projet de vie.
Chaumes-en-Retz
TERRAIN ET MAISONIdéal pour un projet locatif, une maison à rentabilité optimisée ou un premier investissement foncier, ce terrain constructible de 375 m² situé à Chaumes-en-Retz, (Côté Arthon), présente un excellent potentiel. Vous serez séduits par la luminosité qui se dégage de cette maison de plain-pied qui vous propose un espace de vie spacieux de 46 m² environ ouvert sur le jardin avec un coin cuisine aménagée. Trois belles chambres avec rangements, une salle de bains et wc indépendant. Le plus pour cette maison fonctionnelle, un cellier et un garage intégré. Pour vous assurer un confort de vie et conformément à la RE2025, nous avons choisi un mode de chauffage par PAC + plancher chauffant, volets roulants électriques. Prix hors fourniture et pose : des appareils sanitaires (sauf système de chauffage et d'eau chaude sanitaire), du carrelage et de la faïence, des revêtements de sol dans les chambres. Hors décoration et aménagement intérieur et peinture. Hors raccordements, frais de notaire et dommage ouvrage. // Réf. : 1230-213331-MVR. Prix terrain : 62 000 €, hors frais d'agence à la charge de l'acquéreur. Ce terrain vous est proposé, par nos partenaires fonciers, dans le cadre d'un projet de construction avec nous. Les informations sur les risques auxquels ce bien est exposé sont disponibles sur le site Géorisques (www.georisques.gouv.fr). Prix maison : 147 370 €.
Cheix-en-Retz
TERRAINPrix : 85000 €.Sur ce terrain de 690 m² à CHEIX-EN-RETZ, Alliance Construction vous propose de réaliser votre projet de construction de maison individuelle.Avec Alliance Construction, habitez une maison spécialement pensée et conçue pour vous et votre famille, prête à décorer, adaptée à vos modes de vie, personnalisée selon vos goûts grâce à un large choix d'options, de matériaux et d'innovations ! Demandez une étude gratuite et personnalisée de votre projet de construction sur ce terrain à CHEIX-EN-RETZ !Contactez Laurent LASSIMONNE au (Numéro supprimé) (Alliance Construction – Agence de Vallet).Prix hors frais de notaire. Terrain sélectionné par ALLIANCE auprès de nos partenaires fonciers, selon disponibilité, pour la construction d'une maison neuve. Non mandaté pour réaliser la vente (loi du 2 janvier 1970 n°70-9). Visuels non contractuels. Voir détails en agence.Cette annonce a été créée et diffusée avec le logiciel VITAHOME.
Chaumes-en-Retz
TERRAINPrix : 74000 €.Sur ce terrain de 375 m² à CHEMERE, Alliance Construction vous propose de réaliser votre projet de construction de maison individuelle.Avec Alliance Construction, habitez une maison spécialement pensée et conçue pour vous et votre famille, prête à décorer, adaptée à vos modes de vie, personnalisée selon vos goûts grâce à un large choix d'options, de matériaux et d'innovations ! Demandez une étude gratuite et personnalisée de votre projet de construction sur ce terrain à CHEMERE !Contactez Laurent LASSIMONNE au (Numéro supprimé) (Alliance Construction – Agence de Vallet).Prix hors frais de notaire. Terrain sélectionné par ALLIANCE auprès de nos partenaires fonciers, selon disponibilité, pour la construction d'une maison neuve. Non mandaté pour réaliser la vente (loi du 2 janvier 1970 n°70-9). Visuels non contractuels. Voir détails en agence.Cette annonce a été créée et diffusée avec le logiciel VITAHOME.
Cheix-en-Retz
TERRAIN ET MAISONA CHEIX-EN-RETZ sur un terrain de 690 m², Alliance Construction vous propose de réaliser votre projet de construction de maison individuelle d'une surface de 88.04 m² habitables avec 3 chambres, à partir de 273800€*Demandez une étude gratuite et personnalisée de votre projet de construction !* Cette offre comprend :- Garanties constructeurs (dommages ouvrage, garantie de prix ferme et définitif, garantie de livraison, responsabilité civile et décennale).- Branchements aux compteurs et accès empierré sur 5m linéaires.Habitez une maison spécialement pensée et conçue pour vous et votre famille, prête à décorer, adaptée à vos modes de vie, personnalisée selon vos goûts grâce à un large choix d'options, de matériaux et d'innovations !Contactez Laurent LASSIMONNE au (Numéro supprimé) (Alliance Construction – Agence de Vallet).*Prix indicatif pour un projet de construction d'une maison individuelle. Ne sont pas inclus les frais de branchements, raccordements aux réseaux publics, frais d'adaptations, aménagements intérieurs et extérieurs et options. terrain non viabilisé, frais de notaire non compris, frais divers non compris. Garanties et assurances obligatoires incluses. Terrain sélectionné par ALLIANCE auprès de nos partenaires fonciers, selon disponibilité, pour la construction d'une maison neuve. Non mandaté pour réaliser la vente (loi du 2 janvier 1970 n°70-9). Visuels non contractuels. Voir détails en agence.Cette annonce a été créée et diffusée avec le logiciel VITAHOME.
L’actualité immobilière à Chaumes-en-Retz
27/11/2023
02/11/2023
30/10/2023
20/10/2023
16/10/2023
16/10/2023