Maison à construire à Cordemais (44360)
Images
Description
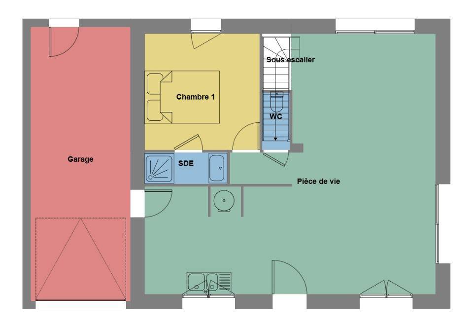
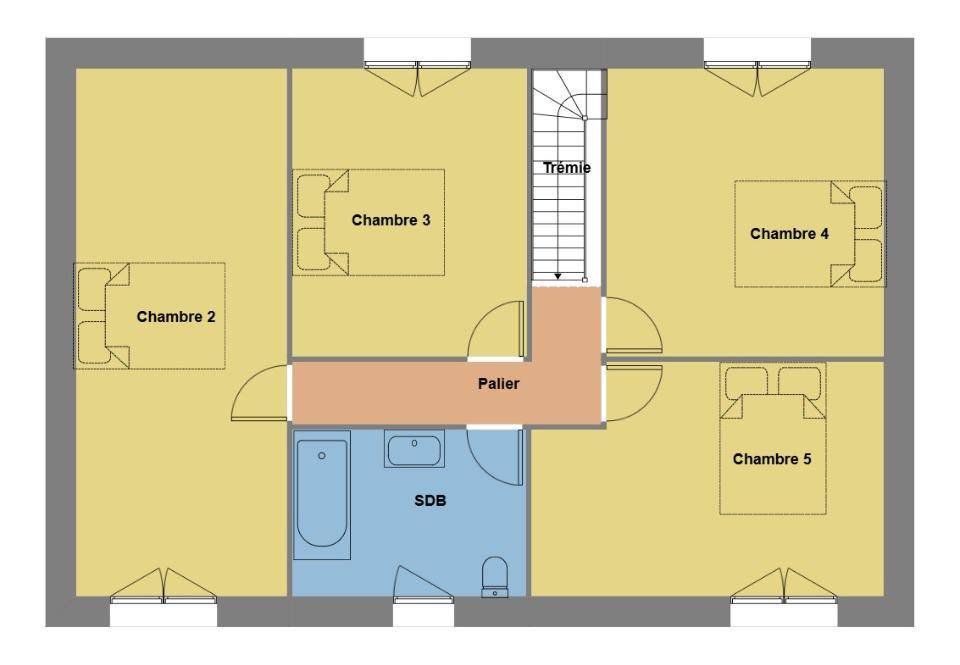
VENTE d'une maison de 6 pièces (140 m²) à Cordemais
EMPLACEMENT PRIVILÉGIÉ - MAISON 6 PIÈCES NEUVE
En vente : localisée sur la côte atlantique et à deux pas de Nantes, votre agence Maisons de l'Avenir Orvault est ravie de vous proposer cette maison de 6 pièces de 140 m² bénéficiant d'un emplacement privilégié dans Cordemais (44360).
Cette maison compte 2 niveaux. Son intérieur offre cinq chambres, une cuisine et deux salles de bains. La maison est neuve.
Le terrain du bien est de 400 m².
Cette maison se situe dans un secteur prisé. L'École Primaire Publique Pierre et Marie Curie et l'École Primaire Privée Sainte Anne sont implantées à moins de 10 minutes à pied. Côté transports, il y a les gares Cordemais, Saint-Étienne-de-Montluc et Savenay à moins de 10 minutes en voiture. La nationale N165 est accessible à 7 km. On trouve un bassin de natation, un tennis, un commerce, une boulangerie et une supérette dans les environs.
Elle est proposée à l'achat pour 357 900 €.
Contactez Jean-Baptiste ((Numéro supprimé)) pour tout renseignement sur la maison. Maisons de l'Avenir Orvault vous accompagne dans tous vos projets immobiliers et dans toutes vos démarches.
Logement susceptibles de vous intéresser
Nous vous proposons de découvrir aussi cette sélection de logements situés à moins de 10km de Cordemais et qui seraient susceptibles de vous intéresser.
Le Pellerin
TERRAINPrix : 75000 €.Sur ce terrain de 180 m² à LE PELLERIN, Alliance Construction vous propose de réaliser votre projet de construction de maison individuelle.Avec Alliance Construction, habitez une maison spécialement pensée et conçue pour vous et votre famille, prête à décorer, adaptée à vos modes de vie, personnalisée selon vos goûts grâce à un large choix d'options, de matériaux et d'innovations ! Demandez une étude gratuite et personnalisée de votre projet de construction sur ce terrain à LE PELLERIN !Contactez Laurent LASSIMONNE au (Numéro supprimé) (Alliance Construction – Agence de Vallet).Prix hors frais de notaire. Terrain sélectionné par ALLIANCE auprès de nos partenaires fonciers, selon disponibilité, pour la construction d'une maison neuve. Non mandaté pour réaliser la vente (loi du 2 janvier 1970 n°70-9). Visuels non contractuels. Voir détails en agence.Cette annonce a été créée et diffusée avec le logiciel VITAHOME.
Le Pellerin
TERRAINPrix : 109000 €.Sur ce terrain de 400 m² à LE PELLERIN, Alliance Construction vous propose de réaliser votre projet de construction de maison individuelle.Avec Alliance Construction, habitez une maison spécialement pensée et conçue pour vous et votre famille, prête à décorer, adaptée à vos modes de vie, personnalisée selon vos goûts grâce à un large choix d'options, de matériaux et d'innovations ! Demandez une étude gratuite et personnalisée de votre projet de construction sur ce terrain à LE PELLERIN !Contactez Laurent LASSIMONNE au (Numéro supprimé) (Alliance Construction – Agence de Vallet).Prix hors frais de notaire. Terrain sélectionné par ALLIANCE auprès de nos partenaires fonciers, selon disponibilité, pour la construction d'une maison neuve. Non mandaté pour réaliser la vente (loi du 2 janvier 1970 n°70-9). Visuels non contractuels. Voir détails en agence.Cette annonce a été créée et diffusée avec le logiciel VITAHOME.
Le Temple-de-Bretagne
TERRAIN ET MAISONSitué au Temple-de-Bretagne, commune dynamique aux portes de Nantes, découvrez ce terrain constructible de 450 m², idéal pour un premier achat ou un projet familial. À proximité immédiate des écoles, des commerces et des axes rapides vers Nantes et la côte atlantique, ce terrain bénéficie d’un emplacement privilégié alliant praticité et qualité de vie. Une belle opportunité à saisir sur un secteur recherché, alliant confort, accessibilité et cadre agréable !. Découvrez EVOLIA, la maison évolutive qui s'adapte à chaque étape de votre vie. Transformez facilement une maison de 2 chambres en une maison de 3 chambres grâce à un garage aménageable de 15 m². Flexible et personnalisable, EVOLIA évolue avec vous, que vous soyez une jeune famille, un couple ou une personne seule. Ne laissez plus vos besoins en logement vous limiter. Contactez nos experts conseillers dès aujourd’hui et faites de EVOLIA la maison de vos rêves. Prix hors fourniture et pose : des appareils sanitaires (sauf système de chauffage et d'eau chaude sanitaire), du carrelage, de la faïence, de la cuisine aménagée, des revêtements de sol dans les chambres. Hors décoration, aménagement intérieur, peinture, raccordements, frais de notaire et dommage ouvrage. (Surface habitable 49 m²+garage 15 m²). // Réf. : 2585-210850-ENL. Prix terrain : 89 000 €, hors frais d'agence à la charge de l'acquéreur. Ce terrain vous est proposé, par nos partenaires fonciers, dans le cadre d'un projet de construction avec nous. Les informations sur les risques auxquels ce bien est exposé sont disponibles sur le site Géorisques (www.georisques.gouv.fr). Prix maison : 94 943 €.
Le Temple-de-Bretagne
TERRAIN ET MAISONSitué au Temple-de-Bretagne, commune dynamique aux portes de Nantes, découvrez ce terrain constructible de 450 m², idéal pour un premier achat ou un projet familial. À proximité immédiate des écoles, des commerces et des axes rapides vers Nantes et la côte atlantique, ce terrain bénéficie d’un emplacement privilégié alliant praticité et qualité de vie. Une belle opportunité à saisir sur un secteur recherché, alliant confort, accessibilité et cadre agréable !. Une maison idéale pour les petits terrains, sans compromis sur l’espace ! Grâce à son agencement optimisé, cette maison s’adapte parfaitement aux terrains de taille réduite tout en offrant des volumes généreux et un confort absolu. Le rez-de-chaussée accueille une pièce de vie ouverte et lumineuse, pensée pour favoriser la convivialité. Son agencement fluide entre le salon, la salle à manger et la cuisine permet un cadre chaleureux et moderne. Un cellier discret ajoute une solution de rangement pratique au quotidien. À l’étage, trois chambres confortables assurent à chacun son propre espace, tandis qu’une salle de bain fonctionnelle et des WC indépendants garantissent un confort optimal pour toute la famille. Un design contemporain et intelligent, parfait pour maximiser l’espace même sur une petite parcelle !. Pour vous assurer un confort de vie optimal et en conformité avec la RE2025, nous avons opté pour un système de chauffage par pompe à chaleur (PAC) avec plancher chauffant au rez-de-chaussée et radiateurs à l’étage. Le logement est également équipé de volets roulants électriques. Prix hors fourniture et pose : des appareils sanitaires (sauf système de chauffage et d'eau chaude sanitaire), du carrelage et de la faïence, des revêtements de sol dans les chambres. Hors décoration et aménagement intérieur et peinture. Hors raccordements, frais de notaire et dommage ouvrage. // Réf. : 2493-210850-ENL. Prix terrain : 89 000 €, hors frais d'agence à la charge de l'acquéreur. Ce terrain vous est proposé, par nos partenaires fonciers, dans le cadre d'un projet de construction avec nous. Les informations sur les risques auxquels ce bien est exposé sont disponibles sur le site Géorisques (www.georisques.gouv.fr). Prix maison : 181 503 €.
Le Temple-de-Bretagne
TERRAIN ET MAISONSitué au Temple-de-Bretagne, commune dynamique aux portes de Nantes, découvrez ce terrain constructible de 450 m², idéal pour un premier achat ou un projet familial. À proximité immédiate des écoles, des commerces et des axes rapides vers Nantes et la côte atlantique, ce terrain bénéficie d’un emplacement privilégié alliant praticité et qualité de vie. Une belle opportunité à saisir sur un secteur recherché, alliant confort, accessibilité et cadre agréable !. Familiale et fonctionnelle cette maison de 106 m² habitables vous séduira par ses volumes et son aménagement. Son très bel espace de vie de 47 m² environ avec sa cuisine ouverte avec accès direct au jardin grâce à sa baie vitrée. L’espace nuit est composé d’une suite parentale avec dressing et salle d’eau privative, à l’opposé trois chambres avec rangements, une salle de bains indépendantePour vous assurer un confort de vie et conformément à la RE2025, nous avons choisi un mode de chauffage par PAC + plancher chauffant, volets roulants électriques. Prix hors fourniture et pose : des appareils sanitaires (sauf système de chauffage et d'eau chaude sanitaire), du carrelage et de la faïence, des revêtements de sol dans les chambres. Hors décoration et aménagement intérieur et peinture. Hors raccordements, frais de notaire et dommage ouvrage. // Réf. : 1249-210850-ENL. Prix terrain : 89 000 €, hors frais d'agence à la charge de l'acquéreur. Ce terrain vous est proposé, par nos partenaires fonciers, dans le cadre d'un projet de construction avec nous. Les informations sur les risques auxquels ce bien est exposé sont disponibles sur le site Géorisques (www.georisques.gouv.fr). Prix maison : 163 956 €.
Le Temple-de-Bretagne
TERRAINSitué au Temple-de-Bretagne, commune dynamique aux portes de Nantes, découvrez ce terrain constructible de 450 m², idéal pour un premier achat ou un projet familial. À proximité immédiate des écoles, des commerces et des axes rapides vers Nantes et la côte atlantique, ce terrain bénéficie d’un emplacement privilégié alliant praticité et qualité de vie. Une belle opportunité à saisir sur un secteur recherché, alliant confort, accessibilité et cadre agréable !. // Réf. : T210850. Prix terrain : 89 000 €, hors frais d'agence et de notaire à la charge de l'acquéreur. Ce terrain vous est proposé, par nos partenaires fonciers, dans le cadre d'un projet de construction avec nous. Les informations sur les risques auxquels ce bien est exposé sont disponibles sur le site Géorisques (www.georisques.gouv.fr).
Savenay
TERRAIN ET MAISONA SAVENAY sur un terrain de 655 m², Alliance Construction vous propose de réaliser votre projet de construction de maison individuelle d'une surface de 93 m² habitables avec 3 chambres, à partir de 294300€*Informations du terrain : Beau terrain à bâtir de 655 m² situé à seulement 4 minutes du centre ville et de la zone commerciale, à 5 minutes de la gare, situé dans un quartier résidentiel agréable, à saisir rapidement !Demandez une étude gratuite et personnalisée de votre projet de construction !* Cette offre comprend :- Garanties constructeurs (dommages ouvrage, garantie de prix ferme et définitif, garantie de livraison, responsabilité civile et décennale).- Branchements aux compteurs et accès empierré sur 5m linéaires.Habitez une maison spécialement pensée et conçue pour vous et votre famille, prête à décorer, adaptée à vos modes de vie, personnalisée selon vos goûts grâce à un large choix d'options, de matériaux et d'innovations !Contactez Benoit COCHIN au (Numéro supprimé) (Alliance Construction – Agence de Pontchâteau).*Prix indicatif pour un projet de construction d'une maison individuelle. Ne sont pas inclus les frais de branchements, raccordements aux réseaux publics, frais d'adaptations, aménagements intérieurs et extérieurs et options. viabilisation comprise, frais de notaire non compris, frais divers non compris. Garanties et assurances obligatoires incluses. Terrain sélectionné par ALLIANCE auprès de nos partenaires fonciers, selon disponibilité, pour la construction d'une maison neuve. Non mandaté pour réaliser la vente (loi du 2 janvier 1970 n°70-9). Visuels non contractuels. Voir détails en agence.Cette annonce a été créée et diffusée avec le logiciel VITAHOME.
Vigneux-de-Bretagne
TERRAIN ET MAISONA VIGNEUX-DE-BRETAGNE sur un terrain de 400 m², Alliance Construction vous propose de réaliser votre projet de construction de maison individuelle d'une surface de 94 m² habitables avec 3 chambres, à partir de 279000€*Informations du terrain : Situé à moins d'un kilomètre du centre bourg de Vigneux-de-Bretagne, ce terrain vous offrira un cadre de vie très agréable de par son environnement de qualité à proximité des services : commerces, santé, complexe sportif …L'axe Nantes – Saint-Nazaire vous permettra de rapidement rallier les grandes agglomérations tout en profitant chaque jour du calme de la campagne.Demandez une étude gratuite et personnalisée de votre projet de construction !* Cette offre comprend :- Garanties constructeurs (dommages ouvrage, garantie de prix ferme et définitif, garantie de livraison, responsabilité civile et décennale).- Branchements aux compteurs et accès empierré sur 5m linéaires.Habitez une maison spécialement pensée et conçue pour vous et votre famille, prête à décorer, adaptée à vos modes de vie, personnalisée selon vos goûts grâce à un large choix d'options, de matériaux et d'innovations !Contactez Benoit COCHIN au (Numéro supprimé) (Alliance Construction – Agence de Pontchâteau).*Prix indicatif pour un projet de construction d'une maison individuelle. Ne sont pas inclus les frais de branchements, raccordements aux réseaux publics, frais d'adaptations, aménagements intérieurs et extérieurs et options. terrain viabilisé, frais de notaire non compris, frais divers non compris. Garanties et assurances obligatoires incluses. Terrain sélectionné par ALLIANCE auprès de nos partenaires fonciers, selon disponibilité, pour la construction d'une maison neuve. Non mandaté pour réaliser la vente (loi du 2 janvier 1970 n°70-9). Visuels non contractuels. Voir détails en agence.Cette annonce a été créée et diffusée avec le logiciel VITAHOME.
Saint-Étienne-de-Montluc
TERRAIN ET MAISONA SAINT-ETIENNE-DE-MONTLUC sur un terrain de 372 m², Alliance Construction vous propose de réaliser votre projet de construction de maison individuelle d'une surface de 92.07 m² habitables avec 3 chambres, à partir de 298555€*Informations du terrain : Saint-Etienne-de-Montluc est une charmante commune où la tranquillité de la vie rurale se mêle harmonieusement à la vitalité urbaine. Nichée dans un écrin de verdure, cette perle rare est le lieu idéal pour ceux qui cherchent à s’établir dans un cadre serein sans renoncer aux commodités de la métropole nantaise.Imaginez votre future maison dans un environnement calme et sécurisé, où la qualité de vie prend tout son sens.Saint-Etienne-de-Montluc est idéalement située. Grâce à sa proximité avec les principales voies de circulation et les transports en commun, la ville offre un accès rapide et pratique aux grandes agglomérations voisines.La commune ne manque pas de services essentiels. Avec des écoles accueillantes pour vos enfants, des infrastructures sportives pour les activités de loisirs, et un accès facilité aux soins de santé, Saint-Etienne-de-Montluc se positionne comme un choix de vie idéal pour les familles, les actifs et les retraités.Demandez une étude gratuite et personnalisée de votre projet de construction !* Cette offre comprend :- Garanties constructeurs (dommages ouvrage, garantie de prix ferme et définitif, garantie de livraison, responsabilité civile et décennale).- Branchements aux compteurs et accès empierré sur 5m linéaires.Habitez une maison spécialement pensée et conçue pour vous et votre famille, prête à décorer, adaptée à vos modes de vie, personnalisée selon vos goûts grâce à un large choix d'options, de matériaux et d'innovations !Contactez Benoit COCHIN au (Numéro supprimé) (Alliance Construction – Agence de Pontchâteau).*Prix indicatif pour un projet de construction d'une maison individuelle. Ne sont pas inclus les frais de branchements, raccordements aux réseaux publics, frais d'adaptations, aménagements intérieurs et extérieurs et options. terrain viabilisé, frais de notaire non compris, frais divers non compris. Garanties et assurances obligatoires incluses. Terrain sélectionné par ALLIANCE auprès de nos partenaires fonciers, selon disponibilité, pour la construction d'une maison neuve. Non mandaté pour réaliser la vente (loi du 2 janvier 1970 n°70-9). Visuels non contractuels. Voir détails en agence.Cette annonce a été créée et diffusée avec le logiciel VITAHOME.
L’actualité immobilière à Cordemais
27/11/2023
02/11/2023
30/10/2023
20/10/2023
16/10/2023
16/10/2023