Maison à construire à Couëron (44220)
Images
Description
Maison F6 (120 m²) à vendre à Couëron
IDÉALEMENT SITUÉE - MAISON 6 PIÈCES NEUVE
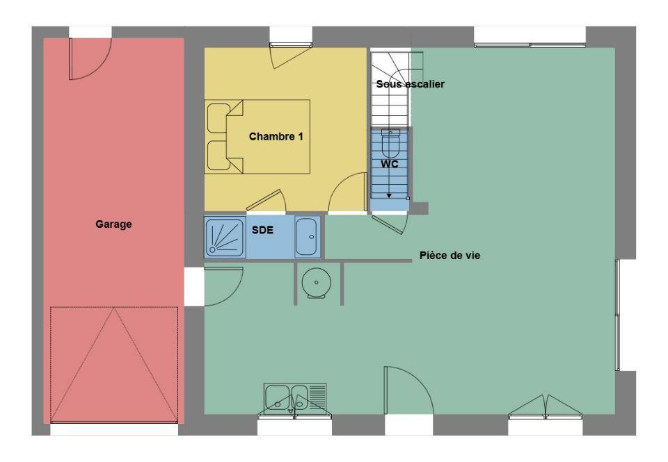
Sur le littoral atlantique, nous vous proposons cette maison de 6 pièces de 120 m² et de 448 m² de terrain idéalement située dans Couëron (44220).
Cette maison comporte 2 niveaux. Elle comporte cinq chambres, une cuisine et deux salles de bains. Cette maison est neuve.
La maison se situe dans un quartier prisé. Des écoles de tous types y sont implantées. Niveau transports en commun, il y a trois gares (Couëron, La Basse Indre-Saint-Herblain et Saint-Étienne-de-Montluc) à moins de 10 minutes en voiture. L'autoroute A82 et les nationales N444, N165 et N844 sont accessibles à moins de 7 km. On trouve une bibliothèque à proximité du bien.
Elle est proposée à l'achat pour 388 000 €.
N'hésitez pas à prendre contact avec Jean-Baptiste ((Numéro supprimé)) pour plus d'informations sur la maison ou sur les démarches à suivre. Concrétisez vos projets immobiliers avec Maisons de l'Avenir Orvault.
Logement susceptibles de vous intéresser
Nous vous proposons de découvrir aussi cette sélection de logements situés à moins de 10km de Couëron et qui seraient susceptibles de vous intéresser.
Cheix-en-Retz
TERRAIN ET MAISONA CHEIX-EN-RETZ sur un terrain de 690 m², Alliance Construction vous propose de réaliser votre projet de construction de maison individuelle d'une surface de 88.04 m² habitables avec 3 chambres, à partir de 273800€*Demandez une étude gratuite et personnalisée de votre projet de construction !* Cette offre comprend :- Garanties constructeurs (dommages ouvrage, garantie de prix ferme et définitif, garantie de livraison, responsabilité civile et décennale).- Branchements aux compteurs et accès empierré sur 5m linéaires.Habitez une maison spécialement pensée et conçue pour vous et votre famille, prête à décorer, adaptée à vos modes de vie, personnalisée selon vos goûts grâce à un large choix d'options, de matériaux et d'innovations !Contactez Laurent LASSIMONNE au (Numéro supprimé) (Alliance Construction – Agence de Vallet).*Prix indicatif pour un projet de construction d'une maison individuelle. Ne sont pas inclus les frais de branchements, raccordements aux réseaux publics, frais d'adaptations, aménagements intérieurs et extérieurs et options. terrain non viabilisé, frais de notaire non compris, frais divers non compris. Garanties et assurances obligatoires incluses. Terrain sélectionné par ALLIANCE auprès de nos partenaires fonciers, selon disponibilité, pour la construction d'une maison neuve. Non mandaté pour réaliser la vente (loi du 2 janvier 1970 n°70-9). Visuels non contractuels. Voir détails en agence.Cette annonce a été créée et diffusée avec le logiciel VITAHOME.
Cheix-en-Retz
TERRAIN ET MAISONA CHEIX-EN-RETZ sur un terrain de 690 m², Alliance Construction vous propose de réaliser votre projet de construction de maison individuelle d'une surface de 87.91 m² habitables avec 3 chambres, à partir de 247154€*Demandez une étude gratuite et personnalisée de votre projet de construction !* Cette offre comprend :- Garanties constructeurs (dommages ouvrage, garantie de prix ferme et définitif, garantie de livraison, responsabilité civile et décennale).- Branchements aux compteurs et accès empierré sur 5m linéaires.Habitez une maison spécialement pensée et conçue pour vous et votre famille, prête à décorer, adaptée à vos modes de vie, personnalisée selon vos goûts grâce à un large choix d'options, de matériaux et d'innovations !Contactez Laurent LASSIMONNE au (Numéro supprimé) (Alliance Construction – Agence de Vallet).*Prix indicatif pour un projet de construction d'une maison individuelle. Ne sont pas inclus les frais de branchements, raccordements aux réseaux publics, frais d'adaptations, aménagements intérieurs et extérieurs et options. terrain non viabilisé, frais de notaire non compris, frais divers non compris. Garanties et assurances obligatoires incluses. Terrain sélectionné par ALLIANCE auprès de nos partenaires fonciers, selon disponibilité, pour la construction d'une maison neuve. Non mandaté pour réaliser la vente (loi du 2 janvier 1970 n°70-9). Visuels non contractuels. Voir détails en agence.Cette annonce a été créée et diffusée avec le logiciel VITAHOME.
Cheix-en-Retz
TERRAINPrix : 85000 €.Sur ce terrain de 690 m² à CHEIX-EN-RETZ, Alliance Construction vous propose de réaliser votre projet de construction de maison individuelle.Avec Alliance Construction, habitez une maison spécialement pensée et conçue pour vous et votre famille, prête à décorer, adaptée à vos modes de vie, personnalisée selon vos goûts grâce à un large choix d'options, de matériaux et d'innovations ! Demandez une étude gratuite et personnalisée de votre projet de construction sur ce terrain à CHEIX-EN-RETZ !Contactez Laurent LASSIMONNE au (Numéro supprimé) (Alliance Construction – Agence de Vallet).Prix hors frais de notaire. Terrain sélectionné par ALLIANCE auprès de nos partenaires fonciers, selon disponibilité, pour la construction d'une maison neuve. Non mandaté pour réaliser la vente (loi du 2 janvier 1970 n°70-9). Visuels non contractuels. Voir détails en agence.Cette annonce a été créée et diffusée avec le logiciel VITAHOME.
La Montagne
TERRAINPrix : 49500 €.Sur ce terrain de 111 m² à LA MONTAGNE, Alliance Construction vous propose de réaliser votre projet de construction de maison individuelle.Avec Alliance Construction, habitez une maison spécialement pensée et conçue pour vous et votre famille, prête à décorer, adaptée à vos modes de vie, personnalisée selon vos goûts grâce à un large choix d'options, de matériaux et d'innovations ! Demandez une étude gratuite et personnalisée de votre projet de construction sur ce terrain à LA MONTAGNE !Contactez Laurent LASSIMONNE au (Numéro supprimé) (Alliance Construction – Agence de Vallet).Prix hors frais de notaire. Terrain sélectionné par ALLIANCE auprès de nos partenaires fonciers, selon disponibilité, pour la construction d'une maison neuve. Non mandaté pour réaliser la vente (loi du 2 janvier 1970 n°70-9). Visuels non contractuels. Voir détails en agence.Cette annonce a été créée et diffusée avec le logiciel VITAHOME.
Le Pellerin
TERRAINPrix : 75000 €.Sur ce terrain de 180 m² à LE PELLERIN, Alliance Construction vous propose de réaliser votre projet de construction de maison individuelle.Avec Alliance Construction, habitez une maison spécialement pensée et conçue pour vous et votre famille, prête à décorer, adaptée à vos modes de vie, personnalisée selon vos goûts grâce à un large choix d'options, de matériaux et d'innovations ! Demandez une étude gratuite et personnalisée de votre projet de construction sur ce terrain à LE PELLERIN !Contactez Laurent LASSIMONNE au (Numéro supprimé) (Alliance Construction – Agence de Vallet).Prix hors frais de notaire. Terrain sélectionné par ALLIANCE auprès de nos partenaires fonciers, selon disponibilité, pour la construction d'une maison neuve. Non mandaté pour réaliser la vente (loi du 2 janvier 1970 n°70-9). Visuels non contractuels. Voir détails en agence.Cette annonce a été créée et diffusée avec le logiciel VITAHOME.
Saint-Jean-de-Boiseau
TERRAINPrix : 130000 €.Sur ce terrain de 630 m² à SAINT-JEAN-DE-BOISEAU, Alliance Construction vous propose de réaliser votre projet de construction de maison individuelle.Avec Alliance Construction, habitez une maison spécialement pensée et conçue pour vous et votre famille, prête à décorer, adaptée à vos modes de vie, personnalisée selon vos goûts grâce à un large choix d'options, de matériaux et d'innovations ! Demandez une étude gratuite et personnalisée de votre projet de construction sur ce terrain à SAINT-JEAN-DE-BOISEAU !Contactez Laurent LASSIMONNE au (Numéro supprimé) (Alliance Construction – Agence de Vallet).Prix hors frais de notaire. Terrain sélectionné par ALLIANCE auprès de nos partenaires fonciers, selon disponibilité, pour la construction d'une maison neuve. Non mandaté pour réaliser la vente (loi du 2 janvier 1970 n°70-9). Visuels non contractuels. Voir détails en agence.Cette annonce a été créée et diffusée avec le logiciel VITAHOME.
Le Pellerin
TERRAINPrix : 109000 €.Sur ce terrain de 400 m² à LE PELLERIN, Alliance Construction vous propose de réaliser votre projet de construction de maison individuelle.Avec Alliance Construction, habitez une maison spécialement pensée et conçue pour vous et votre famille, prête à décorer, adaptée à vos modes de vie, personnalisée selon vos goûts grâce à un large choix d'options, de matériaux et d'innovations ! Demandez une étude gratuite et personnalisée de votre projet de construction sur ce terrain à LE PELLERIN !Contactez Laurent LASSIMONNE au (Numéro supprimé) (Alliance Construction – Agence de Vallet).Prix hors frais de notaire. Terrain sélectionné par ALLIANCE auprès de nos partenaires fonciers, selon disponibilité, pour la construction d'une maison neuve. Non mandaté pour réaliser la vente (loi du 2 janvier 1970 n°70-9). Visuels non contractuels. Voir détails en agence.Cette annonce a été créée et diffusée avec le logiciel VITAHOME.
Vigneux-de-Bretagne
TERRAIN ET MAISONA VIGNEUX-DE-BRETAGNE sur un terrain de 400 m², Alliance Construction vous propose de réaliser votre projet de construction de maison individuelle d'une surface de 94 m² habitables avec 3 chambres, à partir de 279000€*Informations du terrain : Situé à moins d'un kilomètre du centre bourg de Vigneux-de-Bretagne, ce terrain vous offrira un cadre de vie très agréable de par son environnement de qualité à proximité des services : commerces, santé, complexe sportif …L'axe Nantes – Saint-Nazaire vous permettra de rapidement rallier les grandes agglomérations tout en profitant chaque jour du calme de la campagne.Demandez une étude gratuite et personnalisée de votre projet de construction !* Cette offre comprend :- Garanties constructeurs (dommages ouvrage, garantie de prix ferme et définitif, garantie de livraison, responsabilité civile et décennale).- Branchements aux compteurs et accès empierré sur 5m linéaires.Habitez une maison spécialement pensée et conçue pour vous et votre famille, prête à décorer, adaptée à vos modes de vie, personnalisée selon vos goûts grâce à un large choix d'options, de matériaux et d'innovations !Contactez Benoit COCHIN au (Numéro supprimé) (Alliance Construction – Agence de Pontchâteau).*Prix indicatif pour un projet de construction d'une maison individuelle. Ne sont pas inclus les frais de branchements, raccordements aux réseaux publics, frais d'adaptations, aménagements intérieurs et extérieurs et options. terrain viabilisé, frais de notaire non compris, frais divers non compris. Garanties et assurances obligatoires incluses. Terrain sélectionné par ALLIANCE auprès de nos partenaires fonciers, selon disponibilité, pour la construction d'une maison neuve. Non mandaté pour réaliser la vente (loi du 2 janvier 1970 n°70-9). Visuels non contractuels. Voir détails en agence.Cette annonce a été créée et diffusée avec le logiciel VITAHOME.
Saint-Étienne-de-Montluc
TERRAIN ET MAISONA SAINT-ETIENNE-DE-MONTLUC sur un terrain de 372 m², Alliance Construction vous propose de réaliser votre projet de construction de maison individuelle d'une surface de 92.07 m² habitables avec 3 chambres, à partir de 298555€*Informations du terrain : Saint-Etienne-de-Montluc est une charmante commune où la tranquillité de la vie rurale se mêle harmonieusement à la vitalité urbaine. Nichée dans un écrin de verdure, cette perle rare est le lieu idéal pour ceux qui cherchent à s’établir dans un cadre serein sans renoncer aux commodités de la métropole nantaise.Imaginez votre future maison dans un environnement calme et sécurisé, où la qualité de vie prend tout son sens.Saint-Etienne-de-Montluc est idéalement située. Grâce à sa proximité avec les principales voies de circulation et les transports en commun, la ville offre un accès rapide et pratique aux grandes agglomérations voisines.La commune ne manque pas de services essentiels. Avec des écoles accueillantes pour vos enfants, des infrastructures sportives pour les activités de loisirs, et un accès facilité aux soins de santé, Saint-Etienne-de-Montluc se positionne comme un choix de vie idéal pour les familles, les actifs et les retraités.Demandez une étude gratuite et personnalisée de votre projet de construction !* Cette offre comprend :- Garanties constructeurs (dommages ouvrage, garantie de prix ferme et définitif, garantie de livraison, responsabilité civile et décennale).- Branchements aux compteurs et accès empierré sur 5m linéaires.Habitez une maison spécialement pensée et conçue pour vous et votre famille, prête à décorer, adaptée à vos modes de vie, personnalisée selon vos goûts grâce à un large choix d'options, de matériaux et d'innovations !Contactez Benoit COCHIN au (Numéro supprimé) (Alliance Construction – Agence de Pontchâteau).*Prix indicatif pour un projet de construction d'une maison individuelle. Ne sont pas inclus les frais de branchements, raccordements aux réseaux publics, frais d'adaptations, aménagements intérieurs et extérieurs et options. terrain viabilisé, frais de notaire non compris, frais divers non compris. Garanties et assurances obligatoires incluses. Terrain sélectionné par ALLIANCE auprès de nos partenaires fonciers, selon disponibilité, pour la construction d'une maison neuve. Non mandaté pour réaliser la vente (loi du 2 janvier 1970 n°70-9). Visuels non contractuels. Voir détails en agence.Cette annonce a été créée et diffusée avec le logiciel VITAHOME.
L’actualité immobilière à Couëron
27/11/2023
02/11/2023
30/10/2023
20/10/2023
16/10/2023
16/10/2023