Maison à construire à La Baule-Escoublac (44500)
Images
Description
La Baule-Escoublac : maison T6 (140 m²) en vente
IDÉALEMENT SITUÉE - MAISON 6 PIÈCES NEUVE
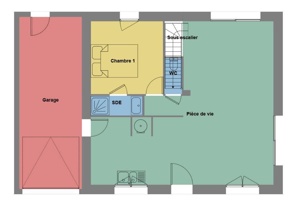
À vendre : située à 5 km de la côte atlantique et à 9 km de Saint-Nazaire, Maisons de l'Avenir Orvault vous propose, idéalement située dans La Baule-Escoublac (44500), cette maison de 6 pièces de 140 m² et de 511 m² de terrain. Elle offre cinq chambres, une cuisine et deux salles de bains.
Cette maison possède 2 niveaux. Elle est neuve.
La maison est située dans un secteur convoité. L'École Primaire Publique Tanchoux-les Erables et l'École Primaire Privée Saint Joseph sont implantées à moins de 10 minutes à pied. Niveau transports, on trouve la gare La Baule-Escoublac à proximité. On trouve un accès à la nationale N171 à 15 km. Il y a un tennis, un bassin de natation, quatre supermarchés, des commerces, des boulangeries, deux poissonneries et une supérette à quelques minutes du logement. Le marché Centre-Ville anime le quartier.
Elle est à vendre pour la somme de 544 000 €.
Prenez contact avec Jean-Baptiste ((Numéro supprimé)) pour plus d'informations sur la maison.
Logement susceptibles de vous intéresser
Nous vous proposons de découvrir aussi cette sélection de logements situés à moins de 10km de La Baule-Escoublac et qui seraient susceptibles de vous intéresser.
Pornichet
TERRAIN ET MAISONMagnifique terrain situé sur la commune de Pornichet d'une surface de 490 m², terrain plat, entièrement viabilisé. Accès plages et commerces de proximités en 5 minutes de voiture. Quartier résidentiel au calme absolu. Belle exposition sud, possibilité de construire une maison sur mesure. Une maison spacieuse et élégante, conçue pour vous !. Découvrez ce modèle moderne de plus de 140 m², pensé pour allier confort et luminosité. Son vaste salon-séjour de 45 m², baigné de lumière, s’ouvre sur une cuisine conviviale. Une suite parentale au rez-de-chaussée avec dressing et salle d’eau privative, deux chambres et un bureau à l’étage, parfait pour le télétravail ou une chambre d’appoint. Garage et cellier attenant, pour un quotidien pratique et organisé. Pour un confort optimal et conforme à la RE2025, cette maison dispose d’une PAC avec plancher chauffant au rez-de-chaussée, radiateurs à l’étage et volets roulants électriques. À noter : Le prix indiqué exclut les revêtements de sol des chambres, la cuisine aménagée, la peinture, la décoration, les raccordements, les frais de notaire et l’assurance dommages-ouvrage. // Réf. : 538-210844-ELM. Prix terrain : 215 000 €, hors frais d'agence à la charge de l'acquéreur. Ce terrain vous est proposé, par nos partenaires fonciers, dans le cadre d'un projet de construction avec nous. Les informations sur les risques auxquels ce bien est exposé sont disponibles sur le site Géorisques (www.georisques.gouv.fr). Prix maison : 324 945 €.
Pornichet
TERRAIN ET MAISONMagnifique terrain situé sur la commune de Pornichet d'une surface de 490 m², terrain plat, entièrement viabilisé. Accès plages et commerces de proximités en 5 minutes de voiture. Quartier résidentiel au calme absolu. Belle exposition sud, possibilité de construire une maison sur mesure. Offrez-vous une maison où chaque espace est conçu pour répondre aux exigences du quotidien, tout en alliant modernité et fonctionnalité. Son agencement optimisé propose une pièce de vie lumineuse et spacieuse, véritable cœur de la maison, idéale pour partager des moments inoubliables. Avec trois chambres accueillantes, un bureau polyvalent, une salle de bain élégante et un cellier astucieux, tout a été pensé pour une organisation fluide et harmonieuse. Son garage intégré facilite votre quotidien en offrant praticité et sécurité. Dotée d’une architecture contemporaine et d’un système de chauffage performant, cette maison assure un confort optimal toute l’année. Un cadre de vie idéal pour une famille en quête d’espace et de bien-être. Pour vous assurer un confort de vie et conformément à la RE2025, nous avons choisi un mode de chauffage par PAC + plancher chauffant, volets roulants électriques. Prix hors peinture, décoration, revêtements de sol dans les chambres, cuisine équipée, frais de notaire, raccordements, dommage ouvrage. // Réf. : 2648-210844-ELM. Prix terrain : 215 000 €, hors frais d'agence à la charge de l'acquéreur. Ce terrain vous est proposé, par nos partenaires fonciers, dans le cadre d'un projet de construction avec nous. Les informations sur les risques auxquels ce bien est exposé sont disponibles sur le site Géorisques (www.georisques.gouv.fr). Prix maison : 173 929 €.
Pornichet
TERRAIN ET MAISONMagnifique terrain situé sur la commune de Pornichet d'une surface de 490 m², terrain plat, entièrement viabilisé. Accès plages et commerces de proximités en 5 minutes de voiture. Quartier résidentiel au calme absolu. Belle exposition sud, possibilité de construire une maison sur mesure. Une maison moderne et astucieuse, prête à accueillir vos projets de vie !. Laissez-vous séduire par cette charmante maison à étage conçue pour allier confort et fonctionnalité. Son vaste espace de vie de plus de 42 m², baigné de lumière, s’ouvre sur l’extérieur pour des moments de convivialité en famille. Profitez du confort d’une suite parentale avec dressing et salle d’eau au rez-de-chaussée, offrant intimité et praticité. À l’étage, deux belles chambres et une salle de bains complètent cet espace pensé pour toute la famille. Un garage de plus de 23 m² vient parfaire ce bien, idéal pour allier rangement et stationnement. Une maison moderne et astucieuse, prête à accueillir vos projets de vie !. Pour un confort optimal et conforme à la RE2025, cette maison dispose d’une PAC avec plancher chauffant au rez-de-chaussée, radiateurs à l’étage et volets roulants électriques. À noter : Le prix indiqué exclut les revêtements de sol des chambres, la cuisine aménagée, la peinture, la décoration, les raccordements, les frais de notaire et l’assurance dommages-ouvrage. (Carport non contractuel, non compris dans le prix). // Réf. : 2428-210844-ELM. Prix terrain : 215 000 €, hors frais d'agence à la charge de l'acquéreur. Ce terrain vous est proposé, par nos partenaires fonciers, dans le cadre d'un projet de construction avec nous. Les informations sur les risques auxquels ce bien est exposé sont disponibles sur le site Géorisques (www.georisques.gouv.fr). Prix maison : 239 582 €.
Pornichet
TERRAINMagnifique terrain situé sur la commune de Pornichet d'une surface de 490 m², terrain plat, entièrement viabilisé. Accès plages et commerces de proximités en 5 minutes de voiture. Quartier résidentiel au calme absolu. Belle exposition sud, possibilité de construire une maison sur mesure. // Réf. : T210844. Prix terrain : 215 000 €, hors frais d'agence et de notaire à la charge de l'acquéreur. Ce terrain vous est proposé, par nos partenaires fonciers, dans le cadre d'un projet de construction avec nous. Les informations sur les risques auxquels ce bien est exposé sont disponibles sur le site Géorisques (www.georisques.gouv.fr).
Pornichet
TERRAINSecteur calme, tous les réseaux passent devant le terrain (dont le tout à l'égout), en partie clôturé.Prix : 234000 €.Vous rêvez de construire votre propre habitat naturel. Un lieu de vie qui vous reconnecte à la nature, à votre vraie nature. Un toit qui vous protège en toute saison, un refuge pour vous et ceux que vous aimez. En choisissant My Lovely Nature, vous avez frappé à la bonne porte. Nous serons heureux de vous accompagner dans votre projet de vie au naturel.Contactez-nous au (Numéro supprimé) (My Lovely Nature – Agence de Nantes MLN).Prix honoraires inclus et hors frais de notaire. Terrain sélectionné par MY LOVELY NATURE auprès de nos partenaires fonciers, selon disponibilité, pour la construction d'une maison neuve. Non mandaté pour réaliser la vente (loi du 2 janvier 1970 n°70-9). Visuels non contractuels. Voir détails en agence.Cette annonce a été créée et diffusée avec le logiciel VITAHOME.
Pornichet
TERRAIN ET MAISONMaison à ossature bois à construire à Pornichet.My Lovely Nature, constructeur de maison en bois sur mesure, vous propose un projet de construction neuve sur un terrain de 600² à viabiliser. La maison proposée est entièrement personnalisable selon vos besoins, vos envies et votre budget. Plusieurs types de chauffage et de revêtements extérieurs sont possibles : bois, enduit, alu aspect zinc, etc…Labélisée RE2020, nos projets vous apportent confort de vie (été comme hiver) et économie d’énergie grâce à leur conception bioclimatique.Vous souhaitez faire construire une maison bois écologique, unique et moderne.Venez nous rencontrer pour étudier ensemble un projet à votre image.L’équipe My Lovely NatureContactez-nous au (Numéro supprimé) (My Lovely Nature – Agence de Nantes MLN).*Prix indicatif pour un projet de construction d'une maison individuelle. Ne sont pas inclus les frais de branchements, raccordements aux réseaux publics, frais d'adaptations, aménagements intérieurs et extérieurs et options. viabilisation comprise (7000€), frais de notaire compris, frais divers non compris. Garanties et assurances obligatoires incluses. Terrain sélectionné par MY LOVELY NATURE auprès de nos partenaires fonciers, selon disponibilité, pour la construction d'une maison neuve. Non mandaté pour réaliser la vente (loi du 2 janvier 1970 n°70-9). Visuels non contractuels. Voir détails en agence.Cette annonce a été créée et diffusée avec le logiciel VITAHOME.
Guérande
TERRAIN ET MAISONVous rêvez d’un jardin paysager, une cuisine avec ilot centrale, parquet dans les chambres… Faites construire, vous pourrez choisir !Alliance vous propose un de ses modèles de maison sur-mesure sur un terrain de 421 m² à partir de 333541€* (hors frais supplémentaires et selon disponibilité de notre partenaire foncier.)Découvrez tous nos modèles de maisons sur notre site internet ou appelez nous pour réaliser votre projet entièrement sur-mesure.Contactez Benoit COCHIN au (Numéro supprimé) (Alliance Construction – Agence de Pontchâteau).*Prix indicatif pour un projet de construction d'une maison individuelle. Ne sont pas inclus les frais de branchements, raccordements aux réseaux publics, frais d'adaptations, aménagements intérieurs et extérieurs et options. terrain viabilisé, frais de notaire non compris, frais divers non compris. Garanties et assurances obligatoires incluses. Terrain sélectionné par ALLIANCE auprès de nos partenaires fonciers, selon disponibilité, pour la construction d'une maison neuve. Non mandaté pour réaliser la vente (loi du 2 janvier 1970 n°70-9). Visuels non contractuels. Voir détails en agence.Cette annonce a été créée et diffusée avec le logiciel VITAHOME.
Pornichet
TERRAIN ET MAISONA PORNICHET sur un terrain de 301 m², Alliance Construction vous propose de réaliser votre projet de construction de maison individuelle d'une surface de 87.91 m² habitables avec 3 chambres, à partir de 339000€*Informations du terrain : Situé à moins de 4 km des premières plages, ce charmant lotissement composé de seulement 11 lots vous offrira un cadre de vie idéal : calme, proximité avec l'océan et toutes les commodités. Terrain vendu entièrement viabilisé.Demandez une étude gratuite et personnalisée de votre projet de construction !* Cette offre comprend :- Garanties constructeurs (dommages ouvrage, garantie de prix ferme et définitif, garantie de livraison, responsabilité civile et décennale).- Branchements aux compteurs et accès empierré sur 5m linéaires.Habitez une maison spécialement pensée et conçue pour vous et votre famille, prête à décorer, adaptée à vos modes de vie, personnalisée selon vos goûts grâce à un large choix d'options, de matériaux et d'innovations !Contactez Benoit COCHIN au (Numéro supprimé) (Alliance Construction – Agence de Pontchâteau).*Prix indicatif pour un projet de construction d'une maison individuelle. Ne sont pas inclus les frais de branchements, raccordements aux réseaux publics, frais d'adaptations, aménagements intérieurs et extérieurs et options. terrain viabilisé, frais de notaire non compris, frais divers non compris. Garanties et assurances obligatoires incluses. Terrain sélectionné par ALLIANCE auprès de nos partenaires fonciers, selon disponibilité, pour la construction d'une maison neuve. Non mandaté pour réaliser la vente (loi du 2 janvier 1970 n°70-9). Visuels non contractuels. Voir détails en agence.Cette annonce a été créée et diffusée avec le logiciel VITAHOME.
Guérande
TERRAIN ET MAISONA GUERANDE sur un terrain de 421 m², Alliance Construction vous propose de réaliser votre projet de construction de maison individuelle d'une surface de 107.07 m² habitables avec 4 chambres, à partir de 406780€*Informations du terrain : Situé à deux pas des rempartsProche des commodités entièrement viabiliséDemandez une étude gratuite et personnalisée de votre projet de construction !* Cette offre comprend :- Garanties constructeurs (dommages ouvrage, garantie de prix ferme et définitif, garantie de livraison, responsabilité civile et décennale).- Branchements aux compteurs et accès empierré sur 5m linéaires.Habitez une maison spécialement pensée et conçue pour vous et votre famille, prête à décorer, adaptée à vos modes de vie, personnalisée selon vos goûts grâce à un large choix d'options, de matériaux et d'innovations !Contactez Benoit COCHIN au (Numéro supprimé) (Alliance Construction – Agence de Pontchâteau).*Prix indicatif pour un projet de construction d'une maison individuelle. Ne sont pas inclus les frais de branchements, raccordements aux réseaux publics, frais d'adaptations, aménagements intérieurs et extérieurs et options. terrain viabilisé, frais de notaire non compris, frais divers non compris. Garanties et assurances obligatoires incluses. Terrain sélectionné par ALLIANCE auprès de nos partenaires fonciers, selon disponibilité, pour la construction d'une maison neuve. Non mandaté pour réaliser la vente (loi du 2 janvier 1970 n°70-9). Visuels non contractuels. Voir détails en agence.Cette annonce a été créée et diffusée avec le logiciel VITAHOME.
L’actualité immobilière à La Baule-Escoublac
27/11/2023
02/11/2023
30/10/2023
20/10/2023
16/10/2023
16/10/2023