Images
Description
Sur ce terrain, nous vous proposons cette maison neuve : Vertium, une magnifique demeure de style architecte.
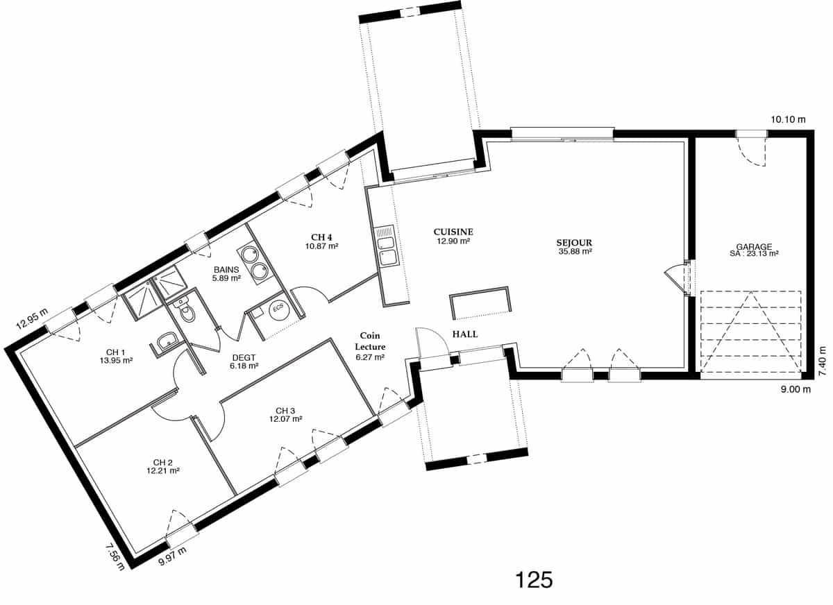
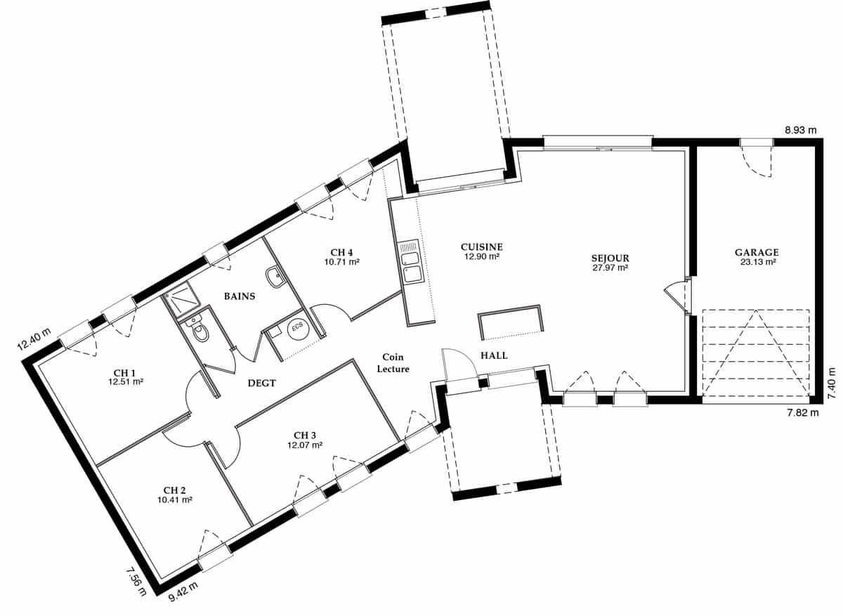
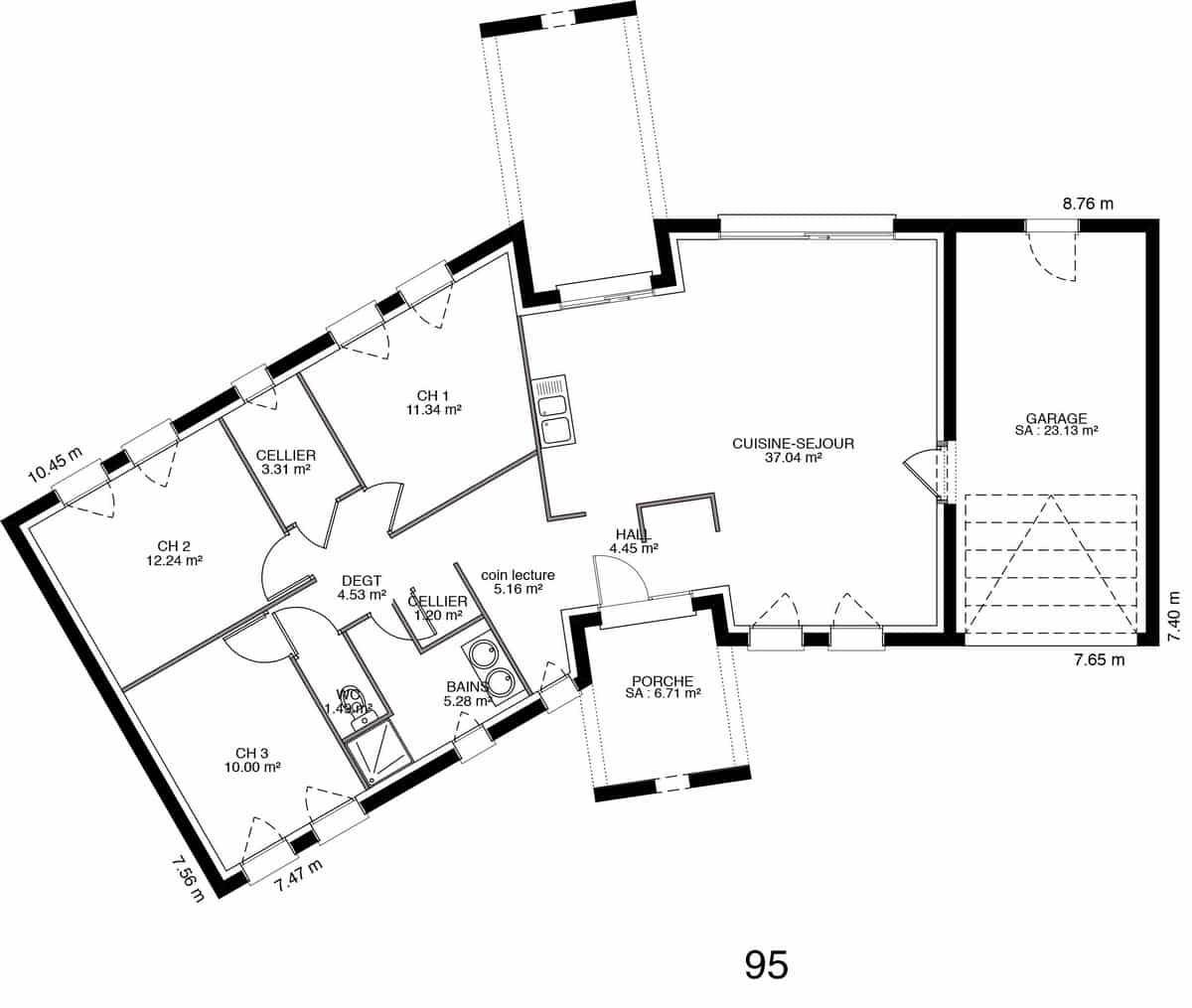
Avec une surface de 95 m², cette maison contemporaine de plain-pied est idéale pour les familles à la recherche de confort et de modernité. Déclinable en plusieurs versions, le modèle Vertium s'adapte parfaitement aux différents modes de vie et compositions familiales.
Bâtie en deux ailes avec un porche de chaque côté, cette habitation évoque la forme du papillon grâce à son plan en V. Dans l’une des ailes se trouvent trois chambres et une salle d’eau, toutes disposées autour d’un dégagement. L’autre aile abrite un vaste séjour-cuisine avec hall d’entrée, et le garage intégré à son extrémité.
Les options les plus demandées par nos clients incluent une terrasse bétonnée, un plancher chauffant et des menuiseries en aluminium, offrant ainsi un confort optimal et une esthétique moderne.
Cette maison neuve est basse consommation et conforme à la RE2020, garantissant des performances énergétiques exceptionnelles et un respect de l’environnement.
Le constructeur, Maisons Privat, est un acteur centenaire reconnu pour la qualité de ses réalisations et bénéficie des meilleurs avis clients de la région.
Ne manquez pas cette opportunité unique de devenir propriétaire d’une maison Vertium, alliant design contemporain et fonctionnalité. Contactez-nous dès aujourd’hui pour plus d’informations et pour planifier une visite.
Logement susceptibles de vous intéresser
Nous vous proposons de découvrir aussi cette sélection de logements situés à moins de 10km de La Bernerie-en-Retz et qui seraient susceptibles de vous intéresser.
Chauvé
TERRAINPrix : 53000 €.Sur ce terrain de 250 m² à CHAUVE, Alliance Construction vous propose de réaliser votre projet de construction de maison individuelle.Avec Alliance Construction, habitez une maison spécialement pensée et conçue pour vous et votre famille, prête à décorer, adaptée à vos modes de vie, personnalisée selon vos goûts grâce à un large choix d'options, de matériaux et d'innovations ! Demandez une étude gratuite et personnalisée de votre projet de construction sur ce terrain à CHAUVE !Contactez Laurent LASSIMONNE au (Numéro supprimé) (Alliance Construction – Agence de Vallet).Prix hors frais de notaire. Terrain sélectionné par ALLIANCE auprès de nos partenaires fonciers, selon disponibilité, pour la construction d'une maison neuve. Non mandaté pour réaliser la vente (loi du 2 janvier 1970 n°70-9). Visuels non contractuels. Voir détails en agence.Cette annonce a été créée et diffusée avec le logiciel VITAHOME.
Pornic
TERRAINVotre projet de maison prend vie à Pornic ! Ce terrain hors lotissement vous offre la possibilité de créer votre havre de paix. Situé à 3 mn du lycée, école à proximité et à seulement 5 minutes des plages, il bénéficie d'un emplacement idéal pour toute la famille. Calme et verdoyant, il vous permettra de profiter pleinement de la nature tout en étant proche de toutes les commodités.Prix : 179500 €.Sur ce terrain de 693 m² à PORNIC, Alliance Construction vous propose de réaliser votre projet de construction de maison individuelle.Avec Alliance Construction, habitez une maison spécialement pensée et conçue pour vous et votre famille, prête à décorer, adaptée à vos modes de vie, personnalisée selon vos goûts grâce à un large choix d'options, de matériaux et d'innovations ! Demandez une étude gratuite et personnalisée de votre projet de construction sur ce terrain à PORNIC !Contactez Thierry MONLEZUN au (Numéro supprimé) (Alliance Construction – Agence de Nantes Aubinière).Prix hors frais de notaire. Terrain sélectionné par ALLIANCE auprès de nos partenaires fonciers, selon disponibilité, pour la construction d'une maison neuve. Non mandaté pour réaliser la vente (loi du 2 janvier 1970 n°70-9). Visuels non contractuels. Voir détails en agence.Cette annonce a été créée et diffusée avec le logiciel VITAHOME.
Pornic
TERRAINVotre projet de maison prend vie à Pornic ! Ce terrain hors lotissement vous offre la possibilité de créer votre havre de paix. Situé à seulement 1 km des plages et à 2 minutes des commerces, il bénéficie d'un emplacement idéal pour allier tranquillité et praticité.Prix : 194500 €.Sur ce terrain de 347 m² à PORNIC, Alliance Construction vous propose de réaliser votre projet de construction de maison individuelle.Avec Alliance Construction, habitez une maison spécialement pensée et conçue pour vous et votre famille, prête à décorer, adaptée à vos modes de vie, personnalisée selon vos goûts grâce à un large choix d'options, de matériaux et d'innovations ! Demandez une étude gratuite et personnalisée de votre projet de construction sur ce terrain à PORNIC !Contactez Thierry MONLEZUN au (Numéro supprimé) (Alliance Construction – Agence de Nantes Aubinière).Prix hors frais de notaire. Terrain sélectionné par ALLIANCE auprès de nos partenaires fonciers, selon disponibilité, pour la construction d'une maison neuve. Non mandaté pour réaliser la vente (loi du 2 janvier 1970 n°70-9). Visuels non contractuels. Voir détails en agence.Cette annonce a été créée et diffusée avec le logiciel VITAHOME.
Pornic
TERRAINVotre projet de maison prend forme à Pornic ! Ce terrain viabilisé de 745 m² vous offre l'opportunité d'édifier votre future demeure à seulement 5 minutes des plages. Un emplacement idéal pour profiter des joies de la mer et de la douceur de vivre en bord de côte.Prix : 209500 €.Sur ce terrain de 745 m² à PORNIC, Alliance Construction vous propose de réaliser votre projet de construction de maison individuelle.Avec Alliance Construction, habitez une maison spécialement pensée et conçue pour vous et votre famille, prête à décorer, adaptée à vos modes de vie, personnalisée selon vos goûts grâce à un large choix d'options, de matériaux et d'innovations ! Demandez une étude gratuite et personnalisée de votre projet de construction sur ce terrain à PORNIC !Contactez Thierry MONLEZUN au (Numéro supprimé) (Alliance Construction – Agence de Nantes Aubinière).Prix hors frais de notaire. Terrain sélectionné par ALLIANCE auprès de nos partenaires fonciers, selon disponibilité, pour la construction d'une maison neuve. Non mandaté pour réaliser la vente (loi du 2 janvier 1970 n°70-9). Visuels non contractuels. Voir détails en agence.Cette annonce a été créée et diffusée avec le logiciel VITAHOME.
Pornic
TERRAINDécouvrez ce terrain d'exception, niché dans un environnement préservé à Pornic. À proximité immédiate du port et des plages, il vous offre un cadre de vie unique, mêlant le charme de la ville et la douceur de vivre à la campagne. Un lieu idéal pour construire votre maison de famille et profiter des plaisirs de la vie en bord de mer.Prix : 245900 €.Sur ce terrain de 382 m² à PORNIC, Alliance Construction vous propose de réaliser votre projet de construction de maison individuelle.Avec Alliance Construction, habitez une maison spécialement pensée et conçue pour vous et votre famille, prête à décorer, adaptée à vos modes de vie, personnalisée selon vos goûts grâce à un large choix d'options, de matériaux et d'innovations ! Demandez une étude gratuite et personnalisée de votre projet de construction sur ce terrain à PORNIC !Contactez Thierry MONLEZUN au (Numéro supprimé) (Alliance Construction – Agence de Nantes Aubinière).Prix hors frais de notaire. Terrain sélectionné par ALLIANCE auprès de nos partenaires fonciers, selon disponibilité, pour la construction d'une maison neuve. Non mandaté pour réaliser la vente (loi du 2 janvier 1970 n°70-9). Visuels non contractuels. Voir détails en agence.Cette annonce a été créée et diffusée avec le logiciel VITAHOME.
Pornic
TERRAIN ET MAISONA PORNIC sur un terrain de 326 m², Alliance Construction vous propose de réaliser votre projet de construction de maison individuelle d'une surface de 107.07 m² habitables avec 4 chambres, à partir de 361100€*Informations du terrain : Ce terrain à bâtir, idéalement situé dans une ville dynamique et prisée, est un véritable investissement d'avenir. Profitez d'un cadre de vie exceptionnel, alliant le calme de la nature et la proximité des commodités.Demandez une étude gratuite et personnalisée de votre projet de construction !* Cette offre comprend :- Garanties constructeurs (dommages ouvrage, garantie de prix ferme et définitif, garantie de livraison, responsabilité civile et décennale).- Branchements aux compteurs et accès empierré sur 5m linéaires.Habitez une maison spécialement pensée et conçue pour vous et votre famille, prête à décorer, adaptée à vos modes de vie, personnalisée selon vos goûts grâce à un large choix d'options, de matériaux et d'innovations !Contactez Thierry MONLEZUN au (Numéro supprimé) (Alliance Construction – Agence de Nantes Aubinière).*Prix indicatif pour un projet de construction d'une maison individuelle. Ne sont pas inclus les frais de branchements, raccordements aux réseaux publics, frais d'adaptations, aménagements intérieurs et extérieurs et options. terrain viabilisé, frais de notaire non compris, frais divers non compris. Garanties et assurances obligatoires incluses. Terrain sélectionné par ALLIANCE auprès de nos partenaires fonciers, selon disponibilité, pour la construction d'une maison neuve. Non mandaté pour réaliser la vente (loi du 2 janvier 1970 n°70-9). Visuels non contractuels. Voir détails en agence.Cette annonce a été créée et diffusée avec le logiciel VITAHOME.
Pornic
TERRAIN ET MAISONA PORNIC sur un terrain de 321 m², Alliance Construction vous propose de réaliser votre projet de construction de maison individuelle d'une surface de 88.04 m² habitables avec 3 chambres, à partir de 315500€*Informations du terrain : Vous souhaitez construire votre maison dans un cadre exceptionnel au bord de l’océan ? Ce terrain à bâtir entièrement viabilisé est l’opportunité parfaite pour réaliser votre projet immobilier dans une ville dynamique et prisée.Cette emplacement vous offre une rare opportunité de construire votre maison sur mesure dans un environnement privilégié, tout en profitant de la vie côtière.Pour plus d’informations ou pour organiser une visite, n’hésitez pas à nous contacter.Demandez une étude gratuite et personnalisée de votre projet de construction !* Cette offre comprend :- Garanties constructeurs (dommages ouvrage, garantie de prix ferme et définitif, garantie de livraison, responsabilité civile et décennale).- Branchements aux compteurs et accès empierré sur 5m linéaires.Habitez une maison spécialement pensée et conçue pour vous et votre famille, prête à décorer, adaptée à vos modes de vie, personnalisée selon vos goûts grâce à un large choix d'options, de matériaux et d'innovations !Contactez Thierry MONLEZUN au (Numéro supprimé) (Alliance Construction – Agence de Nantes Aubinière).*Prix indicatif pour un projet de construction d'une maison individuelle. Ne sont pas inclus les frais de branchements, raccordements aux réseaux publics, frais d'adaptations, aménagements intérieurs et extérieurs et options. terrain viabilisé, frais de notaire non compris, frais divers non compris. Garanties et assurances obligatoires incluses. Terrain sélectionné par ALLIANCE auprès de nos partenaires fonciers, selon disponibilité, pour la construction d'une maison neuve. Non mandaté pour réaliser la vente (loi du 2 janvier 1970 n°70-9). Visuels non contractuels. Voir détails en agence.Cette annonce a été créée et diffusée avec le logiciel VITAHOME.
Pornic
TERRAIN ET MAISONA PORNIC sur un terrain de 347 m², Alliance Construction vous propose de réaliser votre projet de construction de maison individuelle d'une surface de 88.04 m² habitables avec 3 chambres, à partir de 363500€*Informations du terrain : Votre projet de maison prend vie à Pornic ! Ce terrain hors lotissement vous offre la possibilité de créer votre havre de paix. Situé à seulement 1 km des plages et à 2 minutes des commerces, il bénéficie d'un emplacement idéal pour allier tranquillité et praticité.Demandez une étude gratuite et personnalisée de votre projet de construction !* Cette offre comprend :- Garanties constructeurs (dommages ouvrage, garantie de prix ferme et définitif, garantie de livraison, responsabilité civile et décennale).- Branchements aux compteurs et accès empierré sur 5m linéaires.Habitez une maison spécialement pensée et conçue pour vous et votre famille, prête à décorer, adaptée à vos modes de vie, personnalisée selon vos goûts grâce à un large choix d'options, de matériaux et d'innovations !Contactez Thierry MONLEZUN au (Numéro supprimé) (Alliance Construction – Agence de Nantes Aubinière).*Prix indicatif pour un projet de construction d'une maison individuelle. Ne sont pas inclus les frais de branchements, raccordements aux réseaux publics, frais d'adaptations, aménagements intérieurs et extérieurs et options. terrain non viabilisé, frais de notaire non compris, frais divers non compris. Garanties et assurances obligatoires incluses. Terrain sélectionné par ALLIANCE auprès de nos partenaires fonciers, selon disponibilité, pour la construction d'une maison neuve. Non mandaté pour réaliser la vente (loi du 2 janvier 1970 n°70-9). Visuels non contractuels. Voir détails en agence.Cette annonce a été créée et diffusée avec le logiciel VITAHOME.
Pornic
TERRAIN ET MAISONA PORNIC sur un terrain de 693 m², Alliance Construction vous propose de réaliser votre projet de construction de maison individuelle d'une surface de 95.07 m² habitables avec 3 chambres, à partir de 358500€*Informations du terrain : Votre projet de maison prend vie à Pornic ! Ce terrain hors lotissement vous offre la possibilité de créer votre havre de paix. Situé à 3 mn du lycée, école à proximité et à seulement 5 minutes des plages, il bénéficie d'un emplacement idéal pour toute la famille. Calme et verdoyant, il vous permettra de profiter pleinement de la nature tout en étant proche de toutes les commodités.Demandez une étude gratuite et personnalisée de votre projet de construction !* Cette offre comprend :- Garanties constructeurs (dommages ouvrage, garantie de prix ferme et définitif, garantie de livraison, responsabilité civile et décennale).- Branchements aux compteurs et accès empierré sur 5m linéaires.Habitez une maison spécialement pensée et conçue pour vous et votre famille, prête à décorer, adaptée à vos modes de vie, personnalisée selon vos goûts grâce à un large choix d'options, de matériaux et d'innovations !Contactez Thierry MONLEZUN au (Numéro supprimé) (Alliance Construction – Agence de Nantes Aubinière).*Prix indicatif pour un projet de construction d'une maison individuelle. Ne sont pas inclus les frais de branchements, raccordements aux réseaux publics, frais d'adaptations, aménagements intérieurs et extérieurs et options. terrain non viabilisé, frais de notaire non compris, frais divers non compris. Garanties et assurances obligatoires incluses. Terrain sélectionné par ALLIANCE auprès de nos partenaires fonciers, selon disponibilité, pour la construction d'une maison neuve. Non mandaté pour réaliser la vente (loi du 2 janvier 1970 n°70-9). Visuels non contractuels. Voir détails en agence.Cette annonce a été créée et diffusée avec le logiciel VITAHOME.
L’actualité immobilière à La Bernerie-en-Retz
27/11/2023
02/11/2023
30/10/2023
20/10/2023
16/10/2023
16/10/2023