Maison à construire à La Bernerie-en-Retz (44760)
Images
Description
VENTE : maison de 4 pièces (84 m²) à La Bernerie-en-Retz
MAISON 4 PIÈCES NEUVE - PROCHE DE SAINT-NAZAIRE
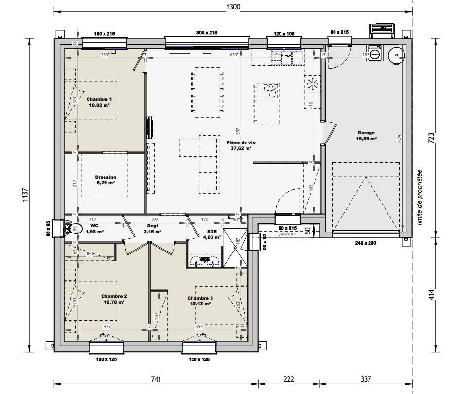
Sur le littoral atlantique et à quelques kilomètres de Saint-Nazaire, en vente à La Bernerie-en-Retz (44760), laissez vous charmer par cette maison de 4 pièces de plain-pied de 84 m² et de 4 376 m² de terrain. Son intérieur comporte trois chambres, une cuisine et une salle de bains.
La maison est neuve.
Il y a l'École Primaire Publique René-Guy Cadou à moins de 10 minutes . Niveau transports en commun, on trouve la gare La Bernerie-en-Retz juste à côté. Il y a un tennis, un port de plaisance, une bibliothèque, un bassin de natation, des commerces, deux boulangeries, un supermarché, un bureau de poste et une boucherie-charcuterie à proximité de la maison.
Elle est à vendre pour la somme de 366 000 €.
Contactez notre agence (COUCHAUX Vincent : (Numéro supprimé)) pour plus d'informations sur cette maison. Maisons Tradilignes Pornic vous accompagne dans tous vos projets immobiliers et à toutes les étapes de l'achat.
Logement susceptibles de vous intéresser
Nous vous proposons de découvrir aussi cette sélection de logements situés à moins de 10km de La Bernerie-en-Retz et qui seraient susceptibles de vous intéresser.
Pornic
TERRAIN ET MAISONA PORNIC sur un terrain de 326 m², Alliance Construction vous propose de réaliser votre projet de construction de maison individuelle d'une surface de 107.07 m² habitables avec 4 chambres, à partir de 361100€*Informations du terrain : Ce terrain à bâtir, idéalement situé dans une ville dynamique et prisée, est un véritable investissement d'avenir. Profitez d'un cadre de vie exceptionnel, alliant le calme de la nature et la proximité des commodités.Demandez une étude gratuite et personnalisée de votre projet de construction !* Cette offre comprend :- Garanties constructeurs (dommages ouvrage, garantie de prix ferme et définitif, garantie de livraison, responsabilité civile et décennale).- Branchements aux compteurs et accès empierré sur 5m linéaires.Habitez une maison spécialement pensée et conçue pour vous et votre famille, prête à décorer, adaptée à vos modes de vie, personnalisée selon vos goûts grâce à un large choix d'options, de matériaux et d'innovations !Contactez Thierry MONLEZUN au (Numéro supprimé) (Alliance Construction – Agence de Nantes Aubinière).*Prix indicatif pour un projet de construction d'une maison individuelle. Ne sont pas inclus les frais de branchements, raccordements aux réseaux publics, frais d'adaptations, aménagements intérieurs et extérieurs et options. terrain viabilisé, frais de notaire non compris, frais divers non compris. Garanties et assurances obligatoires incluses. Terrain sélectionné par ALLIANCE auprès de nos partenaires fonciers, selon disponibilité, pour la construction d'une maison neuve. Non mandaté pour réaliser la vente (loi du 2 janvier 1970 n°70-9). Visuels non contractuels. Voir détails en agence.Cette annonce a été créée et diffusée avec le logiciel VITAHOME.
Pornic
TERRAINVotre projet de maison prend vie à Pornic ! Ce terrain hors lotissement vous offre la possibilité de créer votre havre de paix. Situé à 3 mn du lycée, école à proximité et à seulement 5 minutes des plages, il bénéficie d'un emplacement idéal pour toute la famille. Calme et verdoyant, il vous permettra de profiter pleinement de la nature tout en étant proche de toutes les commodités.Prix : 179500 €.Sur ce terrain de 693 m² à PORNIC, Alliance Construction vous propose de réaliser votre projet de construction de maison individuelle.Avec Alliance Construction, habitez une maison spécialement pensée et conçue pour vous et votre famille, prête à décorer, adaptée à vos modes de vie, personnalisée selon vos goûts grâce à un large choix d'options, de matériaux et d'innovations ! Demandez une étude gratuite et personnalisée de votre projet de construction sur ce terrain à PORNIC !Contactez Thierry MONLEZUN au (Numéro supprimé) (Alliance Construction – Agence de Nantes Aubinière).Prix hors frais de notaire. Terrain sélectionné par ALLIANCE auprès de nos partenaires fonciers, selon disponibilité, pour la construction d'une maison neuve. Non mandaté pour réaliser la vente (loi du 2 janvier 1970 n°70-9). Visuels non contractuels. Voir détails en agence.Cette annonce a été créée et diffusée avec le logiciel VITAHOME.
Pornic
TERRAINCe terrain à bâtir, idéalement situé dans une ville dynamique et prisée, est un véritable investissement d'avenir. Profitez d'un cadre de vie exceptionnel, alliant le calme de la nature et la proximité des commodités.Prix : 146900 €.Sur ce terrain de 326 m² à PORNIC, Alliance Construction vous propose de réaliser votre projet de construction de maison individuelle.Avec Alliance Construction, habitez une maison spécialement pensée et conçue pour vous et votre famille, prête à décorer, adaptée à vos modes de vie, personnalisée selon vos goûts grâce à un large choix d'options, de matériaux et d'innovations ! Demandez une étude gratuite et personnalisée de votre projet de construction sur ce terrain à PORNIC !Contactez Thierry MONLEZUN au (Numéro supprimé) (Alliance Construction – Agence de Nantes Aubinière).Prix hors frais de notaire. Terrain sélectionné par ALLIANCE auprès de nos partenaires fonciers, selon disponibilité, pour la construction d'une maison neuve. Non mandaté pour réaliser la vente (loi du 2 janvier 1970 n°70-9). Visuels non contractuels. Voir détails en agence.Cette annonce a été créée et diffusée avec le logiciel VITAHOME.
Pornic
TERRAIN ET MAISONA PORNIC sur un terrain de 693 m², Alliance Construction vous propose de réaliser votre projet de construction de maison individuelle d'une surface de 81.98 m² habitables avec 3 chambres, à partir de 328500€*Informations du terrain : Votre projet de maison prend vie à Pornic ! Ce terrain hors lotissement vous offre la possibilité de créer votre havre de paix. Situé à 3 mn du lycée, école à proximité et à seulement 5 minutes des plages, il bénéficie d'un emplacement idéal pour toute la famille. Calme et verdoyant, il vous permettra de profiter pleinement de la nature tout en étant proche de toutes les commodités.Demandez une étude gratuite et personnalisée de votre projet de construction !* Cette offre comprend :- Garanties constructeurs (dommages ouvrage, garantie de prix ferme et définitif, garantie de livraison, responsabilité civile et décennale).- Branchements aux compteurs et accès empierré sur 5m linéaires.Habitez une maison spécialement pensée et conçue pour vous et votre famille, prête à décorer, adaptée à vos modes de vie, personnalisée selon vos goûts grâce à un large choix d'options, de matériaux et d'innovations !Contactez Thierry MONLEZUN au (Numéro supprimé) (Alliance Construction – Agence de Nantes Aubinière).*Prix indicatif pour un projet de construction d'une maison individuelle. Ne sont pas inclus les frais de branchements, raccordements aux réseaux publics, frais d'adaptations, aménagements intérieurs et extérieurs et options. terrain non viabilisé, frais de notaire non compris, frais divers non compris. Garanties et assurances obligatoires incluses. Terrain sélectionné par ALLIANCE auprès de nos partenaires fonciers, selon disponibilité, pour la construction d'une maison neuve. Non mandaté pour réaliser la vente (loi du 2 janvier 1970 n°70-9). Visuels non contractuels. Voir détails en agence.Cette annonce a été créée et diffusée avec le logiciel VITAHOME.
Pornic
TERRAINVotre projet de maison prend vie à Pornic ! Ce terrain hors lotissement vous offre la possibilité de créer votre havre de paix. Situé à seulement 1 km des plages et à 2 minutes des commerces, il bénéficie d'un emplacement idéal pour allier tranquillité et praticité.Prix : 194500 €.Sur ce terrain de 347 m² à PORNIC, Alliance Construction vous propose de réaliser votre projet de construction de maison individuelle.Avec Alliance Construction, habitez une maison spécialement pensée et conçue pour vous et votre famille, prête à décorer, adaptée à vos modes de vie, personnalisée selon vos goûts grâce à un large choix d'options, de matériaux et d'innovations ! Demandez une étude gratuite et personnalisée de votre projet de construction sur ce terrain à PORNIC !Contactez Thierry MONLEZUN au (Numéro supprimé) (Alliance Construction – Agence de Nantes Aubinière).Prix hors frais de notaire. Terrain sélectionné par ALLIANCE auprès de nos partenaires fonciers, selon disponibilité, pour la construction d'une maison neuve. Non mandaté pour réaliser la vente (loi du 2 janvier 1970 n°70-9). Visuels non contractuels. Voir détails en agence.Cette annonce a été créée et diffusée avec le logiciel VITAHOME.
Pornic
TERRAIN ET MAISONA PORNIC sur un terrain de 745 m², Alliance Construction vous propose de réaliser votre projet de construction de maison individuelle d'une surface de 106.13 m² habitables avec 4 chambres, à partir de 436900€*Informations du terrain : Votre projet de maison prend forme à Pornic ! Ce terrain viabilisé de 745 m² vous offre l'opportunité d'édifier votre future demeure à seulement 5 minutes des plages. Un emplacement idéal pour profiter des joies de la mer et de la douceur de vivre en bord de côte.Demandez une étude gratuite et personnalisée de votre projet de construction !* Cette offre comprend :- Garanties constructeurs (dommages ouvrage, garantie de prix ferme et définitif, garantie de livraison, responsabilité civile et décennale).- Branchements aux compteurs et accès empierré sur 5m linéaires.Habitez une maison spécialement pensée et conçue pour vous et votre famille, prête à décorer, adaptée à vos modes de vie, personnalisée selon vos goûts grâce à un large choix d'options, de matériaux et d'innovations !Contactez Thierry MONLEZUN au (Numéro supprimé) (Alliance Construction – Agence de Nantes Aubinière).*Prix indicatif pour un projet de construction d'une maison individuelle. Ne sont pas inclus les frais de branchements, raccordements aux réseaux publics, frais d'adaptations, aménagements intérieurs et extérieurs et options. terrain non viabilisé, frais de notaire non compris, frais divers non compris. Garanties et assurances obligatoires incluses. Terrain sélectionné par ALLIANCE auprès de nos partenaires fonciers, selon disponibilité, pour la construction d'une maison neuve. Non mandaté pour réaliser la vente (loi du 2 janvier 1970 n°70-9). Visuels non contractuels. Voir détails en agence.Cette annonce a été créée et diffusée avec le logiciel VITAHOME.
Pornic
TERRAINVous souhaitez construire votre maison dans un cadre exceptionnel au bord de l’océan ? Ce terrain à bâtir entièrement viabilisé est l’opportunité parfaite pour réaliser votre projet immobilier dans une ville dynamique et prisée.Cette emplacement vous offre une rare opportunité de construire votre maison sur mesure dans un environnement privilégié, tout en profitant de la vie côtière.Pour plus d’informations ou pour organiser une visite, n’hésitez pas à nous contacter.Prix : 159500 €.Sur ce terrain de 321 m² à PORNIC, Alliance Construction vous propose de réaliser votre projet de construction de maison individuelle.Avec Alliance Construction, habitez une maison spécialement pensée et conçue pour vous et votre famille, prête à décorer, adaptée à vos modes de vie, personnalisée selon vos goûts grâce à un large choix d'options, de matériaux et d'innovations ! Demandez une étude gratuite et personnalisée de votre projet de construction sur ce terrain à PORNIC !Contactez Thierry MONLEZUN au (Numéro supprimé) (Alliance Construction – Agence de Nantes Aubinière).Prix hors frais de notaire. Terrain sélectionné par ALLIANCE auprès de nos partenaires fonciers, selon disponibilité, pour la construction d'une maison neuve. Non mandaté pour réaliser la vente (loi du 2 janvier 1970 n°70-9). Visuels non contractuels. Voir détails en agence.Cette annonce a été créée et diffusée avec le logiciel VITAHOME.
Pornic
TERRAIN ET MAISONA PORNIC sur un terrain de 745 m², Alliance Construction vous propose de réaliser votre projet de construction de maison individuelle d'une surface de 98.02 m² habitables avec 3 chambres, à partir de 399000€*Informations du terrain : Votre projet de maison prend forme à Pornic ! Ce terrain viabilisé de 745 m² vous offre l'opportunité d'édifier votre future demeure à seulement 5 minutes des plages. Un emplacement idéal pour profiter des joies de la mer et de la douceur de vivre en bord de côte.Demandez une étude gratuite et personnalisée de votre projet de construction !* Cette offre comprend :- Garanties constructeurs (dommages ouvrage, garantie de prix ferme et définitif, garantie de livraison, responsabilité civile et décennale).- Branchements aux compteurs et accès empierré sur 5m linéaires.Habitez une maison spécialement pensée et conçue pour vous et votre famille, prête à décorer, adaptée à vos modes de vie, personnalisée selon vos goûts grâce à un large choix d'options, de matériaux et d'innovations !Contactez Thierry MONLEZUN au (Numéro supprimé) (Alliance Construction – Agence de Nantes Aubinière).*Prix indicatif pour un projet de construction d'une maison individuelle. Ne sont pas inclus les frais de branchements, raccordements aux réseaux publics, frais d'adaptations, aménagements intérieurs et extérieurs et options. terrain non viabilisé, frais de notaire non compris, frais divers non compris. Garanties et assurances obligatoires incluses. Terrain sélectionné par ALLIANCE auprès de nos partenaires fonciers, selon disponibilité, pour la construction d'une maison neuve. Non mandaté pour réaliser la vente (loi du 2 janvier 1970 n°70-9). Visuels non contractuels. Voir détails en agence.Cette annonce a été créée et diffusée avec le logiciel VITAHOME.
Pornic
TERRAIN ET MAISONA PORNIC sur un terrain de 382 m², Alliance Construction vous propose de réaliser votre projet de construction de maison individuelle d'une surface de 92.96 m² habitables avec 3 chambres, à partir de 426500€*Informations du terrain : Découvrez ce terrain d'exception, niché dans un environnement préservé à Pornic. À proximité immédiate du port et des plages, il vous offre un cadre de vie unique, mêlant le charme de la ville et la douceur de vivre à la campagne. Un lieu idéal pour construire votre maison de famille et profiter des plaisirs de la vie en bord de mer.Demandez une étude gratuite et personnalisée de votre projet de construction !* Cette offre comprend :- Garanties constructeurs (dommages ouvrage, garantie de prix ferme et définitif, garantie de livraison, responsabilité civile et décennale).- Branchements aux compteurs et accès empierré sur 5m linéaires.Habitez une maison spécialement pensée et conçue pour vous et votre famille, prête à décorer, adaptée à vos modes de vie, personnalisée selon vos goûts grâce à un large choix d'options, de matériaux et d'innovations !Contactez Thierry MONLEZUN au (Numéro supprimé) (Alliance Construction – Agence de Nantes Aubinière).*Prix indicatif pour un projet de construction d'une maison individuelle. Ne sont pas inclus les frais de branchements, raccordements aux réseaux publics, frais d'adaptations, aménagements intérieurs et extérieurs et options. terrain non viabilisé, frais de notaire non compris, frais divers non compris. Garanties et assurances obligatoires incluses. Terrain sélectionné par ALLIANCE auprès de nos partenaires fonciers, selon disponibilité, pour la construction d'une maison neuve. Non mandaté pour réaliser la vente (loi du 2 janvier 1970 n°70-9). Visuels non contractuels. Voir détails en agence.Cette annonce a été créée et diffusée avec le logiciel VITAHOME.
L’actualité immobilière à La Bernerie-en-Retz
27/11/2023
02/11/2023
30/10/2023
20/10/2023
16/10/2023
16/10/2023