Maison à construire à La Chapelle-des-Marais (44410)
Images
Description
VENTE : maison de 6 pièces (140 m²) à La Chapelle-des-Marais
IDÉALEMENT SITUÉE - MAISON 6 PIÈCES NEUVE
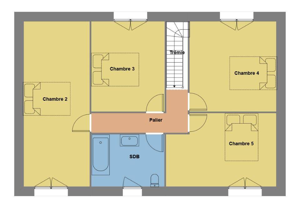
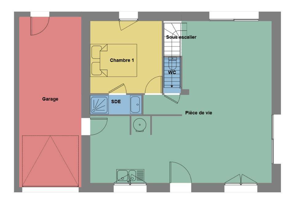
À 15 km de la côte atlantique et à deux pas de Saint-Nazaire, notre agence Maisons de l'Avenir Orvault est ravie de vous présenter cette maison de 6 pièces de 140 m² et de 698 m² de terrain à vendre idéalement située dans La Chapelle-des-Marais (44410). Son intérieur comporte cinq chambres, une cuisine et deux salles de bains.
C'est une maison de 2 niveaux. Elle est neuve.
Cette maison se situe dans un secteur attractif. Il y a l'École Primaire Privée Sainte Marie et l'École Primaire Publique les Fifendes à moins de 10 minutes à pied et deux crèches. La nationale N165 est accessible à 6 km. On trouve deux boulangeries, trois commerces, un supermarché, un bureau de poste et une boucherie-charcuterie dans les environs.
Son prix de vente est de 329 000 €.
Contactez Jean-Baptiste ((Numéro supprimé)) pour toute information sur la maison, sur les modalités de vente ou sur les démarches à suivre. Maisons de l'Avenir Orvault vous accompagne à toutes les étapes de votre projet et dans tous vos projets immobiliers.
Logement susceptibles de vous intéresser
Nous vous proposons de découvrir aussi cette sélection de logements situés à moins de 10km de La Chapelle-des-Marais et qui seraient susceptibles de vous intéresser.
Férel
TERRAIN ET MAISONA FEREL sur un terrain de 665 m², Alliance Construction vous propose de réaliser votre projet de construction de maison individuelle d'une surface de 89 m² habitables avec 3 chambres, à partir de 295000€*Informations du terrain : UNE EXCLUSIVITE ALLIANCE CONSTRUCTION AU PORTES DE FERELSitué dans un cadre environnemental très agréable, de par son calme (en impasse) et sa proximité avec les commodités (centre bourg de Férel à 1 km – premières plages à seulement 12 minutes de route), ce terrain est idéal pour accueillir votre future maison.Demandez une étude gratuite et personnalisée de votre projet de construction !* Cette offre comprend :- Garanties constructeurs (dommages ouvrage, garantie de prix ferme et définitif, garantie de livraison, responsabilité civile et décennale).- Branchements aux compteurs et accès empierré sur 5m linéaires.Habitez une maison spécialement pensée et conçue pour vous et votre famille, prête à décorer, adaptée à vos modes de vie, personnalisée selon vos goûts grâce à un large choix d'options, de matériaux et d'innovations !Contactez Benoit COCHIN au (Numéro supprimé) (Alliance Construction – Agence de Pontchâteau).*Prix indicatif pour un projet de construction d'une maison individuelle. Ne sont pas inclus les frais de branchements, raccordements aux réseaux publics, frais d'adaptations, aménagements intérieurs et extérieurs et options. viabilisation comprise, frais de notaire non compris, frais divers non compris. Garanties et assurances obligatoires incluses. Terrain sélectionné par ALLIANCE auprès de nos partenaires fonciers, selon disponibilité, pour la construction d'une maison neuve. Non mandaté pour réaliser la vente (loi du 2 janvier 1970 n°70-9). Visuels non contractuels. Voir détails en agence.Cette annonce a été créée et diffusée avec le logiciel VITAHOME.
Missillac
TERRAIN ET MAISONA MISSILLAC sur un terrain de 1290 m², Alliance Construction vous propose de réaliser votre projet de construction de maison individuelle d'une surface de 99 m² habitables avec 3 chambres, à partir de 297500€*Informations du terrain : Faites construire votre future maison ALLIANCE sur ce magnifique terrain de 1000 m² qui vous offrira le calme de la campagne, tout en restant à une distance très confortable de toutes les commodités nécessaires du quotidien :- Bourg de Missillac à 7 minutes- Bourg de Pontchâteau à 13 minutes- Saint-Nazaire à 36 km- Premières plage à 30 minutesNous vous proposons d'y construire votre maison sur-mesure, adaptée à vos besoins et vos envies. Contactez-nous sans plus attendre !Demandez une étude gratuite et personnalisée de votre projet de construction !* Cette offre comprend :- Garanties constructeurs (dommages ouvrage, garantie de prix ferme et définitif, garantie de livraison, responsabilité civile et décennale).- Branchements aux compteurs et accès empierré sur 5m linéaires.Habitez une maison spécialement pensée et conçue pour vous et votre famille, prête à décorer, adaptée à vos modes de vie, personnalisée selon vos goûts grâce à un large choix d'options, de matériaux et d'innovations !Contactez Benoit COCHIN au (Numéro supprimé) (Alliance Construction – Agence de Pontchâteau).*Prix indicatif pour un projet de construction d'une maison individuelle. Ne sont pas inclus les frais de branchements, raccordements aux réseaux publics, frais d'adaptations, aménagements intérieurs et extérieurs et options. viabilisation comprise, frais de notaire non compris, frais divers non compris. Garanties et assurances obligatoires incluses. Terrain sélectionné par ALLIANCE auprès de nos partenaires fonciers, selon disponibilité, pour la construction d'une maison neuve. Non mandaté pour réaliser la vente (loi du 2 janvier 1970 n°70-9). Visuels non contractuels. Voir détails en agence.Cette annonce a été créée et diffusée avec le logiciel VITAHOME.
Sainte-Reine-de-Bretagne
TERRAIN ET MAISONA SAINTE-REINE-DE-BRETAGNE sur un terrain de 656 m², Alliance Construction vous propose de réaliser votre projet de construction de maison individuelle d'une surface de 77.93 m² habitables avec 3 chambres, à partir de 244500€*Informations du terrain : Situé dans le centre bourg de sainte-reine-de-bretagne et bien exposé, ce terrain, au calme d'une impasse, est idéal pour accueillir votre future maison.Terrain vendu entièrement viabilisé.Demandez une étude gratuite et personnalisée de votre projet de construction !* Cette offre comprend :- Garanties constructeurs (dommages ouvrage, garantie de prix ferme et définitif, garantie de livraison, responsabilité civile et décennale).- Branchements aux compteurs et accès empierré sur 5m linéaires.Habitez une maison spécialement pensée et conçue pour vous et votre famille, prête à décorer, adaptée à vos modes de vie, personnalisée selon vos goûts grâce à un large choix d'options, de matériaux et d'innovations !Contactez Benoit COCHIN au (Numéro supprimé) (Alliance Construction – Agence de Pontchâteau).*Prix indicatif pour un projet de construction d'une maison individuelle. Ne sont pas inclus les frais de branchements, raccordements aux réseaux publics, frais d'adaptations, aménagements intérieurs et extérieurs et options. terrain viabilisé, frais de notaire non compris, frais divers non compris. Garanties et assurances obligatoires incluses. Terrain sélectionné par ALLIANCE auprès de nos partenaires fonciers, selon disponibilité, pour la construction d'une maison neuve. Non mandaté pour réaliser la vente (loi du 2 janvier 1970 n°70-9). Visuels non contractuels. Voir détails en agence.Cette annonce a été créée et diffusée avec le logiciel VITAHOME.
Crossac
TERRAIN ET MAISONA CROSSAC sur un terrain de 977 m², Alliance Construction vous propose de réaliser votre projet de construction de maison individuelle d'une surface de 88.04 m² habitables avec 3 chambres, à partir de 250000€*Informations du terrain : Très belle parcelle bénéficiant de la vue et du calme de la campagne.Assainissement autonome à prévoir.Demandez une étude gratuite et personnalisée de votre projet de construction !* Cette offre comprend :- Garanties constructeurs (dommages ouvrage, garantie de prix ferme et définitif, garantie de livraison, responsabilité civile et décennale).- Branchements aux compteurs et accès empierré sur 5m linéaires.Habitez une maison spécialement pensée et conçue pour vous et votre famille, prête à décorer, adaptée à vos modes de vie, personnalisée selon vos goûts grâce à un large choix d'options, de matériaux et d'innovations !Contactez Benoit COCHIN au (Numéro supprimé) (Alliance Construction – Agence de Pontchâteau).*Prix indicatif pour un projet de construction d'une maison individuelle. Ne sont pas inclus les frais de branchements, raccordements aux réseaux publics, frais d'adaptations, aménagements intérieurs et extérieurs et options. viabilisation comprise, frais de notaire non compris, frais divers non compris. Garanties et assurances obligatoires incluses. Terrain sélectionné par ALLIANCE auprès de nos partenaires fonciers, selon disponibilité, pour la construction d'une maison neuve. Non mandaté pour réaliser la vente (loi du 2 janvier 1970 n°70-9). Visuels non contractuels. Voir détails en agence.Cette annonce a été créée et diffusée avec le logiciel VITAHOME.
Férel
TERRAINUNE EXCLUSIVITE ALLIANCE CONSTRUCTION AU PORTES DE FERELSitué dans un cadre environnemental très agréable, de par son calme (en impasse) et sa proximité avec les commodités (centre bourg de Férel à 1 km – premières plages à seulement 12 minutes de route), ce terrain est idéal pour accueillir votre future maison.Prix : 95000 €.Sur ce terrain de 665 m² à FEREL, Alliance Construction vous propose de réaliser votre projet de construction de maison individuelle.Avec Alliance Construction, habitez une maison spécialement pensée et conçue pour vous et votre famille, prête à décorer, adaptée à vos modes de vie, personnalisée selon vos goûts grâce à un large choix d'options, de matériaux et d'innovations ! Demandez une étude gratuite et personnalisée de votre projet de construction sur ce terrain à FEREL !Contactez Benoit COCHIN au (Numéro supprimé) (Alliance Construction – Agence de Pontchâteau).Prix hors frais de notaire. Terrain sélectionné par ALLIANCE auprès de nos partenaires fonciers, selon disponibilité, pour la construction d'une maison neuve. Non mandaté pour réaliser la vente (loi du 2 janvier 1970 n°70-9). Visuels non contractuels. Voir détails en agence.Cette annonce a été créée et diffusée avec le logiciel VITAHOME.
Saint-Lyphard
TERRAINIdéalement situé à mi-distance entre Saint-Lyphard et Guérande, ce terrain de 340 m² vous offrira un cadre de vie d'exception, profitant au quotidien du parc naturel régional de Brière, de la proximité avec toutes les commodités et des premières plages à seulement 15 km.Prix : 86000 €.Sur ce terrain de 340 m² à SAINT-LYPHARD, Alliance Construction vous propose de réaliser votre projet de construction de maison individuelle.Avec Alliance Construction, habitez une maison spécialement pensée et conçue pour vous et votre famille, prête à décorer, adaptée à vos modes de vie, personnalisée selon vos goûts grâce à un large choix d'options, de matériaux et d'innovations ! Demandez une étude gratuite et personnalisée de votre projet de construction sur ce terrain à SAINT-LYPHARD !Contactez Benoit COCHIN au (Numéro supprimé) (Alliance Construction – Agence de Pontchâteau).Prix hors frais de notaire. Terrain sélectionné par ALLIANCE auprès de nos partenaires fonciers, selon disponibilité, pour la construction d'une maison neuve. Non mandaté pour réaliser la vente (loi du 2 janvier 1970 n°70-9). Visuels non contractuels. Voir détails en agence.Cette annonce a été créée et diffusée avec le logiciel VITAHOME.
Sainte-Reine-de-Bretagne
TERRAINSitué dans le centre bourg de sainte-reine-de-bretagne et bien exposé, ce terrain, au calme d'une impasse, est idéal pour accueillir votre future maison.Terrain vendu entièrement viabilisé.Prix : 82000 €.Sur ce terrain de 656 m² à SAINTE-REINE-DE-BRETAGNE, Alliance Construction vous propose de réaliser votre projet de construction de maison individuelle.Avec Alliance Construction, habitez une maison spécialement pensée et conçue pour vous et votre famille, prête à décorer, adaptée à vos modes de vie, personnalisée selon vos goûts grâce à un large choix d'options, de matériaux et d'innovations ! Demandez une étude gratuite et personnalisée de votre projet de construction sur ce terrain à SAINTE-REINE-DE-BRETAGNE !Contactez Benoit COCHIN au (Numéro supprimé) (Alliance Construction – Agence de Pontchâteau).Prix hors frais de notaire. Terrain sélectionné par ALLIANCE auprès de nos partenaires fonciers, selon disponibilité, pour la construction d'une maison neuve. Non mandaté pour réaliser la vente (loi du 2 janvier 1970 n°70-9). Visuels non contractuels. Voir détails en agence.Cette annonce a été créée et diffusée avec le logiciel VITAHOME.
Missillac
TERRAINFaites construire votre future maison ALLIANCE sur ce magnifique terrain de 1000 m² qui vous offrira le calme de la campagne, tout en restant à une distance très confortable de toutes les commodités nécessaires du quotidien :- Bourg de Missillac à 7 minutes- Bourg de Pontchâteau à 13 minutes- Saint-Nazaire à 36 km- Premières plage à 30 minutesNous vous proposons d'y construire votre maison sur-mesure, adaptée à vos besoins et vos envies. Contactez-nous sans plus attendre !Prix : 62500 €.Sur ce terrain de 1290 m² à MISSILLAC, Alliance Construction vous propose de réaliser votre projet de construction de maison individuelle.Avec Alliance Construction, habitez une maison spécialement pensée et conçue pour vous et votre famille, prête à décorer, adaptée à vos modes de vie, personnalisée selon vos goûts grâce à un large choix d'options, de matériaux et d'innovations ! Demandez une étude gratuite et personnalisée de votre projet de construction sur ce terrain à MISSILLAC !Contactez Benoit COCHIN au (Numéro supprimé) (Alliance Construction – Agence de Pontchâteau).Prix hors frais de notaire. Terrain sélectionné par ALLIANCE auprès de nos partenaires fonciers, selon disponibilité, pour la construction d'une maison neuve. Non mandaté pour réaliser la vente (loi du 2 janvier 1970 n°70-9). Visuels non contractuels. Voir détails en agence.Cette annonce a été créée et diffusée avec le logiciel VITAHOME.
Crossac
TERRAIN ET MAISONA CROSSAC sur un terrain de 977 m², Alliance Construction vous propose de réaliser votre projet de construction de maison individuelle d'une surface de 71.3 m² habitables avec 2 chambres, à partir de 227641€*Informations du terrain : Très belle parcelle bénéficiant de la vue et du calme de la campagne.Assainissement autonome à prévoir.Demandez une étude gratuite et personnalisée de votre projet de construction !* Cette offre comprend :- Garanties constructeurs (dommages ouvrage, garantie de prix ferme et définitif, garantie de livraison, responsabilité civile et décennale).- Branchements aux compteurs et accès empierré sur 5m linéaires.Habitez une maison spécialement pensée et conçue pour vous et votre famille, prête à décorer, adaptée à vos modes de vie, personnalisée selon vos goûts grâce à un large choix d'options, de matériaux et d'innovations !Contactez Benoit COCHIN au (Numéro supprimé) (Alliance Construction – Agence de Pontchâteau).*Prix indicatif pour un projet de construction d'une maison individuelle. Ne sont pas inclus les frais de branchements, raccordements aux réseaux publics, frais d'adaptations, aménagements intérieurs et extérieurs et options. viabilisation comprise, frais de notaire non compris, frais divers non compris. Garanties et assurances obligatoires incluses. Terrain sélectionné par ALLIANCE auprès de nos partenaires fonciers, selon disponibilité, pour la construction d'une maison neuve. Non mandaté pour réaliser la vente (loi du 2 janvier 1970 n°70-9). Visuels non contractuels. Voir détails en agence.Cette annonce a été créée et diffusée avec le logiciel VITAHOME.
L’actualité immobilière à La Chapelle-des-Marais
27/11/2023
02/11/2023
30/10/2023
20/10/2023
16/10/2023
16/10/2023