Maison à construire à La Limouzinière (44310)
Images
Description
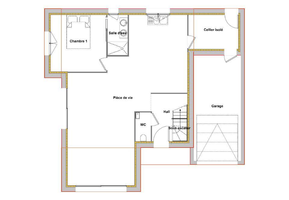
VENTE d'une maison de 4 pièces (100 m²) à La Limouzinière
IDÉALEMENT SITUÉE - MAISON 4 PIÈCES NEUVE
À vendre : à 28 km de l'océan Atlantique et à deux pas de Nantes, idéalement située dans La Limouzinière (44310), venez découvrir cette maison de 4 pièces de 100 m².
Cette maison possède 2 niveaux. Son intérieur propose quatre chambres, une cuisine et deux salles de bains. La maison est neuve.
Le terrain du bien s'étend sur 663 m².
Cette propriété est située dans un secteur recherché. On trouve l'École Primaire Publique Gaston Chaissac et l'École Primaire Privée Saint Joseph à moins de 10 minutes à pied. L'autoroute A83 et la nationale N844 sont accessibles à moins de 19 km. Il y a un tennis et une épicerie à quelques minutes à peine.
Son prix de vente est de 292 700 €.
Contactez notre agence (Pierre Antoine BURILLE : (Numéro supprimé)) pour tout renseignement sur la maison. Maisons de l'Avenir Rezé vous accompagne dans toutes vos démarches et à toutes les étapes de votre projet.
Logement susceptibles de vous intéresser
Nous vous proposons de découvrir aussi cette sélection de logements situés à moins de 10km de La Limouzinière et qui seraient susceptibles de vous intéresser.
Saint-Colomban
TERRAIN ET MAISONA SAINT-COLOMBAN sur un terrain de 289 m², Alliance Construction vous propose de réaliser votre projet de construction de maison individuelle d'une surface de 72.93 m² habitables avec 3 chambres, à partir de 177730€*Demandez une étude gratuite et personnalisée de votre projet de construction !* Cette offre comprend :- Garanties constructeurs (dommages ouvrage, garantie de prix ferme et définitif, garantie de livraison, responsabilité civile et décennale).- Branchements aux compteurs et accès empierré sur 5m linéaires.Habitez une maison spécialement pensée et conçue pour vous et votre famille, prête à décorer, adaptée à vos modes de vie, personnalisée selon vos goûts grâce à un large choix d'options, de matériaux et d'innovations !Contactez Laurent LASSIMONNE au (Numéro supprimé) (Alliance Construction – Agence de Vallet).*Prix indicatif pour un projet de construction d'une maison individuelle. Ne sont pas inclus les frais de branchements, raccordements aux réseaux publics, frais d'adaptations, aménagements intérieurs et extérieurs et options. terrain viabilisé, frais de notaire non compris, frais divers non compris. Garanties et assurances obligatoires incluses. Terrain sélectionné par ALLIANCE auprès de nos partenaires fonciers, selon disponibilité, pour la construction d'une maison neuve. Non mandaté pour réaliser la vente (loi du 2 janvier 1970 n°70-9). Visuels non contractuels. Voir détails en agence.Cette annonce a été créée et diffusée avec le logiciel VITAHOME.
Touvois
TERRAIN ET MAISONA TOUVOIS sur un terrain de 360 m², Alliance Construction vous propose de réaliser votre projet de construction de maison individuelle d'une surface de 67.6 m² habitables avec 2 chambres, à partir de 162241€*Demandez une étude gratuite et personnalisée de votre projet de construction !* Cette offre comprend :- Garanties constructeurs (dommages ouvrage, garantie de prix ferme et définitif, garantie de livraison, responsabilité civile et décennale).- Branchements aux compteurs et accès empierré sur 5m linéaires.Habitez une maison spécialement pensée et conçue pour vous et votre famille, prête à décorer, adaptée à vos modes de vie, personnalisée selon vos goûts grâce à un large choix d'options, de matériaux et d'innovations !Contactez Laurent LASSIMONNE au (Numéro supprimé) (Alliance Construction – Agence de Vallet).*Prix indicatif pour un projet de construction d'une maison individuelle. Ne sont pas inclus les frais de branchements, raccordements aux réseaux publics, frais d'adaptations, aménagements intérieurs et extérieurs et options. terrain viabilisé, frais de notaire non compris, frais divers non compris. Garanties et assurances obligatoires incluses. Terrain sélectionné par ALLIANCE auprès de nos partenaires fonciers, selon disponibilité, pour la construction d'une maison neuve. Non mandaté pour réaliser la vente (loi du 2 janvier 1970 n°70-9). Visuels non contractuels. Voir détails en agence.Cette annonce a été créée et diffusée avec le logiciel VITAHOME.
Saint-Colomban
TERRAINPrix : 50000 €.Sur ce terrain de 289 m² à SAINT-COLOMBAN, Alliance Construction vous propose de réaliser votre projet de construction de maison individuelle.Avec Alliance Construction, habitez une maison spécialement pensée et conçue pour vous et votre famille, prête à décorer, adaptée à vos modes de vie, personnalisée selon vos goûts grâce à un large choix d'options, de matériaux et d'innovations ! Demandez une étude gratuite et personnalisée de votre projet de construction sur ce terrain à SAINT-COLOMBAN !Contactez Laurent LASSIMONNE au (Numéro supprimé) (Alliance Construction – Agence de Vallet).Prix hors frais de notaire. Terrain sélectionné par ALLIANCE auprès de nos partenaires fonciers, selon disponibilité, pour la construction d'une maison neuve. Non mandaté pour réaliser la vente (loi du 2 janvier 1970 n°70-9). Visuels non contractuels. Voir détails en agence.Cette annonce a été créée et diffusée avec le logiciel VITAHOME.
Saint-Philbert-de-Grand-Lieu
TERRAINPrix : 68000 €.Sur ce terrain de 430 m² à SAINT-PHILBERT-DE-GRAND-LIEU, Alliance Construction vous propose de réaliser votre projet de construction de maison individuelle.Avec Alliance Construction, habitez une maison spécialement pensée et conçue pour vous et votre famille, prête à décorer, adaptée à vos modes de vie, personnalisée selon vos goûts grâce à un large choix d'options, de matériaux et d'innovations ! Demandez une étude gratuite et personnalisée de votre projet de construction sur ce terrain à SAINT-PHILBERT-DE-GRAND-LIEU !Contactez Laurent LASSIMONNE au (Numéro supprimé) (Alliance Construction – Agence de Vallet).Prix hors frais de notaire. Terrain sélectionné par ALLIANCE auprès de nos partenaires fonciers, selon disponibilité, pour la construction d'une maison neuve. Non mandaté pour réaliser la vente (loi du 2 janvier 1970 n°70-9). Visuels non contractuels. Voir détails en agence.Cette annonce a été créée et diffusée avec le logiciel VITAHOME.
Touvois
TERRAINPrix : 40000 €.Sur ce terrain de 360 m² à TOUVOIS, Alliance Construction vous propose de réaliser votre projet de construction de maison individuelle.Avec Alliance Construction, habitez une maison spécialement pensée et conçue pour vous et votre famille, prête à décorer, adaptée à vos modes de vie, personnalisée selon vos goûts grâce à un large choix d'options, de matériaux et d'innovations ! Demandez une étude gratuite et personnalisée de votre projet de construction sur ce terrain à TOUVOIS !Contactez Laurent LASSIMONNE au (Numéro supprimé) (Alliance Construction – Agence de Vallet).Prix hors frais de notaire. Terrain sélectionné par ALLIANCE auprès de nos partenaires fonciers, selon disponibilité, pour la construction d'une maison neuve. Non mandaté pour réaliser la vente (loi du 2 janvier 1970 n°70-9). Visuels non contractuels. Voir détails en agence.Cette annonce a été créée et diffusée avec le logiciel VITAHOME.
Saint-Colomban
TERRAINVENTE d’un terrain de 611 m² à Saint-ColombanIDÉALEMENT SITUÉ – PROCHE DE NANTESÀ vendre à 28 km de l’océan Atlantique et à deux pas de Nantes à Saint-Colomban (44310), grand terrain. Ce terrain, avec une exposition sud-ouest, donne sur un bois. Ce terrain est situé dans un secteur recherché. Il y a l’École Primaire Privée Saint Louis et l’École Primaire Publique Jacques Prévert à moins de 10 minutes à pied. L’autoroute A83 et la nationale N844 sont accessibles à moins de 17 km. On trouve un tennis, deux commerces, une boulangerie et une supérette dans les environs.Il est à vendre pour la somme de 86 200 €. N’hésitez pas à prendre contact avec notre agence (BURILLE Pierre Antoine : (Numéro supprimé)) pour toute question sur ce terrain. Maisons de l’Avenir Rezé vous accompagne à toutes les étapes de votre projet et dans toutes vos démarches.
Saint-Colomban
TERRAIN ET MAISONMaison T6 (149 m²) en vente à Saint-ColombanIDÉALEMENT SITUÉE – MAISON 6 PIÈCES NEUVEÀ vendre : à 28 km de l’océan Atlantique et à 24 km de Nantes, idéalement située dans Saint-Colomban (44310), Maisons de l’Avenir Rezé vous présente cette maison de 6 pièces de 149 m² avec vue sur bois.Cette maison comporte 2 niveaux. Son intérieur dispose de cinq chambres, d’une cuisine et de deux salles de bains. La maison est neuve.Le terrain de la propriété s’étend sur 611 m².La maison se trouve dans un quartier attractif. Il y a l’École Primaire Privée Saint Louis et l’École Primaire Publique Jacques Prévert à moins de 10 minutes à pied. L’autoroute A83 et la nationale N844 sont accessibles à moins de 17 km. On trouve un tennis, deux commerces, une boulangerie et une supérette dans les environs.Son prix de vente est de 443 900 €.Prenez contact avec notre agence (Pierre Antoine BURILLE : (Numéro supprimé)) pour obtenir de plus amples informations sur le bien ou sur les modalités de vente.
Saint-Colomban
TERRAIN ET MAISONVENTE d’une maison T4 (70 m²) à Saint-ColombanIDÉALEMENT SITUÉE – MAISON 4 PIÈCES NEUVEEn vente : située à 28 km de la côte atlantique et à 24 km de Nantes, découvrez cette maison de 4 pièces de plain-pied de 70 m² et de 611 m² de terrain idéalement située dans Saint-Colomban (44310).Conçue de plain-pied, elle dispose de trois chambres, d’une cuisine et d’une salle de bains. Cette maison est neuve.La maison se situe dans un quartier recherché. On trouve l’École Primaire Privée Saint Louis et l’École Primaire Publique Jacques Prévert à moins de 10 minutes à pied. L’autoroute A83 et la nationale N844 sont accessibles à moins de 17 km. Il y a un tennis, deux commerces, une boulangerie et une supérette dans les environs.Elle est à vendre pour la somme de 241 800 €.N’hésitez pas à prendre contact avec notre agence (BURILLE Pierre Antoine : (Numéro supprimé)) pour obtenir de plus amples renseignements sur la maison, sur les démarches à suivre ou sur les modalités de vente. Faites de vos projets immobiliers une réalité avec Maisons de l’Avenir Rezé.
Saint-Colomban
TERRAIN ET MAISONVENTE d’une maison de 4 pièces (86 m²) à Saint-ColombanIDÉALEMENT SITUÉE – MAISON 4 PIÈCES NEUVEÀ 28 km de la côte atlantique et à quelques kilomètres de Nantes, votre agence Maisons de l’Avenir Rezé est heureuse de vous proposer en vente, idéalement située dans Saint-Colomban (44310), cette maison de 4 pièces de 86 m² et de 611 m² de terrain. Elle se divise en trois chambres, une cuisine et une salle de bains.C’est une maison de 2 niveaux. Elle est neuve.Cette maison se trouve dans un secteur convoité. Il y a l’École Primaire Privée Saint Louis et l’École Primaire Publique Jacques Prévert à moins de 10 minutes à pied. L’autoroute A83 et la nationale N844 sont accessibles à moins de 17 km. On trouve un tennis, deux commerces, une boulangerie et une supérette à quelques minutes à peine.Elle est à vendre pour la somme de 259 260 €.N’hésitez pas à prendre contact avec notre agence (Pierre Antoine BURILLE : (Numéro supprimé)) pour tout renseignement sur la maison. Maisons de l’Avenir Rezé est là pour vous accompagner à toutes les étapes de votre projet.
L’actualité immobilière à La Limouzinière
27/11/2023
02/11/2023
30/10/2023
20/10/2023
16/10/2023
16/10/2023