Maison à construire à La Plaine-sur-Mer (44770)
Images
Description
La Plaine-sur-Mer : maison F4 (84 m²) en vente
MAISON 4 PIÈCES NEUVE - PROCHE DE SAINT-NAZAIRE
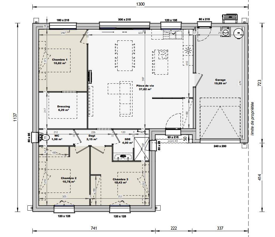
En vente sur la côte atlantique et à quelques kilomètres de Saint-Nazaire, nous sommes ravis de vous proposer cette maison de 4 pièces de plain-pied de 84 m² à La Plaine-sur-Mer (44770).
Conçue de plain-pied, elle dispose de trois chambres, d'une cuisine et d'une salle de bains. Cette maison est neuve.
Le terrain de la propriété est de 756 m².
L'École Primaire Publique René Cercle et l'École Primaire Privée Notre-Dame se trouvent à moins de 10 minutes . Niveau transports en commun, il y a la gare Pornic à moins de 10 minutes en voiture. On trouve un accès à la nationale N171 à 19 km. On trouve un tennis, une bibliothèque, deux boulangeries, trois commerces, un supermarché, une boucherie-charcuterie et un bureau de poste dans les environs.
Elle est proposée à l'achat pour 274 000 €.
N'hésitez pas à prendre contact avec notre agence (COUCHAUX Vincent : (Numéro supprimé)) pour obtenir de plus amples informations sur cette maison, sur les démarches à suivre ou sur les modalités de vente. Donnez vie à vos projets immobiliers avec Maisons Tradilignes Pornic.
Logement susceptibles de vous intéresser
Nous vous proposons de découvrir aussi cette sélection de logements situés à moins de 10km de La Plaine-sur-Mer et qui seraient susceptibles de vous intéresser.
La Plaine-sur-Mer
TERRAIN ET MAISONDans un quartier calme, à proximité de la mer.Faites construire votre maison en ossature bois sur mesure (de plain pied ou à étage).Exemple donné pour une maison de 100m² avec 3 chambres et un garage sur un terrain de 500 m².Labélisée RE2020, nos projets vous apportent confort de vie (été comme hiver) et économie d’énergie grâce à leur conception bioclimatique.Vous souhaitez faire construire une maison bois écologique, unique et moderne ?Venez nous rencontrer pour étudier ensemble un projet à votre image.L’équipe My Lovely NatureContactez-nous au (Numéro supprimé) (My Lovely Nature – Agence de Nantes MLN).*Prix indicatif pour un projet de construction d'une maison individuelle. Ne sont pas inclus les frais de branchements, raccordements aux réseaux publics, frais d'adaptations, aménagements intérieurs et extérieurs et options. viabilisation comprise, frais de notaire compris, frais divers non compris. Garanties et assurances obligatoires incluses. Terrain sélectionné par MY LOVELY NATURE auprès de nos partenaires fonciers, selon disponibilité, pour la construction d'une maison neuve. Non mandaté pour réaliser la vente (loi du 2 janvier 1970 n°70-9). Visuels non contractuels. Voir détails en agence.Cette annonce a été créée et diffusée avec le logiciel VITAHOME.
Saint-Michel-Chef-Chef
TERRAINA deux pas des plages de la Côte de Jade, ce terrain viabilisé vous offre un cadre de vie idéal. Situé dans une ruelle calme et résidentielle, il vous permet de profiter du bord de mer tout en bénéficiant d'un environnement paisible.Prix : 229120 €.Sur ce terrain de 453 m² à SAINT-MICHEL-CHEF-CHEF, Alliance Construction vous propose de réaliser votre projet de construction de maison individuelle.Avec Alliance Construction, habitez une maison spécialement pensée et conçue pour vous et votre famille, prête à décorer, adaptée à vos modes de vie, personnalisée selon vos goûts grâce à un large choix d'options, de matériaux et d'innovations ! Demandez une étude gratuite et personnalisée de votre projet de construction sur ce terrain à SAINT-MICHEL-CHEF-CHEF !Contactez Thierry MONLEZUN au (Numéro supprimé) (Alliance Construction – Agence de Nantes Aubinière).Prix hors frais de notaire. Terrain sélectionné par ALLIANCE auprès de nos partenaires fonciers, selon disponibilité, pour la construction d'une maison neuve. Non mandaté pour réaliser la vente (loi du 2 janvier 1970 n°70-9). Visuels non contractuels. Voir détails en agence.Cette annonce a été créée et diffusée avec le logiciel VITAHOME.
La Plaine-sur-Mer
TERRAINEnvie d'une résidence les pieds dans l'eau ? Ce terrain à bâtir, situé à quelques pas de la plage, est fait pour vous. Construisez votre maison de rêve et profitez des joies de la mer toute l'année.Prix : 163500 €.Sur ce terrain de 500 m² à LA PLAINE-SUR-MER, Alliance Construction vous propose de réaliser votre projet de construction de maison individuelle.Avec Alliance Construction, habitez une maison spécialement pensée et conçue pour vous et votre famille, prête à décorer, adaptée à vos modes de vie, personnalisée selon vos goûts grâce à un large choix d'options, de matériaux et d'innovations ! Demandez une étude gratuite et personnalisée de votre projet de construction sur ce terrain à LA PLAINE-SUR-MER !Contactez Thierry MONLEZUN au (Numéro supprimé) (Alliance Construction – Agence de Nantes Aubinière).Prix hors frais de notaire. Terrain sélectionné par ALLIANCE auprès de nos partenaires fonciers, selon disponibilité, pour la construction d'une maison neuve. Non mandaté pour réaliser la vente (loi du 2 janvier 1970 n°70-9). Visuels non contractuels. Voir détails en agence.Cette annonce a été créée et diffusée avec le logiciel VITAHOME.
La Plaine-sur-Mer
TERRAINEnvie d'un cadre de vie exceptionnel ? Ce terrain hors lotissement, d'une superficie de 740m² est situé à proximité immédiate de la plage et du port de La Gravette.Profitez de la douceur de vivre de La Plaine-sur-Mer et de la liberté de construire la maison qui vous ressemble. Le terrain est idéalement situé pour profiter des atouts de la région : plages, activités nautiques, commerces et services à proximité.Prix : 185300 €.Sur ce terrain de 740 m² à LA PLAINE-SUR-MER, Alliance Construction vous propose de réaliser votre projet de construction de maison individuelle.Avec Alliance Construction, habitez une maison spécialement pensée et conçue pour vous et votre famille, prête à décorer, adaptée à vos modes de vie, personnalisée selon vos goûts grâce à un large choix d'options, de matériaux et d'innovations ! Demandez une étude gratuite et personnalisée de votre projet de construction sur ce terrain à LA PLAINE-SUR-MER !Contactez Thierry MONLEZUN au (Numéro supprimé) (Alliance Construction – Agence de Nantes Aubinière).Prix hors frais de notaire. Terrain sélectionné par ALLIANCE auprès de nos partenaires fonciers, selon disponibilité, pour la construction d'une maison neuve. Non mandaté pour réaliser la vente (loi du 2 janvier 1970 n°70-9). Visuels non contractuels. Voir détails en agence.Cette annonce a été créée et diffusée avec le logiciel VITAHOME.
La Plaine-sur-Mer
TERRAIN ET MAISONA LA PLAINE-SUR-MER sur un terrain de 373 m², Alliance Construction vous propose de réaliser votre projet de construction de maison individuelle d'une surface de 106.13 m² habitables avec 4 chambres, à partir de 372465€*Informations du terrain : Votre pied à terre à La Plaine-sur-Mer !Terrain à bâtir viabilisé à vendre, idéalement situé à proximité de la plage de Port Giraud. Profitez d'un environnement exceptionnel : nature préservée, plages à quelques pas et cadre de vie paisible. Réalisez votre projet de maison de bord de mer dans un secteur prisé.Demandez une étude gratuite et personnalisée de votre projet de construction !* Cette offre comprend :- Garanties constructeurs (dommages ouvrage, garantie de prix ferme et définitif, garantie de livraison, responsabilité civile et décennale).- Branchements aux compteurs et accès empierré sur 5m linéaires.Habitez une maison spécialement pensée et conçue pour vous et votre famille, prête à décorer, adaptée à vos modes de vie, personnalisée selon vos goûts grâce à un large choix d'options, de matériaux et d'innovations !Contactez Thierry MONLEZUN au (Numéro supprimé) (Alliance Construction – Agence de Nantes Aubinière).*Prix indicatif pour un projet de construction d'une maison individuelle. Ne sont pas inclus les frais de branchements, raccordements aux réseaux publics, frais d'adaptations, aménagements intérieurs et extérieurs et options. terrain viabilisé, frais de notaire non compris, frais divers non compris. Garanties et assurances obligatoires incluses. Terrain sélectionné par ALLIANCE auprès de nos partenaires fonciers, selon disponibilité, pour la construction d'une maison neuve. Non mandaté pour réaliser la vente (loi du 2 janvier 1970 n°70-9). Visuels non contractuels. Voir détails en agence.Cette annonce a été créée et diffusée avec le logiciel VITAHOME.
Saint-Michel-Chef-Chef
TERRAIN ET MAISONA SAINT-MICHEL-CHEF-CHEF sur un terrain de 628 m², Alliance Construction vous propose de réaliser votre projet de construction de maison individuelle d'une surface de 103.51 m² habitables avec 3 chambres, à partir de 423500€*Informations du terrain : Envie d'un environnement paisible tout en profitant des charmes de la côte ? Ce terrain viabilisé de 628 m² vous offre l'opportunité de construire votre maison dans un quartier résidentiel à proximité immédiate de la mer. Profitez des plages, des sentiers côtiers et du charme de la vie à la campagne.Demandez une étude gratuite et personnalisée de votre projet de construction !* Cette offre comprend :- Garanties constructeurs (dommages ouvrage, garantie de prix ferme et définitif, garantie de livraison, responsabilité civile et décennale).- Branchements aux compteurs et accès empierré sur 5m linéaires.Habitez une maison spécialement pensée et conçue pour vous et votre famille, prête à décorer, adaptée à vos modes de vie, personnalisée selon vos goûts grâce à un large choix d'options, de matériaux et d'innovations !Contactez Thierry MONLEZUN au (Numéro supprimé) (Alliance Construction – Agence de Nantes Aubinière).*Prix indicatif pour un projet de construction d'une maison individuelle. Ne sont pas inclus les frais de branchements, raccordements aux réseaux publics, frais d'adaptations, aménagements intérieurs et extérieurs et options. terrain viabilisé, frais de notaire non compris, frais divers non compris. Garanties et assurances obligatoires incluses. Terrain sélectionné par ALLIANCE auprès de nos partenaires fonciers, selon disponibilité, pour la construction d'une maison neuve. Non mandaté pour réaliser la vente (loi du 2 janvier 1970 n°70-9). Visuels non contractuels. Voir détails en agence.Cette annonce a été créée et diffusée avec le logiciel VITAHOME.
La Plaine-sur-Mer
TERRAIN ET MAISONA LA PLAINE-SUR-MER sur un terrain de 443 m², Alliance Construction vous propose de réaliser votre projet de construction de maison individuelle d'une surface de 88.04 m² habitables avec 3 chambres, à partir de 315900€*Informations du terrain : À seulement quelques pas de la plage du Port Giraud, ce terrain viabilisé de 443 m² vous promet des moments de détente inoubliables. Dans un environnement calme et résidentiel, il vous offre la possibilité de construire la maison de vos rêves.Pour plus d'informations, contactez-nousDemandez une étude gratuite et personnalisée de votre projet de construction !* Cette offre comprend :- Garanties constructeurs (dommages ouvrage, garantie de prix ferme et définitif, garantie de livraison, responsabilité civile et décennale).- Branchements aux compteurs et accès empierré sur 5m linéaires.Habitez une maison spécialement pensée et conçue pour vous et votre famille, prête à décorer, adaptée à vos modes de vie, personnalisée selon vos goûts grâce à un large choix d'options, de matériaux et d'innovations !Contactez Thierry MONLEZUN au (Numéro supprimé) (Alliance Construction – Agence de Nantes Aubinière).*Prix indicatif pour un projet de construction d'une maison individuelle. Ne sont pas inclus les frais de branchements, raccordements aux réseaux publics, frais d'adaptations, aménagements intérieurs et extérieurs et options. terrain viabilisé, frais de notaire non compris, frais divers non compris. Garanties et assurances obligatoires incluses. Terrain sélectionné par ALLIANCE auprès de nos partenaires fonciers, selon disponibilité, pour la construction d'une maison neuve. Non mandaté pour réaliser la vente (loi du 2 janvier 1970 n°70-9). Visuels non contractuels. Voir détails en agence.Cette annonce a été créée et diffusée avec le logiciel VITAHOME.
La Plaine-sur-Mer
TERRAIN ET MAISONA LA PLAINE-SUR-MER sur un terrain de 373 m², Alliance Construction vous propose de réaliser votre projet de construction de maison individuelle d'une surface de 88.04 m² habitables avec 3 chambres, à partir de 314500€*Informations du terrain : Votre pied à terre à La Plaine-sur-Mer !Terrain à bâtir viabilisé à vendre, idéalement situé à proximité de la plage de Port Giraud. Profitez d'un environnement exceptionnel : nature préservée, plages à quelques pas et cadre de vie paisible. Réalisez votre projet de maison de bord de mer dans un secteur prisé.Demandez une étude gratuite et personnalisée de votre projet de construction !* Cette offre comprend :- Garanties constructeurs (dommages ouvrage, garantie de prix ferme et définitif, garantie de livraison, responsabilité civile et décennale).- Branchements aux compteurs et accès empierré sur 5m linéaires.Habitez une maison spécialement pensée et conçue pour vous et votre famille, prête à décorer, adaptée à vos modes de vie, personnalisée selon vos goûts grâce à un large choix d'options, de matériaux et d'innovations !Contactez Thierry MONLEZUN au (Numéro supprimé) (Alliance Construction – Agence de Nantes Aubinière).*Prix indicatif pour un projet de construction d'une maison individuelle. Ne sont pas inclus les frais de branchements, raccordements aux réseaux publics, frais d'adaptations, aménagements intérieurs et extérieurs et options. terrain viabilisé, frais de notaire non compris, frais divers non compris. Garanties et assurances obligatoires incluses. Terrain sélectionné par ALLIANCE auprès de nos partenaires fonciers, selon disponibilité, pour la construction d'une maison neuve. Non mandaté pour réaliser la vente (loi du 2 janvier 1970 n°70-9). Visuels non contractuels. Voir détails en agence.Cette annonce a été créée et diffusée avec le logiciel VITAHOME.
La Plaine-sur-Mer
TERRAIN ET MAISONA LA PLAINE-SUR-MER sur un terrain de 500 m², Alliance Construction vous propose de réaliser votre projet de construction de maison individuelle d'une surface de 92.96 m² habitables avec 3 chambres, à partir de 344500€*Informations du terrain : Envie d'une résidence les pieds dans l'eau ? Ce terrain à bâtir, situé à quelques pas de la plage, est fait pour vous. Construisez votre maison de rêve et profitez des joies de la mer toute l'année.Demandez une étude gratuite et personnalisée de votre projet de construction !* Cette offre comprend :- Garanties constructeurs (dommages ouvrage, garantie de prix ferme et définitif, garantie de livraison, responsabilité civile et décennale).- Branchements aux compteurs et accès empierré sur 5m linéaires.Habitez une maison spécialement pensée et conçue pour vous et votre famille, prête à décorer, adaptée à vos modes de vie, personnalisée selon vos goûts grâce à un large choix d'options, de matériaux et d'innovations !Contactez Thierry MONLEZUN au (Numéro supprimé) (Alliance Construction – Agence de Nantes Aubinière).*Prix indicatif pour un projet de construction d'une maison individuelle. Ne sont pas inclus les frais de branchements, raccordements aux réseaux publics, frais d'adaptations, aménagements intérieurs et extérieurs et options. terrain non viabilisé, frais de notaire non compris, frais divers non compris. Garanties et assurances obligatoires incluses. Terrain sélectionné par ALLIANCE auprès de nos partenaires fonciers, selon disponibilité, pour la construction d'une maison neuve. Non mandaté pour réaliser la vente (loi du 2 janvier 1970 n°70-9). Visuels non contractuels. Voir détails en agence.Cette annonce a été créée et diffusée avec le logiciel VITAHOME.
L’actualité immobilière à La Plaine-sur-Mer
27/11/2023
02/11/2023
30/10/2023
20/10/2023
16/10/2023
16/10/2023