Images
Description
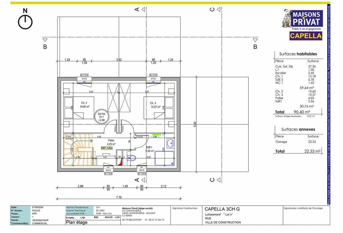
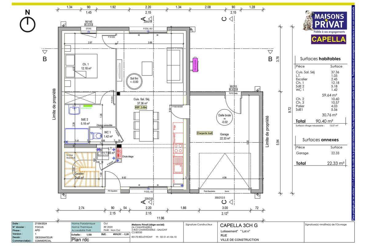
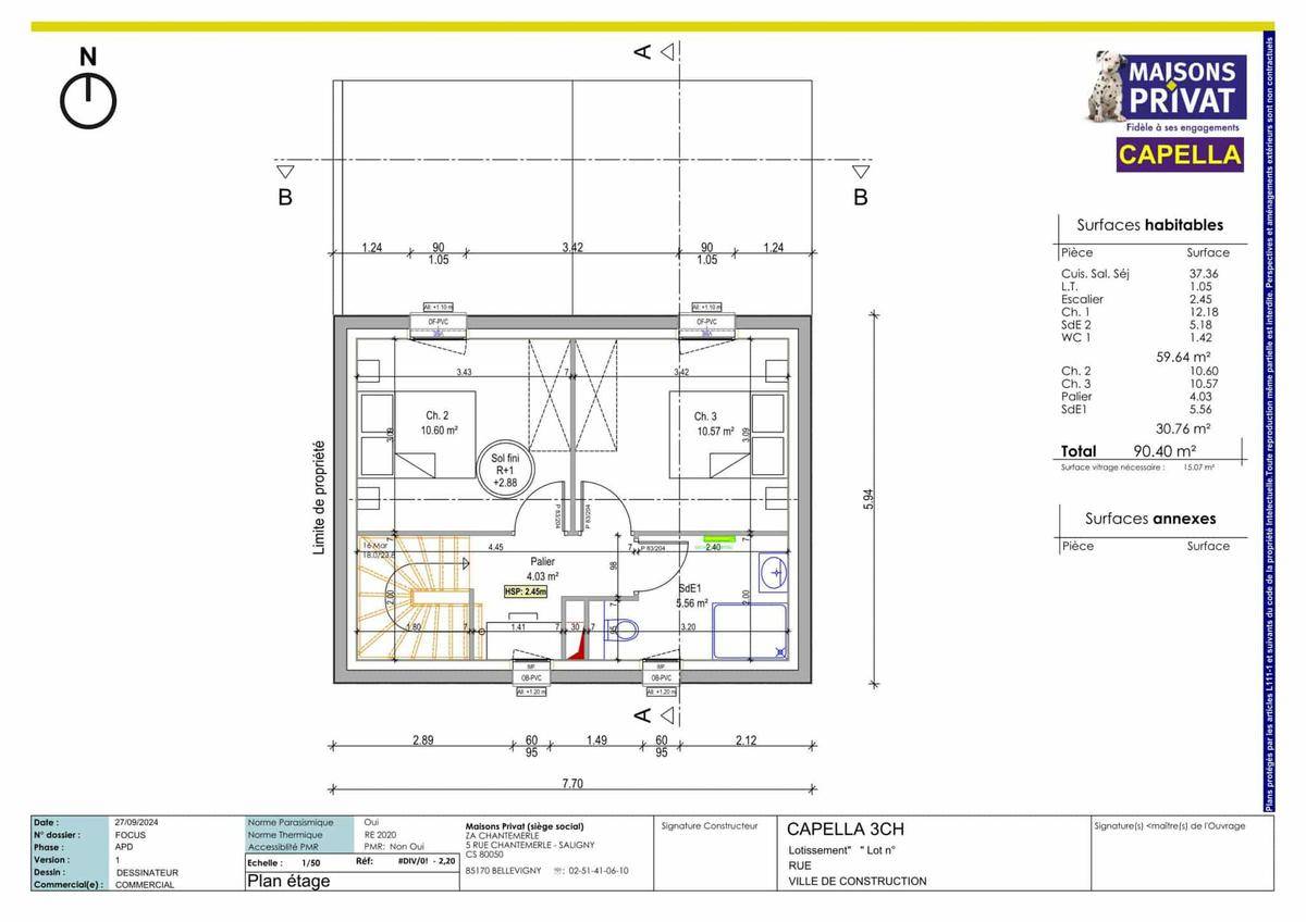
Sur ce terrain, nous vous proposons cette magnifique maison contemporaine de 90,57 m², offrant un cadre de vie idyllique où modernité, confort et nature se rencontrent harmonieusement. Avec ses volumes optimisés, elle est idéale pour une famille à la recherche de bien-être et de sérénité.
Un intérieur spacieux et lumineux
Dès l’entrée, laissez-vous séduire par un grand espace de vie ouvert de 37 m², baigné de lumière grâce à ses larges baies vitrées offrant une vue imprenable sur le jardin et la piscine. La cuisine moderne et fonctionnelle s’intègre parfaitement à l’espace de réception, créant une atmosphère chaleureuse et conviviale.
Au rez-de-chaussée, vous trouverez une suite parentale de 12,18 m², parfaite pour plus d’intimité, une grande pièce de vie de 37 m² avec cuisine ouverte, salon et salle à manger, ainsi qu’une salle d’eau et des WC séparés. Le garage de 22,55 m², accessible directement depuis la maison, offre un espace de rangement idéal.
À l’étage, deux chambres confortables de 10,70 m² et 10,74 m² offrent un espace de vie agréable pour les enfants ou les invités. Une salle d’eau spacieuse de 5,56 m² et un palier pouvant être aménagé en bureau ou en espace détente complètent cet étage.
* Prix indiqué hors branchements, hors sanitaires, hors revêtement des sols et des murs. Assurance dommages ouvrages incluse.
Logement susceptibles de vous intéresser
Nous vous proposons de découvrir aussi cette sélection de logements situés à moins de 10km de La Plaine-sur-Mer et qui seraient susceptibles de vous intéresser.
La Plaine-sur-Mer
TERRAIN ET MAISONSur ce terrain, nous vous proposons cette superbe maison de plain-pied, alliant confort, modernité et praticité, idéale pour une famille en quête de bien-être.Avec son agencement optimisé, cette maison vous offre une spacieuse pièce de vie baignée de lumière naturelle, comprenant un séjour convivial et une cuisine ouverte fonctionnelle, parfaite pour des moments en famille ou entre amis.L’espace nuit se compose de trois belles chambres offrant confort et sérénité, d’une salle d’eau moderne et de WC séparés pour plus de praticité.Un garage intégré vient compléter ce bien, idéal pour stationner un véhicule ou disposer d’un espace de rangement supplémentaire.
La Plaine-sur-Mer
TERRAINOffrez-vous le cadre de vie rêvé avec ce terrain à vendre, d’une surface généreuse de 390 m², niché dans un environnement paisible et propice à la construction de votre maison personnalisée. Non viabilisé, ce terrain plat offre une multitude de possibilités pour réaliser le projet qui vous ressemble. Situé à La Plaine-sur-Mer, ce bien rare se distingue par son cadre de vie enchanteur et ses caractéristiques uniques qui en font une opportunité à ne pas manquer. La Plaine-sur-Mer, dans le département de la Loire-Atlantique, est une charmante commune de la région des Pays de la Loire. Elle est réputée pour sa qualité de vie exceptionnelle, ses paysages côtiers pittoresques et ses activités en plein air. À proximité, vous découvrirez des plages magnifiques, des sentiers de randonnée et un réseau de commodités locales pour un quotidien agréable : commerces, écoles et services de santé. Le doux climat atlantic, combiné aux attraits naturels de la région, en fait un lieu privilégié pour s’installer et profiter de la tranquillité tout en étant proche des dynamiques urbaines. Ne laissez pas passer cette occasion unique d’acquérir un terrain dans un endroit de choix. Imaginez votre futur chez-vous dans ce cadre exceptionnel, où tranquillité et qualité de vie se rencontrent. Pour toute information supplémentaire sur ce bien, n’hésitez pas à nous contacter. À noter qu’en tant que constructeur, nous ne sommes pas mandatés pour réaliser la vente de ce terrain.
La Plaine-sur-Mer
TERRAIN ET MAISONSur ce terrain, nous vous proposons cette superbe maison de plain-pied au plan optimisé, pensée pour offrir confort et convivialité à toute la famille. Passé l’entrée, vous serez immédiatement séduit par une vaste pièce de vie baignée de lumière, où se côtoient salon, salle à manger et cuisine ouverte, idéale pour partager des moments chaleureux au quotidien.Côté nuit, trois chambres spacieuses et lumineuses vous attendent, chacune permettant d’installer rangements et bureau selon vos envies. Une salle de bain moderne, un WC complètent cet agencement astucieux, facilitant l’organisation de la vie de famille.Atout pratique : Un garage attenant de près de 21 m² permet de stationner votre véhicule en toute sécurité, tout en laissant de la place pour un atelier ou du rangement supplémentaire.Moderne, fonctionnelle et pensée pour un confort optimal, cette maison saura répondre à toutes vos attentes. N’attendez plus pour venir la découvrir et laissez-vous séduire par son agencement harmonieux !
La Plaine-sur-Mer
TERRAINNous avons le plaisir de vous présenter ce terrain d’une superficie généreuse de 390 m², idéalement situé à La Plaine-sur-Mer, Loire-Atlantique. Ce terrain plat offre une qualité de vie incomparable et constitue l’emplacement parfait pour réaliser votre projet de construction de maison. Avec un accès facile à de multiples commodités, ce terrain est une opportunité unique pour ceux qui souhaitent bâtir leur rêve tout en profitant d’un environnement paisible à proximité de la mer. Située dans le magnifique département de la Loire-Atlantique, La Plaine-sur-Mer bénéficie d’un cadre naturel exceptionnel. La ville est connue pour ses plages pittoresques, ses sentiers côtiers et sa vie locale vibrante, offrant un mélange parfait d’activités de loisirs et de tranquillité. Avec des services de proximité, des écoles, et des commerces accessibles, cette localisation vous séduira par ses atouts indéniables et son esprit communautaire. Ne manquez pas cette occasion de rejoindre une ville en pleine effervescence et de vivre à quelques pas de l’océan. Profitez dès maintenant de ce terrain au potentiel immense et envisagez de construire la maison de vos rêves dans un cadre idyllique. Saisissez cette chance exceptionnelle ! À noter qu’en tant que constructeur, nous ne sommes pas mandatés pour réaliser la vente de ce terrain.
La Plaine-sur-Mer
TERRAINDécouvrez ce terrain à vendre d’une superficie de 390 m², idéal pour la construction de votre maison individuelle. Situé à La Plaine-sur-Mer, dans le département de Loire-Atlantique, ce terrain se distingue par sa situation géographique privilégiée. Offrant une sécurité optimale et un terrain plat, il constitue un choix parfait pour un projet de vie serein et harmonieux. Son emplacement vous permettra de bénéficier d’une qualité de vie appréciable, propice à l’épanouissement familial. La Plaine-sur-Mer est une charmante commune du Pays de la Loire, à proximité des plages et des espaces naturels d’exception. Vous profiterez d’un cadre de vie agréable avec des commodités locales – commerces, écoles et services de proximité – accessibles facilement. Les attractions locales, telles que les sentiers côtiers et les activités nautiques, ajoutent un attrait supplémentaire à cette belle région, vous permettant de vivre pleinement dans un environnement dynamique et accueillant. Ce terrain représente une opportunité unique d’acheter et de concevoir votre futur chez-vous dans une ville en plein essor. N’attendez plus pour saisir cette chance ! À noter qu’en tant que constructeur, nous ne sommes pas mandatés pour réaliser la vente de ce terrain.
La Plaine-sur-Mer
TERRAIN ET MAISONSur ce terrain, nous vous proposons cette magnifique maison contemporaine de 90,57 m², offrant un cadre de vie idyllique où modernité, confort et nature se rencontrent harmonieusement. Avec ses volumes optimisés, elle est idéale pour une famille à la recherche de bien-être et de sérénité.Un intérieur spacieux et lumineuxDès l’entrée, laissez-vous séduire par un grand espace de vie ouvert de 37 m², baigné de lumière grâce à ses larges baies vitrées offrant une vue imprenable sur le jardin et la piscine. La cuisine moderne et fonctionnelle s’intègre parfaitement à l’espace de réception, créant une atmosphère chaleureuse et conviviale.Au rez-de-chaussée, vous trouverez une suite parentale de 12,18 m², parfaite pour plus d’intimité, une grande pièce de vie de 37 m² avec cuisine ouverte, salon et salle à manger, ainsi qu’une salle d’eau et des WC séparés. Le garage de 22,55 m², accessible directement depuis la maison, offre un espace de rangement idéal.À l’étage, deux chambres confortables de 10,70 m² et 10,74 m² offrent un espace de vie agréable pour les enfants ou les invités. Une salle d’eau spacieuse de 5,56 m² et un palier pouvant être aménagé en bureau ou en espace détente complètent cet étage.* Prix indiqué hors branchements, hors sanitaires, hors revêtement des sols et des murs. Assurance dommages ouvrages incluse.
Saint-Michel-Chef-Chef
TERRAINTerrains viabilisés de 405 m² à 570 m², libres de constructeur sur la commune de Saint-Michel-Chef-Chef, en Loire-Atlantique.Découvrez notre nouvelle opération de 5 lots « Le Clos des Embruns » située rue des Mouettes.Située sur la Côte de Jade à 17km de Saint-Nazaire via la Route bleue et à 50km à l’ouest de Nantes, la Commune de Saint-Michel-Chef-Chef fait partie du pays traditionnel du Pays de Retz. La commune de Saint-Michel-Chef-Chef fait partie de Pornic agglo Pays de Retz.La ville bénéficie d’un tissu associatif dynamique tant par le nombre d’associations et de bénévoles impliqués : sport, culture, artistique ou social, les domaines d’intervention des associations sont très diversifiés.Retrouvez l’ensemble de nos lots disponibles sur notre site internet.
La Plaine-sur-Mer
TERRAINDécouvrez ce terrain exceptionnel de 290 mètres carrés, situé dans la charmante commune de La Plaine-sur-Mer, en Loire-Atlantique. Profitez d’un cadre idéal pour concrétiser votre projet de construction de maison dans un environnement paisible et attrayant. Ce terrain, bien positionné, bénéficie d’un P.L.U non contraignant, offrant une grande liberté d’aménagement pour réaliser la maison de vos rêves. Ne manquez pas cette opportunité rare d’acquérir un bien à prix attractif. La Plaine-sur-Mer est une ville dynamique des Pays de la Loire, réputée pour ses paysages côtiers enchanteurs et ses multiples activités de loisirs. Vous pourrez profiter des magnifiques plages, pratiquer des sports nautiques ou explorer les sentiers de randonnée pittoresques. La ville dispose également de toutes les commodités nécessaires, telles que des commerces, des écoles et des services de santé, garantissant un cadre de vie agréable et pratique. Ce territoire vous offre un accès facile aux atouts régionaux, parfait pour les amoureux de la nature et de la tranquillité. Ce terrain présente un potentiel inégalé pour réaliser votre projet immobilier. N’attendez plus pour saisir cette opportunité d’achat unique! À noter qu’en tant que constructeur, nous ne sommes pas mandatés pour réaliser la vente de ce terrain.
La Plaine-sur-Mer
TERRAINNous vous présentons aujourd’hui un terrain d’une superficie généreuse de 290 m², idéalement situé à La Plaine-sur-Mer, dans le département de la Loire-Atlantique. Ce terrain plat et ensoleillé offre une belle opportunité pour la réalisation de votre projet de construction de maison. En raison de son environnement calme et agréable, il saura séduire les futurs acquéreurs à la recherche d’un cadre de vie paisible. Ne manquez pas cette chance de concrétiser vos rêves immobiliers dans cette charmante commune. La Plaine-sur-Mer est une ville dynamique appartenant à la région des Pays de la Loire, réputée pour ses magnifiques plages et ses paysages côtiers préservés. À proximité, vous trouverez de nombreuses commodités, dont des commerces locaux, des restaurants et des infrastructures scolaires. Les passionnés de nature seront ravis de profiter des sentiers de randonnée et des activités nautiques à proximité. Avec ses attraits touristiques tels que les vues sur l’océan et le patrimoine culturel, cette commune offre un cadre de vie idéal pour les familles et les amoureux de la nature. Cet emplacement unique représente une réelle opportunité d’acquérir un terrain dans un cadre sympathique et attrayant. N’hésitez pas à nous contacter pour davantage d’informations et envisager votre futur chez-vous à La Plaine-sur-Mer. À noter qu’en tant que constructeur, nous ne sommes pas mandatés pour réaliser la vente de ce terrain.
L’actualité immobilière à La Plaine-sur-Mer
27/11/2023
02/11/2023
30/10/2023
20/10/2023
16/10/2023
16/10/2023