Maison à construire à Lavau-sur-Loire (44260)
Images
Description
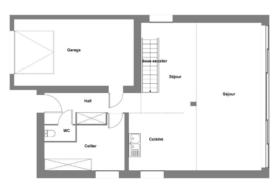
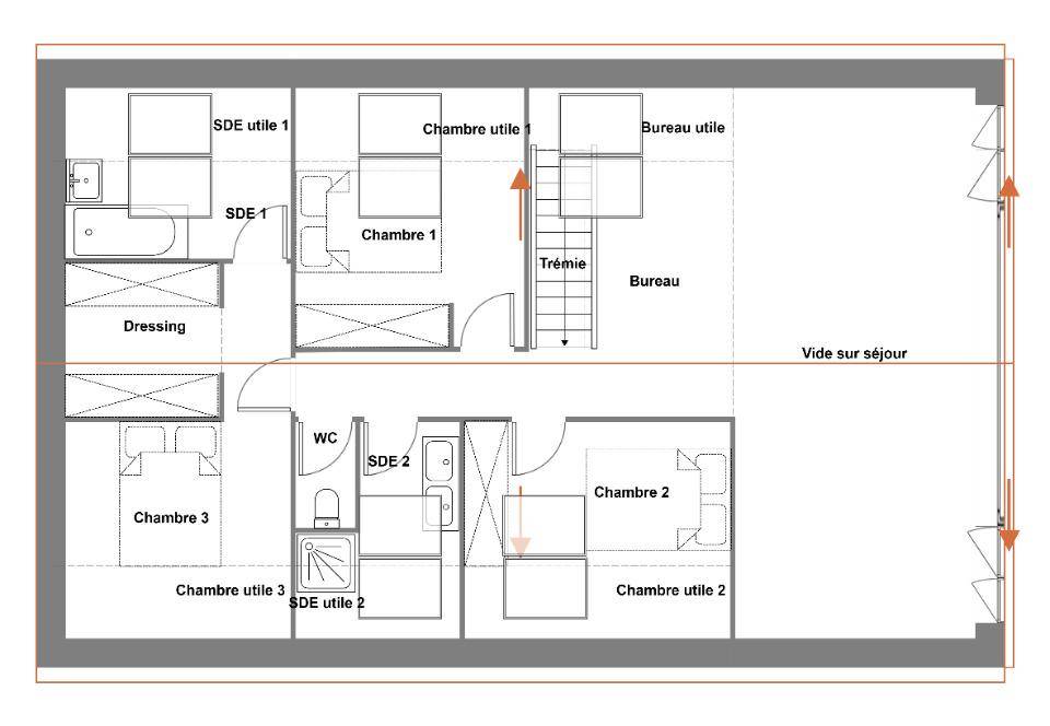
VENTE d'une maison T4 (130 m²) à Lavau-sur-Loire
EMPLACEMENT PRIVILÉGIÉ - MAISON 4 PIÈCES NEUVE
À vendre sur le littoral atlantique et à deux pas de Saint-Nazaire, découvrez cette maison de 4 pièces de 130 m² et de 1 025 m² de terrain bénéficiant d'un emplacement privilégié dans Lavau-sur-Loire (44260). Son intérieur compte trois chambres, une cuisine et deux salles de bains.
Il s'agit d'une maison de 2 niveaux. Elle est neuve.
La maison est située dans un secteur convoité. L'École Primaire Publique le Granit Bleu est implantée à moins de 10 minutes à pied. Côté transports en commun, on trouve trois gares (Savenay, Donges et Cordemais) à moins de 10 minutes en voiture. Les nationales N171 et N165 sont accessibles à moins de 8 km.
Elle est à vendre pour la somme de 449 900 €.
Contactez Jean-Baptiste ((Numéro supprimé)) pour plus d'informations sur la maison. Donnez vie à vos projets immobiliers avec Maisons de l'Avenir Orvault.
Logement susceptibles de vous intéresser
Nous vous proposons de découvrir aussi cette sélection de logements situés à moins de 10km de Lavau-sur-Loire et qui seraient susceptibles de vous intéresser.
Donges
TERRAIN ET MAISONBelle parcelle à Donges de 499 m², avec une façade de 20ml. Bornage effectué. Assainissement individuel à prévoir. Compacte et fonctionnelle, cette maison de plain-pied vous propose un bel espace de vie lumineux, avec une grande baie vitrée donnant sur le jardin. Sa cuisine est ouverte sur le séjour et dispose d'un accès direct au cellier, et au garage intégré. Son espace nuit est composé de deux chambres avec rangements, d'une salle de bains et de wc séparés. Pour vous assurer un confort de vie et conformément à la RE2025, nous avons choisi un mode de chauffage par PAC + plancher chauffant, volets roulants électriques. Prix hors fourniture et pose : des appareils sanitaires (sauf système de chauffage et d'eau chaude sanitaire), du carrelage et de la faïence, des revêtements de sol dans les chambres. Hors décoration et aménagement intérieur et peinture. Hors raccordements, frais de notaire et dommage ouvrage. // Réf. : 842-210972-ADM. Prix terrain : 76 500 €, hors frais d'agence à la charge de l'acquéreur. Ce terrain vous est proposé, par nos partenaires fonciers, dans le cadre d'un projet de construction avec nous. Les informations sur les risques auxquels ce bien est exposé sont disponibles sur le site Géorisques (www.georisques.gouv.fr). Prix maison : 129 532 €.
Donges
TERRAIN ET MAISONBelle parcelle à Donges de 499 m², avec une façade de 20ml. Bornage effectué. Assainissement individuel à prévoir. Pensée pour offrir un cadre de vie harmonieux, cette maison séduit par son agencement optimisé et ses espaces lumineux. En entrant, vous découvrez une grande pièce de vie où le salon et la salle à manger s’ouvrent sur l’extérieur, créant un lieu convivial et chaleureux. La cuisine, fonctionnelle et moderne, est conçue pour allier praticité et esthétisme. L’espace nuit se compose de trois belles chambres, chacune offrant un cadre apaisant et propice au repos. Une salle de bain élégante et bien agencée facilite le quotidien, tandis que des rangements astucieux permettent de garder un intérieur toujours organisé. Pratique, moderne et confortable, cette maison n’attend plus que vous !. Pour vous assurer un confort de vie optimal et en conformité avec la RE2025, nous avons opté pour un système de chauffage par pompe à chaleur (PAC) avec plancher chauffant au rez-de-chaussée et radiateurs à l’étage. Le logement est également équipé de volets roulants électriques. . Prix hors fourniture et pose : des appareils sanitaires (sauf système de chauffage et d'eau chaude sanitaire), du carrelage et de la faïence, des revêtements de sol dans les chambres. Hors décoration et aménagement intérieur et peinture. Hors raccordements, frais de notaire et dommage ouvrage. // Réf. : 698-210972-ADM. Prix terrain : 76 500 €, hors frais d'agence à la charge de l'acquéreur. Ce terrain vous est proposé, par nos partenaires fonciers, dans le cadre d'un projet de construction avec nous. Les informations sur les risques auxquels ce bien est exposé sont disponibles sur le site Géorisques (www.georisques.gouv.fr). Prix maison : 135 720 €.
Donges
TERRAIN ET MAISONBelle parcelle à Donges de 499 m², avec une façade de 20ml. Bornage effectué. Assainissement individuel à prévoir. Agréable et lumineuse, cette maison de plain-pied vous propose une cuisine ouverte sur un vaste séjour traversant de 47 m² environ. L'accès direct cuisine, cellier et garage facilite l'habitabilité de cette maison. L'espace nuit est composé de deux belles chambres avec rangement, d'une salle de bains et des wc séparés. Ses jeux d'enduits personnalisables sauront vous séduirePour vous assurer un confort de vie et conformément à la RE2025, nous avons choisi un mode de chauffage par PAC + plancher chauffant, volets roulants électriques. Prix hors fourniture et pose : des appareils sanitaires (sauf système de chauffage et d'eau chaude sanitaire), du carrelage et de la faïence, des revêtements de sol dans les chambres. Hors décoration et aménagement intérieur et peinture. Hors raccordements, frais de notaire et dommage ouvrage. Préau en option. // Réf. : 1069-210972-ADM. Prix terrain : 76 500 €, hors frais d'agence à la charge de l'acquéreur. Ce terrain vous est proposé, par nos partenaires fonciers, dans le cadre d'un projet de construction avec nous. Les informations sur les risques auxquels ce bien est exposé sont disponibles sur le site Géorisques (www.georisques.gouv.fr). Prix maison : 134 317 €.
Donges
TERRAINBelle parcelle à Donges de 499 m², avec une façade de 20ml. Bornage effectué. Assainissement individuel à prévoir. // Réf. : T210972. Prix terrain : 76 500 €, hors frais d'agence et de notaire à la charge de l'acquéreur. Ce terrain vous est proposé, par nos partenaires fonciers, dans le cadre d'un projet de construction avec nous. Les informations sur les risques auxquels ce bien est exposé sont disponibles sur le site Géorisques (www.georisques.gouv.fr).
Lavau-sur-Loire
TERRAINVENTE : terrain de 1 025 m² à Lavau-sur-LoireEMPLACEMENT PRIVILÉGIÉ – VUE SANS VIS-À-VISÀ 4 km de l’océan Atlantique et à quelques kilomètres de Saint-Nazaire à Lavau-sur-Loire (44260), grand terrain. Il profite d’une vue sans vis-à-vis et est exposé au sud-ouest. Dans un quartier prisé, ce terrain bénéficiant d’un emplacement privilégié est proche des commerces et des écoles. L’École Primaire Publique le Granit Bleu est implantée à moins de 10 minutes à pied. Niveau transports en commun, on trouve trois gares (Savenay, Donges et Cordemais) à moins de 10 minutes en voiture. Les nationales N171 et N165 sont accessibles à moins de 8 km.Son prix de vente est de 134 000 €. Contactez Jean-Baptiste ((Numéro supprimé)) pour toute question sur le terrain ou sur les démarches à suivre. Maisons de l’Avenir Orvault est là pour vous accompagner à toutes les étapes de votre projet.
Lavau-sur-Loire
TERRAIN ET MAISONVENTE : maison F3 (86 m²) à Lavau-sur-LoireEMPLACEMENT PRIVILÉGIÉ – MAISON 3 PIÈCES NEUVEÀ vendre à 4 km de la côte atlantique et à deux pas de Saint-Nazaire, bénéficiant d’un emplacement d’exception dans Lavau-sur-Loire (44260), votre agence Maisons de l’Avenir Orvault est ravie de vous proposer cette maison de 3 pièces de plain-pied de 86 m² et de 1 025 m² de terrain.Elle comporte trois chambres, une cuisine et une salle de bains. Cette maison est neuve.La maison est située dans un secteur attractif. Il y a l’École Primaire Publique le Granit Bleu à moins de 10 minutes à pied. Niveau transports en commun, on trouve les gares Savenay, Donges et Cordemais à moins de 10 minutes en voiture. Les nationales N171 et N165 sont accessibles à moins de 8 km.Son prix de vente est de 329 900 €.N’hésitez pas à prendre contact avec Jean-Baptiste ((Numéro supprimé)) pour obtenir de plus amples renseignements sur la maison, sur les démarches à suivre ou sur les modalités de vente.
Lavau-sur-Loire
TERRAIN ET MAISONMaison T4 (110 m²) à vendre à Lavau-sur-LoireEMPLACEMENT PRIVILÉGIÉ – MAISON 4 PIÈCES NEUVEÀ 4 km de l’océan Atlantique et à quelques kilomètres de Saint-Nazaire, Maisons de l’Avenir Orvault vous présente cette maison de 4 pièces de 110 m² et de 1 025 m² de terrain à vendre bénéficiant d’un emplacement privilégié dans Lavau-sur-Loire (44260). Elle propose trois chambres, une cuisine et deux salles de bains.C’est une maison de 2 niveaux. Elle est neuve.Cette maison est située dans un secteur convoité. On trouve l’École Primaire Publique le Granit Bleu à moins de 10 minutes à pied. Côté transports, il y a trois gares (Savenay, Donges et Cordemais) à moins de 10 minutes en voiture. Les nationales N171 et N165 sont accessibles à moins de 8 km.Son prix de vente est de 399 900 €.Contactez Jean-Baptiste ((Numéro supprimé)) pour plus de renseignements sur la maison, sur les modalités de vente ou sur les démarches à suivre. Maisons de l’Avenir Orvault est là pour vous accompagner à toutes les étapes de l’achat.
Lavau-sur-Loire
TERRAIN ET MAISONVENTE d’une maison T4 (130 m²) à Lavau-sur-LoireEMPLACEMENT PRIVILÉGIÉ – MAISON 4 PIÈCES NEUVEÀ vendre sur le littoral atlantique et à deux pas de Saint-Nazaire, découvrez cette maison de 4 pièces de 130 m² et de 1 025 m² de terrain bénéficiant d’un emplacement privilégié dans Lavau-sur-Loire (44260). Son intérieur compte trois chambres, une cuisine et deux salles de bains.Il s’agit d’une maison de 2 niveaux. Elle est neuve.La maison est située dans un secteur convoité. L’École Primaire Publique le Granit Bleu est implantée à moins de 10 minutes à pied. Côté transports en commun, on trouve trois gares (Savenay, Donges et Cordemais) à moins de 10 minutes en voiture. Les nationales N171 et N165 sont accessibles à moins de 8 km.Elle est à vendre pour la somme de 449 900 €.Contactez Jean-Baptiste ((Numéro supprimé)) pour plus d’informations sur la maison. Donnez vie à vos projets immobiliers avec Maisons de l’Avenir Orvault.
Lavau-sur-Loire
TERRAIN ET MAISONVENTE d’une maison de 5 pièces (150 m²) à Lavau-sur-LoireEMPLACEMENT PRIVILÉGIÉ – MAISON 5 PIÈCES NEUVEEn vente : située à 4 km de la côte atlantique et à deux pas de Saint-Nazaire, notre agence Maisons de l’Avenir Orvault est heureuse de vous proposer cette maison de 5 pièces de 150 m² bénéficiant d’un emplacement d’exception dans Lavau-sur-Loire (44260). Elle se divise en quatre chambres, une cuisine et deux salles de bains.Le terrain du bien est de 1 025 m².Cette maison possède 2 niveaux. Elle est neuve.Cette maison est située dans un secteur attractif. L’École Primaire Publique le Granit Bleu est implantée à moins de 10 minutes à pied. Côté transports en commun, il y a les gares Savenay, Donges et Cordemais à moins de 10 minutes en voiture. Les nationales N171 et N165 sont accessibles à moins de 8 km.Elle est proposée à l’achat pour 488 900 €.Prenez contact avec Jean-Baptiste ((Numéro supprimé)) pour toute information sur la maison ou sur les modalités de vente. Faites de vos projets immobiliers une réalité avec Maisons de l’Avenir Orvault.
L’actualité immobilière à Lavau-sur-Loire
27/11/2023
02/11/2023
30/10/2023
20/10/2023
16/10/2023
16/10/2023