Maison à construire à Le Landreau (44430)
Images
Description
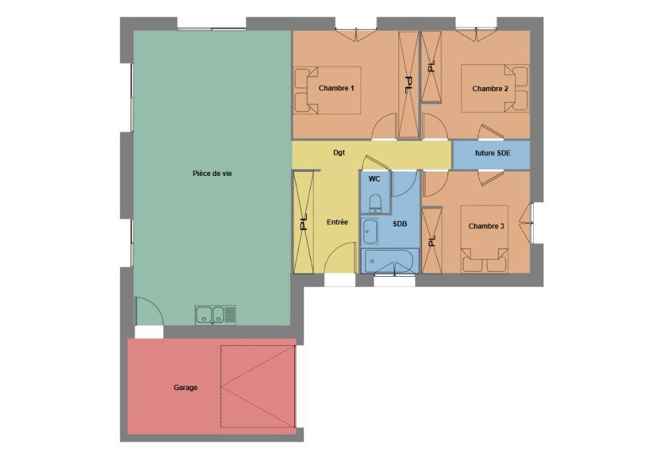
Le Landreau : maison de 3 pièces (86 m²) en vente
EMPLACEMENT PRIVILÉGIÉ - MAISON 3 PIÈCES NEUVE
À vendre à 48 km de l'océan Atlantique et à 20 km de Nantes, votre agence Maisons de l'Avenir Rezé est heureuse de vous proposer cette maison de 3 pièces de plain-pied de 86 m² bénéficiant d'un emplacement d'exception dans Le Landreau (44430). Elle offre trois chambres, une cuisine et une salle de bains.
Le terrain de la propriété s'étend sur 327 m².
La maison est neuve.
La propriété se situe dans un quartier prisé. L'École Primaire Publique la Sarmentille et l'École Primaire Privée Sainte Marie sont implantées à moins de 10 minutes à pied. Côté transports, on trouve les gares Le Pallet et La Haie-Fouassière à moins de 10 minutes en voiture. Il y a un accès à la nationale N249 à 6 km. Il y a une bibliothèque, un tennis, une boulangerie et deux boucheries-charcuteries à proximité.
Elle est à vendre pour la somme de 268 000 €.
N'hésitez pas à prendre contact avec Pierre Antoine BURILLE ((Numéro supprimé)) pour toute question sur la maison, sur les modalités de vente ou sur les démarches à suivre. Maisons de l'Avenir Rezé vous accompagne dans tous vos projets immobiliers et à toutes les étapes de votre projet.
Logement susceptibles de vous intéresser
Nous vous proposons de découvrir aussi cette sélection de logements situés à moins de 10km de Le Landreau et qui seraient susceptibles de vous intéresser.
Vallet
TERRAIN ET MAISONSitué dans un hameau calme, à seulement 2,7 km du bourg, ce terrain de 531m² offre un cadre paisible et privilégié pour la construction de votre maison sur mesure. A 15 minutes de Clisson, 25 de Cholet et environ 20 minutes de Nantes, ce bien assure une position stratégique. . Ce terrain est viabilisé et prêt à accueillir votre projet qui vous ressemble, adapté à vos besoins et à vos envies, dans un environnement agréable. Contactez-nous pour plus de renseignements et pour visiter ce terrain. Dès l’entrée, vous serez séduit par une pièce de vie spacieuse et baignée de lumière, où salon, salle à manger et cuisine ouverte créent un espace convivial et chaleureux. L’agencement fluide et fonctionnel vous permet de profiter pleinement de chaque instant en famille ou entre amis. Côté nuit, la maison offre trois belles chambres, pensées pour le confort et la tranquillité de chacun. La suite parentale, intime et élégante, devient un véritable refuge, tandis que les chambres supplémentaires s’adaptent parfaitement aux besoins des enfants ou d’un bureau. Une salle de bain moderne complète cet espace avec style et praticité. À l’extérieur, un jardin agréable prolonge l’espace de vie, idéal pour savourer des moments en plein air. Un intérieur harmonieux, lumineux et conçu pour votre quotidien – tout ce qu’il faut pour s’y sentir bien dès le premier jour !. Pour vous assurer un confort de vie et conformément à la RE2025, nous avons choisi un mode de chauffage par PAC + plancher chauffant, volets roulants électriques. Prix hors peinture, décoration, revêtements de sol dans les chambres, cuisine équipée, frais de notaire, raccordements, dommage ouvrage. // Réf. : 2652-213555-RRI. Prix terrain : 112 000 €, hors frais d'agence à la charge de l'acquéreur. Ce terrain vous est proposé, par nos partenaires fonciers, dans le cadre d'un projet de construction avec nous. Les informations sur les risques auxquels ce bien est exposé sont disponibles sur le site Géorisques (www.georisques.gouv.fr). Prix maison : 163 796 €.
Vallet
TERRAIN ET MAISONSitué dans un hameau calme, à seulement 2,7 km du bourg, ce terrain de 531m² offre un cadre paisible et privilégié pour la construction de votre maison sur mesure. A 15 minutes de Clisson, 25 de Cholet et environ 20 minutes de Nantes, ce bien assure une position stratégique. . Ce terrain est viabilisé et prêt à accueillir votre projet qui vous ressemble, adapté à vos besoins et à vos envies, dans un environnement agréable. Contactez-nous pour plus de renseignements et pour visiter ce terrain. Compacte et élégante, cette maison optimise chaque mètre carré pour offrir un cadre de vie chaleureux et pratique. Son vaste espace de vie ouvert, baigné de lumière, crée une atmosphère conviviale et fluide. Avec 3 chambres, dont une au rez-de-chaussée, elle s’adapte à toutes les étapes de la vie et garantit un équilibre parfait entre intimité et partage. Un garage intégré, des rangements malins et une conception bien pensée en font une maison aussi esthétique que fonctionnelle. Un modèle personnalisable, conçu pour s’adapter à vos envies et à votre style de vie. Laissez libre cours à votre imagination et contactez-nous pour en savoir plus !. Pour un confort optimal et conforme à la RE2025, cette maison dispose d’une PAC avec plancher chauffant au rez-de-chaussée, radiateurs à l’étage et volets roulants électriques. À noter : Le prix indiqué exclut les revêtements de sol des chambres, la cuisine aménagée, la peinture, la décoration, les raccordements, les frais de notaire et l’assurance dommages-ouvrage. . // Réf. : 348-213555-RRI. Prix terrain : 112 000 €, hors frais d'agence à la charge de l'acquéreur. Ce terrain vous est proposé, par nos partenaires fonciers, dans le cadre d'un projet de construction avec nous. Les informations sur les risques auxquels ce bien est exposé sont disponibles sur le site Géorisques (www.georisques.gouv.fr). Prix maison : 219 450 €.
Vallet
TERRAINSitué dans un hameau calme, à seulement 2,7 km du bourg, ce terrain de 531m² offre un cadre paisible et privilégié pour la construction de votre maison sur mesure. A 15 minutes de Clisson, 25 de Cholet et environ 20 minutes de Nantes, ce bien assure une position stratégique. . Ce terrain est viabilisé et prêt à accueillir votre projet qui vous ressemble, adapté à vos besoins et à vos envies, dans un environnement agréable. Contactez-nous pour plus de renseignements et pour visiter ce terrain. // Réf. : T213555. Prix terrain : 112 000 €, hors frais d'agence et de notaire à la charge de l'acquéreur. Ce terrain vous est proposé, par nos partenaires fonciers, dans le cadre d'un projet de construction avec nous. Les informations sur les risques auxquels ce bien est exposé sont disponibles sur le site Géorisques (www.georisques.gouv.fr).
Le Landreau
TERRAIN ET MAISONVENTE d’une maison F4 (75 m²) au LandreauEMPLACEMENT PRIVILÉGIÉ – MAISON 4 PIÈCES NEUVEEn vente : localisée à 48 km de l’océan Atlantique et à quelques kilomètres de Nantes, bénéficiant d’un emplacement d’exception dans Le Landreau (44430), votre agence Maisons de l’Avenir Rezé est heureuse de vous présenter cette maison de 4 pièces de 75 m² avec vue sur espace vert.Cette maison est de plain-pied. Son intérieur dispose de trois chambres, d’une cuisine et d’une salle de bains. Cette maison est neuve.Le terrain de la propriété est de 327 m².Cette maison se trouve dans un secteur attractif. Il y a l’École Primaire Publique la Sarmentille et l’École Primaire Privée Sainte Marie à moins de 10 minutes à pied. Niveau transports, on trouve les gares Le Pallet et La Haie-Fouassière à moins de 10 minutes en voiture. On trouve un accès à la nationale N249 à 6 km. Il y a une bibliothèque, un tennis, une boulangerie et deux boucheries-charcuteries dans les environs.Elle est proposée à l’achat pour 234 000 €.N’hésitez pas à prendre contact avec Pierre Antoine BURILLE (tél : (Numéro supprimé)) pour plus de renseignements sur le bien, sur les modalités de vente ou sur les démarches à suivre.
Divatte-sur-Loire
TERRAINSous offre! Le compromis est en cours de rédaction.Pour vos projets de vente ou d’achat, n’hésitez pas à me contacter!Katia Bascougnano vous propose de découvrir ce terrain de 411m² situé en hameau, à 5mn du bourg de la Chapelle Basse Mer et 5mn des ponts de Mauves sur Loire.Il est libre de constructeurs et se trouve hors lotissementLa viabilisation est à prévoir, les réseaux passent à proximité immédiate, y compris le tout à l’égout et la fibre.Budget : 90 990 euros honoraires inclus (dont 5 900 euros charge acquéreur). Net vendeur : 85 000 euros.Pour visiter et vous accompagner dans votre projet, contactez Katia BASCOUGNANO au (Numéro supprimé) ou par mail (Email supprimé).Cette présente annonce a été rédigée sous la responsabilité éditoriale de Katia Bascougnano agissant sous le statut d’agent commercial immatriculée au RSAC Nantes 2018AC00423 auprès de la SAS proprietes-privees.com, réseau national immobilier au capital de 40 000 euros, Zac le Chêne Ferré- 44 allée des Cinq Continents 44120 Vertou, RCS Nantes n° 487 624 777 00040, Carte professionnelle T et G n° CPI 4401 2016 000 010 388 CCI Nantes-Saint Nazaire, Garantie GALIAN – 89 rue de la Boétie, 75008 Paris.- Mandat réf : 429056.Le professionnel vous conseille, garantit et sécurise votre projet immobilier. (7.05 % honoraires TTC à la charge de l’acquéreur.) Katia BASCOUGNANO (EI) Agent Commercial – Numéro RSAC : NANTES 418009429 – .
Vallet
TERRAIN ET MAISONSitué dans un hameau calme, à seulement 2,7 km du bourg, ce terrain de 531m² offre un cadre paisible et privilégié pour la construction de votre maison sur mesure. A 15 minutes de Clisson, 25 de Cholet et environ 20 minutes de Nantes, ce bien assure une position stratégique. . Ce terrain est viabilisé et prêt à accueillir votre projet qui vous ressemble, adapté à vos besoins et à vos envies, dans un environnement agréable. Contactez-nous pour plus de renseignements et pour visiter ce terrain. Laissez-vous séduire par cette maison où l’espace et la lumière s’unissent pour créer un cadre de vie chaleureux et fonctionnel. Son vaste espace de vie, véritable cœur du foyer, invite à la convivialité et au partage, tout en offrant un confort optimal au quotidien. Avec trois chambres spacieuses, une salle de bain élégante, un cellier pratique et un garage intégré, cette maison a été pensée pour répondre aux besoins d’une vie moderne et organisée. Chaque détail a été étudié pour conjuguer praticité et esthétisme, offrant ainsi un lieu où il fait bon vivre en toute saison. Son architecture contemporaine et épurée, associée à un système de chauffage performant, garantit un cadre de vie agréable et éco-responsable. Une maison qui allie confort, modernité et sérénité – il ne manque plus que vous . Pour vous assurer un confort de vie et conformément à la RE2025, nous avons choisi un mode de chauffage par PAC + plancher chauffant, volets roulants électriques. Prix hors peinture, décoration, revêtements de sol dans les chambres, cuisine équipée, frais de notaire, raccordements, dommage ouvrage. // Réf. : 2650-213555-RRI. Prix terrain : 112 000 €, hors frais d'agence à la charge de l'acquéreur. Ce terrain vous est proposé, par nos partenaires fonciers, dans le cadre d'un projet de construction avec nous. Les informations sur les risques auxquels ce bien est exposé sont disponibles sur le site Géorisques (www.georisques.gouv.fr). Prix maison : 170 493 €.
Le Landreau
TERRAINLe Landreau : terrain de 327 m² en venteEMPLACEMENT PRIVILÉGIÉ – PROCHE DE NANTESTerrain de 327 m² à 48 km de l’océan Atlantique et à quelques kilomètres de Nantes. Ce terrain se situe bénéficiant d’un emplacement privilégié dans Le Landreau (44430). Ce terrain, orienté plein sud-ouest, donne sur un espace vert. Ce terrain se trouve dans un secteur prisé. L’École Primaire Publique la Sarmentille et l’École Primaire Privée Sainte Marie sont implantées à moins de 10 minutes à pied. Niveau transports, on trouve les gares Le Pallet et La Haie-Fouassière à moins de 10 minutes en voiture. La nationale N249 est accessible à 6 km. Il y a une bibliothèque, un tennis, une boulangerie et deux boucheries-charcuteries dans les environs.Il est à vendre pour la somme de 79 990 €. Contactez Pierre Antoine BURILLE ((Numéro supprimé)) pour plus de renseignements sur le terrain. Concrétisez vos projets immobiliers avec Maisons de l’Avenir Rezé.
Le Landreau
TERRAIN ET MAISONLe Landreau : maison de 3 pièces (86 m²) en venteEMPLACEMENT PRIVILÉGIÉ – MAISON 3 PIÈCES NEUVEÀ vendre à 48 km de l’océan Atlantique et à 20 km de Nantes, votre agence Maisons de l’Avenir Rezé est heureuse de vous proposer cette maison de 3 pièces de plain-pied de 86 m² bénéficiant d’un emplacement d’exception dans Le Landreau (44430). Elle offre trois chambres, une cuisine et une salle de bains.Le terrain de la propriété s’étend sur 327 m².La maison est neuve.La propriété se situe dans un quartier prisé. L’École Primaire Publique la Sarmentille et l’École Primaire Privée Sainte Marie sont implantées à moins de 10 minutes à pied. Côté transports, on trouve les gares Le Pallet et La Haie-Fouassière à moins de 10 minutes en voiture. Il y a un accès à la nationale N249 à 6 km. Il y a une bibliothèque, un tennis, une boulangerie et deux boucheries-charcuteries à proximité.Elle est à vendre pour la somme de 268 000 €.N’hésitez pas à prendre contact avec Pierre Antoine BURILLE ((Numéro supprimé)) pour toute question sur la maison, sur les modalités de vente ou sur les démarches à suivre. Maisons de l’Avenir Rezé vous accompagne dans tous vos projets immobiliers et à toutes les étapes de votre projet.
Le Landreau
TERRAIN ET MAISONLe Landreau : maison de 5 pièces (89 m²) à vendreEMPLACEMENT PRIVILÉGIÉ – MAISON 5 PIÈCES NEUVEÀ vendre : localisée à 48 km de l’océan Atlantique et à deux pas de Nantes, bénéficiant d’un emplacement d’exception dans Le Landreau (44430), Maisons de l’Avenir Rezé vous propose cette maison de 5 pièces de 89 m² et de 327 m² de terrain.Cette maison possède 2 niveaux. Elle offre quatre chambres, une cuisine et deux salles de bains. Cette maison est neuve.La maison se situe dans un quartier attractif. Il y a l’École Primaire Publique la Sarmentille et l’École Primaire Privée Sainte Marie à moins de 10 minutes à pied. Niveau transports, on trouve deux gares (Le Pallet et La Haie-Fouassière) à moins de 10 minutes en voiture. On trouve un accès à la nationale N249 à 6 km. Il y a une bibliothèque, un tennis, une boulangerie et deux boucheries-charcuteries à proximité.Elle est à vendre pour la somme de 275 000 €.Contactez notre agence (Pierre Antoine BURILLE : (Numéro supprimé)) pour plus de renseignements sur la maison. Maisons de l’Avenir Rezé est là pour vous accompagner dans tous vos projets immobiliers.
L’actualité immobilière à Le Landreau
27/11/2023
02/11/2023
30/10/2023
20/10/2023
16/10/2023
16/10/2023