Maison à construire à Le Pellerin (44640)
Images
Description
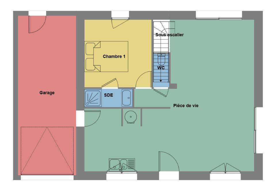
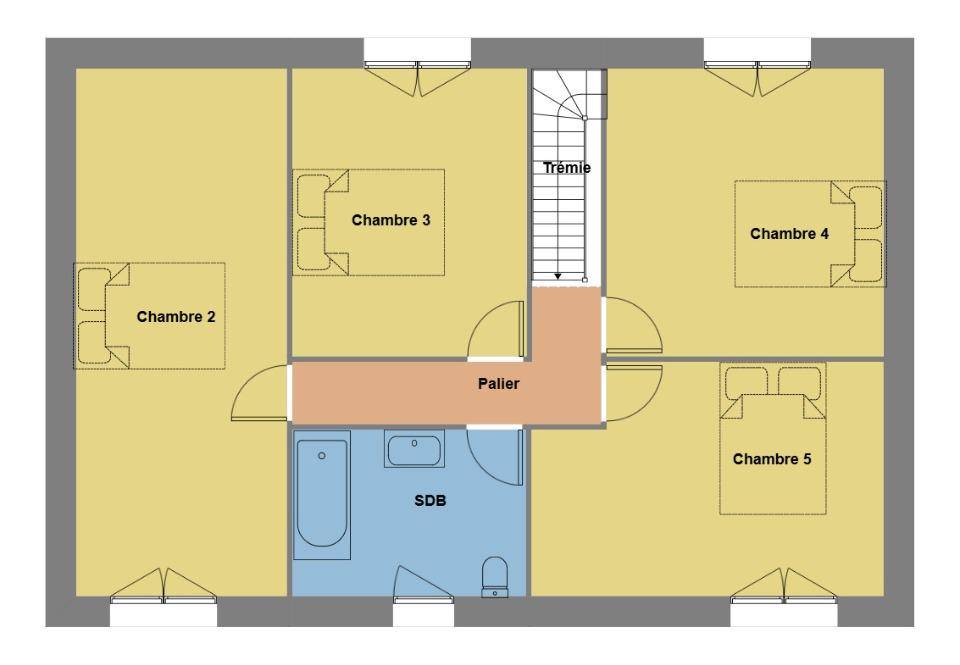
Maison F6 (140 m²) à vendre au Pellerin
EMPLACEMENT PRIVILÉGIÉ - MAISON 6 PIÈCES NEUVE
À vendre : sur le littoral atlantique et à 22 km de Nantes, nous sommes heureux de vous proposer cette maison de 6 pièces de 140 m² et de 552 m² de terrain bénéficiant d'un emplacement privilégié dans Le Pellerin (44640). Son intérieur dispose de cinq chambres, d'une cuisine et de deux salles de bains.
C'est une maison de 2 niveaux. Elle est neuve.
Cette maison se trouve dans un quartier prisé. Il y a cinq établissements scolaires à moins de 10 minutes à pied, tout comme deux crèches. Niveau transports, on trouve cinq gares à moins de 10 minutes en voiture. Les nationales N444, N165 et N844 sont accessibles à moins de 10 km. Il y a un tennis, des commerces, deux boulangeries, un supermarché, un bureau de poste et une épicerie dans les environs. Le marché Rue du Docteur Sourdille a lieu tous les samedis matin.
Elle est à vendre pour la somme de 421 000 €.
N'hésitez pas à prendre contact avec Jean-Baptiste ((Numéro supprimé)) pour tout renseignement sur la maison, sur les modalités de vente ou sur les démarches à suivre. Maisons de l'Avenir Orvault est là pour vous accompagner dans tous vos projets immobiliers.
Logement susceptibles de vous intéresser
Nous vous proposons de découvrir aussi cette sélection de logements situés à moins de 10km de Le Pellerin et qui seraient susceptibles de vous intéresser.
Rouans
TERRAIN ET MAISONDans le bourg de Rouans, terrain de 463 m² viabilisé. Pensée pour offrir un cadre de vie harmonieux, cette maison séduit par son agencement optimisé et ses espaces lumineux. En entrant, vous découvrez une grande pièce de vie où le salon et la salle à manger s’ouvrent sur l’extérieur, créant un lieu convivial et chaleureux. La cuisine, fonctionnelle et moderne, est conçue pour allier praticité et esthétisme. L’espace nuit se compose de trois belles chambres, chacune offrant un cadre apaisant et propice au repos. Une salle de bain élégante et bien agencée facilite le quotidien, tandis que des rangements astucieux permettent de garder un intérieur toujours organisé. Pratique, moderne et confortable, cette maison n’attend plus que vous !. Pour vous assurer un confort de vie optimal et en conformité avec la RE2025, nous avons opté pour un système de chauffage par pompe à chaleur (PAC) avec plancher chauffant au rez-de-chaussée et radiateurs à l’étage. Le logement est également équipé de volets roulants électriques. . Prix hors fourniture et pose : des appareils sanitaires (sauf système de chauffage et d'eau chaude sanitaire), du carrelage et de la faïence, des revêtements de sol dans les chambres. Hors décoration et aménagement intérieur et peinture. Hors raccordements, frais de notaire et dommage ouvrage. // Réf. : 697-210812-MVR. Prix terrain : 84 000 €, hors frais d'agence à la charge de l'acquéreur. Ce terrain vous est proposé, par nos partenaires fonciers, dans le cadre d'un projet de construction avec nous. Les informations sur les risques auxquels ce bien est exposé sont disponibles sur le site Géorisques (www.georisques.gouv.fr). Prix maison : 133 869 €.
Rouans
TERRAIN ET MAISONDans le bourg de Rouans, terrain de 463 m² viabilisé. Des espaces optimisés pour cette charmante maison de plain-pied lumineuse grâce à son espace de vie éclairé par sa grande baie vitrée et sa lumière traversante, cuisine ouverte avec accès direct au cellier. Côté nuit, un dégagement dessert trois chambres avec rangement, salle de bains et wc indépendant. Pour vous assurer un confort de vie et conformément à la RE2025, nous avons choisi un mode de chauffage par PAC + plancher chauffant, volets roulants électriques. Prix hors fourniture et pose : des appareils sanitaires (sauf système de chauffage et d'eau chaude sanitaire), du carrelage et de la faïence, des revêtements de sol dans les chambres. Hors décoration et aménagement intérieur et peinture. Hors raccordements, frais de notaire et dommage ouvrage. // Réf. : 996-210812-MVR. Prix terrain : 84 000 €, hors frais d'agence à la charge de l'acquéreur. Ce terrain vous est proposé, par nos partenaires fonciers, dans le cadre d'un projet de construction avec nous. Les informations sur les risques auxquels ce bien est exposé sont disponibles sur le site Géorisques (www.georisques.gouv.fr). Prix maison : 118 004 €.
Rouans
TERRAIN ET MAISONDans le bourg de Rouans, terrain de 463 m² viabilisé. Spacieuse et fonctionnelle, cette maison traditionnelle de plain-pied est dotée d'un grand espace de vie de 40 m² environ avec cuisine ouverte, très lumineux inondé de lumière grâce à ses grandes ouvertures. Un dégagement dessert trois chambres, une salle de bains. Le garage intégré communiquant avec le cellier se révélera un plus pour cette charmante maison. Pour vous assurer un confort de vie et conformément à la RE2025, nous avons choisi un mode de chauffage par PAC + plancher chauffant, volets roulants électriques. Prix hors fourniture et pose : des appareils sanitaires (sauf système de chauffage et d'eau chaude sanitaire), du carrelage et de la faïence, des revêtements de sol dans les chambres. Hors décoration et aménagement intérieur et peinture. Hors raccordements, frais de notaire et dommage ouvrage. // Réf. : 1140-210812-MVR. Prix terrain : 84 000 €, hors frais d'agence à la charge de l'acquéreur. Ce terrain vous est proposé, par nos partenaires fonciers, dans le cadre d'un projet de construction avec nous. Les informations sur les risques auxquels ce bien est exposé sont disponibles sur le site Géorisques (www.georisques.gouv.fr). Prix maison : 135 500 €.
Rouans
TERRAINDans le bourg de Rouans, terrain de 463 m² viabilisé. // Réf. : T210812. Prix terrain : 84 000 €, hors frais d'agence et de notaire à la charge de l'acquéreur. Ce terrain vous est proposé, par nos partenaires fonciers, dans le cadre d'un projet de construction avec nous. Les informations sur les risques auxquels ce bien est exposé sont disponibles sur le site Géorisques (www.georisques.gouv.fr).
Saint-Étienne-de-Montluc
TERRAIN ET MAISONA SAINT-ETIENNE-DE-MONTLUC sur un terrain de 372 m², Alliance Construction vous propose de réaliser votre projet de construction de maison individuelle d'une surface de 92.07 m² habitables avec 3 chambres, à partir de 298555€*Informations du terrain : Saint-Etienne-de-Montluc est une charmante commune où la tranquillité de la vie rurale se mêle harmonieusement à la vitalité urbaine. Nichée dans un écrin de verdure, cette perle rare est le lieu idéal pour ceux qui cherchent à s’établir dans un cadre serein sans renoncer aux commodités de la métropole nantaise.Imaginez votre future maison dans un environnement calme et sécurisé, où la qualité de vie prend tout son sens.Saint-Etienne-de-Montluc est idéalement située. Grâce à sa proximité avec les principales voies de circulation et les transports en commun, la ville offre un accès rapide et pratique aux grandes agglomérations voisines.La commune ne manque pas de services essentiels. Avec des écoles accueillantes pour vos enfants, des infrastructures sportives pour les activités de loisirs, et un accès facilité aux soins de santé, Saint-Etienne-de-Montluc se positionne comme un choix de vie idéal pour les familles, les actifs et les retraités.Demandez une étude gratuite et personnalisée de votre projet de construction !* Cette offre comprend :- Garanties constructeurs (dommages ouvrage, garantie de prix ferme et définitif, garantie de livraison, responsabilité civile et décennale).- Branchements aux compteurs et accès empierré sur 5m linéaires.Habitez une maison spécialement pensée et conçue pour vous et votre famille, prête à décorer, adaptée à vos modes de vie, personnalisée selon vos goûts grâce à un large choix d'options, de matériaux et d'innovations !Contactez Benoit COCHIN au (Numéro supprimé) (Alliance Construction – Agence de Pontchâteau).*Prix indicatif pour un projet de construction d'une maison individuelle. Ne sont pas inclus les frais de branchements, raccordements aux réseaux publics, frais d'adaptations, aménagements intérieurs et extérieurs et options. terrain viabilisé, frais de notaire non compris, frais divers non compris. Garanties et assurances obligatoires incluses. Terrain sélectionné par ALLIANCE auprès de nos partenaires fonciers, selon disponibilité, pour la construction d'une maison neuve. Non mandaté pour réaliser la vente (loi du 2 janvier 1970 n°70-9). Visuels non contractuels. Voir détails en agence.Cette annonce a été créée et diffusée avec le logiciel VITAHOME.
Saint-Étienne-de-Montluc
TERRAINSaint-Etienne-de-Montluc est une charmante commune où la tranquillité de la vie rurale se mêle harmonieusement à la vitalité urbaine. Nichée dans un écrin de verdure, cette perle rare est le lieu idéal pour ceux qui cherchent à s’établir dans un cadre serein sans renoncer aux commodités de la métropole nantaise.Imaginez votre future maison dans un environnement calme et sécurisé, où la qualité de vie prend tout son sens.Saint-Etienne-de-Montluc est idéalement située. Grâce à sa proximité avec les principales voies de circulation et les transports en commun, la ville offre un accès rapide et pratique aux grandes agglomérations voisines.La commune ne manque pas de services essentiels. Avec des écoles accueillantes pour vos enfants, des infrastructures sportives pour les activités de loisirs, et un accès facilité aux soins de santé, Saint-Etienne-de-Montluc se positionne comme un choix de vie idéal pour les familles, les actifs et les retraités.Prix : 128000 €.Sur ce terrain de 372 m² à SAINT-ETIENNE-DE-MONTLUC, Alliance Construction vous propose de réaliser votre projet de construction de maison individuelle.Avec Alliance Construction, habitez une maison spécialement pensée et conçue pour vous et votre famille, prête à décorer, adaptée à vos modes de vie, personnalisée selon vos goûts grâce à un large choix d'options, de matériaux et d'innovations ! Demandez une étude gratuite et personnalisée de votre projet de construction sur ce terrain à SAINT-ETIENNE-DE-MONTLUC !Contactez Benoit COCHIN au (Numéro supprimé) (Alliance Construction – Agence de Pontchâteau).Prix hors frais de notaire. Terrain sélectionné par ALLIANCE auprès de nos partenaires fonciers, selon disponibilité, pour la construction d'une maison neuve. Non mandaté pour réaliser la vente (loi du 2 janvier 1970 n°70-9). Visuels non contractuels. Voir détails en agence.Cette annonce a été créée et diffusée avec le logiciel VITAHOME.
Saint-Étienne-de-Montluc
TERRAINUn havre de paix aux portes de Nantes. Ce terrain entièrement viabilisé offre le meilleur des deux mondes : la tranquillité d'un cadre verdoyant et la proximité de tous les services de la ville.Prix : 145000 €.Sur ce terrain de 656 m² à SAINT-ETIENNE-DE-MONTLUC, Alliance Construction vous propose de réaliser votre projet de construction de maison individuelle.Avec Alliance Construction, habitez une maison spécialement pensée et conçue pour vous et votre famille, prête à décorer, adaptée à vos modes de vie, personnalisée selon vos goûts grâce à un large choix d'options, de matériaux et d'innovations ! Demandez une étude gratuite et personnalisée de votre projet de construction sur ce terrain à SAINT-ETIENNE-DE-MONTLUC !Contactez Thierry MONLEZUN au (Numéro supprimé) (Alliance Construction – Agence de Nantes Aubinière).Prix hors frais de notaire. Terrain sélectionné par ALLIANCE auprès de nos partenaires fonciers, selon disponibilité, pour la construction d'une maison neuve. Non mandaté pour réaliser la vente (loi du 2 janvier 1970 n°70-9). Visuels non contractuels. Voir détails en agence.Cette annonce a été créée et diffusée avec le logiciel VITAHOME.
Rouans
TERRAINDécouvrez ce terrain viabilisé de 682 m² à vendre à Rouans. Situé dans un environnement calme et verdoyant, il vous offre la possibilité de construire la maison de vos rêves tout en profitant de la proximité des commodités (écoles, commerces, transports).N'attendez plus pour organiser une visite ! Contactez-nous dès maintenant pour en savoir plus.Prix : 85000 €.Sur ce terrain de 682 m² à ROUANS, Alliance Construction vous propose de réaliser votre projet de construction de maison individuelle.Avec Alliance Construction, habitez une maison spécialement pensée et conçue pour vous et votre famille, prête à décorer, adaptée à vos modes de vie, personnalisée selon vos goûts grâce à un large choix d'options, de matériaux et d'innovations ! Demandez une étude gratuite et personnalisée de votre projet de construction sur ce terrain à ROUANS !Contactez Thierry MONLEZUN au (Numéro supprimé) (Alliance Construction – Agence de Nantes Aubinière).Prix hors frais de notaire. Terrain sélectionné par ALLIANCE auprès de nos partenaires fonciers, selon disponibilité, pour la construction d'une maison neuve. Non mandaté pour réaliser la vente (loi du 2 janvier 1970 n°70-9). Visuels non contractuels. Voir détails en agence.Cette annonce a été créée et diffusée avec le logiciel VITAHOME.
Rouans
TERRAIN ET MAISONA ROUANS sur un terrain de 285 m², Alliance Construction vous propose de réaliser votre projet de construction de maison individuelle d'une surface de 102.5 m² habitables avec 4 chambres, à partir de 293200€*Informations du terrain : Parcelle entièrement viabilisée. A proximité des commodités locales, écoles, commerces, transports et du centre-ville.Environnement calme et résidentiel.Proche des axes routiers principaux et des services.Pour plus d'informations ou pour organiser une visite, contactez-nous.Demandez une étude gratuite et personnalisée de votre projet de construction !* Cette offre comprend :- Garanties constructeurs (dommages ouvrage, garantie de prix ferme et définitif, garantie de livraison, responsabilité civile et décennale).- Branchements aux compteurs et accès empierré sur 5m linéaires.Habitez une maison spécialement pensée et conçue pour vous et votre famille, prête à décorer, adaptée à vos modes de vie, personnalisée selon vos goûts grâce à un large choix d'options, de matériaux et d'innovations !Contactez Thierry MONLEZUN au (Numéro supprimé) (Alliance Construction – Agence de Nantes Aubinière).*Prix indicatif pour un projet de construction d'une maison individuelle. Ne sont pas inclus les frais de branchements, raccordements aux réseaux publics, frais d'adaptations, aménagements intérieurs et extérieurs et options. terrain viabilisé, frais de notaire non compris, frais divers non compris. Garanties et assurances obligatoires incluses. Terrain sélectionné par ALLIANCE auprès de nos partenaires fonciers, selon disponibilité, pour la construction d'une maison neuve. Non mandaté pour réaliser la vente (loi du 2 janvier 1970 n°70-9). Visuels non contractuels. Voir détails en agence.Cette annonce a été créée et diffusée avec le logiciel VITAHOME.
L’actualité immobilière à Le Pellerin
27/11/2023
02/11/2023
30/10/2023
20/10/2023
16/10/2023
16/10/2023