Maison à construire à Les Sorinières (44840)
Images
Description
Maison F5 (90 m²) en vente aux Sorinières
EMPLACEMENT PRIVILÉGIÉ - MAISON 5 PIÈCES NEUVE
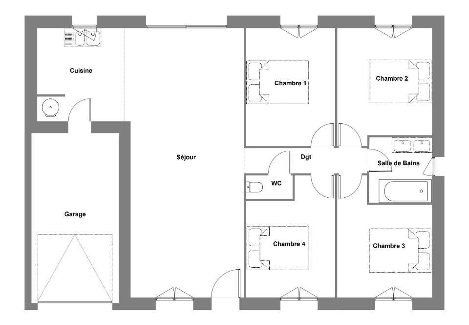
À vendre : localisée à 25 km de la côte atlantique et à deux pas de Nantes, nous vous proposons cette maison de 5 pièces de plain-pied de 90 m² et de 202 m² de terrain, bénéficiant d'un emplacement d'exception dans Les Sorinières (44840). Conçue de plain-pied, elle inclut quatre chambres, une cuisine et une salle de bains.
La maison est neuve.
Cette maison se trouve dans un quartier recherché. L'École Primaire Privée Graine d'Explorateur est implantée à moins de 10 minutes à pied. Côté transports en commun, il y a six gares à moins de 10 minutes en voiture. L'autoroute A83 et les nationales N844 et N249 sont accessibles à moins de 10 km. On trouve une bibliothèque et deux commerces dans les environs.
Elle est à vendre pour la somme de 295 000 €.
N'hésitez pas à prendre contact avec notre agence (Pierre Antoine BURILLE : (Numéro supprimé)) pour toute question sur la propriété, sur les démarches à suivre ou sur les modalités de vente. Donnez vie à vos projets immobiliers avec Maisons de l'Avenir Rezé.
Logement susceptibles de vous intéresser
Nous vous proposons de découvrir aussi cette sélection de logements situés à moins de 10km de Les Sorinières et qui seraient susceptibles de vous intéresser.
Pont-Saint-Martin
TERRAIN ET MAISONA PONT-SAINT-MARTIN sur un terrain de 367 m², Alliance Construction vous propose de réaliser votre projet de construction de maison individuelle d'une surface de 106.13 m² habitables avec 4 chambres, à partir de 324300€*Informations du terrain : Venez découvrir ce terrain à bâtir situé à Pont-Saint-Martin, dans un environnement paisible et résidentiel. Hors lotissement, cette parcelle vous offre une grande liberté pour concevoir la maison de vos rêves. Profitez d'un cadre de vie agréable à proximité de toutes les commodités. Contactez-nous au pour une visite.Demandez une étude gratuite et personnalisée de votre projet de construction !* Cette offre comprend :- Garanties constructeurs (dommages ouvrage, garantie de prix ferme et définitif, garantie de livraison, responsabilité civile et décennale).- Branchements aux compteurs et accès empierré sur 5m linéaires.Habitez une maison spécialement pensée et conçue pour vous et votre famille, prête à décorer, adaptée à vos modes de vie, personnalisée selon vos goûts grâce à un large choix d'options, de matériaux et d'innovations !Contactez Thierry MONLEZUN au (Numéro supprimé) (Alliance Construction – Agence de Nantes Aubinière).*Prix indicatif pour un projet de construction d'une maison individuelle. Ne sont pas inclus les frais de branchements, raccordements aux réseaux publics, frais d'adaptations, aménagements intérieurs et extérieurs et options. terrain non viabilisé, frais de notaire non compris, frais divers non compris. Garanties et assurances obligatoires incluses. Terrain sélectionné par ALLIANCE auprès de nos partenaires fonciers, selon disponibilité, pour la construction d'une maison neuve. Non mandaté pour réaliser la vente (loi du 2 janvier 1970 n°70-9). Visuels non contractuels. Voir détails en agence.Cette annonce a été créée et diffusée avec le logiciel VITAHOME.
Basse-Goulaine
TERRAIN ET MAISONDécouvrez ce terrain dans un secteur recherché, situé à seulement 3 minutes du Centre commercial Pôle Sud, dans un environnement qui à tout pour plaire. Avec une surface de 661 m², il constitue un cadre idéal pour concevoir et bâtir la maison de vos rêves. Ce que vous allez adorer:. Localisation privilégiéeCadre de vie agréable. Proximité des commodités : Écoles, complexes sportifs et services accessibles en quelques minutes. Transports à proximité: C9, 112, 152, 60Terrain viabiliséContactez-nous dès maintenant pour organiser une visite et obtenir plus d’informations. Une maison moderne et astucieuse, prête à accueillir vos projets de vie !. Laissez-vous séduire par cette charmante maison à étage conçue pour allier confort et fonctionnalité. Son vaste espace de vie de plus de 42 m², baigné de lumière, s’ouvre sur l’extérieur pour des moments de convivialité en famille. Profitez du confort d’une suite parentale avec dressing et salle d’eau au rez-de-chaussée, offrant intimité et praticité. À l’étage, deux belles chambres et une salle de bains complètent cet espace pensé pour toute la famille. Un garage de plus de 23 m² vient parfaire ce bien, idéal pour allier rangement et stationnement. Une maison moderne et astucieuse, prête à accueillir vos projets de vie !. Pour un confort optimal et conforme à la RE2025, cette maison dispose d’une PAC avec plancher chauffant au rez-de-chaussée, radiateurs à l’étage et volets roulants électriques. À noter : Le prix indiqué exclut les revêtements de sol des chambres, la cuisine aménagée, la peinture, la décoration, les raccordements, les frais de notaire et l’assurance dommages-ouvrage. (Carport non contractuel, non compris dans le prix). // Réf. : 2429-213679-RRI. Prix terrain : 256 000 €, hors frais d'agence à la charge de l'acquéreur. Ce terrain vous est proposé, par nos partenaires fonciers, dans le cadre d'un projet de construction avec nous. Les informations sur les risques auxquels ce bien est exposé sont disponibles sur le site Géorisques (www.georisques.gouv.fr). Prix maison : 216 060 €.
Basse-Goulaine
TERRAINDécouvrez ce terrain dans un secteur recherché, situé à seulement 3 minutes du Centre commercial Pôle Sud, dans un environnement qui à tout pour plaire. Avec une surface de 661 m², il constitue un cadre idéal pour concevoir et bâtir la maison de vos rêves. Ce que vous allez adorer:. Localisation privilégiéeCadre de vie agréable. Proximité des commodités : Écoles, complexes sportifs et services accessibles en quelques minutes. Transports à proximité: C9, 112, 152, 60Terrain viabiliséContactez-nous dès maintenant pour organiser une visite et obtenir plus d’informations. // Réf. : T213679. Prix terrain : 256 000 €, hors frais d'agence et de notaire à la charge de l'acquéreur. Ce terrain vous est proposé, par nos partenaires fonciers, dans le cadre d'un projet de construction avec nous. Les informations sur les risques auxquels ce bien est exposé sont disponibles sur le site Géorisques (www.georisques.gouv.fr).
Basse-Goulaine
TERRAIN ET MAISONDécouvrez ce terrain dans un secteur recherché, situé à seulement 3 minutes du Centre commercial Pôle Sud, dans un environnement qui à tout pour plaire. Avec une surface de 661 m², il constitue un cadre idéal pour concevoir et bâtir la maison de vos rêves. Ce que vous allez adorer:. Localisation privilégiéeCadre de vie agréable. Proximité des commodités : Écoles, complexes sportifs et services accessibles en quelques minutes. Transports à proximité: C9, 112, 152, 60Terrain viabiliséContactez-nous dès maintenant pour organiser une visite et obtenir plus d’informations. Compacte et élégante, cette maison optimise chaque mètre carré pour offrir un cadre de vie chaleureux et pratique. Son vaste espace de vie ouvert, baigné de lumière, crée une atmosphère conviviale et fluide. Avec 3 chambres, dont une au rez-de-chaussée, elle s’adapte à toutes les étapes de la vie et garantit un équilibre parfait entre intimité et partage. Un garage intégré, des rangements malins et une conception bien pensée en font une maison aussi esthétique que fonctionnelle. Un modèle personnalisable, conçu pour s’adapter à vos envies et à votre style de vie. Laissez libre cours à votre imagination et contactez-nous pour en savoir plus !. Pour un confort optimal et conforme à la RE2025, cette maison dispose d’une PAC avec plancher chauffant au rez-de-chaussée, radiateurs à l’étage et volets roulants électriques. À noter : Le prix indiqué exclut les revêtements de sol des chambres, la cuisine aménagée, la peinture, la décoration, les raccordements, les frais de notaire et l’assurance dommages-ouvrage. . // Réf. : 348-213679-RRI. Prix terrain : 256 000 €, hors frais d'agence à la charge de l'acquéreur. Ce terrain vous est proposé, par nos partenaires fonciers, dans le cadre d'un projet de construction avec nous. Les informations sur les risques auxquels ce bien est exposé sont disponibles sur le site Géorisques (www.georisques.gouv.fr). Prix maison : 219 450 €.
Pont-Saint-Martin
TERRAINVenez découvrir ce terrain à bâtir situé à Pont-Saint-Martin, dans un environnement paisible et résidentiel. Hors lotissement, cette parcelle vous offre une grande liberté pour concevoir la maison de vos rêves. Profitez d'un cadre de vie agréable à proximité de toutes les commodités. Contactez-nous au pour une visite.Prix : 93000 €.Sur ce terrain de 367 m² à PONT-SAINT-MARTIN, Alliance Construction vous propose de réaliser votre projet de construction de maison individuelle.Avec Alliance Construction, habitez une maison spécialement pensée et conçue pour vous et votre famille, prête à décorer, adaptée à vos modes de vie, personnalisée selon vos goûts grâce à un large choix d'options, de matériaux et d'innovations ! Demandez une étude gratuite et personnalisée de votre projet de construction sur ce terrain à PONT-SAINT-MARTIN !Contactez Thierry MONLEZUN au (Numéro supprimé) (Alliance Construction – Agence de Nantes Aubinière).Prix hors frais de notaire. Terrain sélectionné par ALLIANCE auprès de nos partenaires fonciers, selon disponibilité, pour la construction d'une maison neuve. Non mandaté pour réaliser la vente (loi du 2 janvier 1970 n°70-9). Visuels non contractuels. Voir détails en agence.Cette annonce a été créée et diffusée avec le logiciel VITAHOME.
Vertou
TERRAIN ET MAISONTerrain d'environ 400 m² , en second rideau, situé proche de la route de la Gare. Localisation stratégique, venez découvrir ce bien au plus vite. N'hésitez pas à nous contacter pour plus de renseignement. Compacte et élégante, cette maison optimise chaque mètre carré pour offrir un cadre de vie chaleureux et pratique. Son vaste espace de vie ouvert, baigné de lumière, crée une atmosphère conviviale et fluide. Avec 3 chambres, dont une au rez-de-chaussée, elle s’adapte à toutes les étapes de la vie et garantit un équilibre parfait entre intimité et partage. Un garage intégré, des rangements malins et une conception bien pensée en font une maison aussi esthétique que fonctionnelle. Un modèle personnalisable, conçu pour s’adapter à vos envies et à votre style de vie. Laissez libre cours à votre imagination et contactez-nous pour en savoir plus !. Pour un confort optimal et conforme à la RE2025, cette maison dispose d’une PAC avec plancher chauffant au rez-de-chaussée, radiateurs à l’étage et volets roulants électriques. À noter : Le prix indiqué exclut les revêtements de sol des chambres, la cuisine aménagée, la peinture, la décoration, les raccordements, les frais de notaire et l’assurance dommages-ouvrage. . // Réf. : 348-213680-RRI. Prix terrain : 160 000 €, hors frais d'agence à la charge de l'acquéreur. Ce terrain vous est proposé, par nos partenaires fonciers, dans le cadre d'un projet de construction avec nous. Les informations sur les risques auxquels ce bien est exposé sont disponibles sur le site Géorisques (www.georisques.gouv.fr). Prix maison : 219 450 €.
Pont-Saint-Martin
TERRAIN ET MAISONA PONT-SAINT-MARTIN sur un terrain de 367 m², Alliance Construction vous propose de réaliser votre projet de construction de maison individuelle d'une surface de 87.91 m² habitables avec 3 chambres, à partir de 251500€*Informations du terrain : Venez découvrir ce terrain à bâtir situé à Pont-Saint-Martin, dans un environnement paisible et résidentiel. Hors lotissement, cette parcelle vous offre une grande liberté pour concevoir la maison de vos rêves. Profitez d'un cadre de vie agréable à proximité de toutes les commodités. Contactez-nous au pour une visite.Demandez une étude gratuite et personnalisée de votre projet de construction !* Cette offre comprend :- Garanties constructeurs (dommages ouvrage, garantie de prix ferme et définitif, garantie de livraison, responsabilité civile et décennale).- Branchements aux compteurs et accès empierré sur 5m linéaires.Habitez une maison spécialement pensée et conçue pour vous et votre famille, prête à décorer, adaptée à vos modes de vie, personnalisée selon vos goûts grâce à un large choix d'options, de matériaux et d'innovations !Contactez Thierry MONLEZUN au (Numéro supprimé) (Alliance Construction – Agence de Nantes Aubinière).*Prix indicatif pour un projet de construction d'une maison individuelle. Ne sont pas inclus les frais de branchements, raccordements aux réseaux publics, frais d'adaptations, aménagements intérieurs et extérieurs et options. terrain non viabilisé, frais de notaire non compris, frais divers non compris. Garanties et assurances obligatoires incluses. Terrain sélectionné par ALLIANCE auprès de nos partenaires fonciers, selon disponibilité, pour la construction d'une maison neuve. Non mandaté pour réaliser la vente (loi du 2 janvier 1970 n°70-9). Visuels non contractuels. Voir détails en agence.Cette annonce a été créée et diffusée avec le logiciel VITAHOME.
Basse-Goulaine
TERRAIN ET MAISONDécouvrez ce terrain dans un secteur recherché, situé à seulement 3 minutes du Centre commercial Pôle Sud, dans un environnement qui à tout pour plaire. Avec une surface de 661 m², il constitue un cadre idéal pour concevoir et bâtir la maison de vos rêves. Ce que vous allez adorer:. Localisation privilégiéeCadre de vie agréable. Proximité des commodités : Écoles, complexes sportifs et services accessibles en quelques minutes. Transports à proximité: C9, 112, 152, 60Terrain viabiliséContactez-nous dès maintenant pour organiser une visite et obtenir plus d’informations. Un agencement intelligent et des espaces lumineux pour cette maison de plus de 110 m² habitables. Son grand séjour ouvert invite à la convivialité, tandis que ses 4 chambres bien réparties, dont une au rez-de-chaussée, assurent confort et intimité pour toute la famille. Un cadre de vie agréable, avec de belles ouvertures sur l’extérieur et des volumes optimisés pour un maximum de praticité. Garage et espaces de rangement intégrés, pensés pour s’adapter à votre quotidien. Une maison qui conjugue modernité, confort et adaptabilité. Pour un confort optimal et conforme à la RE2025, cette maison dispose d’une PAC avec plancher chauffant au rez-de-chaussée, radiateurs à l’étage et volets roulants électriques. À noter : Le prix indiqué exclut les revêtements de sol des chambres, la cuisine aménagée, la peinture, la décoration, les raccordements, les frais de notaire et l’assurance dommages-ouvrage. . // Réf. : 2637-213679-RRI. Prix terrain : 256 000 €, hors frais d'agence à la charge de l'acquéreur. Ce terrain vous est proposé, par nos partenaires fonciers, dans le cadre d'un projet de construction avec nous. Les informations sur les risques auxquels ce bien est exposé sont disponibles sur le site Géorisques (www.georisques.gouv.fr). Prix maison : 239 856 €.
Pont-Saint-Martin
TERRAIN ET MAISONA PONT-SAINT-MARTIN sur un terrain de 367 m², Alliance Construction vous propose de réaliser votre projet de construction de maison individuelle d'une surface de 92.96 m² habitables avec 3 chambres, à partir de 273900€*Informations du terrain : Venez découvrir ce terrain à bâtir situé à Pont-Saint-Martin, dans un environnement paisible et résidentiel. Hors lotissement, cette parcelle vous offre une grande liberté pour concevoir la maison de vos rêves. Profitez d'un cadre de vie agréable à proximité de toutes les commodités. Contactez-nous au pour une visite.Demandez une étude gratuite et personnalisée de votre projet de construction !* Cette offre comprend :- Garanties constructeurs (dommages ouvrage, garantie de prix ferme et définitif, garantie de livraison, responsabilité civile et décennale).- Branchements aux compteurs et accès empierré sur 5m linéaires.Habitez une maison spécialement pensée et conçue pour vous et votre famille, prête à décorer, adaptée à vos modes de vie, personnalisée selon vos goûts grâce à un large choix d'options, de matériaux et d'innovations !Contactez Thierry MONLEZUN au (Numéro supprimé) (Alliance Construction – Agence de Nantes Aubinière).*Prix indicatif pour un projet de construction d'une maison individuelle. Ne sont pas inclus les frais de branchements, raccordements aux réseaux publics, frais d'adaptations, aménagements intérieurs et extérieurs et options. terrain non viabilisé, frais de notaire non compris, frais divers non compris. Garanties et assurances obligatoires incluses. Terrain sélectionné par ALLIANCE auprès de nos partenaires fonciers, selon disponibilité, pour la construction d'une maison neuve. Non mandaté pour réaliser la vente (loi du 2 janvier 1970 n°70-9). Visuels non contractuels. Voir détails en agence.Cette annonce a été créée et diffusée avec le logiciel VITAHOME.
L’actualité immobilière à Les Sorinières
27/11/2023
02/11/2023
30/10/2023
20/10/2023
16/10/2023
16/10/2023