Images
Description
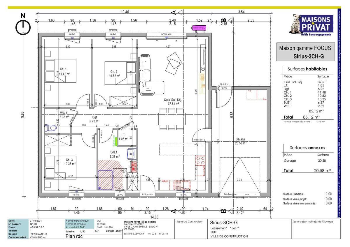
Sur ce terrain, nous vous proposons cette élégante maison de plain-pied, dont la conception soignée mise sur la luminosité et la convivialité. Dès l’entrée, vous serez accueilli par une généreuse pièce à vivre de plus de 37 m², inondée de lumière naturelle, qui rassemble salon, salle à manger et cuisine ouverte pour des moments de partage en famille ou entre amis.
La partie nuit se compose de trois chambres confortables, offrant chacune la possibilité d’aménager rangements et espace de travail selon vos envies. Une salle de bain moderne, un WC indépendant viennent compléter un agencement pensé pour simplifier votre quotidien.
Sur cette version, un garage peut être ajouté en option.
Avec sa disposition ingénieuse et ses volumes agréables, cette maison saura vous séduire par son atmosphère chaleureuse et son potentiel d’aménagement. Ne manquez pas cette belle opportunité et venez la visiter sans tarder?!
Logement susceptibles de vous intéresser
Nous vous proposons de découvrir aussi cette sélection de logements situés à moins de 10km de Machecoul-Saint-Même et qui seraient susceptibles de vous intéresser.
Bois-de-Céné
TERRAINEN PLEIN CENTRE VILLE – VUE SUR LA CAMPAGNE Nous vous proposons un terrain d’exception situé dans le charmant lotissement de Bois-de-Céné, avec une surface généreuse de 578 m². Ce terrain viabilisé est idéal pour la construction de votre future maison. Profitez d’un environnement paisible au cœur de la Vendée, où le cadre champêtre et la vue dégagée ajoutent une touche d’unicité à votre projet immobilier. Offrez-vous un cadre de vie calme, tout en étant à proximité des commodités essentielles. La ville de Bois-de-Céné, nichée dans le département de la Vendée, fait partie de la région dynamique des Pays de la Loire. Ses atouts incluent un centre-ville animé et la proximité immédiate de commerces variés, vous garantissant tout le nécessaire à votre quotidien. Ce cadre privilégié ravira les amateurs de nature et de tranquillité, tout en offrant un accès facile aux attractions locales, permettant ainsi un parfait équilibre entre vie urbaine et environnement serein. Ce terrain représente une opportunité unique de dessiner votre futur dans une ville à fort potentiel. Ce terrain dispose d’un potentiel remarquable pour ceux souhaitant construire leur maison de rêve. N’attendez plus pour envisager cette opportunité d’achat unique?! À noter qu’en tant que constructeur, nous ne sommes pas mandatés pour réaliser la vente de ce terrain.
Bois-de-Céné
TERRAIN ET MAISONSur ce terrain, nous vous proposons cette maison neuve : la Poiréenne, une maison qui vous offre sa singularité et son confort.Charmant pavillon de plain-pied, l’atout de choc de la Poiréenne tient dans l’originalité de ses formes asymétriques. Cette configuration permet d’isoler l’espace nuit dans une aile indépendante. Il sera possible d’ouvrir la pièce de vie sur 3 façades pour garantir un maximum de lumière et de chaleur à ses heureux propriétaires.Avec sa forme en T, vous profiterez au maximum de l’espace disponible de la profondeur de votre terrain. Les chambres sont réunies autour d’un dégagement qui comprend également la salle d’eau avec une douche italienne et des WC séparés. Côté jour, la Poiréenne vous propose un salon-séjour avec cuisine semi-ouverte, communiquant avec le garage.La surface habitable de 100 m² est totalement adaptable à vos envies. L’ajout d’une charpente traditionnelle au garage de taille généreuse est une option fréquemment retenue par les acquéreurs de cette maison. Ceci vous permettra l’aménagement d’un faux grenier avec un plancher bois.Les caractéristiques principales de cette maison incluent des baies coulissantes, des volets roulants, et la possibilité d’opter pour une baie à galandage. Cette maison neuve est basse consommation et conforme à la RE2020, garantissant ainsi des performances énergétiques optimales.Maisons Privat, constructeur centenaire avec les meilleurs avis clients de la région, vous propose cette maison qui allie confort, modernité et économie d’énergie. Ne manquez pas cette opportunité unique de devenir propriétaire d’une maison qui répond à toutes vos attentes.
Machecoul-Saint-Même
TERRAINEXPOSITION SUD – CENTRE VILLE Nous vous présentons une opportunité exceptionnelle d’acquérir un terrain idéalement situé à Machecoul, dans le département de la Loire-Atlantique. D’une superficie de 435 m², ce terrain plat offre une toile vierge parfaite pour concrétiser votre projet de construction de maison. Profitez de l’ensoleillement optimal et du calme environnant pour créer un espace de vie sur mesure, en plein cœur d’une ville dynamique et accueillante. La ville de Machecoul, située en Pays de la Loire, se distingue par son charme et ses nombreuses commodités. Vous bénéficierez d’un accès facile au centre-ville, à proximité immédiate des commerces et des services essentiels, tout en profitant d’un environnement sécurisé et paisible. La région vous propose également des attractions locales intéressantes, rendant votre quotidien à la fois pratique et agréable. Ce terrain représente un cadre de vie idéal pour les familles et les amoureux de la nature. Ne manquez pas cette occasion unique de transformer ce terrain en un lieu de vie d’exception. N’hésitez pas à envisager cette opportunité d’achat qui peut donner vie à vos rêves ! À noter qu’en tant que constructeur, nous ne sommes pas mandatés pour réaliser la vente de ce terrain.
Machecoul-Saint-Même
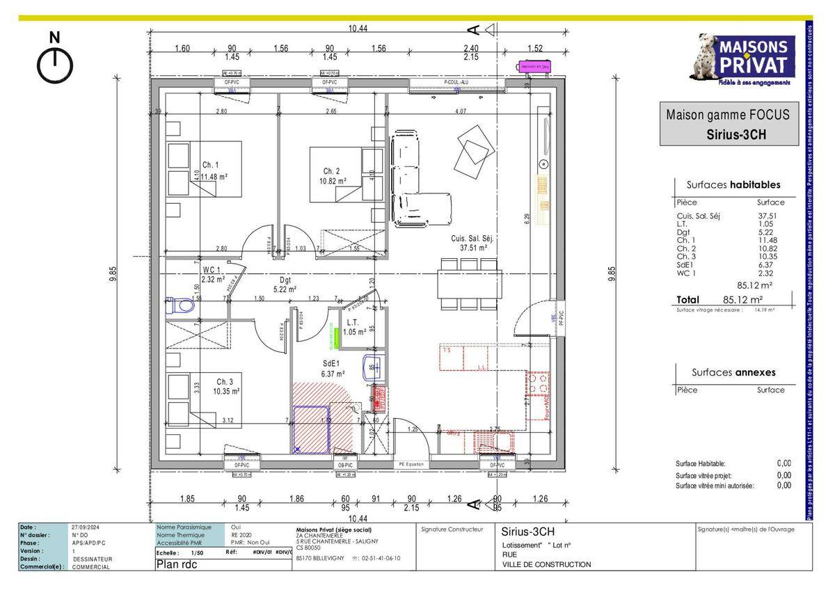
TERRAIN ET MAISONSur ce terrain, nous vous proposons cette élégante maison de plain-pied, dont la conception soignée mise sur la luminosité et la convivialité. Dès l’entrée, vous serez accueilli par une généreuse pièce à vivre de plus de 37 m², inondée de lumière naturelle, qui rassemble salon, salle à manger et cuisine ouverte pour des moments de partage en famille ou entre amis.La partie nuit se compose de trois chambres confortables, offrant chacune la possibilité d’aménager rangements et espace de travail selon vos envies. Une salle de bain moderne, un WC indépendant viennent compléter un agencement pensé pour simplifier votre quotidien.Sur cette version, un garage peut être ajouté en option.Avec sa disposition ingénieuse et ses volumes agréables, cette maison saura vous séduire par son atmosphère chaleureuse et son potentiel d’aménagement. Ne manquez pas cette belle opportunité et venez la visiter sans tarder?!
Villeneuve-en-Retz
TERRAIN ET MAISONA BOURGNEUF-EN-RETZ sur un terrain de 350 m², Alliance Construction vous propose de réaliser votre projet de construction de maison individuelle d'une surface de 93.75 m² habitables avec 4 chambres, à partir de 268705€*Informations du terrain : Envie de construire votre maison dans un environnement privilégié ? Ce terrain hors lotissement, à Bourgneuf-en-Retz, vous offre une localisation exceptionnelle. À seulement 6 km des plages et à proximité de toutes les commodités, il est le lieu idéal pour s'installer et profiter de la douceur de vivre.Demandez une étude gratuite et personnalisée de votre projet de construction !* Cette offre comprend :- Garanties constructeurs (dommages ouvrage, garantie de prix ferme et définitif, garantie de livraison, responsabilité civile et décennale).- Branchements aux compteurs et accès empierré sur 5m linéaires.Habitez une maison spécialement pensée et conçue pour vous et votre famille, prête à décorer, adaptée à vos modes de vie, personnalisée selon vos goûts grâce à un large choix d'options, de matériaux et d'innovations !Contactez Thierry MONLEZUN au (Numéro supprimé) (Alliance Construction – Agence de Nantes Aubinière).*Prix indicatif pour un projet de construction d'une maison individuelle. Ne sont pas inclus les frais de branchements, raccordements aux réseaux publics, frais d'adaptations, aménagements intérieurs et extérieurs et options. terrain non viabilisé, frais de notaire non compris, frais divers non compris. Garanties et assurances obligatoires incluses. Terrain sélectionné par ALLIANCE auprès de nos partenaires fonciers, selon disponibilité, pour la construction d'une maison neuve. Non mandaté pour réaliser la vente (loi du 2 janvier 1970 n°70-9). Visuels non contractuels. Voir détails en agence.Cette annonce a été créée et diffusée avec le logiciel VITAHOME.
Villeneuve-en-Retz
TERRAIN ET MAISONA FRESNAY-EN-RETZ sur un terrain de 442 m², Alliance Construction vous propose de réaliser votre projet de construction de maison individuelle d'une surface de 95.07 m² habitables avec 3 chambres, à partir de 249500€*Informations du terrain : Terrain à bâtir entièrement viabilisé. Cette parcelle est, à seulement 10 minutes des premières plages et à 20 minutes de Pornic.Deux gares TER, permettant un accès facile aux transports en commun.Proche des commodités et des plages.Demandez une étude gratuite et personnalisée de votre projet de construction !* Cette offre comprend :- Garanties constructeurs (dommages ouvrage, garantie de prix ferme et définitif, garantie de livraison, responsabilité civile et décennale).- Branchements aux compteurs et accès empierré sur 5m linéaires.Habitez une maison spécialement pensée et conçue pour vous et votre famille, prête à décorer, adaptée à vos modes de vie, personnalisée selon vos goûts grâce à un large choix d'options, de matériaux et d'innovations !Contactez Thierry MONLEZUN au (Numéro supprimé) (Alliance Construction – Agence de Nantes Aubinière).*Prix indicatif pour un projet de construction d'une maison individuelle. Ne sont pas inclus les frais de branchements, raccordements aux réseaux publics, frais d'adaptations, aménagements intérieurs et extérieurs et options. terrain viabilisé, frais de notaire non compris, frais divers non compris. Garanties et assurances obligatoires incluses. Terrain sélectionné par ALLIANCE auprès de nos partenaires fonciers, selon disponibilité, pour la construction d'une maison neuve. Non mandaté pour réaliser la vente (loi du 2 janvier 1970 n°70-9). Visuels non contractuels. Voir détails en agence.Cette annonce a été créée et diffusée avec le logiciel VITAHOME.
Villeneuve-en-Retz
TERRAIN ET MAISONA FRESNAY-EN-RETZ sur un terrain de 442 m², Alliance Construction vous propose de réaliser votre projet de construction de maison individuelle d'une surface de 88.04 m² habitables avec 3 chambres, à partir de 226900€*Informations du terrain : Terrain à bâtir entièrement viabilisé. Cette parcelle est, à seulement 10 minutes des premières plages et à 20 minutes de Pornic.Deux gares TER, permettant un accès facile aux transports en commun.Proche des commodités et des plages.Demandez une étude gratuite et personnalisée de votre projet de construction !* Cette offre comprend :- Garanties constructeurs (dommages ouvrage, garantie de prix ferme et définitif, garantie de livraison, responsabilité civile et décennale).- Branchements aux compteurs et accès empierré sur 5m linéaires.Habitez une maison spécialement pensée et conçue pour vous et votre famille, prête à décorer, adaptée à vos modes de vie, personnalisée selon vos goûts grâce à un large choix d'options, de matériaux et d'innovations !Contactez Thierry MONLEZUN au (Numéro supprimé) (Alliance Construction – Agence de Nantes Aubinière).*Prix indicatif pour un projet de construction d'une maison individuelle. Ne sont pas inclus les frais de branchements, raccordements aux réseaux publics, frais d'adaptations, aménagements intérieurs et extérieurs et options. terrain viabilisé, frais de notaire non compris, frais divers non compris. Garanties et assurances obligatoires incluses. Terrain sélectionné par ALLIANCE auprès de nos partenaires fonciers, selon disponibilité, pour la construction d'une maison neuve. Non mandaté pour réaliser la vente (loi du 2 janvier 1970 n°70-9). Visuels non contractuels. Voir détails en agence.Cette annonce a été créée et diffusée avec le logiciel VITAHOME.
Villeneuve-en-Retz
TERRAIN ET MAISONA FRESNAY-EN-RETZ sur un terrain de 442 m², Alliance Construction vous propose de réaliser votre projet de construction de maison individuelle d'une surface de 92.96 m² habitables avec 3 chambres, à partir de 251500€*Informations du terrain : Terrain à bâtir entièrement viabilisé. Cette parcelle est, à seulement 10 minutes des premières plages et à 20 minutes de Pornic.Deux gares TER, permettant un accès facile aux transports en commun.Proche des commodités et des plages.Demandez une étude gratuite et personnalisée de votre projet de construction !* Cette offre comprend :- Garanties constructeurs (dommages ouvrage, garantie de prix ferme et définitif, garantie de livraison, responsabilité civile et décennale).- Branchements aux compteurs et accès empierré sur 5m linéaires.Habitez une maison spécialement pensée et conçue pour vous et votre famille, prête à décorer, adaptée à vos modes de vie, personnalisée selon vos goûts grâce à un large choix d'options, de matériaux et d'innovations !Contactez Thierry MONLEZUN au (Numéro supprimé) (Alliance Construction – Agence de Nantes Aubinière).*Prix indicatif pour un projet de construction d'une maison individuelle. Ne sont pas inclus les frais de branchements, raccordements aux réseaux publics, frais d'adaptations, aménagements intérieurs et extérieurs et options. terrain viabilisé, frais de notaire non compris, frais divers non compris. Garanties et assurances obligatoires incluses. Terrain sélectionné par ALLIANCE auprès de nos partenaires fonciers, selon disponibilité, pour la construction d'une maison neuve. Non mandaté pour réaliser la vente (loi du 2 janvier 1970 n°70-9). Visuels non contractuels. Voir détails en agence.Cette annonce a été créée et diffusée avec le logiciel VITAHOME.
Villeneuve-en-Retz
TERRAIN ET MAISONA FRESNAY-EN-RETZ sur un terrain de 491 m², Alliance Construction vous propose de réaliser votre projet de construction de maison individuelle d'une surface de 88.04 m² habitables avec 3 chambres, à partir de 240900€*Informations du terrain : Votre maison de bord de mer à portée de main ! ️ Terrain à bâtir à vendre entièrement viabilisé. A 10 min des premières plages et à 20 min de Pornic. Tous commerces et gares TER à proximité.Demandez une étude gratuite et personnalisée de votre projet de construction !* Cette offre comprend :- Garanties constructeurs (dommages ouvrage, garantie de prix ferme et définitif, garantie de livraison, responsabilité civile et décennale).- Branchements aux compteurs et accès empierré sur 5m linéaires.Habitez une maison spécialement pensée et conçue pour vous et votre famille, prête à décorer, adaptée à vos modes de vie, personnalisée selon vos goûts grâce à un large choix d'options, de matériaux et d'innovations !Contactez Thierry MONLEZUN au (Numéro supprimé) (Alliance Construction – Agence de Nantes Aubinière).*Prix indicatif pour un projet de construction d'une maison individuelle. Ne sont pas inclus les frais de branchements, raccordements aux réseaux publics, frais d'adaptations, aménagements intérieurs et extérieurs et options. terrain viabilisé, frais de notaire non compris, frais divers non compris. Garanties et assurances obligatoires incluses. Terrain sélectionné par ALLIANCE auprès de nos partenaires fonciers, selon disponibilité, pour la construction d'une maison neuve. Non mandaté pour réaliser la vente (loi du 2 janvier 1970 n°70-9). Visuels non contractuels. Voir détails en agence.Cette annonce a été créée et diffusée avec le logiciel VITAHOME.
L’actualité immobilière à Machecoul-Saint-Même
27/11/2023
02/11/2023
30/10/2023
20/10/2023
16/10/2023
16/10/2023