Maison à construire à Machecoul (44270)
Images
Description
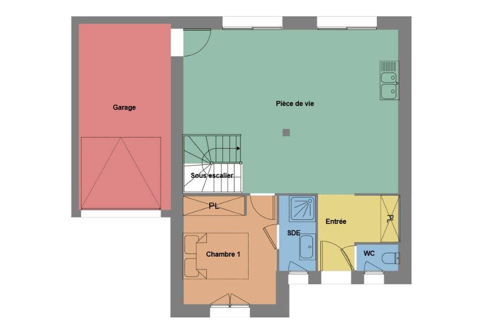
Maison de 5 pièces (89 m²) en vente à Machecoul
QUARTIER RECHERCHÉ - MAISON 5 PIÈCES NEUVE
À vendre : à 19 km de la côte atlantique et à 29 km de Saint-Herblain, dans un quartier prisé de Machecoul (44270), nous vous présentons cette maison de 5 pièces de 89 m².
Il s'agit d'une maison de 2 niveaux. Elle est composée de quatre chambres, d'une cuisine et de deux salles de bains. Cette maison est neuve.
Le terrain de la propriété est de 444 m².
Le bien se situe dans un secteur attractif. Il y a des établissements scolaires du primaire et du secondaire à moins de 10 minutes à pied. Niveau transports en commun, on trouve la gare Machecoul à proximité. Il y a un bassin de natation, une bibliothèque, un tennis, des commerces, quatre boulangeries, deux supermarchés, un bureau de poste et deux boucheries-charcuteries à quelques minutes à peine. Enfin, le marché Place du marché a lieu tous les mercredis matin.
Son prix de vente est de 263 800 €.
N'hésitez pas à prendre contact avec Pierre Antoine BURILLE ((Numéro supprimé)) pour toute information sur la maison ou sur les démarches à suivre. Maisons de l'Avenir Rezé est là pour vous accompagner à toutes les étapes de l'achat.
Logement susceptibles de vous intéresser
Nous vous proposons de découvrir aussi cette sélection de logements situés à moins de 10km de Machecoul-Saint-Même et qui seraient susceptibles de vous intéresser.
Machecoul-Saint-Même
TERRAINVENTE : terrain de 444 m² à MachecoulQUARTIER RECHERCHÉ – PROCHE DE SAINT-HERBLAINÀ Machecoul (44270) en vente à 19 km de l’océan Atlantique et à quelques kilomètres de Saint-Herblain, projetez la maison de vos rêves sur ce terrain de 444 m². Il donne sur un espace vert et est orienté au sud-ouest. Il est situé dans un secteur recherché. Il y a tous les types d’écoles (de la maternelle au lycée) à moins de 10 minutes à pied. Côté transports, on trouve la gare Machecoul juste à côté. Il y a un bassin de natation, une bibliothèque, un tennis, des commerces, quatre boulangeries, deux supermarchés, deux boucheries-charcuteries et un bureau de poste à quelques minutes à peine. Ne manquez pas le marché Place du marché tous les mercredis matin.Ce terrain est à vendre pour la somme de 69 500 €. Prenez contact avec Pierre Antoine BURILLE (tél : (Numéro supprimé)) pour toute question sur le terrain. Faites de vos projets immobiliers une réalité avec Maisons de l’Avenir Rezé.
Machecoul-Saint-Même
TERRAIN ET MAISONMachecoul : maison de 4 pièces (83 m²) en venteQUARTIER RECHERCHÉ – MAISON 4 PIÈCES NEUVEÀ vendre à 19 km de la côte atlantique et à 29 km de Saint-Herblain, nous vous proposons, située dans un quartier convoité de Machecoul (44270), cette maison de 4 pièces de 83 m² et de 444 m² de terrain avec vue sur espace vert.Cette maison est de plain-pied. Son intérieur offre trois chambres, une cuisine et une salle de bains. Ce bien est neuf.La maison est située dans un secteur prisé. Il y a des établissements scolaires du primaire et du secondaire à moins de 10 minutes à pied. Niveau transports, on trouve la gare Machecoul dans un rayon de 1 km. Il y a un bassin de natation, une bibliothèque, un tennis, des commerces, quatre boulangeries, deux supermarchés, un bureau de poste et deux boucheries-charcuteries dans les environs. Le marché Place du marché anime le quartier chaque mercredi matin.Son prix de vente est de 255 000 €.Contactez notre agence (BURILLE Pierre Antoine : (Numéro supprimé)) pour plus de renseignements sur la maison ou sur les démarches à suivre.
Machecoul-Saint-Même
TERRAIN ET MAISONMaison T4 (80 m²) à vendre à MachecoulQUARTIER RECHERCHÉ – MAISON 4 PIÈCES NEUVEÀ vendre : à 19 km de l’océan Atlantique et à 29 km de Saint-Herblain, dans un secteur recherché de Machecoul (44270), nous sommes heureux de vous proposer cette maison de 4 pièces de 80 m² et de 444 m² de terrain.Cette maison compte 2 niveaux. Son intérieur dispose de trois chambres, d’une cuisine et de deux salles de bains. Cette maison est neuve.Le bien se trouve dans un quartier attractif. Il y a des établissements scolaires (de la maternelle au lycée) à moins de 10 minutes à pied. Côté transports, on trouve la gare Machecoul à proximité. Il y a un bassin de natation, une bibliothèque, un tennis, des commerces, quatre boulangeries, deux supermarchés, deux boucheries-charcuteries et deux épiceries dans les environs. Enfin, le marché Place du marché a lieu chaque mercredi matin.Il est proposé à l’achat pour 244 500 €.Prenez contact avec Pierre Antoine BURILLE ((Numéro supprimé)) pour tout renseignement sur la maison ou sur les modalités de vente.
Machecoul-Saint-Même
TERRAIN ET MAISONMaison de 5 pièces (89 m²) en vente à MachecoulQUARTIER RECHERCHÉ – MAISON 5 PIÈCES NEUVEÀ vendre : à 19 km de la côte atlantique et à 29 km de Saint-Herblain, dans un quartier prisé de Machecoul (44270), nous vous présentons cette maison de 5 pièces de 89 m².Il s’agit d’une maison de 2 niveaux. Elle est composée de quatre chambres, d’une cuisine et de deux salles de bains. Cette maison est neuve.Le terrain de la propriété est de 444 m².Le bien se situe dans un secteur attractif. Il y a des établissements scolaires du primaire et du secondaire à moins de 10 minutes à pied. Niveau transports en commun, on trouve la gare Machecoul à proximité. Il y a un bassin de natation, une bibliothèque, un tennis, des commerces, quatre boulangeries, deux supermarchés, un bureau de poste et deux boucheries-charcuteries à quelques minutes à peine. Enfin, le marché Place du marché a lieu tous les mercredis matin.Son prix de vente est de 263 800 €.N’hésitez pas à prendre contact avec Pierre Antoine BURILLE ((Numéro supprimé)) pour toute information sur la maison ou sur les démarches à suivre. Maisons de l’Avenir Rezé est là pour vous accompagner à toutes les étapes de l’achat.
Machecoul-Saint-Même
TERRAIN ET MAISONVENTE : maison de 4 pièces (120 m²) à MachecoulQUARTIER RECHERCHÉ – MAISON 4 PIÈCES NEUVEEn vente : à 19 km de la côte atlantique et à 29 km de Saint-Herblain, Maisons de l’Avenir Rezé vous présente cette maison de 4 pièces de plain-pied de 120 m², dans un quartier convoité de Machecoul (44270).Son intérieur dispose de trois chambres, d’une cuisine et d’une salle de bains. Cette maison est neuve.Le terrain du bien est de 444 m².Cette maison se trouve dans un secteur attractif. Il y a tous les types d’écoles (de la maternelle au lycée) à moins de 10 minutes à pied. Niveau transports, on trouve la gare Machecoul juste à côté. Il y a un bassin de natation, une bibliothèque, un tennis, des commerces, quatre boulangeries, deux supermarchés, deux boucheries-charcuteries et deux épiceries dans les environs. Enfin, le marché Place du marché anime le quartier chaque mercredi matin.Elle est proposée à l’achat pour 324 500 €.Contactez notre agence (Pierre Antoine BURILLE : (Numéro supprimé)) pour toute information sur la maison ou sur les modalités de vente. Donnez vie à vos projets immobiliers avec Maisons de l’Avenir Rezé.
Machecoul-Saint-Même
TERRAINEN CAMPAGNE A 5 MIN DE SAINTE PAZANNE – VUE IMPRENABLE SUR LA CAMPAGNE Nous vous proposons un terrain viabilisé de 664 m², situé au cœur de la charmante commune de Machecoul, dans le département de la Loire-Atlantique. Ce terrain, caractérisé par sa surface plane, promet de devenir le parfait espace pour réaliser votre projet de construction de maison. Profitez d’un environnement sans vis-à-vis, au calme, au sein d’un cadre champêtre, idéal pour une vie paisible en pleine nature. Idéalement localisé dans la région des Pays de la Loire, Machecoul séduit par ses nombreuses attractions locales et commodités à proximité. Découvrez l’harmonie entre ruralité et modernité avec ses commerces de proximité, écoles et services essentiels, tout en étant à deux pas de la plage et des activités nautiques de la côte Atlantique. La ville est également reconnue pour son dynamisme culturel et ses événements tout au long de l’année, renforçant l’attrait de cette belle commune. Ne manquez pas cette occasion unique d’acquérir un terrain plein de potentiel, parfaitement adapté à vos envies de construction. Nous vous invitons à envisager cette opportunité d’achat. À noter qu’en tant que constructeur, nous ne sommes pas mandatés pour réaliser la vente de ce terrain.
Machecoul-Saint-Même
TERRAIN ET MAISONSur ce terrain, nous vous proposons cette maison neuve : la Luçonnaise, une maison traditionnelle de plain-pied qui associe confort et élégance. Conçue par Maisons Privat, constructeur centenaire avec les meilleurs avis clients de la région, cette demeure est idéale pour une famille à la recherche de confort et de modernité.La Luçonnaise est une jolie maison de plain-pied en forme de L, parfaite pour une famille et ultra confortable. Avec une surface de 90 m², elle dispose de 3 chambres et de 4 pièces, offrant des volumes généreux et bien pensés. L’espace nuit est intelligemment délimité pour garantir tranquillité et intimité.Vous apprécierez sa cuisine semi-ouverte donnant sur un grand séjour bien éclairé, parfait pour des moments conviviaux en famille ou entre amis. Fan de soleil ? La conception avisée de ce plan permet une ouverture supplémentaire sur le côté du salon pour profiter d’une triple exposition.Son porche couvert à l’entrée abritera vos invités, le temps pour vous de vérifier que tout est prêt pour les accueillir. Toutes les versions de la Luçonnaise comportent un garage intégré, pratique et fonctionnel.Les caractéristiques principales de cette maison incluent un plan en L, un garage intégré et des volets roulants. Les options les plus demandées par nos clients, telles que les menuiseries en aluminium et les volets battants, sont également disponibles.Enfin, cette maison neuve est basse consommation et conforme à la RE2020, garantissant des performances énergétiques optimales et un confort de vie inégalé.Ne manquez pas cette opportunité unique de devenir propriétaire d’une maison alliant tradition et modernité, conçue par un constructeur de renom. Contactez-nous dès aujourd’hui pour plus d’informations !
Paulx
TERRAINNous vous proposons un terrain exceptionnel à vendre, d’une superficie de 461 m², idéalement situé dans la charmante commune de Paulx, dans le département de Loire-Atlantique. Ce terrain viabilisé est parfaitement adapté pour le projet de construction de votre future maison. Profitez d’un cadre de vie paisible et ensoleillé, dans un quartier privilégié, offrant une qualité de vie incomparable. Les caractéristiques de ce lotissement vous séduiront par leur harmonie avec la nature et leur potentiel d’aménagement. Située au cœur de la région Pays de la Loire, Paulx est une ville qui allie tranquillité et dynamisme. Les écoles se trouvent à proximité, garantissant un accès facile pour les familles. En plus de ses infrastructures, la commune se distingue par ses espaces verts, favorisant les activités de plein air et les moments de détente. L’emplacement stratégique de ce terrain vous permettra également de bénéficier des commodités locales, tout en savourant le calme d’un environnement convivial. Les nombreux atouts de Paulx en font une destination de choix pour ceux qui souhaitent se construire un havre de paix. Ne manquez pas cette opportunité unique d’acquérir un terrain avec un fort potentiel. Réfléchissez à votre futur projet et laissez libre cours à votre imagination en territoire Paulx. À noter qu’en tant que constructeur, nous ne sommes pas mandatés pour réaliser la vente de ce terrain.
Paulx
TERRAIN ET MAISONSur ce terrain, nous vous proposons cette superbe maison de plain-pied, alliant confort, modernité et praticité, idéale pour une famille en quête de bien-être.Avec son agencement optimisé, cette maison vous offre une spacieuse pièce de vie baignée de lumière naturelle, comprenant un séjour convivial et une cuisine ouverte fonctionnelle, parfaite pour des moments en famille ou entre amis.L’espace nuit se compose de trois belles chambres offrant confort et sérénité, d’une salle d’eau moderne et de WC séparés pour plus de praticité.Un garage intégré vient compléter ce bien, idéal pour stationner un véhicule ou disposer d’un espace de rangement supplémentaire.
L’actualité immobilière à Machecoul-Saint-Même
27/11/2023
02/11/2023
30/10/2023
20/10/2023
16/10/2023
16/10/2023