Maison à construire à Montbert (44140)
Images
Description
VENTE : maison F3 (85 m²) à Montbert
IDÉALEMENT SITUÉE - MAISON 3 PIÈCES NEUVE
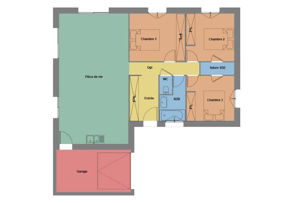
À quelques kilomètres de Nantes, Maisons de l'Avenir Orvault vous présente à vendre, idéalement située dans Montbert (44140), cette maison de 3 pièces de plain-pied de 85 m² et de 235 m² de terrain. Conçue de plain-pied, elle se divise en trois chambres, une cuisine et une salle de bains.
Cette maison est neuve.
La maison est située dans un quartier convoité. L'École Primaire Privée Saint Joseph et l'École Primaire Publique René Cassin se trouvent à moins de 10 minutes à pied. On trouve un accès à l'autoroute A83 à 5 km. Il y a un bassin de natation, un tennis, deux commerces, deux boulangeries, un bureau de poste, trois épiceries et une boucherie-charcuterie à proximité.
Elle est proposée à l'achat pour 264 000 €.
Prenez contact avec notre agence (Badri LADIYE MOUSSA : (Numéro supprimé)) pour plus de renseignements sur la maison, sur les modalités de vente ou sur les démarches à suivre.
Logement susceptibles de vous intéresser
Nous vous proposons de découvrir aussi cette sélection de logements situés à moins de 10km de Montbert et qui seraient susceptibles de vous intéresser.
Saint-Colomban
TERRAIN ET MAISONA SAINT-COLOMBAN sur un terrain de 289 m², Alliance Construction vous propose de réaliser votre projet de construction de maison individuelle d'une surface de 72.93 m² habitables avec 3 chambres, à partir de 177730€*Demandez une étude gratuite et personnalisée de votre projet de construction !* Cette offre comprend :- Garanties constructeurs (dommages ouvrage, garantie de prix ferme et définitif, garantie de livraison, responsabilité civile et décennale).- Branchements aux compteurs et accès empierré sur 5m linéaires.Habitez une maison spécialement pensée et conçue pour vous et votre famille, prête à décorer, adaptée à vos modes de vie, personnalisée selon vos goûts grâce à un large choix d'options, de matériaux et d'innovations !Contactez Laurent LASSIMONNE au (Numéro supprimé) (Alliance Construction – Agence de Vallet).*Prix indicatif pour un projet de construction d'une maison individuelle. Ne sont pas inclus les frais de branchements, raccordements aux réseaux publics, frais d'adaptations, aménagements intérieurs et extérieurs et options. terrain viabilisé, frais de notaire non compris, frais divers non compris. Garanties et assurances obligatoires incluses. Terrain sélectionné par ALLIANCE auprès de nos partenaires fonciers, selon disponibilité, pour la construction d'une maison neuve. Non mandaté pour réaliser la vente (loi du 2 janvier 1970 n°70-9). Visuels non contractuels. Voir détails en agence.Cette annonce a été créée et diffusée avec le logiciel VITAHOME.
Maisdon-sur-Sèvre
TERRAIN ET MAISONA MAISDON-SUR-SEVRE sur un terrain de 270 m², Alliance Construction vous propose de réaliser votre projet de construction de maison individuelle d'une surface de 80.57 m² habitables avec 3 chambres, à partir de 218903€*Demandez une étude gratuite et personnalisée de votre projet de construction !* Cette offre comprend :- Garanties constructeurs (dommages ouvrage, garantie de prix ferme et définitif, garantie de livraison, responsabilité civile et décennale).- Branchements aux compteurs et accès empierré sur 5m linéaires.Habitez une maison spécialement pensée et conçue pour vous et votre famille, prête à décorer, adaptée à vos modes de vie, personnalisée selon vos goûts grâce à un large choix d'options, de matériaux et d'innovations !Contactez Laurent LASSIMONNE au (Numéro supprimé) (Alliance Construction – Agence de Vallet).*Prix indicatif pour un projet de construction d'une maison individuelle. Ne sont pas inclus les frais de branchements, raccordements aux réseaux publics, frais d'adaptations, aménagements intérieurs et extérieurs et options. terrain viabilisé, frais de notaire non compris, frais divers non compris. Garanties et assurances obligatoires incluses. Terrain sélectionné par ALLIANCE auprès de nos partenaires fonciers, selon disponibilité, pour la construction d'une maison neuve. Non mandaté pour réaliser la vente (loi du 2 janvier 1970 n°70-9). Visuels non contractuels. Voir détails en agence.Cette annonce a été créée et diffusée avec le logiciel VITAHOME.
Aigrefeuille-sur-Maine
TERRAINPrix : 83000 €.Sur ce terrain de 315 m² à AIGREFEUILLE-SUR-MAINE, Alliance Construction vous propose de réaliser votre projet de construction de maison individuelle.Avec Alliance Construction, habitez une maison spécialement pensée et conçue pour vous et votre famille, prête à décorer, adaptée à vos modes de vie, personnalisée selon vos goûts grâce à un large choix d'options, de matériaux et d'innovations ! Demandez une étude gratuite et personnalisée de votre projet de construction sur ce terrain à AIGREFEUILLE-SUR-MAINE !Contactez Laurent LASSIMONNE au (Numéro supprimé) (Alliance Construction – Agence de Vallet).Prix hors frais de notaire. Terrain sélectionné par ALLIANCE auprès de nos partenaires fonciers, selon disponibilité, pour la construction d'une maison neuve. Non mandaté pour réaliser la vente (loi du 2 janvier 1970 n°70-9). Visuels non contractuels. Voir détails en agence.Cette annonce a été créée et diffusée avec le logiciel VITAHOME.
Maisdon-sur-Sèvre
TERRAINPrix : 71000 €.Sur ce terrain de 270 m² à MAISDON-SUR-SEVRE, Alliance Construction vous propose de réaliser votre projet de construction de maison individuelle.Avec Alliance Construction, habitez une maison spécialement pensée et conçue pour vous et votre famille, prête à décorer, adaptée à vos modes de vie, personnalisée selon vos goûts grâce à un large choix d'options, de matériaux et d'innovations ! Demandez une étude gratuite et personnalisée de votre projet de construction sur ce terrain à MAISDON-SUR-SEVRE !Contactez Laurent LASSIMONNE au (Numéro supprimé) (Alliance Construction – Agence de Vallet).Prix hors frais de notaire. Terrain sélectionné par ALLIANCE auprès de nos partenaires fonciers, selon disponibilité, pour la construction d'une maison neuve. Non mandaté pour réaliser la vente (loi du 2 janvier 1970 n°70-9). Visuels non contractuels. Voir détails en agence.Cette annonce a été créée et diffusée avec le logiciel VITAHOME.
Remouillé
TERRAINPrix : 87000 €.Sur ce terrain de 625 m² à REMOUILLE, Alliance Construction vous propose de réaliser votre projet de construction de maison individuelle.Avec Alliance Construction, habitez une maison spécialement pensée et conçue pour vous et votre famille, prête à décorer, adaptée à vos modes de vie, personnalisée selon vos goûts grâce à un large choix d'options, de matériaux et d'innovations ! Demandez une étude gratuite et personnalisée de votre projet de construction sur ce terrain à REMOUILLE !Contactez Laurent LASSIMONNE au (Numéro supprimé) (Alliance Construction – Agence de Vallet).Prix hors frais de notaire. Terrain sélectionné par ALLIANCE auprès de nos partenaires fonciers, selon disponibilité, pour la construction d'une maison neuve. Non mandaté pour réaliser la vente (loi du 2 janvier 1970 n°70-9). Visuels non contractuels. Voir détails en agence.Cette annonce a été créée et diffusée avec le logiciel VITAHOME.
Saint-Colomban
TERRAINPrix : 50000 €.Sur ce terrain de 289 m² à SAINT-COLOMBAN, Alliance Construction vous propose de réaliser votre projet de construction de maison individuelle.Avec Alliance Construction, habitez une maison spécialement pensée et conçue pour vous et votre famille, prête à décorer, adaptée à vos modes de vie, personnalisée selon vos goûts grâce à un large choix d'options, de matériaux et d'innovations ! Demandez une étude gratuite et personnalisée de votre projet de construction sur ce terrain à SAINT-COLOMBAN !Contactez Laurent LASSIMONNE au (Numéro supprimé) (Alliance Construction – Agence de Vallet).Prix hors frais de notaire. Terrain sélectionné par ALLIANCE auprès de nos partenaires fonciers, selon disponibilité, pour la construction d'une maison neuve. Non mandaté pour réaliser la vente (loi du 2 janvier 1970 n°70-9). Visuels non contractuels. Voir détails en agence.Cette annonce a été créée et diffusée avec le logiciel VITAHOME.
Saint-Fiacre-sur-Maine
TERRAINPrix : 99200 €.Sur ce terrain de 391 m² à SAINT-FIACRE-SUR-MAINE, Alliance Construction vous propose de réaliser votre projet de construction de maison individuelle.Avec Alliance Construction, habitez une maison spécialement pensée et conçue pour vous et votre famille, prête à décorer, adaptée à vos modes de vie, personnalisée selon vos goûts grâce à un large choix d'options, de matériaux et d'innovations ! Demandez une étude gratuite et personnalisée de votre projet de construction sur ce terrain à SAINT-FIACRE-SUR-MAINE !Contactez Laurent LASSIMONNE au (Numéro supprimé) (Alliance Construction – Agence de Vallet).Prix hors frais de notaire. Terrain sélectionné par ALLIANCE auprès de nos partenaires fonciers, selon disponibilité, pour la construction d'une maison neuve. Non mandaté pour réaliser la vente (loi du 2 janvier 1970 n°70-9). Visuels non contractuels. Voir détails en agence.Cette annonce a été créée et diffusée avec le logiciel VITAHOME.
Maisdon-sur-Sèvre
TERRAINVENTE d’un terrain de 370 m² à Maisdon-sur-SèvreIDÉALEMENT SITUÉ – PROCHE DE NANTESÀ 41 km de la côte atlantique et à deux pas de Nantes à Maisdon-sur-Sèvre (44690), terrain de 370 m². Il bénéficie d’une exposition sud-ouest. Dans un quartier recherché, le terrain idéalement situé est proche des écoles et des commerces. On trouve l’École Primaire Publique Jules Verne et l’École Primaire Privée Sainte Anne à moins de 10 minutes à pied. Niveau transports, il y a quatre gares à moins de 10 minutes en voiture. L’autoroute A83 et la nationale N249 sont accessibles à moins de 9 km. On trouve un tennis, un commerce, une boulangerie et une épicerie à quelques minutes.Ce terrain est à vendre pour la somme de 95 000 €. Contactez notre agence (DUJARDIN Franck : (Numéro supprimé)) pour obtenir de plus amples informations sur le terrain, sur les démarches à suivre ou sur les modalités de vente. Concrétisez vos projets immobiliers avec Maisons Tradilignes Saint-Sébastien-sur-Loire.
Maisdon-sur-Sèvre
TERRAIN ET MAISONMaison F3 (62 m²) à vendre à Maisdon-sur-SèvreIDÉALEMENT SITUÉE – MAISON 3 PIÈCES NEUVEEn vente : à 41 km de l’océan Atlantique et à quelques kilomètres de Nantes, idéalement située dans Maisdon-sur-Sèvre (44690), nous sommes ravis de vous présenter cette maison de 3 pièces de plain-pied de 62 m².Elle dispose de deux chambres, d’une cuisine et d’une salle de bains. Cette maison est neuve.Le terrain de la propriété s’étend sur 370 m².La maison se situe dans un quartier recherché. On trouve l’École Primaire Publique Jules Verne et l’École Primaire Privée Sainte Anne à moins de 10 minutes à pied. Niveau transports en commun, il y a quatre gares à moins de 10 minutes en voiture. L’autoroute A83 et la nationale N249 sont accessibles à moins de 9 km. On trouve un tennis, un commerce, une boulangerie et une épicerie à quelques minutes du logement.Son prix de vente est de 227 500 €.Contactez Franck DUJARDIN (tél : (Numéro supprimé)) pour obtenir de plus amples informations sur le bien, sur les modalités de vente ou sur les démarches à suivre. Maisons Tradilignes Saint-Sébastien-sur-Loire vous accompagne à toutes les étapes de votre projet et dans tous vos projets immobiliers.
L’actualité immobilière à Montbert
27/11/2023
02/11/2023
30/10/2023
20/10/2023
16/10/2023
16/10/2023