Maison à construire à Notre-Dame-des-Landes (44130)
Images
Description
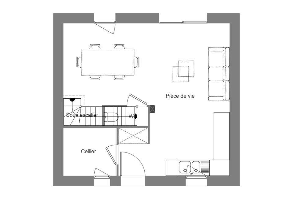
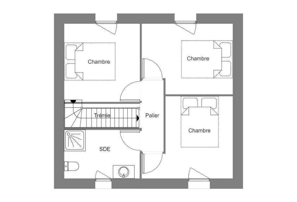
VENTE : maison F4 (70 m²) à Notre-Dame-des-Landes
IDÉALEMENT SITUÉE - MAISON 4 PIÈCES NEUVE
En vente à 19 km de l'océan Atlantique et à 20 km de Nantes, Maisons de l'Avenir Orvault vous propose, idéalement située dans Notre-Dame-des-Landes (44130), cette maison de 4 pièces de 70 m² et de 523 m² de terrain.
Cette maison compte 2 niveaux. Elle compte trois chambres, une cuisine et une salle de bains. La maison est neuve.
Ce bien se situe dans un secteur prisé. Il y a l'École Primaire Privée Sainte Marie et l'École Primaire Publique Marcel Pagnol à moins de 10 minutes à pied et deux structures d'accueil pour les tout-petits. Les nationales N137 et N165 sont accessibles à moins de 9 km. On trouve un tennis, une bibliothèque, un commerce et deux épiceries dans les environs.
Il est à vendre pour la somme de 229 000 €.
Contactez Jean-Baptiste ((Numéro supprimé)) pour plus de renseignements sur la maison, sur les démarches à suivre ou sur les modalités de vente. Maisons de l'Avenir Orvault est là pour vous accompagner à toutes les étapes de l'achat.
Logement susceptibles de vous intéresser
Nous vous proposons de découvrir aussi cette sélection de logements situés à moins de 10km de Notre-Dame-des-Landes et qui seraient susceptibles de vous intéresser.
Le Temple-de-Bretagne
TERRAIN ET MAISONSitué au Temple-de-Bretagne, commune dynamique aux portes de Nantes, découvrez ce terrain constructible de 450 m², idéal pour un premier achat ou un projet familial. À proximité immédiate des écoles, des commerces et des axes rapides vers Nantes et la côte atlantique, ce terrain bénéficie d’un emplacement privilégié alliant praticité et qualité de vie. Une belle opportunité à saisir sur un secteur recherché, alliant confort, accessibilité et cadre agréable !. Découvrez EVOLIA, la maison évolutive qui s'adapte à chaque étape de votre vie. Transformez facilement une maison de 2 chambres en une maison de 3 chambres grâce à un garage aménageable de 15 m². Flexible et personnalisable, EVOLIA évolue avec vous, que vous soyez une jeune famille, un couple ou une personne seule. Ne laissez plus vos besoins en logement vous limiter. Contactez nos experts conseillers dès aujourd’hui et faites de EVOLIA la maison de vos rêves. Prix hors fourniture et pose : des appareils sanitaires (sauf système de chauffage et d'eau chaude sanitaire), du carrelage, de la faïence, de la cuisine aménagée, des revêtements de sol dans les chambres. Hors décoration, aménagement intérieur, peinture, raccordements, frais de notaire et dommage ouvrage. (Surface habitable 49 m²+garage 15 m²). // Réf. : 2585-210850-ENL. Prix terrain : 89 000 €, hors frais d'agence à la charge de l'acquéreur. Ce terrain vous est proposé, par nos partenaires fonciers, dans le cadre d'un projet de construction avec nous. Les informations sur les risques auxquels ce bien est exposé sont disponibles sur le site Géorisques (www.georisques.gouv.fr). Prix maison : 94 943 €.
Le Temple-de-Bretagne
TERRAIN ET MAISONSitué au Temple-de-Bretagne, commune dynamique aux portes de Nantes, découvrez ce terrain constructible de 450 m², idéal pour un premier achat ou un projet familial. À proximité immédiate des écoles, des commerces et des axes rapides vers Nantes et la côte atlantique, ce terrain bénéficie d’un emplacement privilégié alliant praticité et qualité de vie. Une belle opportunité à saisir sur un secteur recherché, alliant confort, accessibilité et cadre agréable !. Une maison idéale pour les petits terrains, sans compromis sur l’espace ! Grâce à son agencement optimisé, cette maison s’adapte parfaitement aux terrains de taille réduite tout en offrant des volumes généreux et un confort absolu. Le rez-de-chaussée accueille une pièce de vie ouverte et lumineuse, pensée pour favoriser la convivialité. Son agencement fluide entre le salon, la salle à manger et la cuisine permet un cadre chaleureux et moderne. Un cellier discret ajoute une solution de rangement pratique au quotidien. À l’étage, trois chambres confortables assurent à chacun son propre espace, tandis qu’une salle de bain fonctionnelle et des WC indépendants garantissent un confort optimal pour toute la famille. Un design contemporain et intelligent, parfait pour maximiser l’espace même sur une petite parcelle !. Pour vous assurer un confort de vie optimal et en conformité avec la RE2025, nous avons opté pour un système de chauffage par pompe à chaleur (PAC) avec plancher chauffant au rez-de-chaussée et radiateurs à l’étage. Le logement est également équipé de volets roulants électriques. Prix hors fourniture et pose : des appareils sanitaires (sauf système de chauffage et d'eau chaude sanitaire), du carrelage et de la faïence, des revêtements de sol dans les chambres. Hors décoration et aménagement intérieur et peinture. Hors raccordements, frais de notaire et dommage ouvrage. // Réf. : 2493-210850-ENL. Prix terrain : 89 000 €, hors frais d'agence à la charge de l'acquéreur. Ce terrain vous est proposé, par nos partenaires fonciers, dans le cadre d'un projet de construction avec nous. Les informations sur les risques auxquels ce bien est exposé sont disponibles sur le site Géorisques (www.georisques.gouv.fr). Prix maison : 181 503 €.
Le Temple-de-Bretagne
TERRAIN ET MAISONSitué au Temple-de-Bretagne, commune dynamique aux portes de Nantes, découvrez ce terrain constructible de 450 m², idéal pour un premier achat ou un projet familial. À proximité immédiate des écoles, des commerces et des axes rapides vers Nantes et la côte atlantique, ce terrain bénéficie d’un emplacement privilégié alliant praticité et qualité de vie. Une belle opportunité à saisir sur un secteur recherché, alliant confort, accessibilité et cadre agréable !. Familiale et fonctionnelle cette maison de 106 m² habitables vous séduira par ses volumes et son aménagement. Son très bel espace de vie de 47 m² environ avec sa cuisine ouverte avec accès direct au jardin grâce à sa baie vitrée. L’espace nuit est composé d’une suite parentale avec dressing et salle d’eau privative, à l’opposé trois chambres avec rangements, une salle de bains indépendantePour vous assurer un confort de vie et conformément à la RE2025, nous avons choisi un mode de chauffage par PAC + plancher chauffant, volets roulants électriques. Prix hors fourniture et pose : des appareils sanitaires (sauf système de chauffage et d'eau chaude sanitaire), du carrelage et de la faïence, des revêtements de sol dans les chambres. Hors décoration et aménagement intérieur et peinture. Hors raccordements, frais de notaire et dommage ouvrage. // Réf. : 1249-210850-ENL. Prix terrain : 89 000 €, hors frais d'agence à la charge de l'acquéreur. Ce terrain vous est proposé, par nos partenaires fonciers, dans le cadre d'un projet de construction avec nous. Les informations sur les risques auxquels ce bien est exposé sont disponibles sur le site Géorisques (www.georisques.gouv.fr). Prix maison : 163 956 €.
Le Temple-de-Bretagne
TERRAINSitué au Temple-de-Bretagne, commune dynamique aux portes de Nantes, découvrez ce terrain constructible de 450 m², idéal pour un premier achat ou un projet familial. À proximité immédiate des écoles, des commerces et des axes rapides vers Nantes et la côte atlantique, ce terrain bénéficie d’un emplacement privilégié alliant praticité et qualité de vie. Une belle opportunité à saisir sur un secteur recherché, alliant confort, accessibilité et cadre agréable !. // Réf. : T210850. Prix terrain : 89 000 €, hors frais d'agence et de notaire à la charge de l'acquéreur. Ce terrain vous est proposé, par nos partenaires fonciers, dans le cadre d'un projet de construction avec nous. Les informations sur les risques auxquels ce bien est exposé sont disponibles sur le site Géorisques (www.georisques.gouv.fr).
Grandchamps-des-Fontaines
TERRAIN ET MAISONGrand terrain de 501m² à Granchamps des fontaines. . Cette charmante maison de plain fonctionnelle vous séduira par le volume et la clarté de sa pièce de vie très lumineuse grâce à ses ouvertures, une cuisine ouverte sur le séjour vous permettra de profiter de bons moments en famille et vous offre un accès direct au cellier et au garage. Du côté de l’espace nuit, une suite parentale avec salle d’eau privative et dressing, deux chambres avec rangements et une salle de bains avec baignoire, wc séparés. Pour vous assurer un confort de vie et conformément à la RE2025, nous avons choisi un mode de chauffage par PAC + plancher chauffant, volets roulants électriques. Pour vous assurer un confort de vie et conformément à la RE2025, nous avons choisi un mode de chauffage par PAC + plancher chauffant, volets roulants électriques. Prix hors fourniture et pose : des appareils sanitaires (sauf système de chauffage et d'eau chaude sanitaire), du carrelage et de la faïence, des revêtements de sol dans les chambres. Hors décoration et aménagement intérieur et peinture. Hors raccordements, frais de notaire et dommage ouvrage. // Réf. : 1401-210808-PAL. Prix terrain : 150 100 €, hors frais d'agence à la charge de l'acquéreur. Ce terrain vous est proposé, par nos partenaires fonciers, dans le cadre d'un projet de construction avec nous. Les informations sur les risques auxquels ce bien est exposé sont disponibles sur le site Géorisques (www.georisques.gouv.fr). Prix maison : 153 789 €.
Grandchamps-des-Fontaines
TERRAIN ET MAISONGrand terrain de 501m² à Granchamps des fontaines. . Découvrez cette maison compacte et bien agencée, idéale sur un petit terrain. Profitez d’un espace de vie optimisé de 40 m² avec une cuisine ouverte, idéale pour les moments en famille ou entre amis. Un cellier attenant vous offre un espace de rangement supplémentaire. Cette maison comprend également 3 chambres confortables, une salle de bains et des wc séparés pour plus de praticité. Pour vous assurer un confort de vie et conformément à la RE2025, nous avons choisi un mode de chauffage par PAC + plancher chauffant, volets roulants électriques. Prix hors fourniture et pose : des appareils sanitaires (sauf système de chauffage et d'eau chaude sanitaire), du carrelage et de la faïence, des revêtements de sol dans les chambres. Hors décoration et aménagement intérieur et peinture. Hors raccordements, frais de notaire et dommage ouvrage. . // Réf. : 2527-210808-PAL. Prix terrain : 150 100 €, hors frais d'agence à la charge de l'acquéreur. Ce terrain vous est proposé, par nos partenaires fonciers, dans le cadre d'un projet de construction avec nous. Les informations sur les risques auxquels ce bien est exposé sont disponibles sur le site Géorisques (www.georisques.gouv.fr). Prix maison : 145 762 €.
Grandchamps-des-Fontaines
TERRAIN ET MAISONGrand terrain de 501m² à Granchamps des fontaines. . Une maison spacieuse et fonctionnelle, idéale pour toute la famille ! Avec son design moderne et son agencement optimisé, cette maison offre un cadre de vie agréable et lumineux, parfait pour répondre aux besoins de chacun. Au rez-de-chaussée, vous profitez d’un vaste espace de vie ouvert, alliant salon, salle à manger et cuisine dans une atmosphère chaleureuse et conviviale. Un cellier pratique facilite l’organisation et le rangement du quotidien. La suite parentale avec dressing et salle d’eau privative garantit un confort optimal aux parents, offrant un véritable espace d’intimité. À l’étage, trois belles chambres bien réparties permettent à toute la famille de disposer de son propre cocon. Une grande salle de bain et un WC indépendant complètent cet étage pour plus de praticité. Une maison élégante, confortable et pensée pour s’adapter aux modes de vie modernes !. Pour vous assurer un confort de vie optimal et en conformité avec la RE2025, nous avons opté pour un système de chauffage par pompe à chaleur (PAC) avec plancher chauffant au rez-de-chaussée et radiateurs à l’étage. Le logement est également équipé de volets roulants électriques. Prix hors fourniture et pose : des appareils sanitaires (sauf système de chauffage et d'eau chaude sanitaire), du carrelage et de la faïence, des revêtements de sol dans les chambres. Hors décoration et aménagement intérieur et peinture. Hors raccordements, frais de notaire et dommage ouvrage. // Réf. : 1485-210808-PAL. Prix terrain : 150 100 €, hors frais d'agence à la charge de l'acquéreur. Ce terrain vous est proposé, par nos partenaires fonciers, dans le cadre d'un projet de construction avec nous. Les informations sur les risques auxquels ce bien est exposé sont disponibles sur le site Géorisques (www.georisques.gouv.fr). Prix maison : 181 503 €.
Treillières
TERRAIN ET MAISONBelle parcelle de 371m² à Treillières, viabilisé, et surtout, sans vis à vis !. Vous serez séduits par cette maison contemporaine qui se distingue par son porche en façade et ses enduits bi-ton personnalisable. Elle vous accueille dans un très bel espace de vie de plus de 44 m² très lumineux grâce à ses nombreuses ouvertures. La cuisine ouverte est très fonctionnelle puisqu’à la fois ouverte sur le séjour et accolée au cellier. L’espace nuit est composé de trois chambres avec tous les rangements nécessaires ainsi que d’une salle de bain et des wc séparés. Le plus de cette maison est sans nul doute son garage intégré. Pour vous assurer un confort de vie et conformément à la RE2025, nous avons choisi un mode de chauffage par PAC + plancher chauffant, volets roulants électriques. Prix hors fourniture et pose : des appareils sanitaires (sauf système de chauffage et d'eau chaude sanitaire), du carrelage et de la faïence, des revêtements de sol dans les chambres. Hors décoration et aménagement intérieur et peinture. Hors raccordements, frais de notaire et dommage ouvrage. // Réf. : 635-210805-PAL. Prix terrain : 140 000 €, hors frais d'agence à la charge de l'acquéreur. Ce terrain vous est proposé, par nos partenaires fonciers, dans le cadre d'un projet de construction avec nous. Les informations sur les risques auxquels ce bien est exposé sont disponibles sur le site Géorisques (www.georisques.gouv.fr). Prix maison : 142 302 €.
Treillières
TERRAIN ET MAISONBelle parcelle de 371m² à Treillières, viabilisé, et surtout, sans vis à vis !. Cette charmante maison de plain-pied vous accueille dans un très bel espace de vie très lumineux de plus de 40 m² avec cuisine ouverte et accès direct au cellier. Un dégagement dessert trois chambres, une salle de bains et wc indépendantPour vous assurer un confort de vie et conformément à la RE2025, nous avons choisi un mode de chauffage par PAC + plancher chauffant, volets roulants électriques. Prix hors fourniture et pose : des appareils sanitaires (sauf système de chauffage et d'eau chaude sanitaire), du carrelage et de la faïence, des revêtements de sol dans les chambres. Hors décoration et aménagement intérieur et peinture. Hors raccordements, frais de notaire et dommage ouvrage. // Réf. : 925-210805-PAL. Prix terrain : 140 000 €, hors frais d'agence à la charge de l'acquéreur. Ce terrain vous est proposé, par nos partenaires fonciers, dans le cadre d'un projet de construction avec nous. Les informations sur les risques auxquels ce bien est exposé sont disponibles sur le site Géorisques (www.georisques.gouv.fr). Prix maison : 120 980 €.
L’actualité immobilière à Notre-Dame-des-Landes
27/11/2023
02/11/2023
30/10/2023
20/10/2023
16/10/2023
16/10/2023