Maison à construire à Paulx (44270)
Images
Description
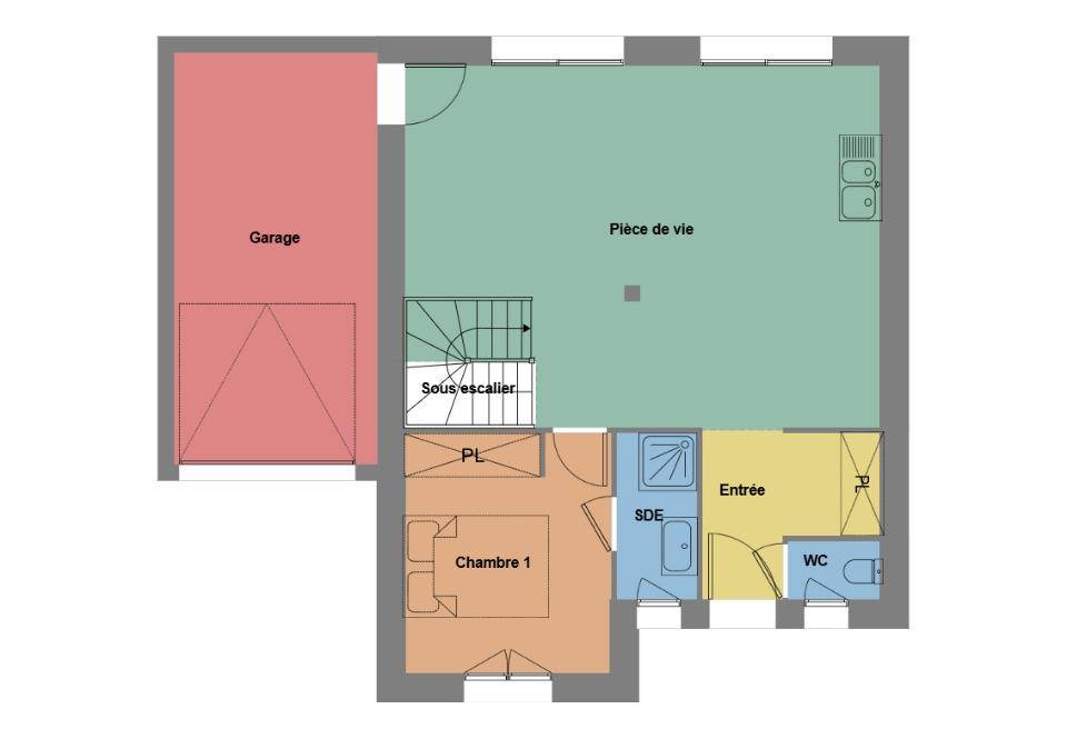
VENTE d'une maison F5 (115 m²) à Paulx
PROCHE DE REZÉ - MAISON 5 PIÈCES NEUVE
À vendre à 27 km de la côte atlantique et à deux pas de Rezé, venez découvrir cette maison de 5 pièces de 115 m² à Paulx (44270). Son intérieur offre quatre chambres, une cuisine et deux salles de bains.
Le terrain du bien est de 395 m².
C'est une maison de 2 niveaux.
Elle est à vendre pour la somme de 342 000 €.
Contactez Thibault DUPONT (tél : (Numéro supprimé)) pour obtenir de plus amples renseignements sur la maison. Maisons de l'Avenir Rezé est là pour vous accompagner dans toutes vos démarches.
Logement susceptibles de vous intéresser
Nous vous proposons de découvrir aussi cette sélection de logements situés à moins de 10km de Paulx et qui seraient susceptibles de vous intéresser.
Paulx
TERRAIN ET MAISONPaulx : maison de 4 pièces (75 m²) à vendreMAISON 4 PIÈCES NEUVE – PROCHE DE REZÉÀ 27 km de la côte atlantique et à deux pas de Rezé, en vente à Paulx (44270), nous vous présentons cette maison de 4 pièces de plain-pied de 75 m² et de 380 m² de terrain. Conçue de plain-pied, elle est composée de trois chambres, d’une cuisine et d’une salle de bains.Cette maison est neuve.On trouve l’École Primaire Privée Père Ceyrac et l’École Primaire Publique les Près Verts à moins de 10 minutes . Côté transports, il y a la gare Machecoul à moins de 10 minutes en voiture. On trouve un commerce et une boulangerie dans les environs.Elle est proposée à l’achat pour 207 000 €.Contactez notre agence (COUCHAUX Vincent : (Numéro supprimé)) pour toute information sur la maison, sur les démarches à suivre ou sur les modalités de vente. Maisons Tradilignes Pornic vous accompagne à toutes les étapes de l’achat et dans tous vos projets immobiliers.
La Marne
TERRAINTerrain à bâtir, viabilisé, situé en plein bourg de la MARNE. Impasse de 9 lots, au calme. // Réf. : T213543. Prix terrain : 73 000 €, hors frais d'agence et de notaire à la charge de l'acquéreur. Ce terrain vous est proposé, par nos partenaires fonciers, dans le cadre d'un projet de construction avec nous. Les informations sur les risques auxquels ce bien est exposé sont disponibles sur le site Géorisques (www.georisques.gouv.fr).
Saint-Étienne-de-Mer-Morte
TERRAIN ET MAISONAINT ETIENNE DE MER MORTE EN PLEIN CENTRE BOURG – terrain à bâtir d'une surface de 380 m2 environ, sur lequel existe un grand garage d'environ 50 m². Le terrain n'est pas viabilisé, mais tous les réseaux sont en façade. . Cette maison de plain-pied en L, fonctionnelle et spacieuse vous propose un bel espace de vie lumineux et traversant. Sa cuisine est ouverte sur le séjour et a un accès direct au cellier. Son espace nuit est composé de trois belles chambres dont une suite parentale avec dressing et salle de bain privative, une deuxième salle de bains équipé ainsi que des wc séparés. Pour vous assurer un confort de vie et conformément à la RE2025, nous avons choisi un mode de chauffage par PAC + plancher chauffant, volets roulants électriques. Prix hors fourniture et pose : des appareils sanitaires (sauf système de chauffage et d'eau chaude sanitaire), du carrelage et de la faïence, des revêtements de sol dans les chambres. Hors décoration et aménagement intérieur et peinture. Hors raccordements, frais de notaire et dommage ouvrage. // Réf. : 805-213547-MVR. Prix terrain : 77 000 €, hors frais d'agence à la charge de l'acquéreur. Ce terrain vous est proposé, par nos partenaires fonciers, dans le cadre d'un projet de construction avec nous. Les informations sur les risques auxquels ce bien est exposé sont disponibles sur le site Géorisques (www.georisques.gouv.fr). Prix maison : 140 848 €.
Saint-Étienne-de-Mer-Morte
TERRAINAINT ETIENNE DE MER MORTE EN PLEIN CENTRE BOURG – terrain à bâtir d'une surface de 380 m2 environ, sur lequel existe un grand garage d'environ 50 m². Le terrain n'est pas viabilisé, mais tous les réseaux sont en façade. . // Réf. : T213547. Prix terrain : 77 000 €, hors frais d'agence et de notaire à la charge de l'acquéreur. Ce terrain vous est proposé, par nos partenaires fonciers, dans le cadre d'un projet de construction avec nous. Les informations sur les risques auxquels ce bien est exposé sont disponibles sur le site Géorisques (www.georisques.gouv.fr).
Froidfond
TERRAINDécouvrez une opportunité exceptionnelle avec ce terrain à vendre de 615 m², idéalement situé à Froidfond, dans la magnifique région de la Vendée, en Pays de la Loire. Ce terrain, entièrement viabilisé, offre une surface parfaite pour réaliser votre projet de construction de maison. Sa situation privilégiée allie tranquillité et accessibilité, garantissant un cadre de vie agréable et paisible. Profitez d’un espace plat et ensoleillé, à l’abri des nuisances, tout en étant proche de toutes les commodités. Froidfond est une charmante commune qui saura séduire les amateurs de nature et de tranquillité. Située à proximité de la côte vendéenne, elle offre un environnement champêtre exceptionnel tout en restant proche des grands axes. Les attractions locales, telles que les plages de la Vendée et les sentiers de randonnée, enrichissent le cadre de vie. De plus, la ville bénéficie de divers services, commerces et infrastructures, rendant le quotidien agréable et pratique. C’est l’endroit idéal pour construire votre future maison dans un cadre serein. Ne laissez pas passer cette occasion rare d’acquérir un terrain au potentiel illimité. Contactez-nous dès maintenant pour discuter de cette offre unique. À noter qu’en tant que constructeur, nous ne sommes pas mandatés pour réaliser la vente de ce terrain.
Machecoul-Saint-Même
TERRAIN ET MAISONTerrain situé au cœur du bourg de Machecoul, idéal pour réaliser votre projet immobilier. Caractéristiques : Superficie : environ 445 m² Belle façade d'environ 14 m Terrain non viabilisé, mais tous les réseaux (eau, électricité, tout-à-l'égout) passent à proximité Dépendance présente sur le terrain Murs de clôture sur 2 côtés Exposition Sud, offrant un ensoleillement optimal Profitez de cet emplacement privilégié, à proximité des commodités et des écoles. Contemporaine et confortable, le modèle ASINARA se distingue par son porche en façade avant et ses enduits bi-ton qui lui apportent un style très actuel. Cette maison de plain-pied vous propose une très belle pièce de vie très lumineuse grâce à ses nombreuses ouvertures. La cuisine est très fonctionnelle puisqu’à la fois ouverte sur le séjour et accolée au cellier. L’espace nuit est composé de trois chambres avec tous les rangements nécessaires ainsi que d’une salle de bains et des wc séparés. Le plus de cette maison est sans nul doute son garage intégré. Ses jeux d'enduits personnalisables sauront vous séduire. Pour vous assurer un confort de vie et conformément à la RE2025, nous avons choisi un mode de chauffage par PAC + plancher chauffant, volets roulants électriques. Prix hors fourniture et pose : des appareils sanitaires (sauf système de chauffage et d'eau chaude sanitaire), du carrelage et de la faïence, des revêtements de sol dans les chambres. Hors décoration et aménagement intérieur et peinture. Hors raccordements, frais de notaire et dommage ouvrage. // Réf. : 598-213545-MVR. Prix terrain : 69 000 €, hors frais d'agence à la charge de l'acquéreur. Ce terrain vous est proposé, par nos partenaires fonciers, dans le cadre d'un projet de construction avec nous. Les informations sur les risques auxquels ce bien est exposé sont disponibles sur le site Géorisques (www.georisques.gouv.fr). Prix maison : 125 629 €.
La Marne
TERRAIN ET MAISONTerrain à bâtir, viabilisé, situé en plein bourg de la MARNE. Impasse de 9 lots, au calme. Du charme pour cette maison de plain-pied en V composée d'un très bel espace de vie lumineux avec cuisine US. Le plus pour cette maison est son garage intégré donnant accès au cellier et à la cuisine. Un dégagement dessert l'espace nuit qui vous offre 4 chambres avec rangements, une salle de bains et wc séparés. Pour vous assurer un confort de vie et conformément à la RE2025, nous avons choisi un mode de chauffage par PAC + plancher chauffant, volets roulants électriques. Prix hors fourniture et pose : des appareils sanitaires (sauf système de chauffage et d'eau chaude sanitaire), du carrelage et de la faïence, des revêtements de sol dans les chambres. Hors décoration et aménagement intérieur et peinture. Hors raccordements, frais de notaire et dommage ouvrage. // Réf. : 670-213543-MVR. Prix terrain : 73 000 €, hors frais d'agence à la charge de l'acquéreur. Ce terrain vous est proposé, par nos partenaires fonciers, dans le cadre d'un projet de construction avec nous. Les informations sur les risques auxquels ce bien est exposé sont disponibles sur le site Géorisques (www.georisques.gouv.fr). Prix maison : 146 009 €.
Paulx
TERRAINDécouvrez ce charmant terrain à vendre, situé au cœur du lotissement de Paulx dans le département de la Loire-Atlantique. Avec une superficie généreuse de 479 m², ce terrain viabilisé est parfaitement adapté pour accueillir votre projet de construction de maison. Profitez de cette belle opportunité pour bâtir la maison de vos rêves dans un cadre tranquille et accueillant, tout en bénéficiant des caractéristiques uniques de cette jolie ville. Paulx, idéalement situé en Pays de la Loire, offre un cadre de vie agréable à proximité immédiate des commodités nécessaires au quotidien. Vous trouverez un centre-ville animé, riche en commerces, où il fait bon vivre. De plus, cette localité se distingue par ses attraits locaux, tels que des sentiers de randonnée pittoresques et des espaces verts propices à la détente, permettant de profiter pleinement des joies de la nature. Un emplacement privilégié qui saura séduire les futurs propriétaires en quête de qualité de vie. Ne manquez pas cette occasion unique d’acquérir un terrain au potentiel remarquable, idéal pour donner vie à vos ambitions immobilières. Contactez-nous dès maintenant pour en savoir plus sur cette opportunité d’achat ! À noter qu’en tant que constructeur, nous ne sommes pas mandatés pour réaliser la vente de ce terrain.
La Marne
TERRAIN ET MAISONTerrain à bâtir, viabilisé, situé en plein bourg de la MARNE. Impasse de 9 lots, au calme. Maison de plain-pied en L de 110 m² habitables composée d’un espace de vie lumineux grâce à sa baie vitrée donnant sur le jardin, une cuisine ouverte qui a un accès direct sur le cellier. Côté nuit, un dégagement dessert 3 chambres dont 1 suite parentale avec dressing et salle d’eau privative, deux chambres avec rangements, une salle de bains indépendante. Pour vous assurer un confort de vie et conformément à la RE2025, nous avons choisi un mode de chauffage par PAC + plancher chauffant, volets roulants électriques. Prix hors fourniture et pose : des appareils sanitaires (sauf système de chauffage et d'eau chaude sanitaire), du carrelage et de la faïence, des revêtements de sol dans les chambres. Hors décoration et aménagement intérieur et peinture. Hors raccordements, frais de notaire et dommage ouvrage. // Réf. : 823-213543-MVR. Prix terrain : 73 000 €, hors frais d'agence à la charge de l'acquéreur. Ce terrain vous est proposé, par nos partenaires fonciers, dans le cadre d'un projet de construction avec nous. Les informations sur les risques auxquels ce bien est exposé sont disponibles sur le site Géorisques (www.georisques.gouv.fr). Prix maison : 150 418 €.
L’actualité immobilière à Paulx
27/11/2023
02/11/2023
30/10/2023
20/10/2023
16/10/2023
16/10/2023