Maison à construire à Piriac-sur-Mer (44420)
Images
Description
VENTE d'une maison de 5 pièces (150 m²) à Piriac-sur-Mer
IDÉALEMENT SITUÉE - MAISON 5 PIÈCES NEUVE
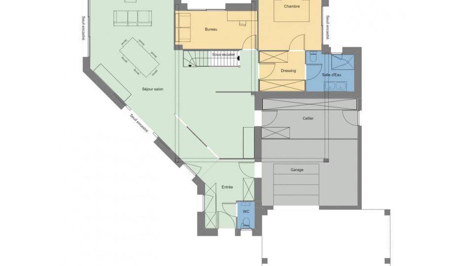
À vendre sur la côte atlantique et à quelques kilomètres de Saint-Nazaire, idéalement située dans Piriac-sur-Mer (44420), nous sommes ravis de vous proposer cette maison de 5 pièces de 150 m² et de 640 m² de terrain. Elle se divise en quatre chambres, une cuisine et deux salles de bains.
Il s'agit d'une maison de 2 niveaux. Elle est neuve.
Cette maison est située dans un secteur prisé. On trouve tous les types d'écoles (maternelle, élémentaire et secondaire) à moins de 10 minutes en voiture, tout comme une crèche à moins de 10 minutes à pied. Côté transports, il y a la gare Le Croisic à moins de 10 minutes en voiture. On trouve trois bassins de natation, quatre bibliothèques, des tennis, des ports de plaisance, un bowling, des commerces, des boulangeries, des supermarchés, des bureaux de poste et quatre supérettes à proximité. Enfin, le marché Centre-Ville anime les environs.
Elle est à vendre pour la somme de 561 000 €.
Prenez contact avec Jean-Baptiste ((Numéro supprimé)) pour tout renseignement sur la maison, sur les modalités de vente ou sur les démarches à suivre. Maisons de l'Avenir Orvault vous accompagne dans tous vos projets immobiliers et à toutes les étapes de votre projet.
Logement susceptibles de vous intéresser
Nous vous proposons de découvrir aussi cette sélection de logements situés à moins de 10km de Piriac-sur-Mer et qui seraient susceptibles de vous intéresser.
Mesquer
TERRAIN ET MAISONMagnifique terrain situé sur la commune de Mesquer d'une surface de 500 m², terrain plat non viabilisé, environnement champêtre. Terrain pouvant accueillir un projet de construction sur-mesure. Terrain situé à 500m à pieds du bourg de Mesquer. Belle exposition sud/Ouest. Un espace unique, conçu pour vous !. Envie d’un chez-vous spacieux et lumineux, pensé pour votre confort et votre quotidien ? Ce modèle de maison à construire offre plus de 145 m² où chaque mètre carré est optimisé. Avec 4 chambres, une belle mezzanine ouverte, 2 salles de bains et un séjour généreux, cette maison allie modernité et fonctionnalité. Son agencement fluide et personnalisable vous permet de l’adapter à votre style de vie : bureau, espace détente, dressing. . À vous d’imaginer votre intérieur idéal !. Construisez sur le terrain de votre choix, avec une construction de qualité et éco-performante. Pour un confort optimal et conforme à la RE2025, cette maison dispose d’une PAC avec plancher chauffant au rez-de-chaussée, radiateurs à l’étage et volets roulants électriques. À noter : Le prix indiqué exclut les revêtements de sol des chambres, la cuisine aménagée, la peinture, la décoration, les raccordements, les frais de notaire et l’assurance dommages-ouvrage. . // Réf. : 1667-210839-ELM. Prix terrain : 145 000 €, hors frais d'agence à la charge de l'acquéreur. Ce terrain vous est proposé, par nos partenaires fonciers, dans le cadre d'un projet de construction avec nous. Les informations sur les risques auxquels ce bien est exposé sont disponibles sur le site Géorisques (www.georisques.gouv.fr). Prix maison : 291 058 €.
Mesquer
TERRAIN ET MAISONMagnifique terrain situé sur la commune de Mesquer d'une surface de 500 m², terrain plat non viabilisé, environnement champêtre. Terrain pouvant accueillir un projet de construction sur-mesure. Terrain situé à 500m à pieds du bourg de Mesquer. Belle exposition sud/Ouest. Une maison qui a tout pour plaire !. Laissez-vous séduire par cette maison à l’architecture élégante, où chaque espace est conçu pour répondre à vos envies de lumière, de confort et de modernité. Son espace de vie généreux, baigné de lumière naturelle grâce à de larges ouvertures, invite à la convivialité et au bien-être. L’étage réserve un univers cosy avec deux grandes chambres, un dressing spacieux et une salle d’eau moderne, créant un véritable cocon d’intimité. Pratique et fonctionnelle, cette maison dispose aussi d’un garage intégré et d’un cellier pour un quotidien simplifié. Un cadre de vie unique, où élégance et praticité se rencontrent. Contactez-nous pour en savoir plus !. Pour un confort optimal et conforme à la RE2025, cette maison dispose d’une PAC avec plancher chauffant au rez-de-chaussée, radiateurs à l’étage et volets roulants électriques. À noter : Le prix indiqué exclut les revêtements de sol des chambres, la cuisine aménagée, la peinture, la décoration, les raccordements, les frais de notaire et l’assurance dommages-ouvrage. (Piscine non contractuelle, non comprise dans le prix). // Réf. : 1718-210839-ELM. Prix terrain : 145 000 €, hors frais d'agence à la charge de l'acquéreur. Ce terrain vous est proposé, par nos partenaires fonciers, dans le cadre d'un projet de construction avec nous. Les informations sur les risques auxquels ce bien est exposé sont disponibles sur le site Géorisques (www.georisques.gouv.fr). Prix maison : 272 146 €.
Mesquer
TERRAIN ET MAISONMagnifique terrain situé sur la commune de Mesquer d'une surface de 500 m², terrain plat non viabilisé, environnement champêtre. Terrain pouvant accueillir un projet de construction sur-mesure. Terrain situé à 500m à pieds du bourg de Mesquer. Belle exposition sud/Ouest. Laissez-vous séduire par cette maison moderne et lumineuse, pensée pour votre confort et votre bien-être. Avec 3 belles chambres, un espace de vie spacieux et convivial, baigné de lumière grâce à ses larges ouvertures, et un garage attenant, ce modèle offre une parfaite harmonie entre fonctionnalité et esthétisme. Sa conception optimisée vous permet de moduler les volumes selon vos envies : cuisine ouverte ou fermée, aménagement sur-mesure… Imaginez votre intérieur idéal ! Profitez d’une salle d’eau contemporaine et d’un cellier pratique pour un quotidien facilité. Son architecture sobre et élégante s’adapte à tous les styles de vie. Pour un confort optimal et conforme à la RE2025, cette maison dispose d’une PAC avec plancher chauffant et volets roulants électriques. À noter : Le prix indiqué exclut les revêtements de sol des chambres, la cuisine aménagée, la peinture, la décoration, les raccordements, les frais de notaire et l’assurance dommages-ouvrage. Envie d’un intérieur qui vous ressemble ? Contactez-nous et concrétisons ensemble votre projet sur-mesure !. . // Réf. : 1805-210839-ELM. Prix terrain : 145 000 €, hors frais d'agence à la charge de l'acquéreur. Ce terrain vous est proposé, par nos partenaires fonciers, dans le cadre d'un projet de construction avec nous. Les informations sur les risques auxquels ce bien est exposé sont disponibles sur le site Géorisques (www.georisques.gouv.fr). Prix maison : 281 667 €.
Mesquer
TERRAINMagnifique terrain situé sur la commune de Mesquer d'une surface de 500 m², terrain plat non viabilisé, environnement champêtre. Terrain pouvant accueillir un projet de construction sur-mesure. Terrain situé à 500m à pieds du bourg de Mesquer. Belle exposition sud/Ouest. // Réf. : T210839. Prix terrain : 145 000 €, hors frais d'agence et de notaire à la charge de l'acquéreur. Ce terrain vous est proposé, par nos partenaires fonciers, dans le cadre d'un projet de construction avec nous. Les informations sur les risques auxquels ce bien est exposé sont disponibles sur le site Géorisques (www.georisques.gouv.fr).
Saint-Molf
TERRAIN44350 – GUERANDE – CENTRE VILLE – TERRAIN – 384.0 m² – TERRAIN VIABILISÉ PROCHE DU CENTRE HISTORIQUEEfficity, l’agence qui estime votre bien en ligne, vous propose ce superbe terrain situé au cœur de Guérande, dans un quartier calme et résidentiel.Idéalement placé, ce terrain de 384.0 m² est viabilisé et prêt à accueillir votre projet de construction. Sa proximité immédiate avec le centre historique et toutes les commodités (Commerces, structures médicales, transports en commun ….) en fait un emplacement recherché.Facilement accessible en transports en commun grâce aux lignes de bus et aux taxis à proximité, vous pourrez vous déplacer en toute simplicité.Vous serez séduit par l’environnement paisible et la qualité de vie offerte par ce quartier prisé. Commerces et services à la personne à proximité. Ne manquez pas cette occasion unique de construire la maison de vos rêves dans un cadre exceptionnel.Rappelons que la commune de Guérande est située à 10 minutes de la côte permettant un accès rapide aux communes de La Baule, Piriac-sur-Mer ou Le Croisic.Pour plus d’informations, contactez (‘Grégory’, ‘Ronseaux’) chez efficity, votre consultant immobilier. Les informations sur les risques auxquels ce bien est exposé sont disponibles sur le site Georisque : georisques. gouv. fr Grégory Ronseaux – EI – est Agent Commercial mandataire en immobilier, immatriculé au Registre Spécial des Agents Commerciaux du Tribunal de Commerce de Vannes sous le n(Numéro supprimé).Siège social du mandant : effiCity, 48 avenue de Villiers – 75017 PARIS – Société par Actions Simplifiée, société au capital de 132 373,05 euros, immatriculée au RCS Paris 497 617 746 et titulaire de la Carte professionnelle CPI 7501 2015 000 002 025 – CCI Paris IDF – Caisse de Garantie : GALIAN Assurances 89 rue de la Boétie 75008 Paris
Piriac-sur-Mer
TERRAIN ET MAISONDans le bourg de Piriac. Possibilité de maison à étage ou de plain pied. Construction sur mesure. Estimatif donné pour le terrain, les frais annexes et pour une maison de plain pied de 120m² comprenant 3 chambres, ainsi que 20m² de garage.Labélisée RE2020, nos projets vous apportent confort de vie (été comme hiver) et économie d’énergie grâce à leur conception bioclimatique.Vous souhaitez faire construire une maison bois écologique, unique et moderne ?Venez nous rencontrer pour étudier ensemble un projet à votre image .L’équipe My Lovely NatureContactez-nous au (Numéro supprimé) (My Lovely Nature – Agence de Nantes MLN).*Prix indicatif pour un projet de construction d'une maison individuelle. Ne sont pas inclus les frais de branchements, raccordements aux réseaux publics, frais d'adaptations, aménagements intérieurs et extérieurs et options. viabilisation comprise (8000€), frais de notaire compris, frais divers non compris. Garanties et assurances obligatoires incluses. Terrain sélectionné par MY LOVELY NATURE auprès de nos partenaires fonciers, selon disponibilité, pour la construction d'une maison neuve. Non mandaté pour réaliser la vente (loi du 2 janvier 1970 n°70-9). Visuels non contractuels. Voir détails en agence.Cette annonce a été créée et diffusée avec le logiciel VITAHOME.
Guérande
TERRAIN ET MAISONVous rêvez d’un jardin paysager, une cuisine avec ilot centrale, parquet dans les chambres… Faites construire, vous pourrez choisir !Alliance vous propose un de ses modèles de maison sur-mesure sur un terrain de 421 m² à partir de 333541€* (hors frais supplémentaires et selon disponibilité de notre partenaire foncier.)Découvrez tous nos modèles de maisons sur notre site internet ou appelez nous pour réaliser votre projet entièrement sur-mesure.Contactez Benoit COCHIN au (Numéro supprimé) (Alliance Construction – Agence de Pontchâteau).*Prix indicatif pour un projet de construction d'une maison individuelle. Ne sont pas inclus les frais de branchements, raccordements aux réseaux publics, frais d'adaptations, aménagements intérieurs et extérieurs et options. terrain viabilisé, frais de notaire non compris, frais divers non compris. Garanties et assurances obligatoires incluses. Terrain sélectionné par ALLIANCE auprès de nos partenaires fonciers, selon disponibilité, pour la construction d'une maison neuve. Non mandaté pour réaliser la vente (loi du 2 janvier 1970 n°70-9). Visuels non contractuels. Voir détails en agence.Cette annonce a été créée et diffusée avec le logiciel VITAHOME.
Mesquer
TERRAIN ET MAISONA MESQUER sur un terrain de 415 m², Alliance Construction vous propose de réaliser votre projet de construction de maison individuelle d'une surface de 72.29 m² habitables avec 2 chambres, à partir de 346000€*Informations du terrain : Situé proche des plages, terrain en drapeau tout proche du centreBelle expositionDemandez une étude gratuite et personnalisée de votre projet de construction !* Cette offre comprend :- Garanties constructeurs (dommages ouvrage, garantie de prix ferme et définitif, garantie de livraison, responsabilité civile et décennale).- Branchements aux compteurs et accès empierré sur 5m linéaires.Habitez une maison spécialement pensée et conçue pour vous et votre famille, prête à décorer, adaptée à vos modes de vie, personnalisée selon vos goûts grâce à un large choix d'options, de matériaux et d'innovations !Contactez Benoit COCHIN au (Numéro supprimé) (Alliance Construction – Agence de Pontchâteau).*Prix indicatif pour un projet de construction d'une maison individuelle. Ne sont pas inclus les frais de branchements, raccordements aux réseaux publics, frais d'adaptations, aménagements intérieurs et extérieurs et options. terrain non viabilisé, frais de notaire non compris, frais divers non compris. Garanties et assurances obligatoires incluses. Terrain sélectionné par ALLIANCE auprès de nos partenaires fonciers, selon disponibilité, pour la construction d'une maison neuve. Non mandaté pour réaliser la vente (loi du 2 janvier 1970 n°70-9). Visuels non contractuels. Voir détails en agence.Cette annonce a été créée et diffusée avec le logiciel VITAHOME.
Mesquer
TERRAIN ET MAISONA MESQUER sur un terrain de 415 m², Alliance Construction vous propose de réaliser votre projet de construction de maison individuelle d'une surface de 100 m² habitables avec 4 chambres, à partir de 410000€*Informations du terrain : Situé proche des plages, terrain en drapeau tout proche du centreBelle expositionDemandez une étude gratuite et personnalisée de votre projet de construction !* Cette offre comprend :- Garanties constructeurs (dommages ouvrage, garantie de prix ferme et définitif, garantie de livraison, responsabilité civile et décennale).- Branchements aux compteurs et accès empierré sur 5m linéaires.Habitez une maison spécialement pensée et conçue pour vous et votre famille, prête à décorer, adaptée à vos modes de vie, personnalisée selon vos goûts grâce à un large choix d'options, de matériaux et d'innovations !Contactez Benoit COCHIN au (Numéro supprimé) (Alliance Construction – Agence de Pontchâteau).*Prix indicatif pour un projet de construction d'une maison individuelle. Ne sont pas inclus les frais de branchements, raccordements aux réseaux publics, frais d'adaptations, aménagements intérieurs et extérieurs et options. terrain non viabilisé, frais de notaire non compris, frais divers non compris. Garanties et assurances obligatoires incluses. Terrain sélectionné par ALLIANCE auprès de nos partenaires fonciers, selon disponibilité, pour la construction d'une maison neuve. Non mandaté pour réaliser la vente (loi du 2 janvier 1970 n°70-9). Visuels non contractuels. Voir détails en agence.Cette annonce a été créée et diffusée avec le logiciel VITAHOME.
L’actualité immobilière à Piriac-sur-Mer
27/11/2023
02/11/2023
30/10/2023
20/10/2023
16/10/2023
16/10/2023