Maison à construire à Pont-Saint-Martin (44860)
Images
Description
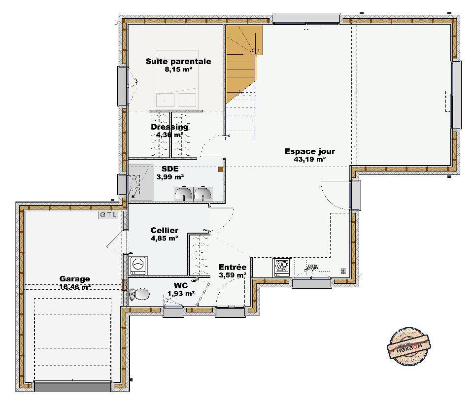
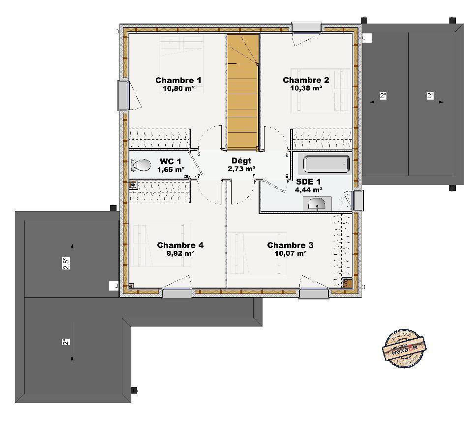
VENTE : maison de 6 pièces (115 m²) à Pont-Saint-Martin
MAISON 6 PIÈCES OSSATURE BOIS - PROCHE DE NANTES
En vente à 18 km de la côte atlantique et à quelques kilomètres de Nantes, notre agence Maisons de l'Avenir Rezé est heureuse de vous proposer à Pont-Saint-Martin (44860), cette maison de 6 pièces de 115 m². Elle offre cinq chambres, une cuisine et deux salles de bains.
Le terrain de la propriété est de 400 m².
Il s'agit d'une maison de 2 niveaux.
Elle est à vendre pour la somme de 428 400 €.
Contactez notre constructeur (Thibault DUPONT : (Numéro supprimé)) pour plus d'informations sur la maison, sur les modalités de vente ou sur les démarches à suivre. Maisons de l'Avenir Rezé vous accompagne à toutes les étapes de l'achat et dans tous vos projets immobiliers.
Logement susceptibles de vous intéresser
Nous vous proposons de découvrir aussi cette sélection de logements situés à moins de 10km de Pont-Saint-Martin et qui seraient susceptibles de vous intéresser.
Pont-Saint-Martin
TERRAIN ET MAISONA PONT-SAINT-MARTIN sur un terrain de 367 m², Alliance Construction vous propose de réaliser votre projet de construction de maison individuelle d'une surface de 106.13 m² habitables avec 4 chambres, à partir de 324300€*Informations du terrain : Venez découvrir ce terrain à bâtir situé à Pont-Saint-Martin, dans un environnement paisible et résidentiel. Hors lotissement, cette parcelle vous offre une grande liberté pour concevoir la maison de vos rêves. Profitez d'un cadre de vie agréable à proximité de toutes les commodités. Contactez-nous au pour une visite.Demandez une étude gratuite et personnalisée de votre projet de construction !* Cette offre comprend :- Garanties constructeurs (dommages ouvrage, garantie de prix ferme et définitif, garantie de livraison, responsabilité civile et décennale).- Branchements aux compteurs et accès empierré sur 5m linéaires.Habitez une maison spécialement pensée et conçue pour vous et votre famille, prête à décorer, adaptée à vos modes de vie, personnalisée selon vos goûts grâce à un large choix d'options, de matériaux et d'innovations !Contactez Thierry MONLEZUN au (Numéro supprimé) (Alliance Construction – Agence de Nantes Aubinière).*Prix indicatif pour un projet de construction d'une maison individuelle. Ne sont pas inclus les frais de branchements, raccordements aux réseaux publics, frais d'adaptations, aménagements intérieurs et extérieurs et options. terrain non viabilisé, frais de notaire non compris, frais divers non compris. Garanties et assurances obligatoires incluses. Terrain sélectionné par ALLIANCE auprès de nos partenaires fonciers, selon disponibilité, pour la construction d'une maison neuve. Non mandaté pour réaliser la vente (loi du 2 janvier 1970 n°70-9). Visuels non contractuels. Voir détails en agence.Cette annonce a été créée et diffusée avec le logiciel VITAHOME.
Pont-Saint-Martin
TERRAINVenez découvrir ce terrain à bâtir situé à Pont-Saint-Martin, dans un environnement paisible et résidentiel. Hors lotissement, cette parcelle vous offre une grande liberté pour concevoir la maison de vos rêves. Profitez d'un cadre de vie agréable à proximité de toutes les commodités. Contactez-nous au pour une visite.Prix : 93000 €.Sur ce terrain de 367 m² à PONT-SAINT-MARTIN, Alliance Construction vous propose de réaliser votre projet de construction de maison individuelle.Avec Alliance Construction, habitez une maison spécialement pensée et conçue pour vous et votre famille, prête à décorer, adaptée à vos modes de vie, personnalisée selon vos goûts grâce à un large choix d'options, de matériaux et d'innovations ! Demandez une étude gratuite et personnalisée de votre projet de construction sur ce terrain à PONT-SAINT-MARTIN !Contactez Thierry MONLEZUN au (Numéro supprimé) (Alliance Construction – Agence de Nantes Aubinière).Prix hors frais de notaire. Terrain sélectionné par ALLIANCE auprès de nos partenaires fonciers, selon disponibilité, pour la construction d'une maison neuve. Non mandaté pour réaliser la vente (loi du 2 janvier 1970 n°70-9). Visuels non contractuels. Voir détails en agence.Cette annonce a été créée et diffusée avec le logiciel VITAHOME.
Pont-Saint-Martin
TERRAIN ET MAISONA PONT-SAINT-MARTIN sur un terrain de 367 m², Alliance Construction vous propose de réaliser votre projet de construction de maison individuelle d'une surface de 87.91 m² habitables avec 3 chambres, à partir de 251500€*Informations du terrain : Venez découvrir ce terrain à bâtir situé à Pont-Saint-Martin, dans un environnement paisible et résidentiel. Hors lotissement, cette parcelle vous offre une grande liberté pour concevoir la maison de vos rêves. Profitez d'un cadre de vie agréable à proximité de toutes les commodités. Contactez-nous au pour une visite.Demandez une étude gratuite et personnalisée de votre projet de construction !* Cette offre comprend :- Garanties constructeurs (dommages ouvrage, garantie de prix ferme et définitif, garantie de livraison, responsabilité civile et décennale).- Branchements aux compteurs et accès empierré sur 5m linéaires.Habitez une maison spécialement pensée et conçue pour vous et votre famille, prête à décorer, adaptée à vos modes de vie, personnalisée selon vos goûts grâce à un large choix d'options, de matériaux et d'innovations !Contactez Thierry MONLEZUN au (Numéro supprimé) (Alliance Construction – Agence de Nantes Aubinière).*Prix indicatif pour un projet de construction d'une maison individuelle. Ne sont pas inclus les frais de branchements, raccordements aux réseaux publics, frais d'adaptations, aménagements intérieurs et extérieurs et options. terrain non viabilisé, frais de notaire non compris, frais divers non compris. Garanties et assurances obligatoires incluses. Terrain sélectionné par ALLIANCE auprès de nos partenaires fonciers, selon disponibilité, pour la construction d'une maison neuve. Non mandaté pour réaliser la vente (loi du 2 janvier 1970 n°70-9). Visuels non contractuels. Voir détails en agence.Cette annonce a été créée et diffusée avec le logiciel VITAHOME.
Pont-Saint-Martin
TERRAIN ET MAISONA PONT-SAINT-MARTIN sur un terrain de 367 m², Alliance Construction vous propose de réaliser votre projet de construction de maison individuelle d'une surface de 92.96 m² habitables avec 3 chambres, à partir de 273900€*Informations du terrain : Venez découvrir ce terrain à bâtir situé à Pont-Saint-Martin, dans un environnement paisible et résidentiel. Hors lotissement, cette parcelle vous offre une grande liberté pour concevoir la maison de vos rêves. Profitez d'un cadre de vie agréable à proximité de toutes les commodités. Contactez-nous au pour une visite.Demandez une étude gratuite et personnalisée de votre projet de construction !* Cette offre comprend :- Garanties constructeurs (dommages ouvrage, garantie de prix ferme et définitif, garantie de livraison, responsabilité civile et décennale).- Branchements aux compteurs et accès empierré sur 5m linéaires.Habitez une maison spécialement pensée et conçue pour vous et votre famille, prête à décorer, adaptée à vos modes de vie, personnalisée selon vos goûts grâce à un large choix d'options, de matériaux et d'innovations !Contactez Thierry MONLEZUN au (Numéro supprimé) (Alliance Construction – Agence de Nantes Aubinière).*Prix indicatif pour un projet de construction d'une maison individuelle. Ne sont pas inclus les frais de branchements, raccordements aux réseaux publics, frais d'adaptations, aménagements intérieurs et extérieurs et options. terrain non viabilisé, frais de notaire non compris, frais divers non compris. Garanties et assurances obligatoires incluses. Terrain sélectionné par ALLIANCE auprès de nos partenaires fonciers, selon disponibilité, pour la construction d'une maison neuve. Non mandaté pour réaliser la vente (loi du 2 janvier 1970 n°70-9). Visuels non contractuels. Voir détails en agence.Cette annonce a été créée et diffusée avec le logiciel VITAHOME.
Rezé
TERRAIN ET MAISONVENTE : maison F5 (104 m²) à RezéQUARTIER RECHERCHÉ – MAISON 5 PIÈCES NEUVEÀ 21 km de l’océan Atlantique, à vendre située dans un quartier recherché de Rezé (44400), nous vous proposons cette maison de 5 pièces de 104 m² avec vue sur espace vert. Son intérieur se divise en quatre chambres, une cuisine et deux salles de bains.Le terrain du bien s’étend sur 460 m².Cette maison est de plain-pied. Elle est neuve.La maison se situe dans un secteur attractif. On trouve plusieurs écoles (maternelle, élémentaire et collège) à moins de 10 minutes à pied, tout comme trois structures d’accueil pour la petite enfance. Côté transports, il y a neuf gares à moins de 10 minutes en voiture. L’autoroute A83 et les nationales N844, N249 et N444 sont accessibles à moins de 9 km. On trouve une bibliothèque, des commerces, des boulangeries, un supermarché, un bureau de poste et deux épiceries à proximité.Son prix de vente est de 387 000 €.Contactez Pierre Antoine BURILLE (tél : (Numéro supprimé)) pour tout renseignement sur la maison, sur les démarches à suivre ou sur les modalités de vente.
Vertou
TERRAIN ET MAISONVENTE : maison T4 (70 m²) à VertouMAISON 4 PIÈCES NEUVEEn vente : à 31 km de l’océan Atlantique, nous sommes heureux de vous présenter à Vertou (44120), cette maison de 4 pièces de 70 m² et de 350 m² de terrain. Elle offre trois chambres, une cuisine et une salle de bains.Cette maison compte 2 niveaux. Son prix de vente est de 292 000 €.Contactez Thibault DUPONT (tél : (Numéro supprimé)) pour plus d’informations sur cette maison, sur les modalités de vente ou sur les démarches à suivre. Maisons de l’Avenir Rezé vous accompagne à toutes les étapes de votre projet et dans tous vos projets immobiliers.
Vertou
TERRAINTerrain de 350 m² à vendre à VertouÀ Vertou (44120) à 31 km de l’océan Atlantique, venez découvrir ce terrain de 350 m². Il est proposé à l’achat pour 120 000 €. N’hésitez pas à prendre contact avec notre agence (Thibault DUPONT : (Numéro supprimé)) pour toute information sur le terrain. Maisons de l’Avenir Rezé vous accompagne dans toutes vos démarches et dans tous vos projets immobiliers.
Rezé
TERRAINVENTE d’un terrain de 460 m² à RezéQUARTIER RECHERCHÉÀ Rezé (44400) à vendre à 21 km de la côte atlantique, donnez vie à la maison de vos rêves sur ce terrain de 460 m². Ce terrain, exposé au sud-ouest, donne sur un espace vert. Il est situé dans un quartier recherché. On trouve plusieurs établissements scolaires (maternelle, élémentaire et collège) à moins de 10 minutes à pied, tout comme trois crèches. Côté transports en commun, il y a neuf gares à moins de 10 minutes en voiture. L’autoroute A83 et les nationales N844, N249 et N444 sont accessibles à moins de 9 km. On trouve une bibliothèque, des commerces, des boulangeries, un supermarché, un bureau de poste et deux épiceries à proximité du bien.Ce terrain est à vendre pour la somme de 158 000 €. Contactez Pierre Antoine BURILLE ((Numéro supprimé)) pour toute information sur le terrain ou sur les modalités de vente. Maisons de l’Avenir Rezé vous accompagne dans tous vos projets immobiliers et à toutes les étapes de votre projet.
La Chevrolière
TERRAIN ET MAISONBeau terrain situé dans un environnement calme et verdoyant, proche des commodités et idéal pour concrétiser votre projet de construction. Agréable et spacieuse, cette maison de plain-pied vous propose une cuisine aménagée ouverte sur un vaste salon séjour donnant sur l'arrière. La cuisine est à proximité d'un cellier et d'un garage, ce qui facilite l'habitabilité de cette maison. L'espace nuit est composé de trois belles chambres avec rangement, d'une salle de bains équipée et des wc séparés. Ses jeux d'enduits personnalisables sauront vous séduire. Pour vous assurer un confort de vie et conformément à la RE2025, nous avons choisi un mode de chauffage par PAC + plancher chauffant, volets roulants électriques. Prix hors fourniture et pose : des appareils sanitaires (sauf système de chauffage et d'eau chaude sanitaire), du carrelage et de la faïence, des revêtements de sol dans les chambres. Hors décoration et aménagement intérieur et peinture. Hors raccordements, frais de notaire et dommage ouvrage. // Réf. : 1086-213534-VAS. Prix terrain : 113 000 €, hors frais d'agence à la charge de l'acquéreur. Ce terrain vous est proposé, par nos partenaires fonciers, dans le cadre d'un projet de construction avec nous. Les informations sur les risques auxquels ce bien est exposé sont disponibles sur le site Géorisques (www.georisques.gouv.fr). Prix maison : 134 030 €.
L’actualité immobilière à Pont-Saint-Martin
27/11/2023
02/11/2023
30/10/2023
20/10/2023
16/10/2023
16/10/2023