Maison à construire à Pontchâteau (44160)
Images
Description
VENTE : maison T6 (140 m²) à Pontchâteau
QUARTIER RECHERCHÉ - MAISON 6 PIÈCES NEUVE
À 170 m de la gare, nous sommes ravis de vous proposer cette maison de 6 pièces de 140 m² et de 895 m² de terrain en vente située dans un secteur recherché de Pontchâteau (44160).
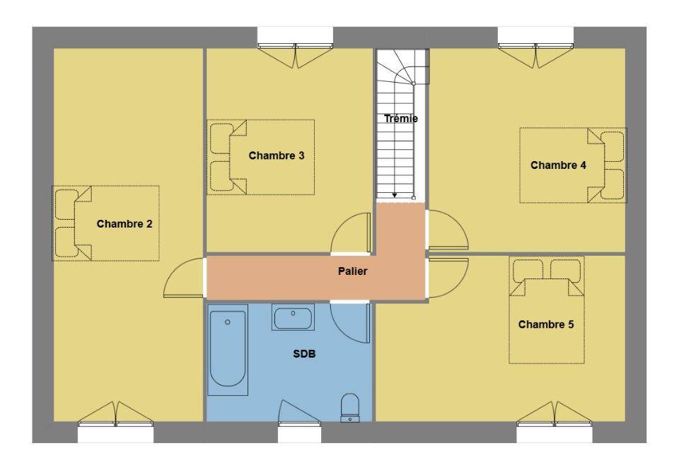
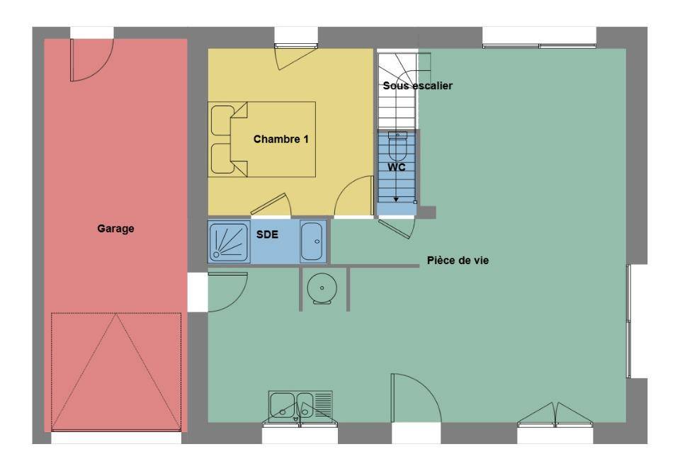
Il s'agit d'une maison de 2 niveaux. Son intérieur propose cinq chambres, une cuisine et deux salles de bains. La maison est neuve.
L'océan Atlantique se trouve à 14,32 km. Cette maison se trouve dans un quartier attractif. Des établissements scolaires de tous types (de la maternelle au lycée) sont implantés à moins de 10 minutes à pied. Côté transports en commun, on trouve la gare Pontchâteau à quelques pas du bien. Les nationales N165 et N171 sont accessibles à moins de 10 km et Saint-Nazaire se situe à 21 km. Il y a une bibliothèque, un bassin de natation, des commerces, quatre boulangeries, un supermarché, une poissonnerie et deux boucheries-charcuteries dans les environs. Ne manquez pas le marché Centre-Ville chaque lundi.
Elle est à vendre pour la somme de 367 500 €.
Contactez Jean-Baptiste ((Numéro supprimé)) pour toute question sur la propriété. Maisons de l'Avenir Orvault vous accompagne dans tous vos projets immobiliers et dans toutes vos démarches.
Logement susceptibles de vous intéresser
Nous vous proposons de découvrir aussi cette sélection de logements situés à moins de 10km de Pontchâteau et qui seraient susceptibles de vous intéresser.
Saint-Gildas-des-Bois
TERRAINÀ vendre, magnifique terrain de 886 m² situé au cœur de Saint-Gildas-des-Bois, en Loire-Atlantique. Ce terrain, entièrement viabilisé, offre une surface plane et ensoleillée qui en fait un choix idéal pour la construction de votre future maison. Profitez d’un cadre de vie paisible et agréable, tout en bénéficiant des commodités de la ville. Ce terrain représente une belle opportunité pour réaliser votre projet de construction dans un environnement serein. Saint-Gildas-des-Bois, ville agréable et dynamique située dans le département de Loire-Atlantique, vous séduira par son patrimoine culturel riche et ses nombreuses attractions locales. Les habitants bénéficient de divers services de proximité, notamment des commerces, des écoles et des infrastructures sportives. La proximité avec la nature et les espaces verts fait de cette ville un lieu de vie recherché, propice à l’épanouissement familial. De plus, la région des Pays de la Loire offre un accès facile à de nombreuses destinations touristiques, ajoutant encore plus à l’attrait de ce terrain. Ne manquez pas cette occasion unique d’acquérir un terrain avec un potentiel exceptionnel. Contactez-nous pour plus d’informations et envisagez dès maintenant votre futur chez-vous à Saint-Gildas-des-Bois. À noter qu’en tant que constructeur, nous ne sommes pas mandatés pour réaliser la vente de ce terrain.
Saint-Gildas-des-Bois
TERRAIN ET MAISONSur ce terrain, nous vous proposons cette maison neuve : la Couernium, une maison contemporaine à étage qui sait s’adapter. La Couernium est une maison contemporaine qui mêle toit à deux pentes et toiture terrasse. Cette construction offre une disposition intérieure modulable et intéressante. Déclinable en versions d’une superficie de 75 à 95 m², la Couernium vous offrira un look différent en fonction de vos choix. L’étage dans les différentes configurations se composera de deux chambres, d’une salle de bain avec baignoire, douche et WC. La version qui vous est ici présentée fait 90m² avec 3 chambres.Tout se joue au rez-de-chaussée ! Si la partie centrale reste elle aussi identique, offrant un grand séjour-salon avec cuisine ouverte et un confortable hall d’entrée, le modèle intermédiaire proposera une suite parentale accolée avec dressing et salle d’eau. Cette maison peut également s’équiper d’un garage accolé et d’une lingerie très pratique.Les caractéristiques principales de cette maison de 95 m² incluent une cuisine ouverte, une conformité à la norme RT2020, et une basse consommation énergétique conforme à la RE2020. Les options les plus demandées par les clients sont également disponibles : aérothermie/géothermie, terrasse en béton poreux, garage accolé, et modénature d’enduit.Construite par Maisons Privat, constructeur centenaire avec les meilleurs avis clients de la région, cette maison neuve est une opportunité à ne pas manquer. Profitez d’une habitation moderne, économe en énergie et parfaitement adaptée à vos besoins.
Saint-Gildas-des-Bois
TERRAINNous vous proposons un magnifique terrain à vendre, d’une superficie généreuse de 886 m², idéalement situé à Saint-Gildas-des-Bois, dans le département de la Loire-Atlantique. Ce terrain viabilisé offre un ensoleillement optimal, parfait pour envisager la construction de la maison de vos rêves. Profitez d’un cadre de vie paisible et agréable, tout en étant à proximité des commodités essentielles. Ce terrain présente un potentiel exceptionnel pour un projet de construction sur mesure. Saint-Gildas-des-Bois est une charmante commune des Pays de la Loire, réputée pour sa qualité de vie et son environnement naturel préservé. Les habitants peuvent bénéficier d’une multitude d’attractions locales, allant des balades en pleine nature aux activités culturelles. La ville dispose d’un réseau de services variés, incluant des commerces, des écoles et des infrastructures sportives. La proximité avec les grands axes routiers facilite également l’accès aux villes environnantes, tout en préservant le calme d’un cadre rural. Ce terrain est une opportunité rare, alliant tranquillité et potentiel de développement. Ne manquez pas cette chance de réaliser votre projet immobilier dans un cadre enchanteur. À noter qu’en tant que constructeur, nous ne sommes pas mandatés pour réaliser la vente de ce terrain.
Saint-Gildas-des-Bois
TERRAIN ET MAISONSur ce terrain, nous vous proposons cette maison neuve : l’Innova, une maison contemporaine absolument unique. Cette maison de plain-pied, d’une surface de 90 m², a tout de la demeure d’architecte. La composition de ses différents corps en fait une maison d’un aspect magnifique tout en permettant une disposition intérieure extrêmement intéressante.L’Innova, le rêve d’une maison unique réalisable, est proposée par Maisons Privat, constructeur centenaire avec les meilleurs avis clients de la région. Ce modèle dispose de trois chambres, d’une salle d’eau et de w.c., ainsi que d’un garage accolé accessible par un petit préau.Les caractéristiques principales de cette maison incluent un porche accueillant et un garage accolé. De plus, cette maison neuve est basse consommation et conforme à la RE2020, garantissant une efficacité énergétique optimale et des économies sur vos factures d’énergie.Les options les plus demandées par les clients, telles que le plancher chauffant, peuvent également être intégrées pour un confort supplémentaire.Ne manquez pas cette opportunité de vivre dans une maison contemporaine, économe en énergie et conçue par un constructeur de renom. Contactez-nous dès aujourd’hui pour plus d’informations et pour planifier une visite.
Saint-Gildas-des-Bois
TERRAINNous vous présentons un terrain exceptionnel de 886 m², idéalement situé à Saint-Gildas-des-Bois, dans le département de Loire-Atlantique. Ce terrain plat, déjà viabilisé, constitue un cadre parfait pour un projet de construction de maison. Ses caractéristiques uniques, associées à l’atmosphère paisible de la région, en font une opportunité rare à saisir pour ceux qui envisagent de bâtir leur futur chez-soi. Saint-Gildas-des-Bois est une charmante commune du Pays de la Loire, réputée pour sa qualité de vie et la sécurité qu’elle offre à ses habitants. Sa localisation stratégique vous permet de profiter de toutes les commodités essentielles, tout en étant à proximité de belles attractions locales. Les amoureux de la nature apprécieront les espaces verts environnants, tandis que les familles bénéficieront de bonnes infrastructures scolaires et de divers services. En choisissant ce terrain, vous optez pour un cadre de vie serein, tout en restant connecté à la dynamique de la région. Ce terrain offre un potentiel remarquable pour concrétiser vos rêves de construction. N’attendez plus pour envisager cette opportunité d’achat unique ! À noter qu’en tant que constructeur, nous ne sommes pas mandatés pour réaliser la vente de ce terrain.
Saint-Gildas-des-Bois
TERRAIN ET MAISONSur ce terrain, nous vous proposons cette superbe maison de plain-pied, alliant confort, modernité et praticité, idéale pour une famille en quête de bien-être.Avec son agencement optimisé, cette maison vous offre une spacieuse pièce de vie baignée de lumière naturelle, comprenant un séjour convivial et une cuisine ouverte fonctionnelle, parfaite pour des moments en famille ou entre amis.L’espace nuit se compose de trois belles chambres offrant confort et sérénité, d’une salle d’eau moderne et de WC séparés pour plus de praticité.Un garage intégré vient compléter ce bien, idéal pour stationner un véhicule ou disposer d’un espace de rangement supplémentaire.
Pontchâteau
TERRAIN ET MAISONA PONTCHATEAU sur un terrain de 895 m², Alliance Construction vous propose de réaliser votre projet de construction de maison individuelle d'une surface de 86.69 m² habitables avec 3 chambres, à partir de 295000€*Informations du terrain : CENTRE DE PONTCHATEAU – EXCLUSIVITE ALLIANCEIdéalement situé à 1km de centre bourg de Pontchâteau, cette magnifique parcelle de 895 m² vous permettra d'accéder rapidement à toutes les commodités nécessaires au quotidien : écoles, commerces, transports, axes routiers…Situé et second rideau, vous profiterez d'un extérieur calme et paisible.Tous les réseaux : eaux, électricité, PTT et tout à l'égout passent juste devant le terrain.ALLIANCE vous accompagne également dans toutes les démarches pour la viabilisation et les raccordements à votre future maison.Demandez une étude gratuite et personnalisée de votre projet de construction !* Cette offre comprend :- Garanties constructeurs (dommages ouvrage, garantie de prix ferme et définitif, garantie de livraison, responsabilité civile et décennale).- Branchements aux compteurs et accès empierré sur 5m linéaires.Habitez une maison spécialement pensée et conçue pour vous et votre famille, prête à décorer, adaptée à vos modes de vie, personnalisée selon vos goûts grâce à un large choix d'options, de matériaux et d'innovations !Contactez Benoit COCHIN au (Numéro supprimé) (Alliance Construction – Agence de Pontchâteau).*Prix indicatif pour un projet de construction d'une maison individuelle. Ne sont pas inclus les frais de branchements, raccordements aux réseaux publics, frais d'adaptations, aménagements intérieurs et extérieurs et options. viabilisation comprise, frais de notaire compris, frais divers non compris. Garanties et assurances obligatoires incluses. Terrain sélectionné par ALLIANCE auprès de nos partenaires fonciers, selon disponibilité, pour la construction d'une maison neuve. Non mandaté pour réaliser la vente (loi du 2 janvier 1970 n°70-9). Visuels non contractuels. Voir détails en agence.Cette annonce a été créée et diffusée avec le logiciel VITAHOME.
Missillac
TERRAIN ET MAISONA MISSILLAC sur un terrain de 1290 m², Alliance Construction vous propose de réaliser votre projet de construction de maison individuelle d'une surface de 99 m² habitables avec 3 chambres, à partir de 297500€*Informations du terrain : Faites construire votre future maison ALLIANCE sur ce magnifique terrain de 1000 m² qui vous offrira le calme de la campagne, tout en restant à une distance très confortable de toutes les commodités nécessaires du quotidien :- Bourg de Missillac à 7 minutes- Bourg de Pontchâteau à 13 minutes- Saint-Nazaire à 36 km- Premières plage à 30 minutesNous vous proposons d'y construire votre maison sur-mesure, adaptée à vos besoins et vos envies. Contactez-nous sans plus attendre !Demandez une étude gratuite et personnalisée de votre projet de construction !* Cette offre comprend :- Garanties constructeurs (dommages ouvrage, garantie de prix ferme et définitif, garantie de livraison, responsabilité civile et décennale).- Branchements aux compteurs et accès empierré sur 5m linéaires.Habitez une maison spécialement pensée et conçue pour vous et votre famille, prête à décorer, adaptée à vos modes de vie, personnalisée selon vos goûts grâce à un large choix d'options, de matériaux et d'innovations !Contactez Benoit COCHIN au (Numéro supprimé) (Alliance Construction – Agence de Pontchâteau).*Prix indicatif pour un projet de construction d'une maison individuelle. Ne sont pas inclus les frais de branchements, raccordements aux réseaux publics, frais d'adaptations, aménagements intérieurs et extérieurs et options. viabilisation comprise, frais de notaire non compris, frais divers non compris. Garanties et assurances obligatoires incluses. Terrain sélectionné par ALLIANCE auprès de nos partenaires fonciers, selon disponibilité, pour la construction d'une maison neuve. Non mandaté pour réaliser la vente (loi du 2 janvier 1970 n°70-9). Visuels non contractuels. Voir détails en agence.Cette annonce a été créée et diffusée avec le logiciel VITAHOME.
Sainte-Reine-de-Bretagne
TERRAIN ET MAISONA SAINTE-REINE-DE-BRETAGNE sur un terrain de 656 m², Alliance Construction vous propose de réaliser votre projet de construction de maison individuelle d'une surface de 77.93 m² habitables avec 3 chambres, à partir de 244500€*Informations du terrain : Situé dans le centre bourg de sainte-reine-de-bretagne et bien exposé, ce terrain, au calme d'une impasse, est idéal pour accueillir votre future maison.Terrain vendu entièrement viabilisé.Demandez une étude gratuite et personnalisée de votre projet de construction !* Cette offre comprend :- Garanties constructeurs (dommages ouvrage, garantie de prix ferme et définitif, garantie de livraison, responsabilité civile et décennale).- Branchements aux compteurs et accès empierré sur 5m linéaires.Habitez une maison spécialement pensée et conçue pour vous et votre famille, prête à décorer, adaptée à vos modes de vie, personnalisée selon vos goûts grâce à un large choix d'options, de matériaux et d'innovations !Contactez Benoit COCHIN au (Numéro supprimé) (Alliance Construction – Agence de Pontchâteau).*Prix indicatif pour un projet de construction d'une maison individuelle. Ne sont pas inclus les frais de branchements, raccordements aux réseaux publics, frais d'adaptations, aménagements intérieurs et extérieurs et options. terrain viabilisé, frais de notaire non compris, frais divers non compris. Garanties et assurances obligatoires incluses. Terrain sélectionné par ALLIANCE auprès de nos partenaires fonciers, selon disponibilité, pour la construction d'une maison neuve. Non mandaté pour réaliser la vente (loi du 2 janvier 1970 n°70-9). Visuels non contractuels. Voir détails en agence.Cette annonce a été créée et diffusée avec le logiciel VITAHOME.
L’actualité immobilière à Pontchâteau
27/11/2023
02/11/2023
30/10/2023
20/10/2023
16/10/2023
16/10/2023