Maison à construire à Pornic (44210)
Images
Description
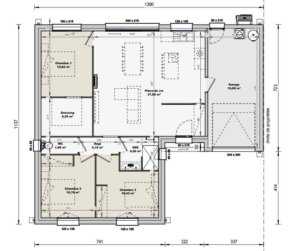
Pornic : maison T4 (84 m²) en vente
MAISON 4 PIÈCES NEUVE - PROCHE DE SAINT-NAZAIRE
En vente au bord de l'océan Atlantique et à 22 km de Saint-Nazaire, Maisons Tradilignes Pornic vous propose cette maison de 4 pièces de plain-pied de 84 m² à Pornic (44210).
Son intérieur propose trois chambres, une cuisine et une salle de bains. Cette maison est neuve.
Le terrain de la propriété est de 1 016 m².
Cinq établissements scolaires sont implantés à moins de 10 minutes . Niveau transports en commun, il y a la gare Pornic dans les alentours. On trouve un port de plaisance, des commerces, des boulangeries, un supermarché, trois épiceries et une supérette à proximité.
Son prix de vente est de 540 000 €.
Prenez contact avec Vincent COUCHAUX ((Numéro supprimé)) pour obtenir de plus amples informations sur la maison, sur les modalités de vente et sur les démarches à suivre. Maisons Tradilignes Pornic vous accompagne à toutes les étapes de votre projet et dans tous vos projets immobiliers.
Logement susceptibles de vous intéresser
Nous vous proposons de découvrir aussi cette sélection de logements situés à moins de 10km de Pornic et qui seraient susceptibles de vous intéresser.
Chauvé
TERRAINPrix : 53000 €.Sur ce terrain de 250 m² à CHAUVE, Alliance Construction vous propose de réaliser votre projet de construction de maison individuelle.Avec Alliance Construction, habitez une maison spécialement pensée et conçue pour vous et votre famille, prête à décorer, adaptée à vos modes de vie, personnalisée selon vos goûts grâce à un large choix d'options, de matériaux et d'innovations ! Demandez une étude gratuite et personnalisée de votre projet de construction sur ce terrain à CHAUVE !Contactez Laurent LASSIMONNE au (Numéro supprimé) (Alliance Construction – Agence de Vallet).Prix hors frais de notaire. Terrain sélectionné par ALLIANCE auprès de nos partenaires fonciers, selon disponibilité, pour la construction d'une maison neuve. Non mandaté pour réaliser la vente (loi du 2 janvier 1970 n°70-9). Visuels non contractuels. Voir détails en agence.Cette annonce a été créée et diffusée avec le logiciel VITAHOME.
Saint-Michel-Chef-Chef
TERRAINA deux pas des plages de la Côte de Jade, ce terrain viabilisé vous offre un cadre de vie idéal. Situé dans une ruelle calme et résidentielle, il vous permet de profiter du bord de mer tout en bénéficiant d'un environnement paisible.Prix : 229120 €.Sur ce terrain de 453 m² à SAINT-MICHEL-CHEF-CHEF, Alliance Construction vous propose de réaliser votre projet de construction de maison individuelle.Avec Alliance Construction, habitez une maison spécialement pensée et conçue pour vous et votre famille, prête à décorer, adaptée à vos modes de vie, personnalisée selon vos goûts grâce à un large choix d'options, de matériaux et d'innovations ! Demandez une étude gratuite et personnalisée de votre projet de construction sur ce terrain à SAINT-MICHEL-CHEF-CHEF !Contactez Thierry MONLEZUN au (Numéro supprimé) (Alliance Construction – Agence de Nantes Aubinière).Prix hors frais de notaire. Terrain sélectionné par ALLIANCE auprès de nos partenaires fonciers, selon disponibilité, pour la construction d'une maison neuve. Non mandaté pour réaliser la vente (loi du 2 janvier 1970 n°70-9). Visuels non contractuels. Voir détails en agence.Cette annonce a été créée et diffusée avec le logiciel VITAHOME.
Pornic
TERRAINVotre projet de maison prend vie à Pornic ! Ce terrain hors lotissement vous offre la possibilité de créer votre havre de paix. Situé à 3 mn du lycée, école à proximité et à seulement 5 minutes des plages, il bénéficie d'un emplacement idéal pour toute la famille. Calme et verdoyant, il vous permettra de profiter pleinement de la nature tout en étant proche de toutes les commodités.Prix : 179500 €.Sur ce terrain de 693 m² à PORNIC, Alliance Construction vous propose de réaliser votre projet de construction de maison individuelle.Avec Alliance Construction, habitez une maison spécialement pensée et conçue pour vous et votre famille, prête à décorer, adaptée à vos modes de vie, personnalisée selon vos goûts grâce à un large choix d'options, de matériaux et d'innovations ! Demandez une étude gratuite et personnalisée de votre projet de construction sur ce terrain à PORNIC !Contactez Thierry MONLEZUN au (Numéro supprimé) (Alliance Construction – Agence de Nantes Aubinière).Prix hors frais de notaire. Terrain sélectionné par ALLIANCE auprès de nos partenaires fonciers, selon disponibilité, pour la construction d'une maison neuve. Non mandaté pour réaliser la vente (loi du 2 janvier 1970 n°70-9). Visuels non contractuels. Voir détails en agence.Cette annonce a été créée et diffusée avec le logiciel VITAHOME.
Pornic
TERRAINVotre projet de maison prend vie à Pornic ! Ce terrain hors lotissement vous offre la possibilité de créer votre havre de paix. Situé à seulement 1 km des plages et à 2 minutes des commerces, il bénéficie d'un emplacement idéal pour allier tranquillité et praticité.Prix : 194500 €.Sur ce terrain de 347 m² à PORNIC, Alliance Construction vous propose de réaliser votre projet de construction de maison individuelle.Avec Alliance Construction, habitez une maison spécialement pensée et conçue pour vous et votre famille, prête à décorer, adaptée à vos modes de vie, personnalisée selon vos goûts grâce à un large choix d'options, de matériaux et d'innovations ! Demandez une étude gratuite et personnalisée de votre projet de construction sur ce terrain à PORNIC !Contactez Thierry MONLEZUN au (Numéro supprimé) (Alliance Construction – Agence de Nantes Aubinière).Prix hors frais de notaire. Terrain sélectionné par ALLIANCE auprès de nos partenaires fonciers, selon disponibilité, pour la construction d'une maison neuve. Non mandaté pour réaliser la vente (loi du 2 janvier 1970 n°70-9). Visuels non contractuels. Voir détails en agence.Cette annonce a été créée et diffusée avec le logiciel VITAHOME.
Pornic
TERRAINVotre projet de maison prend forme à Pornic ! Ce terrain viabilisé de 745 m² vous offre l'opportunité d'édifier votre future demeure à seulement 5 minutes des plages. Un emplacement idéal pour profiter des joies de la mer et de la douceur de vivre en bord de côte.Prix : 209500 €.Sur ce terrain de 745 m² à PORNIC, Alliance Construction vous propose de réaliser votre projet de construction de maison individuelle.Avec Alliance Construction, habitez une maison spécialement pensée et conçue pour vous et votre famille, prête à décorer, adaptée à vos modes de vie, personnalisée selon vos goûts grâce à un large choix d'options, de matériaux et d'innovations ! Demandez une étude gratuite et personnalisée de votre projet de construction sur ce terrain à PORNIC !Contactez Thierry MONLEZUN au (Numéro supprimé) (Alliance Construction – Agence de Nantes Aubinière).Prix hors frais de notaire. Terrain sélectionné par ALLIANCE auprès de nos partenaires fonciers, selon disponibilité, pour la construction d'une maison neuve. Non mandaté pour réaliser la vente (loi du 2 janvier 1970 n°70-9). Visuels non contractuels. Voir détails en agence.Cette annonce a été créée et diffusée avec le logiciel VITAHOME.
Pornic
TERRAINDécouvrez ce terrain d'exception, niché dans un environnement préservé à Pornic. À proximité immédiate du port et des plages, il vous offre un cadre de vie unique, mêlant le charme de la ville et la douceur de vivre à la campagne. Un lieu idéal pour construire votre maison de famille et profiter des plaisirs de la vie en bord de mer.Prix : 245900 €.Sur ce terrain de 382 m² à PORNIC, Alliance Construction vous propose de réaliser votre projet de construction de maison individuelle.Avec Alliance Construction, habitez une maison spécialement pensée et conçue pour vous et votre famille, prête à décorer, adaptée à vos modes de vie, personnalisée selon vos goûts grâce à un large choix d'options, de matériaux et d'innovations ! Demandez une étude gratuite et personnalisée de votre projet de construction sur ce terrain à PORNIC !Contactez Thierry MONLEZUN au (Numéro supprimé) (Alliance Construction – Agence de Nantes Aubinière).Prix hors frais de notaire. Terrain sélectionné par ALLIANCE auprès de nos partenaires fonciers, selon disponibilité, pour la construction d'une maison neuve. Non mandaté pour réaliser la vente (loi du 2 janvier 1970 n°70-9). Visuels non contractuels. Voir détails en agence.Cette annonce a été créée et diffusée avec le logiciel VITAHOME.
Pornic
TERRAIN ET MAISONA PORNIC sur un terrain de 326 m², Alliance Construction vous propose de réaliser votre projet de construction de maison individuelle d'une surface de 107.07 m² habitables avec 4 chambres, à partir de 361100€*Informations du terrain : Ce terrain à bâtir, idéalement situé dans une ville dynamique et prisée, est un véritable investissement d'avenir. Profitez d'un cadre de vie exceptionnel, alliant le calme de la nature et la proximité des commodités.Demandez une étude gratuite et personnalisée de votre projet de construction !* Cette offre comprend :- Garanties constructeurs (dommages ouvrage, garantie de prix ferme et définitif, garantie de livraison, responsabilité civile et décennale).- Branchements aux compteurs et accès empierré sur 5m linéaires.Habitez une maison spécialement pensée et conçue pour vous et votre famille, prête à décorer, adaptée à vos modes de vie, personnalisée selon vos goûts grâce à un large choix d'options, de matériaux et d'innovations !Contactez Thierry MONLEZUN au (Numéro supprimé) (Alliance Construction – Agence de Nantes Aubinière).*Prix indicatif pour un projet de construction d'une maison individuelle. Ne sont pas inclus les frais de branchements, raccordements aux réseaux publics, frais d'adaptations, aménagements intérieurs et extérieurs et options. terrain viabilisé, frais de notaire non compris, frais divers non compris. Garanties et assurances obligatoires incluses. Terrain sélectionné par ALLIANCE auprès de nos partenaires fonciers, selon disponibilité, pour la construction d'une maison neuve. Non mandaté pour réaliser la vente (loi du 2 janvier 1970 n°70-9). Visuels non contractuels. Voir détails en agence.Cette annonce a été créée et diffusée avec le logiciel VITAHOME.
Saint-Michel-Chef-Chef
TERRAIN ET MAISONA SAINT-MICHEL-CHEF-CHEF sur un terrain de 628 m², Alliance Construction vous propose de réaliser votre projet de construction de maison individuelle d'une surface de 103.51 m² habitables avec 3 chambres, à partir de 423500€*Informations du terrain : Envie d'un environnement paisible tout en profitant des charmes de la côte ? Ce terrain viabilisé de 628 m² vous offre l'opportunité de construire votre maison dans un quartier résidentiel à proximité immédiate de la mer. Profitez des plages, des sentiers côtiers et du charme de la vie à la campagne.Demandez une étude gratuite et personnalisée de votre projet de construction !* Cette offre comprend :- Garanties constructeurs (dommages ouvrage, garantie de prix ferme et définitif, garantie de livraison, responsabilité civile et décennale).- Branchements aux compteurs et accès empierré sur 5m linéaires.Habitez une maison spécialement pensée et conçue pour vous et votre famille, prête à décorer, adaptée à vos modes de vie, personnalisée selon vos goûts grâce à un large choix d'options, de matériaux et d'innovations !Contactez Thierry MONLEZUN au (Numéro supprimé) (Alliance Construction – Agence de Nantes Aubinière).*Prix indicatif pour un projet de construction d'une maison individuelle. Ne sont pas inclus les frais de branchements, raccordements aux réseaux publics, frais d'adaptations, aménagements intérieurs et extérieurs et options. terrain viabilisé, frais de notaire non compris, frais divers non compris. Garanties et assurances obligatoires incluses. Terrain sélectionné par ALLIANCE auprès de nos partenaires fonciers, selon disponibilité, pour la construction d'une maison neuve. Non mandaté pour réaliser la vente (loi du 2 janvier 1970 n°70-9). Visuels non contractuels. Voir détails en agence.Cette annonce a été créée et diffusée avec le logiciel VITAHOME.
Pornic
TERRAIN ET MAISONA PORNIC sur un terrain de 321 m², Alliance Construction vous propose de réaliser votre projet de construction de maison individuelle d'une surface de 88.04 m² habitables avec 3 chambres, à partir de 315500€*Informations du terrain : Vous souhaitez construire votre maison dans un cadre exceptionnel au bord de l’océan ? Ce terrain à bâtir entièrement viabilisé est l’opportunité parfaite pour réaliser votre projet immobilier dans une ville dynamique et prisée.Cette emplacement vous offre une rare opportunité de construire votre maison sur mesure dans un environnement privilégié, tout en profitant de la vie côtière.Pour plus d’informations ou pour organiser une visite, n’hésitez pas à nous contacter.Demandez une étude gratuite et personnalisée de votre projet de construction !* Cette offre comprend :- Garanties constructeurs (dommages ouvrage, garantie de prix ferme et définitif, garantie de livraison, responsabilité civile et décennale).- Branchements aux compteurs et accès empierré sur 5m linéaires.Habitez une maison spécialement pensée et conçue pour vous et votre famille, prête à décorer, adaptée à vos modes de vie, personnalisée selon vos goûts grâce à un large choix d'options, de matériaux et d'innovations !Contactez Thierry MONLEZUN au (Numéro supprimé) (Alliance Construction – Agence de Nantes Aubinière).*Prix indicatif pour un projet de construction d'une maison individuelle. Ne sont pas inclus les frais de branchements, raccordements aux réseaux publics, frais d'adaptations, aménagements intérieurs et extérieurs et options. terrain viabilisé, frais de notaire non compris, frais divers non compris. Garanties et assurances obligatoires incluses. Terrain sélectionné par ALLIANCE auprès de nos partenaires fonciers, selon disponibilité, pour la construction d'une maison neuve. Non mandaté pour réaliser la vente (loi du 2 janvier 1970 n°70-9). Visuels non contractuels. Voir détails en agence.Cette annonce a été créée et diffusée avec le logiciel VITAHOME.
L’actualité immobilière à Pornic
27/11/2023
02/11/2023
30/10/2023
20/10/2023
16/10/2023
16/10/2023