Maison à construire à Rezé (44400)
Images
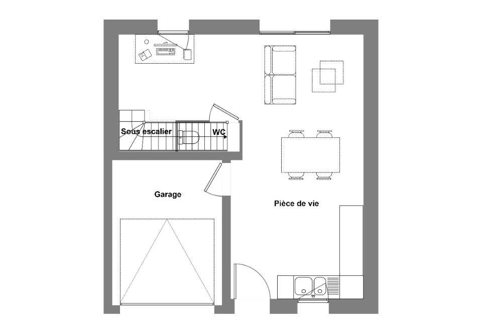
Description
Maison de 4 pièces (69 m²) en vente à Rezé
EMPLACEMENT PRIVILÉGIÉ - MAISON 4 PIÈCES NEUVE
À vendre : localisée à 21 km de l'océan Atlantique, Maisons de l'Avenir Rezé vous propose, bénéficiant d'un emplacement privilégié dans Rezé (44400), cette maison de 4 pièces de 69 m². Elle inclut trois chambres, une cuisine et une salle de bains.
Le terrain du bien est de 293 m².
Il s'agit d'une maison de 2 niveaux. Elle est neuve.
La maison se situe dans un secteur recherché. On trouve plusieurs établissements scolaires (maternelle, élémentaire et collège) à moins de 10 minutes à pied, tout comme trois crèches. Côté transports, il y a neuf gares à moins de 10 minutes en voiture. L'autoroute A83 et les nationales N844, N249 et N444 sont accessibles à moins de 9 km. On trouve une bibliothèque, des commerces, des boulangeries, un supermarché, un bureau de poste et deux épiceries dans les environs.
Son prix de vente est de 275 200 €.
Contactez Pierre Antoine BURILLE (tél : (Numéro supprimé)) pour toute information sur la maison, sur les modalités de vente et sur les démarches à suivre.
Logement susceptibles de vous intéresser
Nous vous proposons de découvrir aussi cette sélection de logements situés à moins de 10km de Rezé et qui seraient susceptibles de vous intéresser.
Vertou
TERRAIN ET MAISONA VERTOU sur un terrain de 365 m², Alliance Construction vous propose de réaliser votre projet de construction de maison individuelle d'une surface de 87.91 m² habitables avec 3 chambres, à partir de 293154€*Demandez une étude gratuite et personnalisée de votre projet de construction !* Cette offre comprend :- Garanties constructeurs (dommages ouvrage, garantie de prix ferme et définitif, garantie de livraison, responsabilité civile et décennale).- Branchements aux compteurs et accès empierré sur 5m linéaires.Habitez une maison spécialement pensée et conçue pour vous et votre famille, prête à décorer, adaptée à vos modes de vie, personnalisée selon vos goûts grâce à un large choix d'options, de matériaux et d'innovations !Contactez Laurent LASSIMONNE au (Numéro supprimé) (Alliance Construction – Agence de Vallet).*Prix indicatif pour un projet de construction d'une maison individuelle. Ne sont pas inclus les frais de branchements, raccordements aux réseaux publics, frais d'adaptations, aménagements intérieurs et extérieurs et options. terrain viabilisé, frais de notaire non compris, frais divers non compris. Garanties et assurances obligatoires incluses. Terrain sélectionné par ALLIANCE auprès de nos partenaires fonciers, selon disponibilité, pour la construction d'une maison neuve. Non mandaté pour réaliser la vente (loi du 2 janvier 1970 n°70-9). Visuels non contractuels. Voir détails en agence.Cette annonce a été créée et diffusée avec le logiciel VITAHOME.
Vertou
TERRAIN ET MAISONA VERTOU sur un terrain de 775 m², Alliance Construction vous propose de réaliser votre projet de construction de maison individuelle d'une surface de 123.05 m² habitables avec 4 chambres, à partir de 550100€*Demandez une étude gratuite et personnalisée de votre projet de construction !* Cette offre comprend :- Garanties constructeurs (dommages ouvrage, garantie de prix ferme et définitif, garantie de livraison, responsabilité civile et décennale).- Branchements aux compteurs et accès empierré sur 5m linéaires.Habitez une maison spécialement pensée et conçue pour vous et votre famille, prête à décorer, adaptée à vos modes de vie, personnalisée selon vos goûts grâce à un large choix d'options, de matériaux et d'innovations !Contactez Laurent LASSIMONNE au (Numéro supprimé) (Alliance Construction – Agence de Vallet).*Prix indicatif pour un projet de construction d'une maison individuelle. Ne sont pas inclus les frais de branchements, raccordements aux réseaux publics, frais d'adaptations, aménagements intérieurs et extérieurs et options. terrain non viabilisé, frais de notaire non compris, frais divers non compris. Garanties et assurances obligatoires incluses. Terrain sélectionné par ALLIANCE auprès de nos partenaires fonciers, selon disponibilité, pour la construction d'une maison neuve. Non mandaté pour réaliser la vente (loi du 2 janvier 1970 n°70-9). Visuels non contractuels. Voir détails en agence.Cette annonce a été créée et diffusée avec le logiciel VITAHOME.
Bouguenais
TERRAINPrix : 102500 €.Sur ce terrain de 410 m² à BOUGUENAIS, Alliance Construction vous propose de réaliser votre projet de construction de maison individuelle.Avec Alliance Construction, habitez une maison spécialement pensée et conçue pour vous et votre famille, prête à décorer, adaptée à vos modes de vie, personnalisée selon vos goûts grâce à un large choix d'options, de matériaux et d'innovations ! Demandez une étude gratuite et personnalisée de votre projet de construction sur ce terrain à BOUGUENAIS !Contactez Laurent LASSIMONNE au (Numéro supprimé) (Alliance Construction – Agence de Vallet).Prix hors frais de notaire. Terrain sélectionné par ALLIANCE auprès de nos partenaires fonciers, selon disponibilité, pour la construction d'une maison neuve. Non mandaté pour réaliser la vente (loi du 2 janvier 1970 n°70-9). Visuels non contractuels. Voir détails en agence.Cette annonce a été créée et diffusée avec le logiciel VITAHOME.
Vertou
TERRAINPrix : 135000 €.Sur ce terrain de 365 m² à VERTOU, Alliance Construction vous propose de réaliser votre projet de construction de maison individuelle.Avec Alliance Construction, habitez une maison spécialement pensée et conçue pour vous et votre famille, prête à décorer, adaptée à vos modes de vie, personnalisée selon vos goûts grâce à un large choix d'options, de matériaux et d'innovations ! Demandez une étude gratuite et personnalisée de votre projet de construction sur ce terrain à VERTOU !Contactez Laurent LASSIMONNE au (Numéro supprimé) (Alliance Construction – Agence de Vallet).Prix hors frais de notaire. Terrain sélectionné par ALLIANCE auprès de nos partenaires fonciers, selon disponibilité, pour la construction d'une maison neuve. Non mandaté pour réaliser la vente (loi du 2 janvier 1970 n°70-9). Visuels non contractuels. Voir détails en agence.Cette annonce a été créée et diffusée avec le logiciel VITAHOME.
Vertou
TERRAINPrix : 250000 €.Sur ce terrain de 775 m² à VERTOU, Alliance Construction vous propose de réaliser votre projet de construction de maison individuelle.Avec Alliance Construction, habitez une maison spécialement pensée et conçue pour vous et votre famille, prête à décorer, adaptée à vos modes de vie, personnalisée selon vos goûts grâce à un large choix d'options, de matériaux et d'innovations ! Demandez une étude gratuite et personnalisée de votre projet de construction sur ce terrain à VERTOU !Contactez Laurent LASSIMONNE au (Numéro supprimé) (Alliance Construction – Agence de Vallet).Prix hors frais de notaire. Terrain sélectionné par ALLIANCE auprès de nos partenaires fonciers, selon disponibilité, pour la construction d'une maison neuve. Non mandaté pour réaliser la vente (loi du 2 janvier 1970 n°70-9). Visuels non contractuels. Voir détails en agence.Cette annonce a été créée et diffusée avec le logiciel VITAHOME.
Vertou
TERRAINFiche N°Id-TCT177471 : VERTOU Fiche BC177471 : Vertou, secteur Les pegers, Terrain d’environ 1250 m2 – – Equipements annexes : – chauffage : Aucun – Plus d’informations disponibles sur demande… – Mentions légales : Proposé à la vente à 162000 Euros (Dont 8% TTC d’honoraires à la charge de l’acquéreur, soit un prix hors honoraires de 150000 Euros) – Affaire suivie par Mr Mickael CLEMENCEAU (Agent commercial independant) – Reseau Immo-Diffusion Vertou – Pour plus d’informations, contactez notre secrétariat au (Numéro supprimé) (Appel gratuit ou prix d’une communication locale)
Rezé
TERRAINRezé : terrain de 470 m² à vendreEMPLACEMENT PRIVILÉGIÉ – VUE SANS VIS-À-VISÀ 21 km de l’océan Atlantique à Rezé (44400), terrain de 470 m². Réalisez-y votre résidence principale ou secondaire. Il profite d’une vue sans vis-à-vis en bord de sevre et est orienté au sud-est. Dans un secteur recherché, ce terrain bénéficiant d’un emplacement d’exception est proche des écoles et des commerces. Il y a plusieurs écoles (maternelle, élémentaire et collège) à moins de 10 minutes à pied, tout comme trois crèches. Niveau transports en commun, on trouve neuf gares à moins de 10 minutes en voiture. L’autoroute A83 et les nationales N844, N249 et N444 sont accessibles à moins de 9 km. Il y a une bibliothèque, des commerces, des boulangeries, un supermarché, un bureau de poste et deux épiceries à quelques minutes de la propriété.Il est proposé à l’achat pour 150 000 €. N’hésitez pas à prendre contact avec Franck DUJARDIN ((Numéro supprimé)) pour toute question sur ce terrain.
Saint-Sébastien-sur-Loire
TERRAINVENTE : terrain de 420 m² à Saint-Sébastien-sur-LoireEMPLACEMENT PRIVILÉGIÉÀ Saint-Sébastien-sur-Loire (44230) à 26 km de l’océan Atlantique, donnez vie à votre projet immobilier sur ce terrain de 420 m². Il bénéficie d’une exposition sud-ouest. Dans un quartier attractif, ce terrain bénéficiant d’un emplacement d’exception est proche des commerces et des écoles. Le Collège René Bernier, l’École Maternelle Publique Centre et l’École Élémentaire Publique Théodore Monod sont implantés à moins de 10 minutes à pied, tout comme trois crèches. Côté transports en commun, on trouve 11 gares à moins de 10 minutes en voiture. Des autoroutes et les nationales N844 et N249 sont accessibles à moins de 10 km. Il y a une bibliothèque, un tennis, des commerces, des boulangeries, un supermarché, un bureau de poste et une poissonnerie dans les environs. Enfin, le marché Place Cambronne a lieu tous les mardis matin.Ce terrain est proposé à l’achat pour 230 000 €. N’hésitez pas à prendre contact avec Franck DUJARDIN ((Numéro supprimé)) pour tout renseignement sur le terrain. Maisons Tradilignes Saint-Sébastien-sur-Loire vous accompagne à toutes les étapes de l’achat et dans tous vos projets immobiliers.
Bouguenais
TERRAINVENTE d’un terrain de 470 m² à BouguenaisQUARTIER RECHERCHÉEn vente à 14 km de l’océan Atlantique à Bouguenais (44340), terrain de 470 m². Il est exposé au sud-ouest. Dans un quartier attractif, ce terrain construit dans un quartier recherché est proche des commerces et des écoles. On trouve des écoles maternelles et élémentaires à moins de 10 minutes à pied. Niveau transports, il y a sept gares à moins de 10 minutes en voiture. La nationale N844 est accessible à 1 km. On trouve une bibliothèque, un tennis, un bassin de natation et sept commerces dans les environs.Ce terrain est à vendre pour la somme de 135 000 €. Contactez Franck DUJARDIN (tél : (Numéro supprimé)) pour obtenir de plus amples renseignements sur le terrain ou sur les démarches à suivre. Faites de vos projets immobiliers une réalité avec Maisons Tradilignes Saint-Sébastien-sur-Loire.
L’actualité immobilière à Rezé
27/11/2023
02/11/2023
30/10/2023
20/10/2023
16/10/2023
16/10/2023