Maison à construire à Rezé (44400)
Images
Description
Rezé : maison de 5 pièces (89 m²) en vente
QUARTIER RECHERCHÉ - MAISON 5 PIÈCES NEUVE
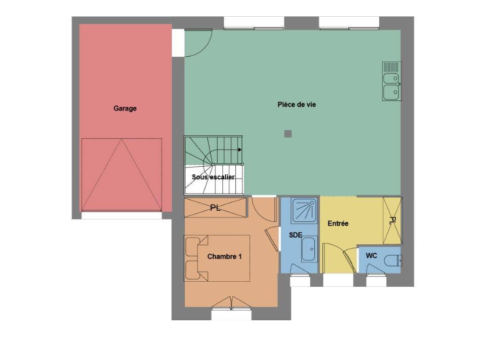
À vendre : à 21 km de l'océan Atlantique, votre agence Maisons de l'Avenir Rezé est heureuse de vous présenter, dans un quartier convoité de Rezé (44400), cette maison de 5 pièces de 89 m² et de 460 m² de terrain. Son intérieur est composé de quatre chambres, d'une cuisine et de deux salles de bains.
Cette maison compte 2 niveaux. Elle est neuve.
Cette maison se trouve dans un secteur attractif. Plusieurs établissements scolaires (maternelle, élémentaire et collège) sont implantés à moins de 10 minutes à pied, tout comme trois crèches. Côté transports en commun, il y a neuf gares à moins de 10 minutes en voiture. L'autoroute A83 et les nationales N844, N249 et N444 sont accessibles à moins de 9 km. On trouve une bibliothèque, des commerces, des boulangeries, un supermarché, deux épiceries et un bureau de poste à quelques minutes du logement.
Elle est proposée à l'achat pour 352 000 €.
Prenez contact avec notre constructeur (Pierre Antoine BURILLE : (Numéro supprimé)) pour obtenir de plus amples informations sur la maison, sur les démarches à suivre ou sur les modalités de vente. Maisons de l'Avenir Rezé est là pour vous accompagner dans tous vos projets immobiliers.
Logement susceptibles de vous intéresser
Nous vous proposons de découvrir aussi cette sélection de logements situés à moins de 10km de Rezé et qui seraient susceptibles de vous intéresser.
Pont-Saint-Martin
TERRAIN ET MAISONA PONT-SAINT-MARTIN sur un terrain de 367 m², Alliance Construction vous propose de réaliser votre projet de construction de maison individuelle d'une surface de 106.13 m² habitables avec 4 chambres, à partir de 324300€*Informations du terrain : Venez découvrir ce terrain à bâtir situé à Pont-Saint-Martin, dans un environnement paisible et résidentiel. Hors lotissement, cette parcelle vous offre une grande liberté pour concevoir la maison de vos rêves. Profitez d'un cadre de vie agréable à proximité de toutes les commodités. Contactez-nous au pour une visite.Demandez une étude gratuite et personnalisée de votre projet de construction !* Cette offre comprend :- Garanties constructeurs (dommages ouvrage, garantie de prix ferme et définitif, garantie de livraison, responsabilité civile et décennale).- Branchements aux compteurs et accès empierré sur 5m linéaires.Habitez une maison spécialement pensée et conçue pour vous et votre famille, prête à décorer, adaptée à vos modes de vie, personnalisée selon vos goûts grâce à un large choix d'options, de matériaux et d'innovations !Contactez Thierry MONLEZUN au (Numéro supprimé) (Alliance Construction – Agence de Nantes Aubinière).*Prix indicatif pour un projet de construction d'une maison individuelle. Ne sont pas inclus les frais de branchements, raccordements aux réseaux publics, frais d'adaptations, aménagements intérieurs et extérieurs et options. terrain non viabilisé, frais de notaire non compris, frais divers non compris. Garanties et assurances obligatoires incluses. Terrain sélectionné par ALLIANCE auprès de nos partenaires fonciers, selon disponibilité, pour la construction d'une maison neuve. Non mandaté pour réaliser la vente (loi du 2 janvier 1970 n°70-9). Visuels non contractuels. Voir détails en agence.Cette annonce a été créée et diffusée avec le logiciel VITAHOME.
Nantes
TERRAIN ET MAISONA NANTES sur un terrain de 318 m², Alliance Construction vous propose de réaliser votre projet de construction de maison individuelle d'une surface de 72.29 m² habitables avec 2 chambres, à partir de 304033€*Informations du terrain : Saisissez une opportunité unique d'acquérir un terrain à bâtir privilégié dans le quartier prisé de Gachet à Nantes.Ce terrain d'exception entièrement viabilisé vous offre un cadre de vie idyllique, alliant calme absolu et la proximité immédiate des magnifiques bords de l'Erdre.Ce terrain représente une opportunité rare de construire une résidence d'exception dans un environnement unique à Nantes.Pour plus d'informations et pour organiser une découverte de ce lieu privilégié, veuillez nous contacterDemandez une étude gratuite et personnalisée de votre projet de construction !* Cette offre comprend :- Garanties constructeurs (dommages ouvrage, garantie de prix ferme et définitif, garantie de livraison, responsabilité civile et décennale).- Branchements aux compteurs et accès empierré sur 5m linéaires.Habitez une maison spécialement pensée et conçue pour vous et votre famille, prête à décorer, adaptée à vos modes de vie, personnalisée selon vos goûts grâce à un large choix d'options, de matériaux et d'innovations !Contactez Thierry MONLEZUN au (Numéro supprimé) (Alliance Construction – Agence de Nantes Aubinière).*Prix indicatif pour un projet de construction d'une maison individuelle. Ne sont pas inclus les frais de branchements, raccordements aux réseaux publics, frais d'adaptations, aménagements intérieurs et extérieurs et options. terrain non viabilisé, frais de notaire non compris, frais divers non compris. Garanties et assurances obligatoires incluses. Terrain sélectionné par ALLIANCE auprès de nos partenaires fonciers, selon disponibilité, pour la construction d'une maison neuve. Non mandaté pour réaliser la vente (loi du 2 janvier 1970 n°70-9). Visuels non contractuels. Voir détails en agence.Cette annonce a été créée et diffusée avec le logiciel VITAHOME.
Nantes
TERRAINPRODUIT RARE – EMPLACEMENT PRIVILÉGIÉDécouvrez une opportunité unique d'acquérir un terrain à bâtir d'exception au cœur de Nantes, dans le prestigieux quartier Schuman.Ce terrain exceptionnel offre une superficie généreuse de 435 mètres carrés, vous permettant de concevoir une résidence sur mesure, à l'image de vos ambitions.Bénéficiez de la proximité immédiate de toutes les commodités offertes par le centre-ville de Nantes : commerces, écoles de renom, transports en commun (tramway, bus), services, et lieux culturels.Pour plus d'informations et pour organiser une présentation de ce bien, veuillez nous contacterPrix : 215000 €.Sur ce terrain de 435 m² à NANTES, Alliance Construction vous propose de réaliser votre projet de construction de maison individuelle.Avec Alliance Construction, habitez une maison spécialement pensée et conçue pour vous et votre famille, prête à décorer, adaptée à vos modes de vie, personnalisée selon vos goûts grâce à un large choix d'options, de matériaux et d'innovations ! Demandez une étude gratuite et personnalisée de votre projet de construction sur ce terrain à NANTES !Contactez Thierry MONLEZUN au (Numéro supprimé) (Alliance Construction – Agence de Nantes Aubinière).Prix hors frais de notaire. Terrain sélectionné par ALLIANCE auprès de nos partenaires fonciers, selon disponibilité, pour la construction d'une maison neuve. Non mandaté pour réaliser la vente (loi du 2 janvier 1970 n°70-9). Visuels non contractuels. Voir détails en agence.Cette annonce a été créée et diffusée avec le logiciel VITAHOME.
Nantes
TERRAINSaisissez une opportunité unique d'acquérir un terrain à bâtir privilégié dans le quartier prisé de Gachet à Nantes.Ce terrain d'exception entièrement viabilisé vous offre un cadre de vie idyllique, alliant calme absolu et la proximité immédiate des magnifiques bords de l'Erdre.Ce terrain représente une opportunité rare de construire une résidence d'exception dans un environnement unique à Nantes.Pour plus d'informations et pour organiser une découverte de ce lieu privilégié, veuillez nous contacterPrix : 160000 €.Sur ce terrain de 318 m² à NANTES, Alliance Construction vous propose de réaliser votre projet de construction de maison individuelle.Avec Alliance Construction, habitez une maison spécialement pensée et conçue pour vous et votre famille, prête à décorer, adaptée à vos modes de vie, personnalisée selon vos goûts grâce à un large choix d'options, de matériaux et d'innovations ! Demandez une étude gratuite et personnalisée de votre projet de construction sur ce terrain à NANTES !Contactez Thierry MONLEZUN au (Numéro supprimé) (Alliance Construction – Agence de Nantes Aubinière).Prix hors frais de notaire. Terrain sélectionné par ALLIANCE auprès de nos partenaires fonciers, selon disponibilité, pour la construction d'une maison neuve. Non mandaté pour réaliser la vente (loi du 2 janvier 1970 n°70-9). Visuels non contractuels. Voir détails en agence.Cette annonce a été créée et diffusée avec le logiciel VITAHOME.
Pont-Saint-Martin
TERRAINVenez découvrir ce terrain à bâtir situé à Pont-Saint-Martin, dans un environnement paisible et résidentiel. Hors lotissement, cette parcelle vous offre une grande liberté pour concevoir la maison de vos rêves. Profitez d'un cadre de vie agréable à proximité de toutes les commodités. Contactez-nous au pour une visite.Prix : 93000 €.Sur ce terrain de 367 m² à PONT-SAINT-MARTIN, Alliance Construction vous propose de réaliser votre projet de construction de maison individuelle.Avec Alliance Construction, habitez une maison spécialement pensée et conçue pour vous et votre famille, prête à décorer, adaptée à vos modes de vie, personnalisée selon vos goûts grâce à un large choix d'options, de matériaux et d'innovations ! Demandez une étude gratuite et personnalisée de votre projet de construction sur ce terrain à PONT-SAINT-MARTIN !Contactez Thierry MONLEZUN au (Numéro supprimé) (Alliance Construction – Agence de Nantes Aubinière).Prix hors frais de notaire. Terrain sélectionné par ALLIANCE auprès de nos partenaires fonciers, selon disponibilité, pour la construction d'une maison neuve. Non mandaté pour réaliser la vente (loi du 2 janvier 1970 n°70-9). Visuels non contractuels. Voir détails en agence.Cette annonce a été créée et diffusée avec le logiciel VITAHOME.
Pont-Saint-Martin
TERRAIN ET MAISONA PONT-SAINT-MARTIN sur un terrain de 367 m², Alliance Construction vous propose de réaliser votre projet de construction de maison individuelle d'une surface de 87.91 m² habitables avec 3 chambres, à partir de 251500€*Informations du terrain : Venez découvrir ce terrain à bâtir situé à Pont-Saint-Martin, dans un environnement paisible et résidentiel. Hors lotissement, cette parcelle vous offre une grande liberté pour concevoir la maison de vos rêves. Profitez d'un cadre de vie agréable à proximité de toutes les commodités. Contactez-nous au pour une visite.Demandez une étude gratuite et personnalisée de votre projet de construction !* Cette offre comprend :- Garanties constructeurs (dommages ouvrage, garantie de prix ferme et définitif, garantie de livraison, responsabilité civile et décennale).- Branchements aux compteurs et accès empierré sur 5m linéaires.Habitez une maison spécialement pensée et conçue pour vous et votre famille, prête à décorer, adaptée à vos modes de vie, personnalisée selon vos goûts grâce à un large choix d'options, de matériaux et d'innovations !Contactez Thierry MONLEZUN au (Numéro supprimé) (Alliance Construction – Agence de Nantes Aubinière).*Prix indicatif pour un projet de construction d'une maison individuelle. Ne sont pas inclus les frais de branchements, raccordements aux réseaux publics, frais d'adaptations, aménagements intérieurs et extérieurs et options. terrain non viabilisé, frais de notaire non compris, frais divers non compris. Garanties et assurances obligatoires incluses. Terrain sélectionné par ALLIANCE auprès de nos partenaires fonciers, selon disponibilité, pour la construction d'une maison neuve. Non mandaté pour réaliser la vente (loi du 2 janvier 1970 n°70-9). Visuels non contractuels. Voir détails en agence.Cette annonce a été créée et diffusée avec le logiciel VITAHOME.
Pont-Saint-Martin
TERRAIN ET MAISONA PONT-SAINT-MARTIN sur un terrain de 367 m², Alliance Construction vous propose de réaliser votre projet de construction de maison individuelle d'une surface de 92.96 m² habitables avec 3 chambres, à partir de 273900€*Informations du terrain : Venez découvrir ce terrain à bâtir situé à Pont-Saint-Martin, dans un environnement paisible et résidentiel. Hors lotissement, cette parcelle vous offre une grande liberté pour concevoir la maison de vos rêves. Profitez d'un cadre de vie agréable à proximité de toutes les commodités. Contactez-nous au pour une visite.Demandez une étude gratuite et personnalisée de votre projet de construction !* Cette offre comprend :- Garanties constructeurs (dommages ouvrage, garantie de prix ferme et définitif, garantie de livraison, responsabilité civile et décennale).- Branchements aux compteurs et accès empierré sur 5m linéaires.Habitez une maison spécialement pensée et conçue pour vous et votre famille, prête à décorer, adaptée à vos modes de vie, personnalisée selon vos goûts grâce à un large choix d'options, de matériaux et d'innovations !Contactez Thierry MONLEZUN au (Numéro supprimé) (Alliance Construction – Agence de Nantes Aubinière).*Prix indicatif pour un projet de construction d'une maison individuelle. Ne sont pas inclus les frais de branchements, raccordements aux réseaux publics, frais d'adaptations, aménagements intérieurs et extérieurs et options. terrain non viabilisé, frais de notaire non compris, frais divers non compris. Garanties et assurances obligatoires incluses. Terrain sélectionné par ALLIANCE auprès de nos partenaires fonciers, selon disponibilité, pour la construction d'une maison neuve. Non mandaté pour réaliser la vente (loi du 2 janvier 1970 n°70-9). Visuels non contractuels. Voir détails en agence.Cette annonce a été créée et diffusée avec le logiciel VITAHOME.
Rezé
TERRAIN ET MAISONVENTE : maison F5 (104 m²) à RezéQUARTIER RECHERCHÉ – MAISON 5 PIÈCES NEUVEÀ 21 km de l’océan Atlantique, à vendre située dans un quartier recherché de Rezé (44400), nous vous proposons cette maison de 5 pièces de 104 m² avec vue sur espace vert. Son intérieur se divise en quatre chambres, une cuisine et deux salles de bains.Le terrain du bien s’étend sur 460 m².Cette maison est de plain-pied. Elle est neuve.La maison se situe dans un secteur attractif. On trouve plusieurs écoles (maternelle, élémentaire et collège) à moins de 10 minutes à pied, tout comme trois structures d’accueil pour la petite enfance. Côté transports, il y a neuf gares à moins de 10 minutes en voiture. L’autoroute A83 et les nationales N844, N249 et N444 sont accessibles à moins de 9 km. On trouve une bibliothèque, des commerces, des boulangeries, un supermarché, un bureau de poste et deux épiceries à proximité.Son prix de vente est de 387 000 €.Contactez Pierre Antoine BURILLE (tél : (Numéro supprimé)) pour tout renseignement sur la maison, sur les démarches à suivre ou sur les modalités de vente.
Vertou
TERRAIN ET MAISONVENTE : maison T4 (70 m²) à VertouMAISON 4 PIÈCES NEUVEEn vente : à 31 km de l’océan Atlantique, nous sommes heureux de vous présenter à Vertou (44120), cette maison de 4 pièces de 70 m² et de 350 m² de terrain. Elle offre trois chambres, une cuisine et une salle de bains.Cette maison compte 2 niveaux. Son prix de vente est de 292 000 €.Contactez Thibault DUPONT (tél : (Numéro supprimé)) pour plus d’informations sur cette maison, sur les modalités de vente ou sur les démarches à suivre. Maisons de l’Avenir Rezé vous accompagne à toutes les étapes de votre projet et dans tous vos projets immobiliers.
L’actualité immobilière à Rezé
27/11/2023
02/11/2023
30/10/2023
20/10/2023
16/10/2023
16/10/2023