Maison à construire à Sautron (44880)
Images
Description
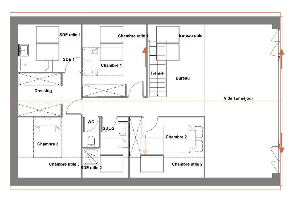
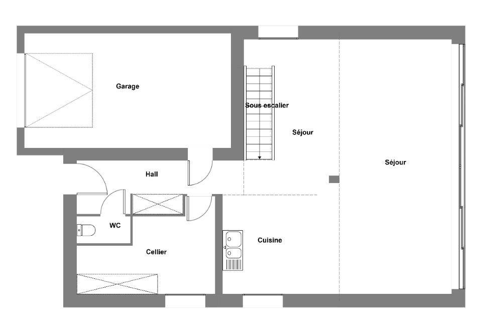
Sautron : maison T4 (120 m²) en vente
QUARTIER RECHERCHÉ - MAISON 4 PIÈCES NEUVE
À vendre : à 9 km de l'océan Atlantique et à deux pas de Nantes, votre agence Maisons de l'Avenir Orvault est ravie de vous proposer cette maison de 4 pièces de 120 m² dans un quartier attractif de Sautron (44880).
Cette maison possède 2 niveaux. Elle compte trois chambres, une cuisine et deux salles de bains. La maison est neuve.
Le terrain du bien est de 1 274 m².
Cette maison se trouve dans un secteur convoité. Il y a l'École Primaire Publique la Forêt, l'École Primaire Privée Saint Jean-Baptiste et l'École Élémentaire Publique la Rivière à moins de 10 minutes à pied et deux crèches. Niveau transports en commun, on trouve les gares Couëron, La Basse Indre-Saint-Herblain et Saint-Étienne-de-Montluc à moins de 10 minutes en voiture. Les autoroutes A82, A11 et A844 et des nationales sont accessibles à moins de 7 km. Il y a une bibliothèque et un tennis à proximité.
Elle est à vendre pour la somme de 674 000 €.
Contactez Jean-Baptiste ((Numéro supprimé)) pour tout renseignement sur le bien ou sur les démarches à suivre. Maisons de l'Avenir Orvault vous accompagne dans tous vos projets immobiliers et dans toutes vos démarches.
Logement susceptibles de vous intéresser
Nous vous proposons de découvrir aussi cette sélection de logements situés à moins de 10km de Sautron et qui seraient susceptibles de vous intéresser.
Treillières
TERRAINNouvelle Exclusivité Noovimo! Votre conseiller en immobilier, Jeremy Lavéant, vous propose: Ce beau terrain de 622m2, libre de constructeur. En premier rideau Coefficient d’emprise au sol de 25% (soit 155m2 au sol) Situé dans le hameau de Muzon (à la sortie de Treillières direction Vigneux de Bretagne) Prévoir un assainissement autonome Venez vite le découvrir!Honoraires : 5.67 % TTC de 120000 EUR ( prix de vente honoraires exclus).Soit 126800 EUR honoraires inclus. Honoraires à la charge de l’acquéreur.Nos honoraires sont consultables sur : (Site supprimé).Votre agent commercial Noovimo inscrit au RSAC de Nantes sous le No 884 014 408.Annonce rédigée et publiée par un Agent Mandataire.Les informations sur les risques auxquels ce bien est exposé sont disponibles sur le site Géorisques : www.georisques.gouv.fr.Cette annonce vous est proposée par LAVEANT JEREMY – – NoRSAC: RSAC, Enregistré à Chambre de commerce et de l’industrie de NANTES – Annonce rédigée et publiée par un Agent Mandataire –
Treillières
TERRAINNouvelle Exclusivité Noovimo! Votre conseiller en immobilier, Jeremy Lavéant, vous propose: Ce beau terrain de 604m2, libre de constructeur. En premier rideau Coefficient d’emprise au sol de 25% (soit 151m2 au sol) Situé dans le hameau de Muzon (à la sortie de Treillières direction Vigneux de Bretagne) Prévoir un assainissement autonome Venez vite le découvrir!Honoraires : 5.67 % TTC de 120000 EUR ( prix de vente honoraires exclus).Soit 126800 EUR honoraires inclus. Honoraires à la charge de l’acquéreur.Nos honoraires sont consultables sur : (Site supprimé).Votre agent commercial Noovimo inscrit au RSAC de Nantes sous le No 884 014 408.Annonce rédigée et publiée par un Agent Mandataire.Les informations sur les risques auxquels ce bien est exposé sont disponibles sur le site Géorisques : www.georisques.gouv.fr.Cette annonce vous est proposée par LAVEANT JEREMY – – NoRSAC: RSAC, Enregistré à Chambre de commerce et de l’industrie de NANTES – Annonce rédigée et publiée par un Agent Mandataire –
Sautron
TERRAINSautron : terrain de 1 274 m² en venteQUARTIER RECHERCHÉ – VUE SANS VIS-À-VISÀ Sautron (44880) en vente à 9 km de l’océan Atlantique et à deux pas de Nantes, donnez vie à votre résidence principale ou secondaire sur ce terrain de 1 274 m². Ce terrain, orienté au sud-ouest, profite d’une vue sans vis-à-vis. Dans un quartier recherché, ce terrain dans un secteur convoité est proche des écoles et des commerces. Il y a l’École Primaire Publique la Forêt, l’École Primaire Privée Saint Jean-Baptiste et l’École Élémentaire Publique la Rivière à moins de 10 minutes à pied et deux structures d’accueil pour les tout-petits. Côté transports, on trouve trois gares (Couëron, La Basse Indre-Saint-Herblain et Saint-Étienne-de-Montluc) à moins de 10 minutes en voiture. Les autoroutes A82, A11 et A844 et des nationales sont accessibles à moins de 7 km. Il y a une bibliothèque et un tennis à proximité de la propriété.Ce terrain est à vendre pour la somme de 368 000 €. Contactez Jean-Baptiste ((Numéro supprimé)) pour plus d’informations sur le terrain ou sur les démarches à suivre. Maisons de l’Avenir Orvault vous accompagne dans tous vos projets immobiliers et à toutes les étapes de votre projet.
Sautron
TERRAIN ET MAISONVENTE : maison T4 (100 m²) à SautronQUARTIER RECHERCHÉ – MAISON 4 PIÈCES NEUVEEn vente : située à 9 km de l’océan Atlantique et à 10 km de Nantes, située dans un quartier attractif de Sautron (44880), nous sommes heureux de vous présenter cette maison de 4 pièces de 100 m².C’est une maison de 2 niveaux. Elle dispose de trois chambres, d’une cuisine et de deux salles de bains. La maison est neuve.Le terrain du bien est de 1 274 m².Cette maison se situe dans un secteur convoité. L’École Primaire Publique la Forêt, l’École Primaire Privée Saint Jean-Baptiste et l’École Élémentaire Publique la Rivière sont implantées à moins de 10 minutes à pied, tout comme deux structures d’accueil pour les enfants en bas âge. Côté transports en commun, il y a trois gares (Couëron, La Basse Indre-Saint-Herblain et Saint-Étienne-de-Montluc) à moins de 10 minutes en voiture. Les autoroutes A82, A11 et A844 et des nationales sont accessibles à moins de 7 km. On trouve une bibliothèque et un tennis à quelques minutes.Son prix de vente est de 608 000 €.Prenez contact avec Jean-Baptiste ((Numéro supprimé)) pour tout renseignement sur la maison, sur les modalités de vente ou sur les démarches à suivre. Maisons de l’Avenir Orvault vous accompagne dans tous vos projets immobiliers et à toutes les étapes de l’achat.
Sautron
TERRAIN ET MAISONSautron : maison T4 (120 m²) en venteQUARTIER RECHERCHÉ – MAISON 4 PIÈCES NEUVEÀ vendre : à 9 km de l’océan Atlantique et à deux pas de Nantes, votre agence Maisons de l’Avenir Orvault est ravie de vous proposer cette maison de 4 pièces de 120 m² dans un quartier attractif de Sautron (44880).Cette maison possède 2 niveaux. Elle compte trois chambres, une cuisine et deux salles de bains. La maison est neuve.Le terrain du bien est de 1 274 m².Cette maison se trouve dans un secteur convoité. Il y a l’École Primaire Publique la Forêt, l’École Primaire Privée Saint Jean-Baptiste et l’École Élémentaire Publique la Rivière à moins de 10 minutes à pied et deux crèches. Niveau transports en commun, on trouve les gares Couëron, La Basse Indre-Saint-Herblain et Saint-Étienne-de-Montluc à moins de 10 minutes en voiture. Les autoroutes A82, A11 et A844 et des nationales sont accessibles à moins de 7 km. Il y a une bibliothèque et un tennis à proximité.Elle est à vendre pour la somme de 674 000 €.Contactez Jean-Baptiste ((Numéro supprimé)) pour tout renseignement sur le bien ou sur les démarches à suivre. Maisons de l’Avenir Orvault vous accompagne dans tous vos projets immobiliers et dans toutes vos démarches.
Sautron
TERRAIN ET MAISONMaison de 5 pièces (150 m²) à vendre à SautronQUARTIER RECHERCHÉ – MAISON 5 PIÈCES NEUVEÀ vendre à 9 km de la côte atlantique et à 10 km de Nantes, située dans un secteur attractif de Sautron (44880), votre agence Maisons de l’Avenir Orvault est heureuse de vous présenter cette maison de 5 pièces de 150 m² et de 1 274 m² de terrain. Son intérieur se divise en quatre chambres, une cuisine et deux salles de bains.Il s’agit d’une maison de 2 niveaux. Elle est neuve.Cette maison se trouve dans un quartier recherché. L’École Primaire Publique la Forêt, l’École Primaire Privée Saint Jean-Baptiste et l’École Élémentaire Publique la Rivière sont implantées à moins de 10 minutes à pied, tout comme deux crèches. Niveau transports, on trouve trois gares (Couëron, La Basse Indre-Saint-Herblain et Saint-Étienne-de-Montluc) à moins de 10 minutes en voiture. Les autoroutes A82, A11 et A844 et des nationales sont accessibles à moins de 7 km. Il y a une bibliothèque et un tennis à proximité.Elle est proposée à l’achat pour 722 000 €.N’hésitez pas à prendre contact avec Jean-Baptiste ((Numéro supprimé)) pour plus d’informations sur la maison, sur les modalités de vente ou sur les démarches à suivre. Maisons de l’Avenir Orvault est là pour vous accompagner dans tous vos projets immobiliers.
Sautron
TERRAIN ET MAISONMaison T5 (170 m²) en vente à SautronQUARTIER RECHERCHÉ – MAISON 5 PIÈCES NEUVESur le littoral atlantique et à 10 km de Nantes, nous sommes ravis de vous proposer cette maison de 5 pièces de 170 m² dans un secteur convoité de Sautron (44880).C’est une maison de 2 niveaux. Son intérieur offre quatre chambres, une cuisine et deux salles de bains. Cette maison est neuve.Le terrain du bien est de 1 274 m².La maison se situe dans un quartier attractif. L’École Primaire Publique la Forêt, l’École Primaire Privée Saint Jean-Baptiste et l’École Élémentaire Publique la Rivière se trouvent à moins de 10 minutes à pied, tout comme deux crèches. Niveau transports en commun, il y a trois gares (Couëron, La Basse Indre-Saint-Herblain et Saint-Étienne-de-Montluc) à moins de 10 minutes en voiture. Les autoroutes A82, A11 et A844 et des nationales sont accessibles à moins de 7 km. On trouve une bibliothèque et un tennis dans les environs.Son prix de vente est de 797 000 €.Contactez Jean-Baptiste ((Numéro supprimé)) pour tout renseignement sur le bien, sur les démarches à suivre ou sur les modalités de vente.
Saint-Étienne-de-Montluc
TERRAIN ET MAISONTerrain de 372m² à Saint Etienne de Montluc, proche du centre, les commerces sont accessibles à pieds. Plat et viabilisé, belle opportunité. . Bien pensée et fonctionnelle. Avec son architecture en L et de plain-pied, la maison CARNEY vous séduira par sa cuisine ouverte sur un bel espace de vie lumineux et ses trois chambresPour vous assurer un confort de vie et conformément à la RE2025, nous avons choisi un mode de chauffage par PAC + plancher chauffant, volets roulants électriques. Prix hors fourniture et pose : des appareils sanitaires (sauf système de chauffage et d'eau chaude sanitaire), du carrelage et de la faïence, des revêtements de sol dans les chambres. Hors décoration et aménagement intérieur et peinture. Hors raccordements, frais de notaire et dommage ouvrage. // Réf. : 716-210907-PAL. Prix terrain : 133 000 €, hors frais d'agence à la charge de l'acquéreur. Ce terrain vous est proposé, par nos partenaires fonciers, dans le cadre d'un projet de construction avec nous. Les informations sur les risques auxquels ce bien est exposé sont disponibles sur le site Géorisques (www.georisques.gouv.fr). Prix maison : 118 845 €.
Saint-Étienne-de-Montluc
TERRAIN ET MAISONTerrain de 372m² à Saint Etienne de Montluc, proche du centre, les commerces sont accessibles à pieds. Plat et viabilisé, belle opportunité. . Fonctionnelle et lumineuse, cette maison de plain-pied vous propose un espace de vie de plus de 42 m²ouvert sur le jardin et sa cuisine ouverte aménagée avec un accès direct au cellier et à son garage intégré. La partie nuit est composée de trois chambres avec rangement, une salle de bain et wc indépendantPour vous assurer un confort de vie et conformément à la RE2025, nous avons choisi un mode de chauffage par PAC + plancher chauffant, volets roulants électriques. Prix hors fourniture et pose : des appareils sanitaires (sauf système de chauffage et d'eau chaude sanitaire), du carrelage et de la faïence, des revêtements de sol dans les chambres. Hors décoration et aménagement intérieur et peinture. Hors raccordements, frais de notaire et dommage ouvrage. // Réf. : 1213-210907-PAL. Prix terrain : 133 000 €, hors frais d'agence à la charge de l'acquéreur. Ce terrain vous est proposé, par nos partenaires fonciers, dans le cadre d'un projet de construction avec nous. Les informations sur les risques auxquels ce bien est exposé sont disponibles sur le site Géorisques (www.georisques.gouv.fr). Prix maison : 138 955 €.
L’actualité immobilière à Sautron
27/11/2023
02/11/2023
30/10/2023
20/10/2023
16/10/2023
16/10/2023