Maison à construire à Savenay (44260)
Images
Description
VENTE : maison F3 (86 m²) à Savenay
EMPLACEMENT PRIVILÉGIÉ - MAISON 3 PIÈCES NEUVE
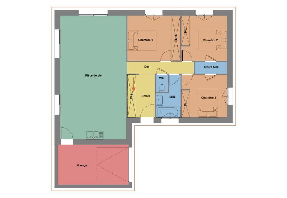
À vendre : localisée sur le littoral atlantique et à deux pas de Nantes, bénéficiant d'un emplacement privilégié dans Savenay (44260), Maisons de l'Avenir Orvault vous présente cette maison de 3 pièces de plain-pied de 86 m² et de 578 m² de terrain. Son intérieur inclut trois chambres, une cuisine et une salle de bains.
Cette maison est neuve.
La maison se trouve dans un quartier attractif. Des établissements scolaires de tous niveaux (de la maternelle au lycée) sont implantés à moins de 10 minutes à pied. Niveau transports en commun, on trouve la gare Savenay à quelques pas de la maison. Les nationales N165 et N171 sont accessibles à moins de 2 km. Il y a des boulangeries, des commerces, une épicerie, deux boucheries-charcuteries et un bureau de poste à quelques minutes. Ne manquez pas le marché Place de la Mairie tous les mercredis matin.
Son prix de vente est de 329 000 €.
N'hésitez pas à prendre contact avec Jean-Baptiste ((Numéro supprimé)) pour tout renseignement sur la maison ou sur les modalités de vente. Maisons de l'Avenir Orvault vous accompagne dans tous vos projets immobiliers et dans toutes vos démarches.
Logement susceptibles de vous intéresser
Nous vous proposons de découvrir aussi cette sélection de logements situés à moins de 10km de Savenay et qui seraient susceptibles de vous intéresser.
Savenay
TERRAIN ET MAISONA SAVENAY sur un terrain de 655 m², Alliance Construction vous propose de réaliser votre projet de construction de maison individuelle d'une surface de 93 m² habitables avec 3 chambres, à partir de 294300€*Informations du terrain : Beau terrain à bâtir de 655 m² situé à seulement 4 minutes du centre ville et de la zone commerciale, à 5 minutes de la gare, situé dans un quartier résidentiel agréable, à saisir rapidement !Demandez une étude gratuite et personnalisée de votre projet de construction !* Cette offre comprend :- Garanties constructeurs (dommages ouvrage, garantie de prix ferme et définitif, garantie de livraison, responsabilité civile et décennale).- Branchements aux compteurs et accès empierré sur 5m linéaires.Habitez une maison spécialement pensée et conçue pour vous et votre famille, prête à décorer, adaptée à vos modes de vie, personnalisée selon vos goûts grâce à un large choix d'options, de matériaux et d'innovations !Contactez Benoit COCHIN au (Numéro supprimé) (Alliance Construction – Agence de Pontchâteau).*Prix indicatif pour un projet de construction d'une maison individuelle. Ne sont pas inclus les frais de branchements, raccordements aux réseaux publics, frais d'adaptations, aménagements intérieurs et extérieurs et options. viabilisation comprise, frais de notaire non compris, frais divers non compris. Garanties et assurances obligatoires incluses. Terrain sélectionné par ALLIANCE auprès de nos partenaires fonciers, selon disponibilité, pour la construction d'une maison neuve. Non mandaté pour réaliser la vente (loi du 2 janvier 1970 n°70-9). Visuels non contractuels. Voir détails en agence.Cette annonce a été créée et diffusée avec le logiciel VITAHOME.
Malville
TERRAIN ET MAISONA MALVILLE sur un terrain de 400 m², Alliance Construction vous propose de réaliser votre projet de construction de maison individuelle d'une surface de 72.93 m² habitables avec 3 chambres, à partir de 229000€*Informations du terrain : Situé dans un cadre environnemental très agréable, ce terrain vous permettra de construire votre future maison au calme de la campagne tout en restant à proximité du bourg de Malville et de l'axe ralliant Nantes – Saint-Nazaire – Vannes. Zone de la Colleraye de Savenay à seulement 10 minutes.Demandez une étude gratuite et personnalisée de votre projet de construction !* Cette offre comprend :- Garanties constructeurs (dommages ouvrage, garantie de prix ferme et définitif, garantie de livraison, responsabilité civile et décennale).- Branchements aux compteurs et accès empierré sur 5m linéaires.Habitez une maison spécialement pensée et conçue pour vous et votre famille, prête à décorer, adaptée à vos modes de vie, personnalisée selon vos goûts grâce à un large choix d'options, de matériaux et d'innovations !Contactez Benoit COCHIN au (Numéro supprimé) (Alliance Construction – Agence de Pontchâteau).*Prix indicatif pour un projet de construction d'une maison individuelle. Ne sont pas inclus les frais de branchements, raccordements aux réseaux publics, frais d'adaptations, aménagements intérieurs et extérieurs et options. viabilisation comprise, frais de notaire non compris, frais divers non compris. Garanties et assurances obligatoires incluses. Terrain sélectionné par ALLIANCE auprès de nos partenaires fonciers, selon disponibilité, pour la construction d'une maison neuve. Non mandaté pour réaliser la vente (loi du 2 janvier 1970 n°70-9). Visuels non contractuels. Voir détails en agence.Cette annonce a été créée et diffusée avec le logiciel VITAHOME.
Prinquiau
TERRAIN ET MAISONConçue pour s'implanter sur un terrain à façade étroite, cette maison de plain-pied de 93 m² comprend :- Un espace cuisine / salon / salle à manger de 37m² dessiné en "L" afin de donner une véritable identité à chaque pièce.- Une suite parentale avec dressing et SDE (douche à l'italienne).- Deux chambres de 10 m² avec espace placard.- Une SDE (douche à l'italienne ou baignoire).- Un WC séparé.- Un cellier.- Un garage.Maison adaptable selon vos besoins.Contactez Benoit COCHIN au (Numéro supprimé) (Alliance Construction – Agence de Pontchâteau).*Prix indicatif pour un projet de construction d'une maison individuelle. Ne sont pas inclus les frais de branchements, raccordements aux réseaux publics, frais d'adaptations, aménagements intérieurs et extérieurs et options. viabilisation comprise, frais de notaire non compris, frais divers non compris. Garanties et assurances obligatoires incluses. Terrain sélectionné par ALLIANCE auprès de nos partenaires fonciers, selon disponibilité, pour la construction d'une maison neuve. Non mandaté pour réaliser la vente (loi du 2 janvier 1970 n°70-9). Visuels non contractuels. Voir détails en agence.Cette annonce a été créée et diffusée avec le logiciel VITAHOME.
Campbon
TERRAIN ET MAISONA CAMPBON sur un terrain de 404 m², Alliance Construction vous propose de réaliser votre projet de construction de maison individuelle d'une surface de 77.93 m² habitables avec 3 chambres, à partir de 237462€*Informations du terrain : Situé dans le centre bourg, construisez votre future maison sur cette belle parcelle de terrain à bâtir d'une surface de 404 m² avec une façade de 14,90 mètres. Exposition OUEST/EST.Surface de plancher disponible environ 200 m².Tous les réseaux à proximité: eau, électricité, tout à l'égout télécom.Demandez une étude gratuite et personnalisée de votre projet de construction !* Cette offre comprend :- Garanties constructeurs (dommages ouvrage, garantie de prix ferme et définitif, garantie de livraison, responsabilité civile et décennale).- Branchements aux compteurs et accès empierré sur 5m linéaires.Habitez une maison spécialement pensée et conçue pour vous et votre famille, prête à décorer, adaptée à vos modes de vie, personnalisée selon vos goûts grâce à un large choix d'options, de matériaux et d'innovations !Contactez Benoit COCHIN au (Numéro supprimé) (Alliance Construction – Agence de Pontchâteau).*Prix indicatif pour un projet de construction d'une maison individuelle. Ne sont pas inclus les frais de branchements, raccordements aux réseaux publics, frais d'adaptations, aménagements intérieurs et extérieurs et options. viabilisation comprise, frais de notaire non compris, frais divers non compris. Garanties et assurances obligatoires incluses. Terrain sélectionné par ALLIANCE auprès de nos partenaires fonciers, selon disponibilité, pour la construction d'une maison neuve. Non mandaté pour réaliser la vente (loi du 2 janvier 1970 n°70-9). Visuels non contractuels. Voir détails en agence.Cette annonce a été créée et diffusée avec le logiciel VITAHOME.
Malville
TERRAINSitué dans un cadre environnemental très agréable, ce terrain vous permettra de construire votre future maison au calme de la campagne tout en restant à proximité du bourg de Malville et de l'axe ralliant Nantes – Saint-Nazaire – Vannes. Zone de la Colleraye de Savenay à seulement 10 minutes.Prix : 66000 €.Sur ce terrain de 677 m² à MALVILLE, Alliance Construction vous propose de réaliser votre projet de construction de maison individuelle.Avec Alliance Construction, habitez une maison spécialement pensée et conçue pour vous et votre famille, prête à décorer, adaptée à vos modes de vie, personnalisée selon vos goûts grâce à un large choix d'options, de matériaux et d'innovations ! Demandez une étude gratuite et personnalisée de votre projet de construction sur ce terrain à MALVILLE !Contactez Benoit COCHIN au (Numéro supprimé) (Alliance Construction – Agence de Pontchâteau).Prix hors frais de notaire. Terrain sélectionné par ALLIANCE auprès de nos partenaires fonciers, selon disponibilité, pour la construction d'une maison neuve. Non mandaté pour réaliser la vente (loi du 2 janvier 1970 n°70-9). Visuels non contractuels. Voir détails en agence.Cette annonce a été créée et diffusée avec le logiciel VITAHOME.
Prinquiau
TERRAINIdéalement situé en plein cœur de la charmante commune de Prinquiau, ce terrain vous permettra de vivre à proximité de toutes les commodités nécessaires du quotidien.Prix : 77500 €.Sur ce terrain de 480 m² à PRINQUIAU, Alliance Construction vous propose de réaliser votre projet de construction de maison individuelle.Avec Alliance Construction, habitez une maison spécialement pensée et conçue pour vous et votre famille, prête à décorer, adaptée à vos modes de vie, personnalisée selon vos goûts grâce à un large choix d'options, de matériaux et d'innovations ! Demandez une étude gratuite et personnalisée de votre projet de construction sur ce terrain à PRINQUIAU !Contactez Benoit COCHIN au (Numéro supprimé) (Alliance Construction – Agence de Pontchâteau).Prix hors frais de notaire. Terrain sélectionné par ALLIANCE auprès de nos partenaires fonciers, selon disponibilité, pour la construction d'une maison neuve. Non mandaté pour réaliser la vente (loi du 2 janvier 1970 n°70-9). Visuels non contractuels. Voir détails en agence.Cette annonce a été créée et diffusée avec le logiciel VITAHOME.
Savenay
TERRAINBeau terrain à bâtir de 655 m² situé à seulement 4 minutes du centre ville et de la zone commerciale, à 5 minute de la gare, situé dans un quartier résidentiel agréable, à saisir rapidement !Prix : 84300 €.Sur ce terrain de 655 m² à SAVENAY, Alliance Construction vous propose de réaliser votre projet de construction de maison individuelle.Avec Alliance Construction, habitez une maison spécialement pensée et conçue pour vous et votre famille, prête à décorer, adaptée à vos modes de vie, personnalisée selon vos goûts grâce à un large choix d'options, de matériaux et d'innovations ! Demandez une étude gratuite et personnalisée de votre projet de construction sur ce terrain à SAVENAY !Contactez Benoit COCHIN au (Numéro supprimé) (Alliance Construction – Agence de Pontchâteau).Prix hors frais de notaire. Terrain sélectionné par ALLIANCE auprès de nos partenaires fonciers, selon disponibilité, pour la construction d'une maison neuve. Non mandaté pour réaliser la vente (loi du 2 janvier 1970 n°70-9). Visuels non contractuels. Voir détails en agence.Cette annonce a été créée et diffusée avec le logiciel VITAHOME.
La Chapelle-Launay
TERRAINBIEN RAREIdéalement située au niveau du Champ de Foire, juste à côté du centre bourg de la Chapelle-Launay, cette parcelle arborée de près de 1000 m² vous offrira une très belle vue sur la campagne environnante.Prix : 104300 €.Sur ce terrain de 955 m² à LA CHAPELLE-LAUNAY, Alliance Construction vous propose de réaliser votre projet de construction de maison individuelle.Avec Alliance Construction, habitez une maison spécialement pensée et conçue pour vous et votre famille, prête à décorer, adaptée à vos modes de vie, personnalisée selon vos goûts grâce à un large choix d'options, de matériaux et d'innovations ! Demandez une étude gratuite et personnalisée de votre projet de construction sur ce terrain à LA CHAPELLE-LAUNAY !Contactez Benoit COCHIN au (Numéro supprimé) (Alliance Construction – Agence de Pontchâteau).Prix hors frais de notaire. Terrain sélectionné par ALLIANCE auprès de nos partenaires fonciers, selon disponibilité, pour la construction d'une maison neuve. Non mandaté pour réaliser la vente (loi du 2 janvier 1970 n°70-9). Visuels non contractuels. Voir détails en agence.Cette annonce a été créée et diffusée avec le logiciel VITAHOME.
Lavau-sur-Loire
TERRAINPetit lotissement situé à seulement 10 minutes de Savenay et de toutes ses commodités : écoles, gare, commerces…Terrain vendu entièrement viabilisé.Prix : 69000 €.Sur ce terrain de 566 m² à LAVAU-SUR-LOIRE, Alliance Construction vous propose de réaliser votre projet de construction de maison individuelle.Avec Alliance Construction, habitez une maison spécialement pensée et conçue pour vous et votre famille, prête à décorer, adaptée à vos modes de vie, personnalisée selon vos goûts grâce à un large choix d'options, de matériaux et d'innovations ! Demandez une étude gratuite et personnalisée de votre projet de construction sur ce terrain à LAVAU-SUR-LOIRE !Contactez Benoit COCHIN au (Numéro supprimé) (Alliance Construction – Agence de Pontchâteau).Prix hors frais de notaire. Terrain sélectionné par ALLIANCE auprès de nos partenaires fonciers, selon disponibilité, pour la construction d'une maison neuve. Non mandaté pour réaliser la vente (loi du 2 janvier 1970 n°70-9). Visuels non contractuels. Voir détails en agence.Cette annonce a été créée et diffusée avec le logiciel VITAHOME.
L’actualité immobilière à Savenay
27/11/2023
02/11/2023
30/10/2023
20/10/2023
16/10/2023
16/10/2023