Maison à construire à Saint-Aignan-Grandlieu (44860)
Images
Description
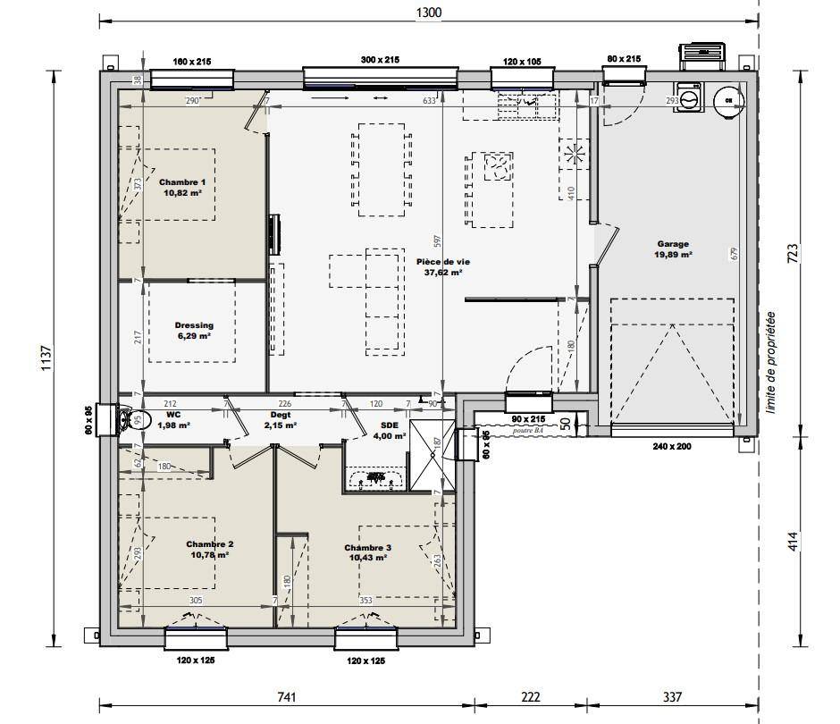
VENTE : maison de 4 pièces (84 m²) à Saint-Aignan-Grandlieu
MAISON 4 PIÈCES NEUVE - PROCHE DE NANTES
À vendre : localisée à 20 km de la côte atlantique et à deux pas de Nantes, découvrez cette maison de 4 pièces de plain-pied de 84 m² à Saint-Aignan-Grandlieu (44860). Elle se divise en trois chambres, une cuisine et une salle de bains.
Le terrain du bien est de 445 m².
La maison est neuve.
Il y a l'École Primaire Privée Saint Pierre à moins de 10 minutes et une structure d'accueil pour les tout-petits. Côté transports en commun, on trouve cinq gares à moins de 10 minutes en voiture. L'autoroute A83 et la nationale N844 sont accessibles à moins de 9 km. Il y a une boulangerie, un commerce, une poissonnerie, une épicerie et un bureau de poste à proximité de la maison.
Elle est proposée à l'achat pour 307 000 €.
Prenez contact avec notre agence (Vincent COUCHAUX : (Numéro supprimé)) pour obtenir de plus amples renseignements sur cette maison, sur les modalités de vente ou sur les démarches à suivre. Concrétisez vos projets immobiliers avec Maisons Tradilignes Pornic.
Logement susceptibles de vous intéresser
Nous vous proposons de découvrir aussi cette sélection de logements situés à moins de 10km de Saint-Aignan-Grandlieu et qui seraient susceptibles de vous intéresser.
Rezé
TERRAINRezé : terrain de 470 m² à vendreEMPLACEMENT PRIVILÉGIÉ – VUE SANS VIS-À-VISÀ 21 km de l’océan Atlantique à Rezé (44400), terrain de 470 m². Réalisez-y votre résidence principale ou secondaire. Il profite d’une vue sans vis-à-vis en bord de sevre et est orienté au sud-est. Dans un secteur recherché, ce terrain bénéficiant d’un emplacement d’exception est proche des écoles et des commerces. Il y a plusieurs écoles (maternelle, élémentaire et collège) à moins de 10 minutes à pied, tout comme trois crèches. Niveau transports en commun, on trouve neuf gares à moins de 10 minutes en voiture. L’autoroute A83 et les nationales N844, N249 et N444 sont accessibles à moins de 9 km. Il y a une bibliothèque, des commerces, des boulangeries, un supermarché, un bureau de poste et deux épiceries à quelques minutes de la propriété.Il est proposé à l’achat pour 150 000 €. N’hésitez pas à prendre contact avec Franck DUJARDIN ((Numéro supprimé)) pour toute question sur ce terrain.
Bouguenais
TERRAINVENTE d’un terrain de 470 m² à BouguenaisQUARTIER RECHERCHÉEn vente à 14 km de l’océan Atlantique à Bouguenais (44340), terrain de 470 m². Il est exposé au sud-ouest. Dans un quartier attractif, ce terrain construit dans un quartier recherché est proche des commerces et des écoles. On trouve des écoles maternelles et élémentaires à moins de 10 minutes à pied. Niveau transports, il y a sept gares à moins de 10 minutes en voiture. La nationale N844 est accessible à 1 km. On trouve une bibliothèque, un tennis, un bassin de natation et sept commerces dans les environs.Ce terrain est à vendre pour la somme de 135 000 €. Contactez Franck DUJARDIN (tél : (Numéro supprimé)) pour obtenir de plus amples renseignements sur le terrain ou sur les démarches à suivre. Faites de vos projets immobiliers une réalité avec Maisons Tradilignes Saint-Sébastien-sur-Loire.
Bouguenais
TERRAINVENTE : terrain de 330 m² à BouguenaisQUARTIER RECHERCHÉÀ 14 km de la côte atlantique à Bouguenais (44340), terrain de 330 m². Réalisez-y la maison de vos rêves. Il bénéficie d’une exposition sud-ouest. Dans un quartier attractif, le terrain situé dans un secteur prisé est proche des commerces et des écoles. Il y a des établissements scolaires primaires à moins de 10 minutes à pied. Niveau transports en commun, on trouve sept gares à moins de 10 minutes en voiture. On trouve un accès à la nationale N844 à 1 km. Il y a une bibliothèque, un tennis, un bassin de natation et plusieurs commerces à quelques minutes du bien.Son prix de vente est de 110 000 €. N’hésitez pas à prendre contact avec Franck DUJARDIN (tél : (Numéro supprimé)) pour tout renseignement sur le terrain ou sur les démarches à suivre. Maisons Tradilignes Saint-Sébastien-sur-Loire vous accompagne à toutes les étapes de l’achat et dans tous vos projets immobiliers.
Rezé
TERRAIN ET MAISONRezé : maison de 6 pièces (187 m²) en venteEMPLACEMENT PRIVILÉGIÉ – MAISON 6 PIÈCES NEUVEÀ 21 km de l’océan Atlantique, notre agence Maisons Tradilignes Saint-Sébastien-sur-Loire est ravie de vous présenter cette maison de 6 pièces de plain-pied de 187 m² et de 470 m² de terrain bénéficiant d’un emplacement privilégié dans Rezé (44400).Elle est composée de cinq chambres, d’une cuisine et de deux salles de bains. Cette maison est neuve.La maison se trouve dans un secteur recherché. Plusieurs établissements scolaires (maternelle, élémentaire et collège) sont implantés à moins de 10 minutes à pied, tout comme trois crèches. Niveau transports en commun, on trouve neuf gares à moins de 10 minutes en voiture. L’autoroute A83 et les nationales N844, N249 et N444 sont accessibles à moins de 9 km. Il y a une bibliothèque, des commerces, des boulangeries, un supermarché, deux épiceries et un bureau de poste à quelques minutes.Son prix de vente est de 685 000 €.Contactez Franck DUJARDIN ((Numéro supprimé)) pour toute question sur la maison, sur les modalités de vente ou sur les démarches à suivre. Faites de vos projets immobiliers une réalité avec Maisons Tradilignes Saint-Sébastien-sur-Loire.
Rezé
TERRAIN ET MAISONMaison T5 (144 m²) à vendre à RezéEMPLACEMENT PRIVILÉGIÉ – MAISON 5 PIÈCES NEUVEÀ 21 km de l’océan Atlantique, nous vous présentons cette maison de 5 pièces de 144 m² et de 470 m² de terrain bénéficiant d’un emplacement d’exception dans Rezé (44400). Elle comporte quatre chambres, une cuisine et deux salles de bains.Cette maison possède 2 niveaux. Elle est neuve.Le bien se trouve dans un secteur convoité. Plusieurs établissements scolaires (maternelle, élémentaire et collège) sont implantés à moins de 10 minutes à pied, tout comme trois structures d’accueil pour la petite enfance. Niveau transports en commun, on trouve neuf gares à moins de 10 minutes en voiture. L’autoroute A83 et les nationales N844, N249 et N444 sont accessibles à moins de 9 km. Il y a une bibliothèque, des commerces, des boulangeries, un supermarché, un bureau de poste et deux épiceries dans les environs.Il est à vendre pour la somme de 507 000 €.Contactez Franck DUJARDIN (tél : (Numéro supprimé)) pour plus de renseignements sur la maison. Donnez vie à vos projets immobiliers avec Maisons Tradilignes Saint-Sébastien-sur-Loire.
Rezé
TERRAIN ET MAISONRezé : maison de 4 pièces (139 m²) à vendreEMPLACEMENT PRIVILÉGIÉ – MAISON 4 PIÈCES NEUVEÀ vendre : à 21 km de l’océan Atlantique, bénéficiant d’un emplacement d’exception dans Rezé (44400), Maisons Tradilignes Saint-Sébastien-sur-Loire vous propose cette maison de 4 pièces de 139 m².Cette maison compte 2 niveaux. Elle compte trois chambres, une cuisine et deux salles de bains. La maison est neuve.Le terrain du bien est de 470 m².Cette maison se situe dans un secteur prisé. Plusieurs établissements scolaires (maternelle, élémentaire et collège) sont implantés à moins de 10 minutes à pied, tout comme trois crèches. Niveau transports, il y a neuf gares à moins de 10 minutes en voiture. L’autoroute A83 et les nationales N844, N249 et N444 sont accessibles à moins de 9 km. On trouve une bibliothèque, des commerces, des boulangeries, un supermarché, un bureau de poste et deux épiceries à quelques minutes de la maison.Elle est proposée à l’achat pour 485 000 €.Prenez contact avec notre agence (Franck DUJARDIN : (Numéro supprimé)) pour toute question sur la maison, sur les démarches à suivre et sur les modalités de vente. Maisons Tradilignes Saint-Sébastien-sur-Loire est là pour vous accompagner dans tous vos projets immobiliers.
Rezé
TERRAIN ET MAISONRezé : maison de 4 pièces (95 m²) en venteEMPLACEMENT PRIVILÉGIÉ – MAISON 4 PIÈCES NEUVEÀ 21 km de l’océan Atlantique, à vendre bénéficiant d’un emplacement d’exception dans Rezé (44400), nous sommes heureux de vous proposer cette maison de 4 pièces de plain-pied de 95 m². Conçue de plain-pied, elle propose deux chambres, une cuisine et une salle de bains.Le terrain de la propriété s’étend sur 470 m².Cette maison est neuve.La maison est située dans un quartier recherché. On trouve plusieurs écoles (maternelle, élémentaire et collège) à moins de 10 minutes à pied, tout comme trois crèches. Côté transports en commun, il y a neuf gares à moins de 10 minutes en voiture. L’autoroute A83 et les nationales N844, N249 et N444 sont accessibles à moins de 9 km. On trouve une bibliothèque, des commerces, des boulangeries, un supermarché, deux épiceries et un bureau de poste dans les environs.Elle est proposée à l’achat pour 395 000 €.Prenez contact avec Franck DUJARDIN ((Numéro supprimé)) pour obtenir de plus amples informations sur le bien ou sur les démarches à suivre. Maisons Tradilignes Saint-Sébastien-sur-Loire vous accompagne à toutes les étapes de votre projet et dans tous vos projets immobiliers.
Rezé
TERRAIN ET MAISONVENTE : maison T3 (113 m²) à RezéEMPLACEMENT PRIVILÉGIÉ – MAISON 3 PIÈCES NEUVEEn vente à 21 km de la côte atlantique, notre agence Maisons Tradilignes Saint-Sébastien-sur-Loire est ravie de vous présenter cette maison de 3 pièces de plain-pied de 113 m² et de 470 m² de terrain, bénéficiant d’un emplacement d’exception dans Rezé (44400).Elle offre trois chambres, une cuisine et une salle de bains. La maison est neuve.Cette maison se situe dans un quartier convoité. Plusieurs écoles (maternelle, élémentaire et collège) sont implantées à moins de 10 minutes à pied, tout comme trois structures d’accueil pour les tout-petits. Niveau transports en commun, on trouve neuf gares à moins de 10 minutes en voiture. L’autoroute A83 et les nationales N844, N249 et N444 sont accessibles à moins de 9 km. Il y a une bibliothèque, des commerces, des boulangeries, un supermarché, un bureau de poste et deux épiceries à proximité.Son prix de vente est de 354 000 €.Contactez notre agence (DUJARDIN Franck : (Numéro supprimé)) pour toute question sur la maison ou sur les modalités de vente. Maisons Tradilignes Saint-Sébastien-sur-Loire vous accompagne dans tous vos projets immobiliers et à toutes les étapes de l’achat.
Bouguenais
TERRAIN ET MAISONVENTE d’une maison de 5 pièces (96 m²) à BouguenaisQUARTIER RECHERCHÉ – MAISON 5 PIÈCES NEUVEEn vente : à 14 km de l’océan Atlantique, dans un secteur prisé de Bouguenais (44340), votre agence Maisons Tradilignes Saint-Sébastien-sur-Loire est ravie de vous proposer cette maison de 5 pièces de 96 m² et de 470 m² de terrain.Cette maison comporte 2 niveaux. Son intérieur offre quatre chambres, une cuisine et une salle de bains. Cette maison est neuve.La maison est située dans un quartier convoité. On trouve des écoles maternelles et élémentaires à moins de 10 minutes à pied. Côté transports en commun, il y a sept gares à moins de 10 minutes en voiture. On trouve un accès à la nationale N844 à 1 km. On trouve une bibliothèque, un tennis, un bassin de natation et sept commerces dans les environs.Son prix de vente est de 350 000 €.Prenez contact avec Franck DUJARDIN (tél : (Numéro supprimé)) pour tout renseignement sur le bien, sur les démarches à suivre ou sur les modalités de vente. Maisons Tradilignes Saint-Sébastien-sur-Loire vous accompagne dans tous vos projets immobiliers et à toutes les étapes de votre projet.
L’actualité immobilière à Saint-Aignan-Grandlieu
27/11/2023
02/11/2023
30/10/2023
20/10/2023
16/10/2023
16/10/2023