Maison à construire à Saint-Colomban (44310)
Images
Description
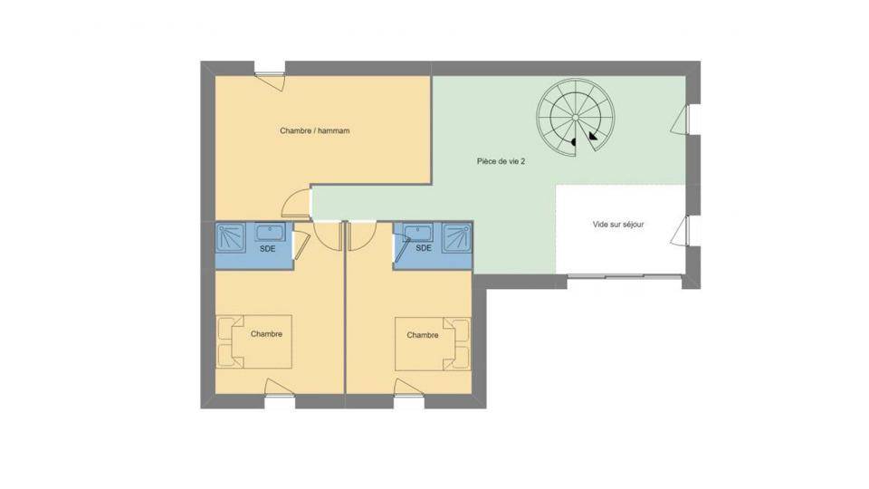
VENTE : maison T6 (163 m²) à Saint-Colomban
IDÉALEMENT SITUÉE - MAISON 6 PIÈCES NEUVE
À vendre : à 28 km de la côte atlantique et à 24 km de Nantes, notre agence Maisons de l'Avenir Rezé est ravie de vous proposer, idéalement située dans Saint-Colomban (44310), cette maison de 6 pièces de 163 m². Elle inclut cinq chambres, une cuisine et deux salles de bains.
Le terrain de la maison est de 611 m².
C'est une maison de 2 niveaux. Elle est neuve.
Cette maison se situe dans un secteur prisé. L'École Primaire Privée Saint Louis et l'École Primaire Publique Jacques Prévert sont implantées à moins de 10 minutes à pied. L'autoroute A83 et la nationale N844 sont accessibles à moins de 17 km. Il y a un tennis, deux commerces, une boulangerie et une supérette à proximité.
Son prix de vente est de 476 100 €.
N'hésitez pas à prendre contact avec Pierre Antoine BURILLE ((Numéro supprimé)) pour tout renseignement sur la maison, sur les démarches à suivre et sur les modalités de vente. Faites de vos projets immobiliers une réalité avec Maisons de l'Avenir Rezé.
Logement susceptibles de vous intéresser
Nous vous proposons de découvrir aussi cette sélection de logements situés à moins de 10km de Saint-Colomban et qui seraient susceptibles de vous intéresser.
Saint-Colomban
TERRAIN ET MAISONA SAINT-COLOMBAN sur un terrain de 289 m², Alliance Construction vous propose de réaliser votre projet de construction de maison individuelle d'une surface de 72.93 m² habitables avec 3 chambres, à partir de 177730€*Demandez une étude gratuite et personnalisée de votre projet de construction !* Cette offre comprend :- Garanties constructeurs (dommages ouvrage, garantie de prix ferme et définitif, garantie de livraison, responsabilité civile et décennale).- Branchements aux compteurs et accès empierré sur 5m linéaires.Habitez une maison spécialement pensée et conçue pour vous et votre famille, prête à décorer, adaptée à vos modes de vie, personnalisée selon vos goûts grâce à un large choix d'options, de matériaux et d'innovations !Contactez Laurent LASSIMONNE au (Numéro supprimé) (Alliance Construction – Agence de Vallet).*Prix indicatif pour un projet de construction d'une maison individuelle. Ne sont pas inclus les frais de branchements, raccordements aux réseaux publics, frais d'adaptations, aménagements intérieurs et extérieurs et options. terrain viabilisé, frais de notaire non compris, frais divers non compris. Garanties et assurances obligatoires incluses. Terrain sélectionné par ALLIANCE auprès de nos partenaires fonciers, selon disponibilité, pour la construction d'une maison neuve. Non mandaté pour réaliser la vente (loi du 2 janvier 1970 n°70-9). Visuels non contractuels. Voir détails en agence.Cette annonce a été créée et diffusée avec le logiciel VITAHOME.
Saint-Colomban
TERRAINPrix : 50000 €.Sur ce terrain de 289 m² à SAINT-COLOMBAN, Alliance Construction vous propose de réaliser votre projet de construction de maison individuelle.Avec Alliance Construction, habitez une maison spécialement pensée et conçue pour vous et votre famille, prête à décorer, adaptée à vos modes de vie, personnalisée selon vos goûts grâce à un large choix d'options, de matériaux et d'innovations ! Demandez une étude gratuite et personnalisée de votre projet de construction sur ce terrain à SAINT-COLOMBAN !Contactez Laurent LASSIMONNE au (Numéro supprimé) (Alliance Construction – Agence de Vallet).Prix hors frais de notaire. Terrain sélectionné par ALLIANCE auprès de nos partenaires fonciers, selon disponibilité, pour la construction d'une maison neuve. Non mandaté pour réaliser la vente (loi du 2 janvier 1970 n°70-9). Visuels non contractuels. Voir détails en agence.Cette annonce a été créée et diffusée avec le logiciel VITAHOME.
Saint-Philbert-de-Grand-Lieu
TERRAINPrix : 68000 €.Sur ce terrain de 430 m² à SAINT-PHILBERT-DE-GRAND-LIEU, Alliance Construction vous propose de réaliser votre projet de construction de maison individuelle.Avec Alliance Construction, habitez une maison spécialement pensée et conçue pour vous et votre famille, prête à décorer, adaptée à vos modes de vie, personnalisée selon vos goûts grâce à un large choix d'options, de matériaux et d'innovations ! Demandez une étude gratuite et personnalisée de votre projet de construction sur ce terrain à SAINT-PHILBERT-DE-GRAND-LIEU !Contactez Laurent LASSIMONNE au (Numéro supprimé) (Alliance Construction – Agence de Vallet).Prix hors frais de notaire. Terrain sélectionné par ALLIANCE auprès de nos partenaires fonciers, selon disponibilité, pour la construction d'une maison neuve. Non mandaté pour réaliser la vente (loi du 2 janvier 1970 n°70-9). Visuels non contractuels. Voir détails en agence.Cette annonce a été créée et diffusée avec le logiciel VITAHOME.
La Chevrolière
TERRAIN ET MAISONOpportunité sur le secteur de la Chevrolière, terrain viabilisé de 213 m². Des espaces optimisés pour cette charmante maison de plain-pied lumineuse grâce à son espace de vie éclairé par sa grande baie vitrée et sa lumière traversante, cuisine ouverte avec accès direct au cellier. Côté nuit, un dégagement dessert trois chambres avec rangement, salle de bains et wc indépendant. Pour vous assurer un confort de vie et conformément à la RE2025, nous avons choisi un mode de chauffage par PAC + plancher chauffant, volets roulants électriques. Prix hors fourniture et pose : des appareils sanitaires (sauf système de chauffage et d'eau chaude sanitaire), du carrelage et de la faïence, des revêtements de sol dans les chambres. Hors décoration et aménagement intérieur et peinture. Hors raccordements, frais de notaire et dommage ouvrage. // Réf. : 996-210764-MVR. Prix terrain : 73 000 €, hors frais d'agence à la charge de l'acquéreur. Ce terrain vous est proposé, par nos partenaires fonciers, dans le cadre d'un projet de construction avec nous. Les informations sur les risques auxquels ce bien est exposé sont disponibles sur le site Géorisques (www.georisques.gouv.fr). Prix maison : 118 004 €.
La Chevrolière
TERRAIN ET MAISONOpportunité sur le secteur de la Chevrolière, terrain viabilisé de 213 m². Idéal premier achat, cette maison de plain-pied fonctionnelle et lumineuse vous propose une vaste pièce de vie éclairée par sa grande baie vitrée avec cuisine ouverte, deux chambres avec rangement, salle de bains et cellier indépendantPour vous assurer un confort de vie et conformément à la RE2025, nous avons choisi un mode de chauffage par PAC + plancher chauffant, volets roulants électriques. Prix hors fourniture et pose : des appareils sanitaires (sauf système de chauffage et d'eau chaude sanitaire), du carrelage et de la faïence, des revêtements de sol dans les chambres. Hors décoration et aménagement intérieur et peinture. Hors raccordements, frais de notaire et dommage ouvrage. // Réf. : 919-210764-MVR. Prix terrain : 73 000 €, hors frais d'agence à la charge de l'acquéreur. Ce terrain vous est proposé, par nos partenaires fonciers, dans le cadre d'un projet de construction avec nous. Les informations sur les risques auxquels ce bien est exposé sont disponibles sur le site Géorisques (www.georisques.gouv.fr). Prix maison : 103 973 €.
La Chevrolière
TERRAIN ET MAISONOpportunité sur le secteur de la Chevrolière, terrain viabilisé de 213 m². Une maison idéale pour les petits terrains, sans compromis sur l’espace ! Grâce à son agencement optimisé, cette maison s’adapte parfaitement aux terrains de taille réduite tout en offrant des volumes généreux et un confort absolu. Le rez-de-chaussée accueille une pièce de vie ouverte et lumineuse, pensée pour favoriser la convivialité. Son agencement fluide entre le salon, la salle à manger et la cuisine permet un cadre chaleureux et moderne. Un cellier discret ajoute une solution de rangement pratique au quotidien. À l’étage, trois chambres confortables assurent à chacun son propre espace, tandis qu’une salle de bain fonctionnelle et des WC indépendants garantissent un confort optimal pour toute la famille. Un design contemporain et intelligent, parfait pour maximiser l’espace même sur une petite parcelle !. Pour vous assurer un confort de vie optimal et en conformité avec la RE2025, nous avons opté pour un système de chauffage par pompe à chaleur (PAC) avec plancher chauffant au rez-de-chaussée et radiateurs à l’étage. Le logement est également équipé de volets roulants électriques. Prix hors fourniture et pose : des appareils sanitaires (sauf système de chauffage et d'eau chaude sanitaire), du carrelage et de la faïence, des revêtements de sol dans les chambres. Hors décoration et aménagement intérieur et peinture. Hors raccordements, frais de notaire et dommage ouvrage. // Réf. : 2494-210764-MVR. Prix terrain : 73 000 €, hors frais d'agence à la charge de l'acquéreur. Ce terrain vous est proposé, par nos partenaires fonciers, dans le cadre d'un projet de construction avec nous. Les informations sur les risques auxquels ce bien est exposé sont disponibles sur le site Géorisques (www.georisques.gouv.fr). Prix maison : 179 688 €.
La Chevrolière
TERRAINOpportunité sur le secteur de la Chevrolière, terrain viabilisé de 213 m². // Réf. : T210764. Prix terrain : 73 000 €, hors frais d'agence et de notaire à la charge de l'acquéreur. Ce terrain vous est proposé, par nos partenaires fonciers, dans le cadre d'un projet de construction avec nous. Les informations sur les risques auxquels ce bien est exposé sont disponibles sur le site Géorisques (www.georisques.gouv.fr).
Le Bignon
TERRAINVENTE d’un terrain de 483 m² au BignonIDÉALEMENT SITUÉ – PROCHE DE NANTESAu Bignon (44140) à vendre à 30 km de la côte atlantique et à deux pas de Nantes, donnez vie à votre projet immobilier sur ce terrain de 483 m². Ce terrain, orienté plein sud-ouest, donne sur un espace vert. Il se trouve dans un quartier prisé. Il y a l’École Primaire Privée Notre-Dame de Lourdes, l’École Élémentaire Publique du Moulin et l’École Maternelle Publique du Moulin à moins de 10 minutes à pied. Niveau transports en commun, on trouve la gare Vertou à moins de 10 minutes en voiture. L’autoroute A83 et la nationale N844 sont accessibles à moins de 8 km. Il y a un tennis, deux boulangeries, un commerce, une supérette et deux boucheries-charcuteries à proximité.Son prix de vente est de 111 500 €. Contactez notre agence (BURILLE Pierre Antoine : (Numéro supprimé)) pour obtenir de plus amples informations sur ce terrain ou sur les démarches à suivre. Maisons de l’Avenir Rezé vous accompagne à toutes les étapes de votre projet et dans tous vos projets immobiliers.
Le Bignon
TERRAIN ET MAISONVENTE : maison T4 (83 m²) au BignonIDÉALEMENT SITUÉE – MAISON 4 PIÈCES NEUVEEn vente : située à 30 km de l’océan Atlantique et à deux pas de Nantes, nous sommes ravis de vous présenter cette maison de 4 pièces de 83 m² et de 483 m² de terrain avec vue sur espace vert idéalement située dans Le Bignon (44140).Cette maison est de plain-pied. Conçue de plain-pied, elle compte trois chambres, une cuisine et une salle de bains. Cette maison est neuve.Cette propriété se trouve dans un secteur attractif. Il y a l’École Primaire Privée Notre-Dame de Lourdes, l’École Élémentaire Publique du Moulin et l’École Maternelle Publique du Moulin à moins de 10 minutes à pied. Côté transports, on trouve la gare Vertou à moins de 10 minutes en voiture. L’autoroute A83 et la nationale N844 sont accessibles à moins de 8 km. Il y a un tennis, deux boulangeries, un commerce, une supérette et deux boucheries-charcuteries à quelques minutes.Elle est proposée à l’achat pour 297 000 €.Contactez notre agence (BURILLE Pierre Antoine : (Numéro supprimé)) pour toute question sur la maison ou sur les démarches à suivre.
L’actualité immobilière à Saint-Colomban
27/11/2023
02/11/2023
30/10/2023
20/10/2023
16/10/2023
16/10/2023