Maison à construire à Saint-Étienne-de-Mer-Morte (44270)
Images
Description
VENTE : maison de 5 pièces (87 m²) à Saint-Étienne-de-Mer-Morte
EMPLACEMENT PRIVILÉGIÉ - MAISON 5 PIÈCES NEUVE
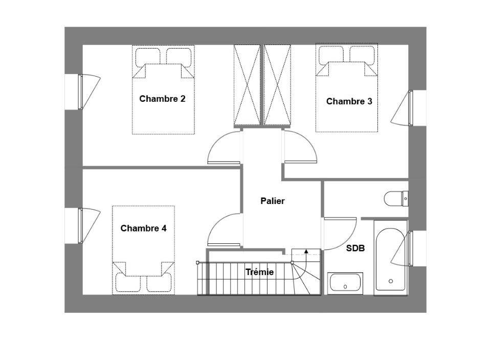
À vendre : localisée à 29 km de la côte atlantique et à 28 km de Rezé, bénéficiant d'un emplacement privilégié dans Saint-Étienne-de-Mer-Morte (44270), votre agence Maisons de l'Avenir Rezé est ravie de vous proposer cette maison de 5 pièces de 87 m². Son intérieur se divise en quatre chambres, une cuisine et une salle de bains.
Le terrain de cette maison est de 635 m².
Cette maison compte 2 niveaux. Elle est neuve.
Cette maison se trouve dans un secteur attractif. L'École Primaire Publique l'Arc En Ciel et l'École Primaire Privée Sainte Marie sont implantées à moins de 10 minutes à pied. Niveau transports, il y a la gare Machecoul à moins de 10 minutes en voiture. On trouve une épicerie dans les environs.
Elle est à vendre pour la somme de 247 600 €.
Prenez contact avec notre constructeur (BURILLE Pierre Antoine : (Numéro supprimé)) pour toute information sur le bien et sur les démarches à suivre. Maisons de l'Avenir Rezé vous accompagne dans tous vos projets immobiliers et à toutes les étapes de votre projet.
Logement susceptibles de vous intéresser
Nous vous proposons de découvrir aussi cette sélection de logements situés à moins de 10km de Saint-Étienne-de-Mer-Morte et qui seraient susceptibles de vous intéresser.
Saint-Étienne-de-Mer-Morte
TERRAINTerrain de 775 m² en vente à Saint-Étienne-de-Mer-MorteEMPLACEMENT PRIVILÉGIÉ – PROCHE DE REZÉGrand terrain à vendre à 29 km de la côte atlantique et à quelques kilomètres de Rezé. De 775 m², ce terrain se situe bénéficiant d’un emplacement d’exception dans Saint-Étienne-de-Mer-Morte (44270). Ce terrain, avec vue sur espace vert, est exposé au sud-ouest. Ce terrain se situe dans un secteur attractif. Il y a l’École Primaire Publique l’Arc En Ciel et l’École Primaire Privée Sainte Marie à moins de 10 minutes à pied. Niveau transports en commun, on trouve la gare Machecoul à moins de 10 minutes en voiture. Il y a une épicerie à quelques minutes.Il est à vendre pour la somme de 74 950 €. N’hésitez pas à prendre contact avec notre agence (Pierre Antoine BURILLE : (Numéro supprimé)) pour obtenir de plus amples renseignements sur le terrain ou sur les modalités de vente. Donnez vie à vos projets immobiliers avec Maisons de l’Avenir Rezé.
Saint-Étienne-de-Mer-Morte
TERRAIN ET MAISONVENTE d’une maison T4 (83 m²) à Saint-Étienne-de-Mer-MorteEMPLACEMENT PRIVILÉGIÉ – MAISON 4 PIÈCES NEUVEÀ vendre : à 29 km de l’océan Atlantique et à deux pas de Rezé, bénéficiant d’un emplacement privilégié dans Saint-Étienne-de-Mer-Morte (44270), notre agence Maisons de l’Avenir Rezé est ravie de vous proposer cette maison de 4 pièces de 83 m² et de 775 m² de terrain avec vue sur espace vert.Cette maison est de plain-pied. Conçue de plain-pied, elle se divise en trois chambres, une cuisine et une salle de bains. La maison est neuve.Cette maison se trouve dans un quartier convoité. Il y a l’École Primaire Publique l’Arc En Ciel et l’École Primaire Privée Sainte Marie à moins de 10 minutes à pied. Côté transports, on trouve la gare Machecoul à moins de 10 minutes en voiture. Il y a une épicerie à proximité.Elle est proposée à l’achat pour 260 500 €.Contactez Pierre Antoine BURILLE ((Numéro supprimé)) pour toute question sur la propriété. Maisons de l’Avenir Rezé vous accompagne dans toutes vos démarches et à toutes les étapes de l’achat.
Saint-Étienne-de-Mer-Morte
TERRAIN ET MAISONSaint-Étienne-de-Mer-Morte : maison de 4 pièces (110 m²) en venteEMPLACEMENT PRIVILÉGIÉ – MAISON 4 PIÈCES NEUVEÀ vendre : à 29 km de l’océan Atlantique et à 28 km de Rezé, nous sommes heureux de vous présenter cette maison de 4 pièces de 110 m² et de 775 m² de terrain bénéficiant d’un emplacement d’exception dans Saint-Étienne-de-Mer-Morte (44270). Son intérieur compte trois chambres, une cuisine et deux salles de bains.Cette maison comporte 2 niveaux. Elle est neuve.La maison se situe dans un quartier prisé. L’École Primaire Publique l’Arc En Ciel et l’École Primaire Privée Sainte Marie se trouvent à moins de 10 minutes à pied. Niveau transports en commun, il y a la gare Machecoul à moins de 10 minutes en voiture. On trouve une épicerie dans les environs.Son prix de vente est de 310 000 €.Prenez contact avec Pierre Antoine BURILLE (tél : (Numéro supprimé)) pour tout renseignement sur le bien, sur les démarches à suivre ou sur les modalités de vente. Maisons de l’Avenir Rezé est là pour vous accompagner à toutes les étapes de l’achat.
Saint-Étienne-de-Mer-Morte
TERRAIN ET MAISONVENTE : maison F5 (87 m²) à Saint-Étienne-de-Mer-MorteEMPLACEMENT PRIVILÉGIÉ – MAISON 5 PIÈCES NEUVEÀ vendre à 29 km de la côte atlantique et à 28 km de Rezé, nous sommes heureux de vous présenter cette maison de 5 pièces de 87 m² bénéficiant d’un emplacement privilégié dans Saint-Étienne-de-Mer-Morte (44270).C’est une maison de 2 niveaux. Son intérieur est composé de quatre chambres, d’une cuisine et d’une salle de bains. Cette maison est neuve.Le terrain du bien s’étend sur 775 m².Cette propriété se trouve dans un quartier prisé. Il y a l’École Primaire Publique l’Arc En Ciel et l’École Primaire Privée Sainte Marie à moins de 10 minutes à pied. Niveau transports, on trouve la gare Machecoul à moins de 10 minutes en voiture. Il y a une épicerie à proximité du logement.Elle est à vendre pour la somme de 264 500 €.Contactez Pierre Antoine BURILLE (tél : (Numéro supprimé)) pour toute question sur la maison ou sur les démarches à suivre. Maisons de l’Avenir Rezé est là pour vous accompagner à toutes les étapes de votre projet.
Saint-Étienne-de-Mer-Morte
TERRAIN ET MAISONVENTE : maison de 4 pièces (73 m²) à Saint-Étienne-de-Mer-MorteEMPLACEMENT PRIVILÉGIÉ – MAISON 4 PIÈCES NEUVEEn vente à 29 km de la côte atlantique et à quelques kilomètres de Rezé, nous vous proposons cette maison de 4 pièces de plain-pied de 73 m² bénéficiant d’un emplacement privilégié dans Saint-Étienne-de-Mer-Morte (44270).Conçue de plain-pied, elle se divise en trois chambres, une cuisine et une salle de bains. Cette maison est neuve.Le terrain de la propriété est de 775 m².Cette maison est située dans un secteur attractif. L’École Primaire Publique l’Arc En Ciel et l’École Primaire Privée Sainte Marie sont implantées à moins de 10 minutes à pied. Niveau transports en commun, il y a la gare Machecoul à moins de 10 minutes en voiture. On trouve une épicerie dans les environs.Elle est à vendre pour la somme de 237 600 €.Contactez Pierre Antoine BURILLE ((Numéro supprimé)) pour toute information sur la maison et sur les modalités de vente. Maisons de l’Avenir Rezé est là pour vous accompagner à toutes les étapes de votre projet.
Saint-Étienne-de-Mer-Morte
TERRAINVENTE d’un terrain de 635 m² à Saint-Étienne-de-Mer-MorteEMPLACEMENT PRIVILÉGIÉ – PROCHE DE REZÉÀ Saint-Étienne-de-Mer-Morte (44270) à vendre à 29 km de l’océan Atlantique et à quelques kilomètres de Rezé, donnez vie à votre projet immobilier sur ce terrain de 635 m². Ce terrain, avec une exposition sud-ouest, donne sur un espace vert. Il se situe dans un secteur attractif. On trouve l’École Primaire Publique l’Arc En Ciel et l’École Primaire Privée Sainte Marie à moins de 10 minutes à pied. Côté transports, il y a la gare Machecoul à moins de 10 minutes en voiture. On trouve une épicerie à quelques minutes du bien.Ce terrain est proposé à l’achat pour 58 000 €. Contactez notre agence (Pierre Antoine BURILLE : (Numéro supprimé)) pour toute question sur ce terrain ou sur les démarches à suivre. Maisons de l’Avenir Rezé est là pour vous accompagner à toutes les étapes de l’achat.
Saint-Étienne-de-Mer-Morte
TERRAIN ET MAISONVENTE : maison T4 (75 m²) à Saint-Étienne-de-Mer-MorteEMPLACEMENT PRIVILÉGIÉ – MAISON 4 PIÈCES NEUVEÀ 29 km de l’océan Atlantique et à deux pas de Rezé, en vente bénéficiant d’un emplacement d’exception dans Saint-Étienne-de-Mer-Morte (44270), Maisons de l’Avenir Rezé vous présente cette maison de 4 pièces de 75 m² et de 635 m² de terrain avec vue sur espace vert.Cette maison est de plain-pied. Conçue de plain-pied, elle se divise en trois chambres, une cuisine et une salle de bains. Cette maison est neuve.La maison se trouve dans un secteur attractif. L’École Primaire Publique l’Arc En Ciel et l’École Primaire Privée Sainte Marie sont implantées à moins de 10 minutes à pied. Niveau transports en commun, il y a la gare Machecoul à moins de 10 minutes en voiture. On trouve une épicerie à quelques minutes du bien.Elle est à vendre pour la somme de 227 125 €.Contactez notre agence (Pierre Antoine BURILLE : (Numéro supprimé)) pour obtenir de plus amples renseignements sur la maison, sur les modalités de vente ou sur les démarches à suivre. Maisons de l’Avenir Rezé est là pour vous accompagner à toutes les étapes de votre projet.
Saint-Étienne-de-Mer-Morte
TERRAIN ET MAISONVENTE : maison de 5 pièces (87 m²) à Saint-Étienne-de-Mer-MorteEMPLACEMENT PRIVILÉGIÉ – MAISON 5 PIÈCES NEUVEÀ vendre : localisée à 29 km de la côte atlantique et à 28 km de Rezé, bénéficiant d’un emplacement privilégié dans Saint-Étienne-de-Mer-Morte (44270), votre agence Maisons de l’Avenir Rezé est ravie de vous proposer cette maison de 5 pièces de 87 m². Son intérieur se divise en quatre chambres, une cuisine et une salle de bains.Le terrain de cette maison est de 635 m².Cette maison compte 2 niveaux. Elle est neuve.Cette maison se trouve dans un secteur attractif. L’École Primaire Publique l’Arc En Ciel et l’École Primaire Privée Sainte Marie sont implantées à moins de 10 minutes à pied. Niveau transports, il y a la gare Machecoul à moins de 10 minutes en voiture. On trouve une épicerie dans les environs.Elle est à vendre pour la somme de 247 600 €.Prenez contact avec notre constructeur (BURILLE Pierre Antoine : (Numéro supprimé)) pour toute information sur le bien et sur les démarches à suivre. Maisons de l’Avenir Rezé vous accompagne dans tous vos projets immobiliers et à toutes les étapes de votre projet.
Saint-Étienne-de-Mer-Morte
TERRAIN ET MAISONVENTE : maison T5 (90 m²) à Saint-Étienne-de-Mer-MorteEMPLACEMENT PRIVILÉGIÉ – MAISON 5 PIÈCES NEUVEÀ vendre : localisée à 29 km de l’océan Atlantique et à 28 km de Rezé, bénéficiant d’un emplacement privilégié dans Saint-Étienne-de-Mer-Morte (44270), nous vous présentons cette maison de 5 pièces de 90 m² et de 635 m² de terrain.Cette maison possède 2 niveaux. Elle offre trois chambres, une cuisine et deux salles de bains. La maison est neuve.Cette maison se situe dans un secteur prisé. L’École Primaire Publique l’Arc En Ciel et l’École Primaire Privée Sainte Marie sont implantées à moins de 10 minutes à pied. Niveau transports, il y a la gare Machecoul à moins de 10 minutes en voiture. On trouve une épicerie à quelques minutes.Elle est à vendre pour la somme de 253 000 €.Contactez notre agence (Pierre Antoine BURILLE : (Numéro supprimé)) pour obtenir de plus amples renseignements sur le bien. Maisons de l’Avenir Rezé est là pour vous accompagner dans toutes vos démarches.
L’actualité immobilière à Saint-Étienne-de-Mer-Morte
27/11/2023
02/11/2023
30/10/2023
20/10/2023
16/10/2023
16/10/2023