Maison à construire à Saint-Étienne-de-Montluc (44360)
Images
Description
VENTE : maison de 5 pièces (100 m²) à Saint-Étienne-de-Montluc
MAISON 5 PIÈCES NEUVE - PROCHE DE NANTES
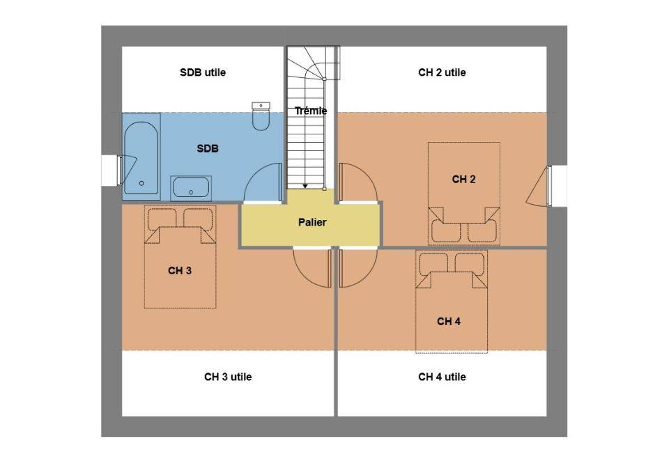
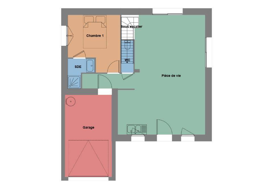
En vente : à 8 km de la côte atlantique et à 17 km de Nantes, notre agence Maisons de l'Avenir Rezé est heureuse de vous proposer cette maison de 5 pièces de 100 m² à Saint-Étienne-de-Montluc (44360). Elle compte quatre chambres, une cuisine et deux salles de bains.
Le terrain du bien est de 353 m².
Cette maison comporte 2 niveaux.
Elle est proposée à l'achat pour 363 000 €.
Contactez notre constructeur (Thomas BENIER : (Numéro supprimé)) pour plus de renseignements sur cette maison.
Logement susceptibles de vous intéresser
Nous vous proposons de découvrir aussi cette sélection de logements situés à moins de 10km de Saint-Étienne-de-Montluc et qui seraient susceptibles de vous intéresser.
Cheix-en-Retz
TERRAIN ET MAISONA CHEIX-EN-RETZ sur un terrain de 690 m², Alliance Construction vous propose de réaliser votre projet de construction de maison individuelle d'une surface de 88.04 m² habitables avec 3 chambres, à partir de 273800€*Demandez une étude gratuite et personnalisée de votre projet de construction !* Cette offre comprend :- Garanties constructeurs (dommages ouvrage, garantie de prix ferme et définitif, garantie de livraison, responsabilité civile et décennale).- Branchements aux compteurs et accès empierré sur 5m linéaires.Habitez une maison spécialement pensée et conçue pour vous et votre famille, prête à décorer, adaptée à vos modes de vie, personnalisée selon vos goûts grâce à un large choix d'options, de matériaux et d'innovations !Contactez Laurent LASSIMONNE au (Numéro supprimé) (Alliance Construction – Agence de Vallet).*Prix indicatif pour un projet de construction d'une maison individuelle. Ne sont pas inclus les frais de branchements, raccordements aux réseaux publics, frais d'adaptations, aménagements intérieurs et extérieurs et options. terrain non viabilisé, frais de notaire non compris, frais divers non compris. Garanties et assurances obligatoires incluses. Terrain sélectionné par ALLIANCE auprès de nos partenaires fonciers, selon disponibilité, pour la construction d'une maison neuve. Non mandaté pour réaliser la vente (loi du 2 janvier 1970 n°70-9). Visuels non contractuels. Voir détails en agence.Cette annonce a été créée et diffusée avec le logiciel VITAHOME.
Cheix-en-Retz
TERRAIN ET MAISONA CHEIX-EN-RETZ sur un terrain de 690 m², Alliance Construction vous propose de réaliser votre projet de construction de maison individuelle d'une surface de 87.91 m² habitables avec 3 chambres, à partir de 247154€*Demandez une étude gratuite et personnalisée de votre projet de construction !* Cette offre comprend :- Garanties constructeurs (dommages ouvrage, garantie de prix ferme et définitif, garantie de livraison, responsabilité civile et décennale).- Branchements aux compteurs et accès empierré sur 5m linéaires.Habitez une maison spécialement pensée et conçue pour vous et votre famille, prête à décorer, adaptée à vos modes de vie, personnalisée selon vos goûts grâce à un large choix d'options, de matériaux et d'innovations !Contactez Laurent LASSIMONNE au (Numéro supprimé) (Alliance Construction – Agence de Vallet).*Prix indicatif pour un projet de construction d'une maison individuelle. Ne sont pas inclus les frais de branchements, raccordements aux réseaux publics, frais d'adaptations, aménagements intérieurs et extérieurs et options. terrain non viabilisé, frais de notaire non compris, frais divers non compris. Garanties et assurances obligatoires incluses. Terrain sélectionné par ALLIANCE auprès de nos partenaires fonciers, selon disponibilité, pour la construction d'une maison neuve. Non mandaté pour réaliser la vente (loi du 2 janvier 1970 n°70-9). Visuels non contractuels. Voir détails en agence.Cette annonce a été créée et diffusée avec le logiciel VITAHOME.
Cheix-en-Retz
TERRAINPrix : 85000 €.Sur ce terrain de 690 m² à CHEIX-EN-RETZ, Alliance Construction vous propose de réaliser votre projet de construction de maison individuelle.Avec Alliance Construction, habitez une maison spécialement pensée et conçue pour vous et votre famille, prête à décorer, adaptée à vos modes de vie, personnalisée selon vos goûts grâce à un large choix d'options, de matériaux et d'innovations ! Demandez une étude gratuite et personnalisée de votre projet de construction sur ce terrain à CHEIX-EN-RETZ !Contactez Laurent LASSIMONNE au (Numéro supprimé) (Alliance Construction – Agence de Vallet).Prix hors frais de notaire. Terrain sélectionné par ALLIANCE auprès de nos partenaires fonciers, selon disponibilité, pour la construction d'une maison neuve. Non mandaté pour réaliser la vente (loi du 2 janvier 1970 n°70-9). Visuels non contractuels. Voir détails en agence.Cette annonce a été créée et diffusée avec le logiciel VITAHOME.
Le Pellerin
TERRAINPrix : 75000 €.Sur ce terrain de 180 m² à LE PELLERIN, Alliance Construction vous propose de réaliser votre projet de construction de maison individuelle.Avec Alliance Construction, habitez une maison spécialement pensée et conçue pour vous et votre famille, prête à décorer, adaptée à vos modes de vie, personnalisée selon vos goûts grâce à un large choix d'options, de matériaux et d'innovations ! Demandez une étude gratuite et personnalisée de votre projet de construction sur ce terrain à LE PELLERIN !Contactez Laurent LASSIMONNE au (Numéro supprimé) (Alliance Construction – Agence de Vallet).Prix hors frais de notaire. Terrain sélectionné par ALLIANCE auprès de nos partenaires fonciers, selon disponibilité, pour la construction d'une maison neuve. Non mandaté pour réaliser la vente (loi du 2 janvier 1970 n°70-9). Visuels non contractuels. Voir détails en agence.Cette annonce a été créée et diffusée avec le logiciel VITAHOME.
Saint-Jean-de-Boiseau
TERRAINPrix : 130000 €.Sur ce terrain de 630 m² à SAINT-JEAN-DE-BOISEAU, Alliance Construction vous propose de réaliser votre projet de construction de maison individuelle.Avec Alliance Construction, habitez une maison spécialement pensée et conçue pour vous et votre famille, prête à décorer, adaptée à vos modes de vie, personnalisée selon vos goûts grâce à un large choix d'options, de matériaux et d'innovations ! Demandez une étude gratuite et personnalisée de votre projet de construction sur ce terrain à SAINT-JEAN-DE-BOISEAU !Contactez Laurent LASSIMONNE au (Numéro supprimé) (Alliance Construction – Agence de Vallet).Prix hors frais de notaire. Terrain sélectionné par ALLIANCE auprès de nos partenaires fonciers, selon disponibilité, pour la construction d'une maison neuve. Non mandaté pour réaliser la vente (loi du 2 janvier 1970 n°70-9). Visuels non contractuels. Voir détails en agence.Cette annonce a été créée et diffusée avec le logiciel VITAHOME.
Le Pellerin
TERRAINPrix : 109000 €.Sur ce terrain de 400 m² à LE PELLERIN, Alliance Construction vous propose de réaliser votre projet de construction de maison individuelle.Avec Alliance Construction, habitez une maison spécialement pensée et conçue pour vous et votre famille, prête à décorer, adaptée à vos modes de vie, personnalisée selon vos goûts grâce à un large choix d'options, de matériaux et d'innovations ! Demandez une étude gratuite et personnalisée de votre projet de construction sur ce terrain à LE PELLERIN !Contactez Laurent LASSIMONNE au (Numéro supprimé) (Alliance Construction – Agence de Vallet).Prix hors frais de notaire. Terrain sélectionné par ALLIANCE auprès de nos partenaires fonciers, selon disponibilité, pour la construction d'une maison neuve. Non mandaté pour réaliser la vente (loi du 2 janvier 1970 n°70-9). Visuels non contractuels. Voir détails en agence.Cette annonce a été créée et diffusée avec le logiciel VITAHOME.
Le Temple-de-Bretagne
TERRAIN ET MAISONSitué au Temple-de-Bretagne, commune dynamique aux portes de Nantes, découvrez ce terrain constructible de 450 m², idéal pour un premier achat ou un projet familial. À proximité immédiate des écoles, des commerces et des axes rapides vers Nantes et la côte atlantique, ce terrain bénéficie d’un emplacement privilégié alliant praticité et qualité de vie. Une belle opportunité à saisir sur un secteur recherché, alliant confort, accessibilité et cadre agréable !. Découvrez EVOLIA, la maison évolutive qui s'adapte à chaque étape de votre vie. Transformez facilement une maison de 2 chambres en une maison de 3 chambres grâce à un garage aménageable de 15 m². Flexible et personnalisable, EVOLIA évolue avec vous, que vous soyez une jeune famille, un couple ou une personne seule. Ne laissez plus vos besoins en logement vous limiter. Contactez nos experts conseillers dès aujourd’hui et faites de EVOLIA la maison de vos rêves. Prix hors fourniture et pose : des appareils sanitaires (sauf système de chauffage et d'eau chaude sanitaire), du carrelage, de la faïence, de la cuisine aménagée, des revêtements de sol dans les chambres. Hors décoration, aménagement intérieur, peinture, raccordements, frais de notaire et dommage ouvrage. (Surface habitable 49 m²+garage 15 m²). // Réf. : 2585-210850-ENL. Prix terrain : 89 000 €, hors frais d'agence à la charge de l'acquéreur. Ce terrain vous est proposé, par nos partenaires fonciers, dans le cadre d'un projet de construction avec nous. Les informations sur les risques auxquels ce bien est exposé sont disponibles sur le site Géorisques (www.georisques.gouv.fr). Prix maison : 94 943 €.
Le Temple-de-Bretagne
TERRAIN ET MAISONSitué au Temple-de-Bretagne, commune dynamique aux portes de Nantes, découvrez ce terrain constructible de 450 m², idéal pour un premier achat ou un projet familial. À proximité immédiate des écoles, des commerces et des axes rapides vers Nantes et la côte atlantique, ce terrain bénéficie d’un emplacement privilégié alliant praticité et qualité de vie. Une belle opportunité à saisir sur un secteur recherché, alliant confort, accessibilité et cadre agréable !. Une maison idéale pour les petits terrains, sans compromis sur l’espace ! Grâce à son agencement optimisé, cette maison s’adapte parfaitement aux terrains de taille réduite tout en offrant des volumes généreux et un confort absolu. Le rez-de-chaussée accueille une pièce de vie ouverte et lumineuse, pensée pour favoriser la convivialité. Son agencement fluide entre le salon, la salle à manger et la cuisine permet un cadre chaleureux et moderne. Un cellier discret ajoute une solution de rangement pratique au quotidien. À l’étage, trois chambres confortables assurent à chacun son propre espace, tandis qu’une salle de bain fonctionnelle et des WC indépendants garantissent un confort optimal pour toute la famille. Un design contemporain et intelligent, parfait pour maximiser l’espace même sur une petite parcelle !. Pour vous assurer un confort de vie optimal et en conformité avec la RE2025, nous avons opté pour un système de chauffage par pompe à chaleur (PAC) avec plancher chauffant au rez-de-chaussée et radiateurs à l’étage. Le logement est également équipé de volets roulants électriques. Prix hors fourniture et pose : des appareils sanitaires (sauf système de chauffage et d'eau chaude sanitaire), du carrelage et de la faïence, des revêtements de sol dans les chambres. Hors décoration et aménagement intérieur et peinture. Hors raccordements, frais de notaire et dommage ouvrage. // Réf. : 2493-210850-ENL. Prix terrain : 89 000 €, hors frais d'agence à la charge de l'acquéreur. Ce terrain vous est proposé, par nos partenaires fonciers, dans le cadre d'un projet de construction avec nous. Les informations sur les risques auxquels ce bien est exposé sont disponibles sur le site Géorisques (www.georisques.gouv.fr). Prix maison : 181 503 €.
Le Temple-de-Bretagne
TERRAIN ET MAISONSitué au Temple-de-Bretagne, commune dynamique aux portes de Nantes, découvrez ce terrain constructible de 450 m², idéal pour un premier achat ou un projet familial. À proximité immédiate des écoles, des commerces et des axes rapides vers Nantes et la côte atlantique, ce terrain bénéficie d’un emplacement privilégié alliant praticité et qualité de vie. Une belle opportunité à saisir sur un secteur recherché, alliant confort, accessibilité et cadre agréable !. Familiale et fonctionnelle cette maison de 106 m² habitables vous séduira par ses volumes et son aménagement. Son très bel espace de vie de 47 m² environ avec sa cuisine ouverte avec accès direct au jardin grâce à sa baie vitrée. L’espace nuit est composé d’une suite parentale avec dressing et salle d’eau privative, à l’opposé trois chambres avec rangements, une salle de bains indépendantePour vous assurer un confort de vie et conformément à la RE2025, nous avons choisi un mode de chauffage par PAC + plancher chauffant, volets roulants électriques. Prix hors fourniture et pose : des appareils sanitaires (sauf système de chauffage et d'eau chaude sanitaire), du carrelage et de la faïence, des revêtements de sol dans les chambres. Hors décoration et aménagement intérieur et peinture. Hors raccordements, frais de notaire et dommage ouvrage. // Réf. : 1249-210850-ENL. Prix terrain : 89 000 €, hors frais d'agence à la charge de l'acquéreur. Ce terrain vous est proposé, par nos partenaires fonciers, dans le cadre d'un projet de construction avec nous. Les informations sur les risques auxquels ce bien est exposé sont disponibles sur le site Géorisques (www.georisques.gouv.fr). Prix maison : 163 956 €.
L’actualité immobilière à Saint-Étienne-de-Montluc
27/11/2023
02/11/2023
30/10/2023
20/10/2023
16/10/2023
16/10/2023