Maison à construire à Saint-Herblain (44800)
Images
Description
Saint-Herblain : maison de 4 pièces (90 m²) à vendre
IDÉALEMENT SITUÉE - MAISON 4 PIÈCES NEUVE
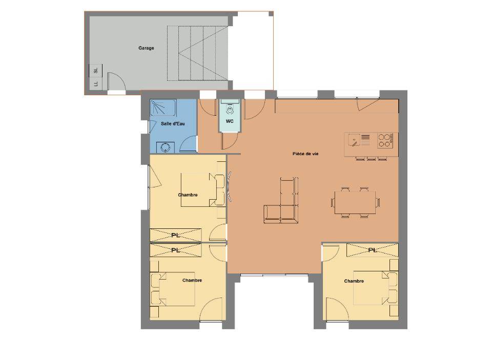
À vendre : nous sommes ravis de vous proposer, idéalement située dans Saint-Herblain (44800), cette maison de 4 pièces de plain-pied de 90 m² et de 601 m² de terrain.
Conçue de plain-pied, elle se divise en trois chambres, une cuisine et une salle de bains. Cette maison est neuve.
Cette maison est située dans un secteur attractif. Il y a l'École Primaire Publique René-Guy Cadou et l'École Secondaire Professionnelle Privée Cps Nantes à moins de 10 minutes à pied et deux crèches. Niveau transports en commun, on trouve 10 gares à moins de 10 minutes en voiture. Les nationales N444 et N844 sont accessibles à moins de 1 km. Il y a un bowling, de nombreux commerces, une boulangerie et un supermarché dans les environs.
Son prix de vente est de 430 650 €.
Contactez Badri LADIYE MOUSSA ((Numéro supprimé)) pour plus de renseignements sur la propriété, sur les modalités de vente ou sur les démarches à suivre. Maisons de l'Avenir Orvault est là pour vous accompagner dans tous vos projets immobiliers.
Logement susceptibles de vous intéresser
Nous vous proposons de découvrir aussi cette sélection de logements situés à moins de 10km de Saint-Herblain et qui seraient susceptibles de vous intéresser.
Orvault
TERRAIN ET MAISONA ORVAULT sur un terrain de 552 m², Alliance Construction vous propose de réaliser votre projet de construction de maison individuelle d'une surface de 119.53 m² habitables avec 4 chambres, à partir de 482000€*Informations du terrain : Offre rare à Orvault ! Découvrez ce superbe terrain à bâtir viabilisé, situé dans un cadre idyllique sans vis-à-vis. Ce terrain vous séduira par son environnement boisé et paisible, idéal pour construire la maison de vos rêves.Situé à Orvault, charmante commune proche de Nantes, réputée pour ses espaces verts, ses infrastructures de qualité et son cadre de vie agréable. Orvault offre un excellent compromis entre nature et accessibilité urbaine.Demandez une étude gratuite et personnalisée de votre projet de construction !* Cette offre comprend :- Garanties constructeurs (dommages ouvrage, garantie de prix ferme et définitif, garantie de livraison, responsabilité civile et décennale).- Branchements aux compteurs et accès empierré sur 5m linéaires.Habitez une maison spécialement pensée et conçue pour vous et votre famille, prête à décorer, adaptée à vos modes de vie, personnalisée selon vos goûts grâce à un large choix d'options, de matériaux et d'innovations !Contactez Thierry MONLEZUN au (Numéro supprimé) (Alliance Construction – Agence de Nantes Aubinière).*Prix indicatif pour un projet de construction d'une maison individuelle. Ne sont pas inclus les frais de branchements, raccordements aux réseaux publics, frais d'adaptations, aménagements intérieurs et extérieurs et options. terrain viabilisé, frais de notaire non compris, frais divers non compris. Garanties et assurances obligatoires incluses. Terrain sélectionné par ALLIANCE auprès de nos partenaires fonciers, selon disponibilité, pour la construction d'une maison neuve. Non mandaté pour réaliser la vente (loi du 2 janvier 1970 n°70-9). Visuels non contractuels. Voir détails en agence.Cette annonce a été créée et diffusée avec le logiciel VITAHOME.
Nantes
TERRAIN ET MAISONA NANTES sur un terrain de 318 m², Alliance Construction vous propose de réaliser votre projet de construction de maison individuelle d'une surface de 72.29 m² habitables avec 2 chambres, à partir de 304033€*Informations du terrain : Saisissez une opportunité unique d'acquérir un terrain à bâtir privilégié dans le quartier prisé de Gachet à Nantes.Ce terrain d'exception entièrement viabilisé vous offre un cadre de vie idyllique, alliant calme absolu et la proximité immédiate des magnifiques bords de l'Erdre.Ce terrain représente une opportunité rare de construire une résidence d'exception dans un environnement unique à Nantes.Pour plus d'informations et pour organiser une découverte de ce lieu privilégié, veuillez nous contacterDemandez une étude gratuite et personnalisée de votre projet de construction !* Cette offre comprend :- Garanties constructeurs (dommages ouvrage, garantie de prix ferme et définitif, garantie de livraison, responsabilité civile et décennale).- Branchements aux compteurs et accès empierré sur 5m linéaires.Habitez une maison spécialement pensée et conçue pour vous et votre famille, prête à décorer, adaptée à vos modes de vie, personnalisée selon vos goûts grâce à un large choix d'options, de matériaux et d'innovations !Contactez Thierry MONLEZUN au (Numéro supprimé) (Alliance Construction – Agence de Nantes Aubinière).*Prix indicatif pour un projet de construction d'une maison individuelle. Ne sont pas inclus les frais de branchements, raccordements aux réseaux publics, frais d'adaptations, aménagements intérieurs et extérieurs et options. terrain non viabilisé, frais de notaire non compris, frais divers non compris. Garanties et assurances obligatoires incluses. Terrain sélectionné par ALLIANCE auprès de nos partenaires fonciers, selon disponibilité, pour la construction d'une maison neuve. Non mandaté pour réaliser la vente (loi du 2 janvier 1970 n°70-9). Visuels non contractuels. Voir détails en agence.Cette annonce a été créée et diffusée avec le logiciel VITAHOME.
Orvault
TERRAIN ET MAISONA ORVAULT sur un terrain de 552 m², Alliance Construction vous propose de réaliser votre projet de construction de maison individuelle d'une surface de 88.04 m² habitables avec 3 chambres, à partir de 355500€*Informations du terrain : Offre rare à Orvault ! Découvrez ce superbe terrain à bâtir viabilisé, situé dans un cadre idyllique sans vis-à-vis. Ce terrain vous séduira par son environnement boisé et paisible, idéal pour construire la maison de vos rêves.Situé à Orvault, charmante commune proche de Nantes, réputée pour ses espaces verts, ses infrastructures de qualité et son cadre de vie agréable. Orvault offre un excellent compromis entre nature et accessibilité urbaine.Demandez une étude gratuite et personnalisée de votre projet de construction !* Cette offre comprend :- Garanties constructeurs (dommages ouvrage, garantie de prix ferme et définitif, garantie de livraison, responsabilité civile et décennale).- Branchements aux compteurs et accès empierré sur 5m linéaires.Habitez une maison spécialement pensée et conçue pour vous et votre famille, prête à décorer, adaptée à vos modes de vie, personnalisée selon vos goûts grâce à un large choix d'options, de matériaux et d'innovations !Contactez Thierry MONLEZUN au (Numéro supprimé) (Alliance Construction – Agence de Nantes Aubinière).*Prix indicatif pour un projet de construction d'une maison individuelle. Ne sont pas inclus les frais de branchements, raccordements aux réseaux publics, frais d'adaptations, aménagements intérieurs et extérieurs et options. terrain viabilisé, frais de notaire non compris, frais divers non compris. Garanties et assurances obligatoires incluses. Terrain sélectionné par ALLIANCE auprès de nos partenaires fonciers, selon disponibilité, pour la construction d'une maison neuve. Non mandaté pour réaliser la vente (loi du 2 janvier 1970 n°70-9). Visuels non contractuels. Voir détails en agence.Cette annonce a été créée et diffusée avec le logiciel VITAHOME.
Nantes
TERRAINPRODUIT RARE – EMPLACEMENT PRIVILÉGIÉDécouvrez une opportunité unique d'acquérir un terrain à bâtir d'exception au cœur de Nantes, dans le prestigieux quartier Schuman.Ce terrain exceptionnel offre une superficie généreuse de 435 mètres carrés, vous permettant de concevoir une résidence sur mesure, à l'image de vos ambitions.Bénéficiez de la proximité immédiate de toutes les commodités offertes par le centre-ville de Nantes : commerces, écoles de renom, transports en commun (tramway, bus), services, et lieux culturels.Pour plus d'informations et pour organiser une présentation de ce bien, veuillez nous contacterPrix : 215000 €.Sur ce terrain de 435 m² à NANTES, Alliance Construction vous propose de réaliser votre projet de construction de maison individuelle.Avec Alliance Construction, habitez une maison spécialement pensée et conçue pour vous et votre famille, prête à décorer, adaptée à vos modes de vie, personnalisée selon vos goûts grâce à un large choix d'options, de matériaux et d'innovations ! Demandez une étude gratuite et personnalisée de votre projet de construction sur ce terrain à NANTES !Contactez Thierry MONLEZUN au (Numéro supprimé) (Alliance Construction – Agence de Nantes Aubinière).Prix hors frais de notaire. Terrain sélectionné par ALLIANCE auprès de nos partenaires fonciers, selon disponibilité, pour la construction d'une maison neuve. Non mandaté pour réaliser la vente (loi du 2 janvier 1970 n°70-9). Visuels non contractuels. Voir détails en agence.Cette annonce a été créée et diffusée avec le logiciel VITAHOME.
Orvault
TERRAINOffre rare à Orvault ! Découvrez ce superbe terrain à bâtir viabilisé, situé dans un cadre idyllique sans vis-à-vis. Ce terrain vous séduira par son environnement boisé et paisible, idéal pour construire la maison de vos rêves.Situé à Orvault, charmante commune proche de Nantes, réputée pour ses espaces verts, ses infrastructures de qualité et son cadre de vie agréable. Orvault offre un excellent compromis entre nature et accessibilité urbaine.Prix : 192000 €.Sur ce terrain de 552 m² à ORVAULT, Alliance Construction vous propose de réaliser votre projet de construction de maison individuelle.Avec Alliance Construction, habitez une maison spécialement pensée et conçue pour vous et votre famille, prête à décorer, adaptée à vos modes de vie, personnalisée selon vos goûts grâce à un large choix d'options, de matériaux et d'innovations ! Demandez une étude gratuite et personnalisée de votre projet de construction sur ce terrain à ORVAULT !Contactez Thierry MONLEZUN au (Numéro supprimé) (Alliance Construction – Agence de Nantes Aubinière).Prix hors frais de notaire. Terrain sélectionné par ALLIANCE auprès de nos partenaires fonciers, selon disponibilité, pour la construction d'une maison neuve. Non mandaté pour réaliser la vente (loi du 2 janvier 1970 n°70-9). Visuels non contractuels. Voir détails en agence.Cette annonce a été créée et diffusée avec le logiciel VITAHOME.
Nantes
TERRAINSaisissez une opportunité unique d'acquérir un terrain à bâtir privilégié dans le quartier prisé de Gachet à Nantes.Ce terrain d'exception entièrement viabilisé vous offre un cadre de vie idyllique, alliant calme absolu et la proximité immédiate des magnifiques bords de l'Erdre.Ce terrain représente une opportunité rare de construire une résidence d'exception dans un environnement unique à Nantes.Pour plus d'informations et pour organiser une découverte de ce lieu privilégié, veuillez nous contacterPrix : 160000 €.Sur ce terrain de 318 m² à NANTES, Alliance Construction vous propose de réaliser votre projet de construction de maison individuelle.Avec Alliance Construction, habitez une maison spécialement pensée et conçue pour vous et votre famille, prête à décorer, adaptée à vos modes de vie, personnalisée selon vos goûts grâce à un large choix d'options, de matériaux et d'innovations ! Demandez une étude gratuite et personnalisée de votre projet de construction sur ce terrain à NANTES !Contactez Thierry MONLEZUN au (Numéro supprimé) (Alliance Construction – Agence de Nantes Aubinière).Prix hors frais de notaire. Terrain sélectionné par ALLIANCE auprès de nos partenaires fonciers, selon disponibilité, pour la construction d'une maison neuve. Non mandaté pour réaliser la vente (loi du 2 janvier 1970 n°70-9). Visuels non contractuels. Voir détails en agence.Cette annonce a été créée et diffusée avec le logiciel VITAHOME.
Orvault
TERRAIN ET MAISONA ORVAULT sur un terrain de 305 m², Alliance Construction vous propose de réaliser votre projet de construction de maison individuelle d'une surface de 107.07 m² habitables avec 4 chambres, à partir de 415500€*Informations du terrain : Envie de vivre à proximité de Nantes tout en profitant d'un environnement calme ? Ce terrain viabilisé, situé à Orvault, est fait pour vous. À quelques minutes des commerces, des écoles et des transports en commun, il vous permettra de concilier vie de famille et déplacements facilités.Demandez une étude gratuite et personnalisée de votre projet de construction !* Cette offre comprend :- Garanties constructeurs (dommages ouvrage, garantie de prix ferme et définitif, garantie de livraison, responsabilité civile et décennale).- Branchements aux compteurs et accès empierré sur 5m linéaires.Habitez une maison spécialement pensée et conçue pour vous et votre famille, prête à décorer, adaptée à vos modes de vie, personnalisée selon vos goûts grâce à un large choix d'options, de matériaux et d'innovations !Contactez Thierry MONLEZUN au (Numéro supprimé) (Alliance Construction – Agence de Nantes Aubinière).*Prix indicatif pour un projet de construction d'une maison individuelle. Ne sont pas inclus les frais de branchements, raccordements aux réseaux publics, frais d'adaptations, aménagements intérieurs et extérieurs et options. terrain viabilisé, frais de notaire non compris, frais divers non compris. Garanties et assurances obligatoires incluses. Terrain sélectionné par ALLIANCE auprès de nos partenaires fonciers, selon disponibilité, pour la construction d'une maison neuve. Non mandaté pour réaliser la vente (loi du 2 janvier 1970 n°70-9). Visuels non contractuels. Voir détails en agence.Cette annonce a été créée et diffusée avec le logiciel VITAHOME.
Orvault
TERRAIN ET MAISONA ORVAULT sur un terrain de 552 m², Alliance Construction vous propose de réaliser votre projet de construction de maison individuelle d'une surface de 95.07 m² habitables avec 3 chambres, à partir de 378800€*Informations du terrain : Offre rare à Orvault ! Découvrez ce superbe terrain à bâtir viabilisé, situé dans un cadre idyllique sans vis-à-vis. Ce terrain vous séduira par son environnement boisé et paisible, idéal pour construire la maison de vos rêves.Situé à Orvault, charmante commune proche de Nantes, réputée pour ses espaces verts, ses infrastructures de qualité et son cadre de vie agréable. Orvault offre un excellent compromis entre nature et accessibilité urbaine.Demandez une étude gratuite et personnalisée de votre projet de construction !* Cette offre comprend :- Garanties constructeurs (dommages ouvrage, garantie de prix ferme et définitif, garantie de livraison, responsabilité civile et décennale).- Branchements aux compteurs et accès empierré sur 5m linéaires.Habitez une maison spécialement pensée et conçue pour vous et votre famille, prête à décorer, adaptée à vos modes de vie, personnalisée selon vos goûts grâce à un large choix d'options, de matériaux et d'innovations !Contactez Thierry MONLEZUN au (Numéro supprimé) (Alliance Construction – Agence de Nantes Aubinière).*Prix indicatif pour un projet de construction d'une maison individuelle. Ne sont pas inclus les frais de branchements, raccordements aux réseaux publics, frais d'adaptations, aménagements intérieurs et extérieurs et options. terrain viabilisé, frais de notaire non compris, frais divers non compris. Garanties et assurances obligatoires incluses. Terrain sélectionné par ALLIANCE auprès de nos partenaires fonciers, selon disponibilité, pour la construction d'une maison neuve. Non mandaté pour réaliser la vente (loi du 2 janvier 1970 n°70-9). Visuels non contractuels. Voir détails en agence.Cette annonce a été créée et diffusée avec le logiciel VITAHOME.
Orvault
TERRAINEnvie de vivre à proximité de Nantes tout en profitant d'un environnement calme ? Ce terrain viabilisé, situé à Orvault, est fait pour vous. À quelques minutes des commerces, des écoles et des transports en commun, il vous permettra de concilier vie de famille et déplacements facilités.Prix : 195000 €.Sur ce terrain de 305 m² à ORVAULT, Alliance Construction vous propose de réaliser votre projet de construction de maison individuelle.Avec Alliance Construction, habitez une maison spécialement pensée et conçue pour vous et votre famille, prête à décorer, adaptée à vos modes de vie, personnalisée selon vos goûts grâce à un large choix d'options, de matériaux et d'innovations ! Demandez une étude gratuite et personnalisée de votre projet de construction sur ce terrain à ORVAULT !Contactez Thierry MONLEZUN au (Numéro supprimé) (Alliance Construction – Agence de Nantes Aubinière).Prix hors frais de notaire. Terrain sélectionné par ALLIANCE auprès de nos partenaires fonciers, selon disponibilité, pour la construction d'une maison neuve. Non mandaté pour réaliser la vente (loi du 2 janvier 1970 n°70-9). Visuels non contractuels. Voir détails en agence.Cette annonce a été créée et diffusée avec le logiciel VITAHOME.
L’actualité immobilière à Saint-Herblain
27/11/2023
02/11/2023
30/10/2023
20/10/2023
16/10/2023
16/10/2023