Maison à construire à Saint-Hilaire-de-Chaléons (44680)
Images
Description
VENTE : maison T6 (120 m²) à Saint-Hilaire-de-Chaléons
EMPLACEMENT PRIVILÉGIÉ - MAISON 6 PIÈCES NEUVE
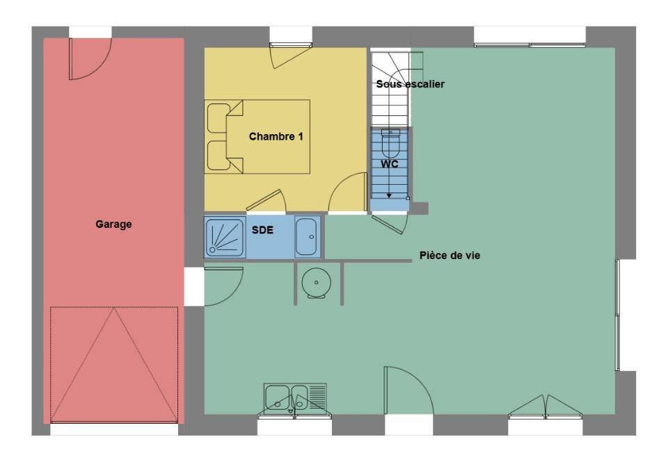
À 14 km de l'océan Atlantique et à quelques kilomètres de Nantes, notre agence Maisons de l'Avenir Orvault est ravie de vous présenter cette maison de 6 pièces de 120 m² et de 425 m² de terrain à vendre bénéficiant d'un emplacement privilégié dans Saint-Hilaire-de-Chaléons (44680).
Il s'agit d'une maison de 2 niveaux. Elle se divise en cinq chambres, une cuisine et deux salles de bains. La maison est neuve.
Cette maison est située dans un secteur attractif. Il y a l'École Primaire Privée Sainte Thérèse et l'École Primaire Publique Raymond Devos à moins de 10 minutes à pied. Niveau transports en commun, on trouve la gare Saint-Hilaire-de-Chaléons dans les alentours. Il y a deux commerces, une boulangerie, une épicerie et une boucherie-charcuterie à proximité de la maison.
Elle est à vendre pour la somme de 337 000 €.
Contactez Jean-Baptiste ((Numéro supprimé)) pour toute information sur la maison, sur les modalités de vente ou sur les démarches à suivre.
Logement susceptibles de vous intéresser
Nous vous proposons de découvrir aussi cette sélection de logements situés à moins de 10km de Saint-Hilaire-de-Chaléons et qui seraient susceptibles de vous intéresser.
Chaumes-en-Retz
TERRAIN ET MAISONA CHEMERE sur un terrain de 375 m², Alliance Construction vous propose de réaliser votre projet de construction de maison individuelle d'une surface de 67.6 m² habitables avec 2 chambres, à partir de 196241€*Demandez une étude gratuite et personnalisée de votre projet de construction !* Cette offre comprend :- Garanties constructeurs (dommages ouvrage, garantie de prix ferme et définitif, garantie de livraison, responsabilité civile et décennale).- Branchements aux compteurs et accès empierré sur 5m linéaires.Habitez une maison spécialement pensée et conçue pour vous et votre famille, prête à décorer, adaptée à vos modes de vie, personnalisée selon vos goûts grâce à un large choix d'options, de matériaux et d'innovations !Contactez Laurent LASSIMONNE au (Numéro supprimé) (Alliance Construction – Agence de Vallet).*Prix indicatif pour un projet de construction d'une maison individuelle. Ne sont pas inclus les frais de branchements, raccordements aux réseaux publics, frais d'adaptations, aménagements intérieurs et extérieurs et options. terrain non viabilisé, frais de notaire non compris, frais divers non compris. Garanties et assurances obligatoires incluses. Terrain sélectionné par ALLIANCE auprès de nos partenaires fonciers, selon disponibilité, pour la construction d'une maison neuve. Non mandaté pour réaliser la vente (loi du 2 janvier 1970 n°70-9). Visuels non contractuels. Voir détails en agence.Cette annonce a été créée et diffusée avec le logiciel VITAHOME.
Rouans
TERRAIN ET MAISONA ROUANS sur un terrain de 680 m², Alliance Construction vous propose de réaliser votre projet de construction de maison individuelle d'une surface de 87.91 m² habitables avec 3 chambres, à partir de 243154€*Demandez une étude gratuite et personnalisée de votre projet de construction !* Cette offre comprend :- Garanties constructeurs (dommages ouvrage, garantie de prix ferme et définitif, garantie de livraison, responsabilité civile et décennale).- Branchements aux compteurs et accès empierré sur 5m linéaires.Habitez une maison spécialement pensée et conçue pour vous et votre famille, prête à décorer, adaptée à vos modes de vie, personnalisée selon vos goûts grâce à un large choix d'options, de matériaux et d'innovations !Contactez Laurent LASSIMONNE au (Numéro supprimé) (Alliance Construction – Agence de Vallet).*Prix indicatif pour un projet de construction d'une maison individuelle. Ne sont pas inclus les frais de branchements, raccordements aux réseaux publics, frais d'adaptations, aménagements intérieurs et extérieurs et options. terrain viabilisé, frais de notaire non compris, frais divers non compris. Garanties et assurances obligatoires incluses. Terrain sélectionné par ALLIANCE auprès de nos partenaires fonciers, selon disponibilité, pour la construction d'une maison neuve. Non mandaté pour réaliser la vente (loi du 2 janvier 1970 n°70-9). Visuels non contractuels. Voir détails en agence.Cette annonce a été créée et diffusée avec le logiciel VITAHOME.
Chaumes-en-Retz
TERRAINPrix : 52000 €.Sur ce terrain de 269 m² à ARTHON-EN-RETZ, Alliance Construction vous propose de réaliser votre projet de construction de maison individuelle.Avec Alliance Construction, habitez une maison spécialement pensée et conçue pour vous et votre famille, prête à décorer, adaptée à vos modes de vie, personnalisée selon vos goûts grâce à un large choix d'options, de matériaux et d'innovations ! Demandez une étude gratuite et personnalisée de votre projet de construction sur ce terrain à ARTHON-EN-RETZ !Contactez Laurent LASSIMONNE au (Numéro supprimé) (Alliance Construction – Agence de Vallet).Prix hors frais de notaire. Terrain sélectionné par ALLIANCE auprès de nos partenaires fonciers, selon disponibilité, pour la construction d'une maison neuve. Non mandaté pour réaliser la vente (loi du 2 janvier 1970 n°70-9). Visuels non contractuels. Voir détails en agence.Cette annonce a été créée et diffusée avec le logiciel VITAHOME.
Chaumes-en-Retz
TERRAINPrix : 74000 €.Sur ce terrain de 375 m² à CHEMERE, Alliance Construction vous propose de réaliser votre projet de construction de maison individuelle.Avec Alliance Construction, habitez une maison spécialement pensée et conçue pour vous et votre famille, prête à décorer, adaptée à vos modes de vie, personnalisée selon vos goûts grâce à un large choix d'options, de matériaux et d'innovations ! Demandez une étude gratuite et personnalisée de votre projet de construction sur ce terrain à CHEMERE !Contactez Laurent LASSIMONNE au (Numéro supprimé) (Alliance Construction – Agence de Vallet).Prix hors frais de notaire. Terrain sélectionné par ALLIANCE auprès de nos partenaires fonciers, selon disponibilité, pour la construction d'une maison neuve. Non mandaté pour réaliser la vente (loi du 2 janvier 1970 n°70-9). Visuels non contractuels. Voir détails en agence.Cette annonce a été créée et diffusée avec le logiciel VITAHOME.
Rouans
TERRAINPrix : 85000 €.Sur ce terrain de 680 m² à ROUANS, Alliance Construction vous propose de réaliser votre projet de construction de maison individuelle.Avec Alliance Construction, habitez une maison spécialement pensée et conçue pour vous et votre famille, prête à décorer, adaptée à vos modes de vie, personnalisée selon vos goûts grâce à un large choix d'options, de matériaux et d'innovations ! Demandez une étude gratuite et personnalisée de votre projet de construction sur ce terrain à ROUANS !Contactez Laurent LASSIMONNE au (Numéro supprimé) (Alliance Construction – Agence de Vallet).Prix hors frais de notaire. Terrain sélectionné par ALLIANCE auprès de nos partenaires fonciers, selon disponibilité, pour la construction d'une maison neuve. Non mandaté pour réaliser la vente (loi du 2 janvier 1970 n°70-9). Visuels non contractuels. Voir détails en agence.Cette annonce a été créée et diffusée avec le logiciel VITAHOME.
Port-Saint-Père
TERRAINPrix : 93000 €.Sur ce terrain de 375 m² à PORT-SAINT-PERE, Alliance Construction vous propose de réaliser votre projet de construction de maison individuelle.Avec Alliance Construction, habitez une maison spécialement pensée et conçue pour vous et votre famille, prête à décorer, adaptée à vos modes de vie, personnalisée selon vos goûts grâce à un large choix d'options, de matériaux et d'innovations ! Demandez une étude gratuite et personnalisée de votre projet de construction sur ce terrain à PORT-SAINT-PERE !Contactez Laurent LASSIMONNE au (Numéro supprimé) (Alliance Construction – Agence de Vallet).Prix hors frais de notaire. Terrain sélectionné par ALLIANCE auprès de nos partenaires fonciers, selon disponibilité, pour la construction d'une maison neuve. Non mandaté pour réaliser la vente (loi du 2 janvier 1970 n°70-9). Visuels non contractuels. Voir détails en agence.Cette annonce a été créée et diffusée avec le logiciel VITAHOME.
Rouans
TERRAIN ET MAISONDans le bourg de Rouans, terrain de 463 m² viabilisé. Pensée pour offrir un cadre de vie harmonieux, cette maison séduit par son agencement optimisé et ses espaces lumineux. En entrant, vous découvrez une grande pièce de vie où le salon et la salle à manger s’ouvrent sur l’extérieur, créant un lieu convivial et chaleureux. La cuisine, fonctionnelle et moderne, est conçue pour allier praticité et esthétisme. L’espace nuit se compose de trois belles chambres, chacune offrant un cadre apaisant et propice au repos. Une salle de bain élégante et bien agencée facilite le quotidien, tandis que des rangements astucieux permettent de garder un intérieur toujours organisé. Pratique, moderne et confortable, cette maison n’attend plus que vous !. Pour vous assurer un confort de vie optimal et en conformité avec la RE2025, nous avons opté pour un système de chauffage par pompe à chaleur (PAC) avec plancher chauffant au rez-de-chaussée et radiateurs à l’étage. Le logement est également équipé de volets roulants électriques. . Prix hors fourniture et pose : des appareils sanitaires (sauf système de chauffage et d'eau chaude sanitaire), du carrelage et de la faïence, des revêtements de sol dans les chambres. Hors décoration et aménagement intérieur et peinture. Hors raccordements, frais de notaire et dommage ouvrage. // Réf. : 697-210812-MVR. Prix terrain : 84 000 €, hors frais d'agence à la charge de l'acquéreur. Ce terrain vous est proposé, par nos partenaires fonciers, dans le cadre d'un projet de construction avec nous. Les informations sur les risques auxquels ce bien est exposé sont disponibles sur le site Géorisques (www.georisques.gouv.fr). Prix maison : 133 869 €.
Rouans
TERRAIN ET MAISONDans le bourg de Rouans, terrain de 463 m² viabilisé. Des espaces optimisés pour cette charmante maison de plain-pied lumineuse grâce à son espace de vie éclairé par sa grande baie vitrée et sa lumière traversante, cuisine ouverte avec accès direct au cellier. Côté nuit, un dégagement dessert trois chambres avec rangement, salle de bains et wc indépendant. Pour vous assurer un confort de vie et conformément à la RE2025, nous avons choisi un mode de chauffage par PAC + plancher chauffant, volets roulants électriques. Prix hors fourniture et pose : des appareils sanitaires (sauf système de chauffage et d'eau chaude sanitaire), du carrelage et de la faïence, des revêtements de sol dans les chambres. Hors décoration et aménagement intérieur et peinture. Hors raccordements, frais de notaire et dommage ouvrage. // Réf. : 996-210812-MVR. Prix terrain : 84 000 €, hors frais d'agence à la charge de l'acquéreur. Ce terrain vous est proposé, par nos partenaires fonciers, dans le cadre d'un projet de construction avec nous. Les informations sur les risques auxquels ce bien est exposé sont disponibles sur le site Géorisques (www.georisques.gouv.fr). Prix maison : 118 004 €.
Rouans
TERRAIN ET MAISONDans le bourg de Rouans, terrain de 463 m² viabilisé. Spacieuse et fonctionnelle, cette maison traditionnelle de plain-pied est dotée d'un grand espace de vie de 40 m² environ avec cuisine ouverte, très lumineux inondé de lumière grâce à ses grandes ouvertures. Un dégagement dessert trois chambres, une salle de bains. Le garage intégré communiquant avec le cellier se révélera un plus pour cette charmante maison. Pour vous assurer un confort de vie et conformément à la RE2025, nous avons choisi un mode de chauffage par PAC + plancher chauffant, volets roulants électriques. Prix hors fourniture et pose : des appareils sanitaires (sauf système de chauffage et d'eau chaude sanitaire), du carrelage et de la faïence, des revêtements de sol dans les chambres. Hors décoration et aménagement intérieur et peinture. Hors raccordements, frais de notaire et dommage ouvrage. // Réf. : 1140-210812-MVR. Prix terrain : 84 000 €, hors frais d'agence à la charge de l'acquéreur. Ce terrain vous est proposé, par nos partenaires fonciers, dans le cadre d'un projet de construction avec nous. Les informations sur les risques auxquels ce bien est exposé sont disponibles sur le site Géorisques (www.georisques.gouv.fr). Prix maison : 135 500 €.
L’actualité immobilière à Saint-Hilaire-de-Chaléons
27/11/2023
02/11/2023
30/10/2023
20/10/2023
16/10/2023
16/10/2023