Maison à construire à Saint-Lyphard (44410)
Images
Description
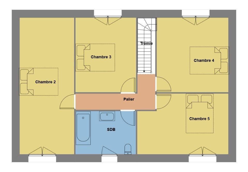
Maison T6 (140 m²) en vente à Saint-Lyphard
IDÉALEMENT SITUÉE - MAISON 6 PIÈCES NEUVE
À 12 km de l'océan Atlantique et à 14 km de Saint-Nazaire, notre agence Maisons de l'Avenir Orvault est heureuse de vous présenter cette maison de 6 pièces de 140 m² et de 613 m² de terrain à vendre idéalement située dans Saint-Lyphard (44410).
C'est une maison de 2 niveaux. Elle compte cinq chambres, une cuisine et deux salles de bains. Cette maison est neuve.
La maison se situe dans un quartier attractif. L'École Primaire Privée Sainte Anne et l'École Primaire Publique les Roselières se trouvent à moins de 10 minutes à pied. Les nationales N165 et N171 sont accessibles à moins de 13 km. Il y a un tennis, deux commerces, deux boulangeries, deux épiceries et un bureau de poste à proximité de la maison.
Elle est à vendre pour la somme de 411 500 €.
N'hésitez pas à prendre contact avec Jean-Baptiste ((Numéro supprimé)) pour tout renseignement sur le bien ou sur les démarches à suivre. Maisons de l'Avenir Orvault est là pour vous accompagner dans tous vos projets immobiliers.
Logement susceptibles de vous intéresser
Nous vous proposons de découvrir aussi cette sélection de logements situés à moins de 10km de Saint-Lyphard et qui seraient susceptibles de vous intéresser.
Saint-Molf
TERRAIN44350 – GUERANDE – CENTRE VILLE – TERRAIN – 384.0 m² – TERRAIN VIABILISÉ PROCHE DU CENTRE HISTORIQUEEfficity, l’agence qui estime votre bien en ligne, vous propose ce superbe terrain situé au cœur de Guérande, dans un quartier calme et résidentiel.Idéalement placé, ce terrain de 384.0 m² est viabilisé et prêt à accueillir votre projet de construction. Sa proximité immédiate avec le centre historique et toutes les commodités (Commerces, structures médicales, transports en commun ….) en fait un emplacement recherché.Facilement accessible en transports en commun grâce aux lignes de bus et aux taxis à proximité, vous pourrez vous déplacer en toute simplicité.Vous serez séduit par l’environnement paisible et la qualité de vie offerte par ce quartier prisé. Commerces et services à la personne à proximité. Ne manquez pas cette occasion unique de construire la maison de vos rêves dans un cadre exceptionnel.Rappelons que la commune de Guérande est située à 10 minutes de la côte permettant un accès rapide aux communes de La Baule, Piriac-sur-Mer ou Le Croisic.Pour plus d’informations, contactez (‘Grégory’, ‘Ronseaux’) chez efficity, votre consultant immobilier. Les informations sur les risques auxquels ce bien est exposé sont disponibles sur le site Georisque : georisques. gouv. fr Grégory Ronseaux – EI – est Agent Commercial mandataire en immobilier, immatriculé au Registre Spécial des Agents Commerciaux du Tribunal de Commerce de Vannes sous le n(Numéro supprimé).Siège social du mandant : effiCity, 48 avenue de Villiers – 75017 PARIS – Société par Actions Simplifiée, société au capital de 132 373,05 euros, immatriculée au RCS Paris 497 617 746 et titulaire de la Carte professionnelle CPI 7501 2015 000 002 025 – CCI Paris IDF – Caisse de Garantie : GALIAN Assurances 89 rue de la Boétie 75008 Paris
Guérande
TERRAIN ET MAISONVous rêvez d’un jardin paysager, une cuisine avec ilot centrale, parquet dans les chambres… Faites construire, vous pourrez choisir !Alliance vous propose un de ses modèles de maison sur-mesure sur un terrain de 421 m² à partir de 333541€* (hors frais supplémentaires et selon disponibilité de notre partenaire foncier.)Découvrez tous nos modèles de maisons sur notre site internet ou appelez nous pour réaliser votre projet entièrement sur-mesure.Contactez Benoit COCHIN au (Numéro supprimé) (Alliance Construction – Agence de Pontchâteau).*Prix indicatif pour un projet de construction d'une maison individuelle. Ne sont pas inclus les frais de branchements, raccordements aux réseaux publics, frais d'adaptations, aménagements intérieurs et extérieurs et options. terrain viabilisé, frais de notaire non compris, frais divers non compris. Garanties et assurances obligatoires incluses. Terrain sélectionné par ALLIANCE auprès de nos partenaires fonciers, selon disponibilité, pour la construction d'une maison neuve. Non mandaté pour réaliser la vente (loi du 2 janvier 1970 n°70-9). Visuels non contractuels. Voir détails en agence.Cette annonce a été créée et diffusée avec le logiciel VITAHOME.
Guérande
TERRAIN ET MAISONA GUERANDE sur un terrain de 421 m², Alliance Construction vous propose de réaliser votre projet de construction de maison individuelle d'une surface de 107.07 m² habitables avec 4 chambres, à partir de 406780€*Informations du terrain : Situé à deux pas des rempartsProche des commodités entièrement viabiliséDemandez une étude gratuite et personnalisée de votre projet de construction !* Cette offre comprend :- Garanties constructeurs (dommages ouvrage, garantie de prix ferme et définitif, garantie de livraison, responsabilité civile et décennale).- Branchements aux compteurs et accès empierré sur 5m linéaires.Habitez une maison spécialement pensée et conçue pour vous et votre famille, prête à décorer, adaptée à vos modes de vie, personnalisée selon vos goûts grâce à un large choix d'options, de matériaux et d'innovations !Contactez Benoit COCHIN au (Numéro supprimé) (Alliance Construction – Agence de Pontchâteau).*Prix indicatif pour un projet de construction d'une maison individuelle. Ne sont pas inclus les frais de branchements, raccordements aux réseaux publics, frais d'adaptations, aménagements intérieurs et extérieurs et options. terrain viabilisé, frais de notaire non compris, frais divers non compris. Garanties et assurances obligatoires incluses. Terrain sélectionné par ALLIANCE auprès de nos partenaires fonciers, selon disponibilité, pour la construction d'une maison neuve. Non mandaté pour réaliser la vente (loi du 2 janvier 1970 n°70-9). Visuels non contractuels. Voir détails en agence.Cette annonce a été créée et diffusée avec le logiciel VITAHOME.
Guérande
TERRAIN ET MAISONNouveau sur GUERANDE et idéalement situé, ce modèle ALLIANCE propose 5 pièces avec séjour-salon, cuisine, 4 chambres, garage sur un terrain 421 m². A partir de 396601€*. Bénéficiez d’une maison certifiée NF Habitat et d’un patrimoine valorisé ! (Titulaire NF Habitat N°49-13-0182-A). Habitez une maison spécialement pensée et conçue pour vous et votre famille, prête à décorer, adaptée à votre mode de vie, personnalisée selon vos goûts grâce à un large choix d’options, de matériaux et d’innovations ! – Cuisine aménagée – équipée sur mesure (conception de plans et pose) – Maison connectée Somfy / Deltadore – Volets roulants électriques et connectés – Verrières, dressing et portes de placards Coulidoor – Chauffage intégré air/air silencieux et réversible Aldes – Portes intérieures matricées Huet – Carrelage grès cérame plein masse Porcelanosa – Faïence jusqu’à 30×90 – Placo Activ’Air – Revêtements de sols Quick Step – Sanitaires Jacob Delafond – Interrupteurs Schneider Unica – Plans PMR – Géobiologie – Feng Shui – Coaching déco – Architecture d’intérieureContactez Benoit COCHIN au (Numéro supprimé) (Alliance Construction – Agence de Pontchâteau).*Prix indicatif pour un projet de construction d'une maison individuelle. Ne sont pas inclus les frais de branchements, raccordements aux réseaux publics, frais d'adaptations, aménagements intérieurs et extérieurs et options. terrain viabilisé, frais de notaire non compris, frais divers non compris. Garanties et assurances obligatoires incluses. Terrain sélectionné par ALLIANCE auprès de nos partenaires fonciers, selon disponibilité, pour la construction d'une maison neuve. Non mandaté pour réaliser la vente (loi du 2 janvier 1970 n°70-9). Visuels non contractuels. Voir détails en agence.Cette annonce a été créée et diffusée avec le logiciel VITAHOME.
Guérande
TERRAINSitué à deux pas des rempartsProche des commodités entièrement viabiliséPrix : 185900 €.Sur ce terrain de 421 m² à GUERANDE, Alliance Construction vous propose de réaliser votre projet de construction de maison individuelle.Avec Alliance Construction, habitez une maison spécialement pensée et conçue pour vous et votre famille, prête à décorer, adaptée à vos modes de vie, personnalisée selon vos goûts grâce à un large choix d'options, de matériaux et d'innovations ! Demandez une étude gratuite et personnalisée de votre projet de construction sur ce terrain à GUERANDE !Contactez Benoit COCHIN au (Numéro supprimé) (Alliance Construction – Agence de Pontchâteau).Prix hors frais de notaire. Terrain sélectionné par ALLIANCE auprès de nos partenaires fonciers, selon disponibilité, pour la construction d'une maison neuve. Non mandaté pour réaliser la vente (loi du 2 janvier 1970 n°70-9). Visuels non contractuels. Voir détails en agence.Cette annonce a été créée et diffusée avec le logiciel VITAHOME.
Saint-Lyphard
TERRAINIdéalement situé à mi-distance entre Saint-Lyphard et Guérande, ce terrain de 340 m² vous offrira un cadre de vie d'exception, profitant au quotidien du parc naturel régional de Brière, de la proximité avec toutes les commodités et des premières plages à seulement 15 km.Prix : 86000 €.Sur ce terrain de 340 m² à SAINT-LYPHARD, Alliance Construction vous propose de réaliser votre projet de construction de maison individuelle.Avec Alliance Construction, habitez une maison spécialement pensée et conçue pour vous et votre famille, prête à décorer, adaptée à vos modes de vie, personnalisée selon vos goûts grâce à un large choix d'options, de matériaux et d'innovations ! Demandez une étude gratuite et personnalisée de votre projet de construction sur ce terrain à SAINT-LYPHARD !Contactez Benoit COCHIN au (Numéro supprimé) (Alliance Construction – Agence de Pontchâteau).Prix hors frais de notaire. Terrain sélectionné par ALLIANCE auprès de nos partenaires fonciers, selon disponibilité, pour la construction d'une maison neuve. Non mandaté pour réaliser la vente (loi du 2 janvier 1970 n°70-9). Visuels non contractuels. Voir détails en agence.Cette annonce a été créée et diffusée avec le logiciel VITAHOME.
La Baule-Escoublac
TERRAINBelle opportunité Situé à 3,5 km du bourg d'Escoublac et de toutes ses commodités.Terrain en second rideauPrix : 265000 €.Sur ce terrain de 805 m² à LA BAULE-ESCOUBLAC, Alliance Construction vous propose de réaliser votre projet de construction de maison individuelle.Avec Alliance Construction, habitez une maison spécialement pensée et conçue pour vous et votre famille, prête à décorer, adaptée à vos modes de vie, personnalisée selon vos goûts grâce à un large choix d'options, de matériaux et d'innovations ! Demandez une étude gratuite et personnalisée de votre projet de construction sur ce terrain à LA BAULE-ESCOUBLAC !Contactez Benoit COCHIN au (Numéro supprimé) (Alliance Construction – Agence de Pontchâteau).Prix hors frais de notaire. Terrain sélectionné par ALLIANCE auprès de nos partenaires fonciers, selon disponibilité, pour la construction d'une maison neuve. Non mandaté pour réaliser la vente (loi du 2 janvier 1970 n°70-9). Visuels non contractuels. Voir détails en agence.Cette annonce a été créée et diffusée avec le logiciel VITAHOME.
La Baule-Escoublac
TERRAIN ET MAISONA LA BAULE-ESCOUBLAC sur un terrain de 805 m², Alliance Construction vous propose de réaliser votre projet de construction de maison individuelle d'une surface de 71.3 m² habitables avec 2 chambres, à partir de 434641€*Informations du terrain : Belle opportunité Situé à 3,5 km du bourg d'Escoublac et de toutes ses commodités.Terrain en second rideauDemandez une étude gratuite et personnalisée de votre projet de construction !* Cette offre comprend :- Garanties constructeurs (dommages ouvrage, garantie de prix ferme et définitif, garantie de livraison, responsabilité civile et décennale).- Branchements aux compteurs et accès empierré sur 5m linéaires.Habitez une maison spécialement pensée et conçue pour vous et votre famille, prête à décorer, adaptée à vos modes de vie, personnalisée selon vos goûts grâce à un large choix d'options, de matériaux et d'innovations !Contactez Benoit COCHIN au (Numéro supprimé) (Alliance Construction – Agence de Pontchâteau).*Prix indicatif pour un projet de construction d'une maison individuelle. Ne sont pas inclus les frais de branchements, raccordements aux réseaux publics, frais d'adaptations, aménagements intérieurs et extérieurs et options. viabilisation comprise, frais de notaire non compris, frais divers non compris. Garanties et assurances obligatoires incluses. Terrain sélectionné par ALLIANCE auprès de nos partenaires fonciers, selon disponibilité, pour la construction d'une maison neuve. Non mandaté pour réaliser la vente (loi du 2 janvier 1970 n°70-9). Visuels non contractuels. Voir détails en agence.Cette annonce a été créée et diffusée avec le logiciel VITAHOME.
Guérande
TERRAIN ET MAISONA GUERANDE sur un terrain de 421 m², Alliance Construction vous propose de réaliser votre projet de construction de maison individuelle d'une surface de 80.57 m² habitables avec 3 chambres, à partir de 337549€*Informations du terrain : Situé à deux pas des rempartsProche des commodités entièrement viabiliséDemandez une étude gratuite et personnalisée de votre projet de construction !* Cette offre comprend :- Garanties constructeurs (dommages ouvrage, garantie de prix ferme et définitif, garantie de livraison, responsabilité civile et décennale).- Branchements aux compteurs et accès empierré sur 5m linéaires.Habitez une maison spécialement pensée et conçue pour vous et votre famille, prête à décorer, adaptée à vos modes de vie, personnalisée selon vos goûts grâce à un large choix d'options, de matériaux et d'innovations !Contactez Benoit COCHIN au (Numéro supprimé) (Alliance Construction – Agence de Pontchâteau).*Prix indicatif pour un projet de construction d'une maison individuelle. Ne sont pas inclus les frais de branchements, raccordements aux réseaux publics, frais d'adaptations, aménagements intérieurs et extérieurs et options. terrain viabilisé, frais de notaire non compris, frais divers non compris. Garanties et assurances obligatoires incluses. Terrain sélectionné par ALLIANCE auprès de nos partenaires fonciers, selon disponibilité, pour la construction d'une maison neuve. Non mandaté pour réaliser la vente (loi du 2 janvier 1970 n°70-9). Visuels non contractuels. Voir détails en agence.Cette annonce a été créée et diffusée avec le logiciel VITAHOME.
L’actualité immobilière à Saint-Lyphard
27/11/2023
02/11/2023
30/10/2023
20/10/2023
16/10/2023
16/10/2023