Images
Description
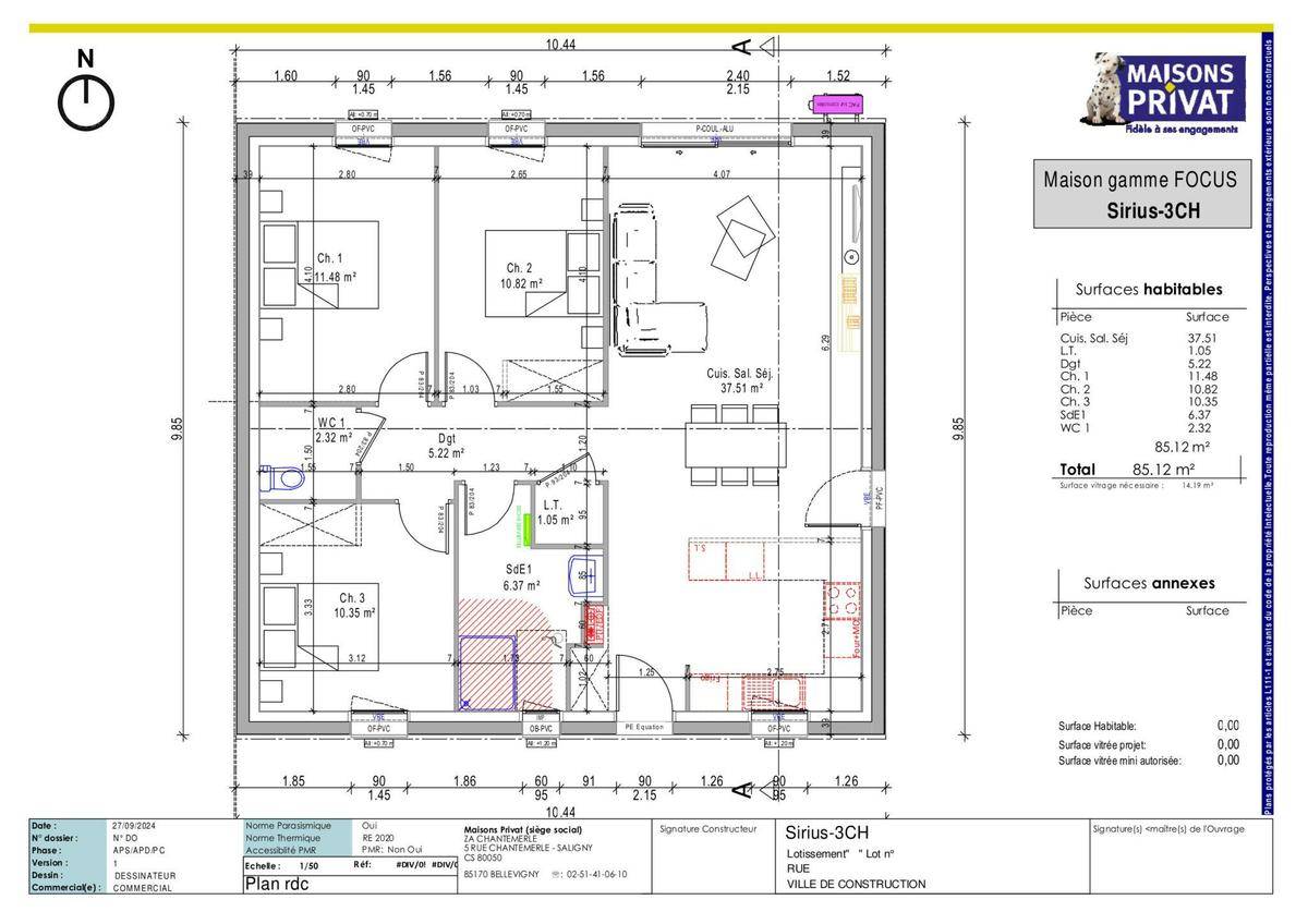
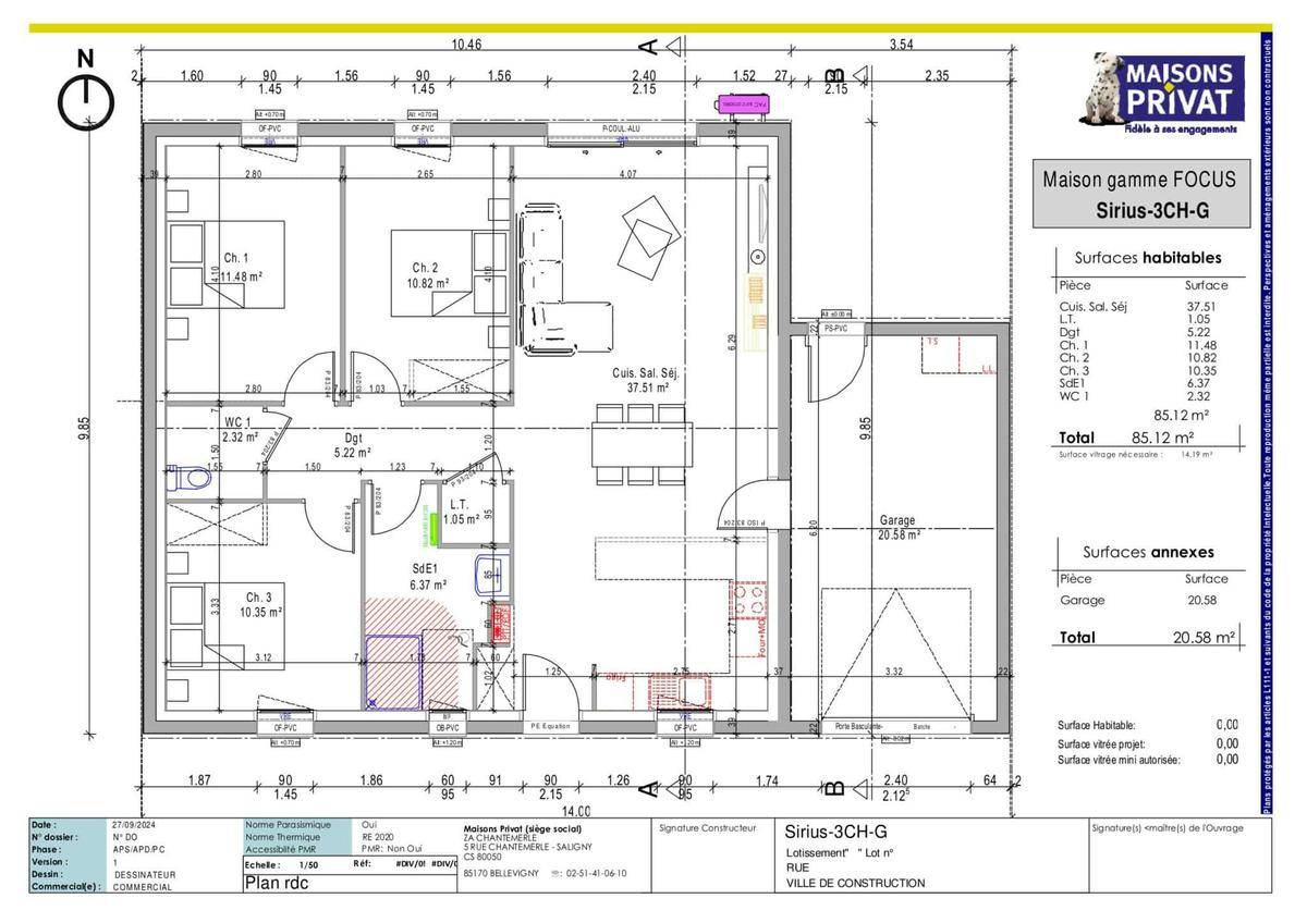
Sur ce terrain, nous vous proposons cette superbe maison de plain-pied au plan optimisé, pensée pour offrir confort et convivialité à toute la famille. Passé l’entrée, vous serez immédiatement séduit par une vaste pièce de vie baignée de lumière, où se côtoient salon, salle à manger et cuisine ouverte, idéale pour partager des moments chaleureux au quotidien.
Côté nuit, trois chambres spacieuses et lumineuses vous attendent, chacune permettant d’installer rangements et bureau selon vos envies. Une salle de bain moderne, un WC complètent cet agencement astucieux, facilitant l’organisation de la vie de famille.
Atout pratique : Un garage attenant de près de 21 m² permet de stationner votre véhicule en toute sécurité, tout en laissant de la place pour un atelier ou du rangement supplémentaire.
Moderne, fonctionnelle et pensée pour un confort optimal, cette maison saura répondre à toutes vos attentes. N’attendez plus pour venir la découvrir et laissez-vous séduire par son agencement harmonieux !
Logement susceptibles de vous intéresser
Nous vous proposons de découvrir aussi cette sélection de logements situés à moins de 10km de Saint-Mars-du-Désert et qui seraient susceptibles de vous intéresser.
Sucé-sur-Erdre
TERRAIN ET MAISONBelle parcelle de 484m² dans le bourg de Sucé sur Erdre. Viabilisé, au bout d'une petite impasse, terrain exposé sud. Vous rêvez d'une maison évolutive qui s'adapte à vos besoins et à votre budget ? La gamme Evoliâ est faite pour vous. Avec Evoliâ, vous pouvez commencer petit et imaginer grand, en transformant votre espace de vie au fil du temps. Imaginez transformer votre maison une chambre en une spacieuse maison trois chambres. Grâce à notre solution innovante, le garage de 28 m² devient un atout majeur. Il peut être aménagé en une ou deux chambres supplémentaires, selon vos besoins. Cette flexibilité vous permet d'agrandir votre maison sans les contraintes d'un déménagement, en maximisant chaque mètre carré. Prix hors fourniture et pose : des appareils sanitaires (sauf système de chauffage et d'eau chaude sanitaire), du carrelage, de la faïence, de la cuisine aménagée, des revêtements de sol dans les chambres. Hors décoration, aménagement intérieur, peinture, raccordements, frais de notaire et dommage ouvrage. (Surface habitable 49 m²+garage 28 m²). // Réf. : 2591-210807-PAL. Prix terrain : 230 000 €, hors frais d'agence à la charge de l'acquéreur. Ce terrain vous est proposé, par nos partenaires fonciers, dans le cadre d'un projet de construction avec nous. Les informations sur les risques auxquels ce bien est exposé sont disponibles sur le site Géorisques (www.georisques.gouv.fr). Prix maison : 95 671 €.
Sucé-sur-Erdre
TERRAIN ET MAISONBelle parcelle de 484m² dans le bourg de Sucé sur Erdre. Viabilisé, au bout d'une petite impasse, terrain exposé sud. Une maison spacieuse et fonctionnelle, idéale pour toute la famille ! Avec son design moderne et son agencement optimisé, cette maison offre un cadre de vie agréable et lumineux, parfait pour répondre aux besoins de chacun. Au rez-de-chaussée, vous profitez d’un vaste espace de vie ouvert, alliant salon, salle à manger et cuisine dans une atmosphère chaleureuse et conviviale. Un cellier pratique facilite l’organisation et le rangement du quotidien. La suite parentale avec dressing et salle d’eau privative garantit un confort optimal aux parents, offrant un véritable espace d’intimité. À l’étage, trois belles chambres bien réparties permettent à toute la famille de disposer de son propre cocon. Une grande salle de bain et un WC indépendant complètent cet étage pour plus de praticité. Une maison élégante, confortable et pensée pour s’adapter aux modes de vie modernes !. Pour vous assurer un confort de vie optimal et en conformité avec la RE2025, nous avons opté pour un système de chauffage par pompe à chaleur (PAC) avec plancher chauffant au rez-de-chaussée et radiateurs à l’étage. Le logement est également équipé de volets roulants électriques. Prix hors fourniture et pose : des appareils sanitaires (sauf système de chauffage et d'eau chaude sanitaire), du carrelage et de la faïence, des revêtements de sol dans les chambres. Hors décoration et aménagement intérieur et peinture. Hors raccordements, frais de notaire et dommage ouvrage. // Réf. : 1485-210807-PAL. Prix terrain : 230 000 €, hors frais d'agence à la charge de l'acquéreur. Ce terrain vous est proposé, par nos partenaires fonciers, dans le cadre d'un projet de construction avec nous. Les informations sur les risques auxquels ce bien est exposé sont disponibles sur le site Géorisques (www.georisques.gouv.fr). Prix maison : 181 503 €.
Sucé-sur-Erdre
TERRAIN ET MAISONBelle parcelle de 484m² dans le bourg de Sucé sur Erdre. Viabilisé, au bout d'une petite impasse, terrain exposé sud. Cette charmante maison de plain fonctionnelle vous séduira par le volume et la clarté de sa pièce de vie très lumineuse grâce à ses ouvertures, une cuisine ouverte sur le séjour vous permettra de profiter de bons moments en famille et vous offre un accès direct au cellier et au garage. Du côté de l’espace nuit, une suite parentale avec salle d’eau privative et dressing, deux chambres avec rangements et une salle de bains avec baignoire, wc séparés. Pour vous assurer un confort de vie et conformément à la RE2025, nous avons choisi un mode de chauffage par PAC + plancher chauffant, volets roulants électriques. Pour vous assurer un confort de vie et conformément à la RE2025, nous avons choisi un mode de chauffage par PAC + plancher chauffant, volets roulants électriques. Prix hors fourniture et pose : des appareils sanitaires (sauf système de chauffage et d'eau chaude sanitaire), du carrelage et de la faïence, des revêtements de sol dans les chambres. Hors décoration et aménagement intérieur et peinture. Hors raccordements, frais de notaire et dommage ouvrage. // Réf. : 1401-210807-PAL. Prix terrain : 230 000 €, hors frais d'agence à la charge de l'acquéreur. Ce terrain vous est proposé, par nos partenaires fonciers, dans le cadre d'un projet de construction avec nous. Les informations sur les risques auxquels ce bien est exposé sont disponibles sur le site Géorisques (www.georisques.gouv.fr). Prix maison : 153 789 €.
Casson
TERRAIN ET MAISONDans le bourg de Casson, proche de l'école. 329m², bien exposé ce terrain est viabilisé. . Fonctionnelle et lumineuse, cette maison de plain-pied vous propose un espace de vie de plus de 42 m²ouvert sur le jardin et sa cuisine ouverte aménagée avec un accès direct au cellier et à son garage intégré. La partie nuit est composée de trois chambres avec rangement, une salle de bain et wc indépendantPour vous assurer un confort de vie et conformément à la RE2025, nous avons choisi un mode de chauffage par PAC + plancher chauffant, volets roulants électriques. Prix hors fourniture et pose : des appareils sanitaires (sauf système de chauffage et d'eau chaude sanitaire), du carrelage et de la faïence, des revêtements de sol dans les chambres. Hors décoration et aménagement intérieur et peinture. Hors raccordements, frais de notaire et dommage ouvrage. // Réf. : 1213-210806-PAL. Prix terrain : 95 000 €, hors frais d'agence à la charge de l'acquéreur. Ce terrain vous est proposé, par nos partenaires fonciers, dans le cadre d'un projet de construction avec nous. Les informations sur les risques auxquels ce bien est exposé sont disponibles sur le site Géorisques (www.georisques.gouv.fr). Prix maison : 138 955 €.
Casson
TERRAIN ET MAISONDans le bourg de Casson, proche de l'école. 329m², bien exposé ce terrain est viabilisé. . Vous serez séduits par la luminosité qui se dégage de cette maison de plain-pied qui vous propose un espace de vie spacieux de 46 m² environ ouvert sur le jardin avec un coin cuisine aménagée. Trois belles chambres avec rangements, une salle de bains et wc indépendant. Le plus pour cette maison fonctionnelle, un cellier et un garage intégréPour vous assurer un confort de vie et conformément à la RE2025, nous avons choisi un mode de chauffage par PAC + plancher chauffant, volets roulants électriques. Prix hors fourniture et pose : des appareils sanitaires (sauf système de chauffage et d'eau chaude sanitaire), du carrelage et de la faïence, des revêtements de sol dans les chambres. Hors décoration et aménagement intérieur et peinture. Hors raccordements, frais de notaire et dommage ouvrage. // Réf. : 1231-210806-PAL. Prix terrain : 95 000 €, hors frais d'agence à la charge de l'acquéreur. Ce terrain vous est proposé, par nos partenaires fonciers, dans le cadre d'un projet de construction avec nous. Les informations sur les risques auxquels ce bien est exposé sont disponibles sur le site Géorisques (www.georisques.gouv.fr). Prix maison : 148 988 €.
Casson
TERRAIN ET MAISONDans le bourg de Casson, proche de l'école. 329m², bien exposé ce terrain est viabilisé. . Du charme pour cette maison de plain-pied en V composée d'un très bel espace de vie lumineux avec cuisine US. Le plus pour cette maison est son garage intégré donnant accès au cellier et à la cuisine. Un dégagement dessert l'espace nuit qui vous offre 3 belles chambres avec rangements, une salle de bains, et wc séparés. Pour vous assurer un confort de vie et conformément à la RE2025, nous avons choisi un mode de chauffage par PAC + plancher chauffant, volets roulants électriques. Prix hors fourniture et pose : des appareils sanitaires (sauf système de chauffage et d'eau chaude sanitaire), du carrelage et de la faïence, des revêtements de sol dans les chambres. Hors décoration et aménagement intérieur et peinture. Hors raccordements, frais de notaire et dommage ouvrage. // Réf. : 653-210806-PAL. Prix terrain : 95 000 €, hors frais d'agence à la charge de l'acquéreur. Ce terrain vous est proposé, par nos partenaires fonciers, dans le cadre d'un projet de construction avec nous. Les informations sur les risques auxquels ce bien est exposé sont disponibles sur le site Géorisques (www.georisques.gouv.fr). Prix maison : 136 947 €.
Sucé-sur-Erdre
TERRAINBelle parcelle de 484m² dans le bourg de Sucé sur Erdre. Viabilisé, au bout d'une petite impasse, terrain exposé sud. // Réf. : T210807. Prix terrain : 230 000 €, hors frais d'agence et de notaire à la charge de l'acquéreur. Ce terrain vous est proposé, par nos partenaires fonciers, dans le cadre d'un projet de construction avec nous. Les informations sur les risques auxquels ce bien est exposé sont disponibles sur le site Géorisques (www.georisques.gouv.fr).
Casson
TERRAINDans le bourg de Casson, proche de l'école. 329m², bien exposé ce terrain est viabilisé. . // Réf. : T210806. Prix terrain : 95 000 €, hors frais d'agence et de notaire à la charge de l'acquéreur. Ce terrain vous est proposé, par nos partenaires fonciers, dans le cadre d'un projet de construction avec nous. Les informations sur les risques auxquels ce bien est exposé sont disponibles sur le site Géorisques (www.georisques.gouv.fr).
Carquefou
TERRAINFiche N°Id-TCT178468 : CARQUEFOU Fiche BC178468 : Carquefou, Terrain d’environ 527 m2 de 527 m2 – – Plus d’informations disponibles sur demande… – Mentions légales : Proposé à la vente à 217300 Euros (Dont 6% TTC d’honoraires à la charge de l’acquéreur, soit un prix hors honoraires de 205000 Euros) – Affaire suivie par Mme Noemie Vettier (Conseiller immobilier salarié) – Reseau Immo-Diffusion Nantes – Pour plus d’informations, contactez notre secrétariat au (Numéro supprimé) (Appel gratuit ou prix d’une communication locale)
L’actualité immobilière à Saint-Mars-du-Désert
27/11/2023
02/11/2023
30/10/2023
20/10/2023
16/10/2023
16/10/2023