Maison à construire à Saint-Michel-Chef-Chef (44730)
Images
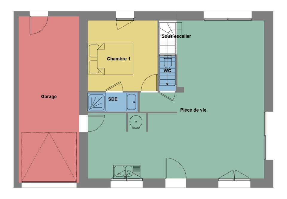
Description
Saint-Michel-Chef-Chef : maison de 6 pièces (120 m²) à vendre
EMPLACEMENT PRIVILÉGIÉ - MAISON 6 PIÈCES NEUVE
À vendre sur le littoral atlantique et à 15 km de Saint-Nazaire, Maisons de l'Avenir Orvault vous propose cette maison de 6 pièces de 120 m² bénéficiant d'un emplacement privilégié dans Saint-Michel-Chef-Chef (44730). Son intérieur compte cinq chambres, une cuisine et deux salles de bains.
Le terrain de cette maison s'étend sur 628 m².
Il s'agit d'une maison de 2 niveaux. Elle est neuve.
Cette maison se trouve dans un secteur recherché. L'École Primaire Privée Sainte Bernadette et l'École Primaire Publique de l'Horizon y sont implantées. Côté transports en commun, il y a la gare Pornic à moins de 10 minutes en voiture. Il y a un accès à la nationale N171 à 16 km. On trouve une bibliothèque dans les environs.
Son prix de vente est de 409 900 €.
Prenez contact avec Jean-Baptiste ((Numéro supprimé)) pour obtenir de plus amples renseignements sur la maison, sur les modalités de vente ou sur les démarches à suivre.
Logement susceptibles de vous intéresser
Nous vous proposons de découvrir aussi cette sélection de logements situés à moins de 10km de Saint-Michel-Chef-Chef et qui seraient susceptibles de vous intéresser.
Saint-Père-en-Retz
TERRAIN ET MAISONA SAINT-PERE-EN-RETZ sur un terrain de 423 m², Alliance Construction vous propose de réaliser votre projet de construction de maison individuelle d'une surface de 88.04 m² habitables avec 3 chambres, à partir de 245925€*Demandez une étude gratuite et personnalisée de votre projet de construction !* Cette offre comprend :- Garanties constructeurs (dommages ouvrage, garantie de prix ferme et définitif, garantie de livraison, responsabilité civile et décennale).- Branchements aux compteurs et accès empierré sur 5m linéaires.Habitez une maison spécialement pensée et conçue pour vous et votre famille, prête à décorer, adaptée à vos modes de vie, personnalisée selon vos goûts grâce à un large choix d'options, de matériaux et d'innovations !Contactez Laurent LASSIMONNE au (Numéro supprimé) (Alliance Construction – Agence de Vallet).*Prix indicatif pour un projet de construction d'une maison individuelle. Ne sont pas inclus les frais de branchements, raccordements aux réseaux publics, frais d'adaptations, aménagements intérieurs et extérieurs et options. terrain viabilisé, frais de notaire non compris, frais divers non compris. Garanties et assurances obligatoires incluses. Terrain sélectionné par ALLIANCE auprès de nos partenaires fonciers, selon disponibilité, pour la construction d'une maison neuve. Non mandaté pour réaliser la vente (loi du 2 janvier 1970 n°70-9). Visuels non contractuels. Voir détails en agence.Cette annonce a été créée et diffusée avec le logiciel VITAHOME.
Saint-Père-en-Retz
TERRAINPrix : 90000 €.Sur ce terrain de 423 m² à SAINT-PERE-EN-RETZ, Alliance Construction vous propose de réaliser votre projet de construction de maison individuelle.Avec Alliance Construction, habitez une maison spécialement pensée et conçue pour vous et votre famille, prête à décorer, adaptée à vos modes de vie, personnalisée selon vos goûts grâce à un large choix d'options, de matériaux et d'innovations ! Demandez une étude gratuite et personnalisée de votre projet de construction sur ce terrain à SAINT-PERE-EN-RETZ !Contactez Laurent LASSIMONNE au (Numéro supprimé) (Alliance Construction – Agence de Vallet).Prix hors frais de notaire. Terrain sélectionné par ALLIANCE auprès de nos partenaires fonciers, selon disponibilité, pour la construction d'une maison neuve. Non mandaté pour réaliser la vente (loi du 2 janvier 1970 n°70-9). Visuels non contractuels. Voir détails en agence.Cette annonce a été créée et diffusée avec le logiciel VITAHOME.
Chauvé
TERRAINPrix : 53000 €.Sur ce terrain de 250 m² à CHAUVE, Alliance Construction vous propose de réaliser votre projet de construction de maison individuelle.Avec Alliance Construction, habitez une maison spécialement pensée et conçue pour vous et votre famille, prête à décorer, adaptée à vos modes de vie, personnalisée selon vos goûts grâce à un large choix d'options, de matériaux et d'innovations ! Demandez une étude gratuite et personnalisée de votre projet de construction sur ce terrain à CHAUVE !Contactez Laurent LASSIMONNE au (Numéro supprimé) (Alliance Construction – Agence de Vallet).Prix hors frais de notaire. Terrain sélectionné par ALLIANCE auprès de nos partenaires fonciers, selon disponibilité, pour la construction d'une maison neuve. Non mandaté pour réaliser la vente (loi du 2 janvier 1970 n°70-9). Visuels non contractuels. Voir détails en agence.Cette annonce a été créée et diffusée avec le logiciel VITAHOME.
Saint-Père-en-Retz
TERRAINTerrain de 553 m² à vendre à Saint-Père-en-RetzIDÉALEMENT SITUÉ – PROCHE DE SAINT-NAZAIREÀ 9 km de l’océan Atlantique et à quelques kilomètres de Saint-Nazaire à Saint-Père-en-Retz (44320), grand terrain. Réalisez-y la maison de vos rêves. Ce terrain, avec vue sur espace vert, est exposé au sud-ouest. Il est situé dans un secteur convoité. Il y a des établissements scolaires (de la maternelle au lycée) à moins de 10 minutes à pied. Les nationales N171 et N165 sont accessibles à moins de 20 km. On trouve un tennis, des commerces, une boulangerie, un supermarché et un bureau de poste à quelques minutes à peine.Son prix de vente est de 102 500 €. Contactez Pierre Antoine BURILLE (tél : (Numéro supprimé)) pour toute information sur ce terrain, sur les modalités de vente ou sur les démarches à suivre. Concrétisez vos projets immobiliers avec Maisons de l’Avenir Rezé.
Saint-Père-en-Retz
TERRAIN ET MAISONVENTE d’une maison de 4 pièces (83 m²) à Saint-Père-en-RetzIDÉALEMENT SITUÉE – MAISON 4 PIÈCES NEUVEEn vente : localisée à 9 km de la côte atlantique et à quelques kilomètres de Saint-Nazaire, notre agence Maisons de l’Avenir Rezé est heureuse de vous proposer cette maison de 4 pièces de 83 m² avec vue sur espace vert idéalement située dans Saint-Père-en-Retz (44320).Cette maison de plain-pied est de plain-pied. Son intérieur compte trois chambres, une cuisine et une salle de bains. La maison est neuve.Le terrain de la propriété s’étend sur 553 m².Cette maison est située dans un secteur recherché. Tous les types d’établissements scolaires (maternelle, élémentaire et secondaire) se trouvent à moins de 10 minutes à pied. Les nationales N171 et N165 sont accessibles à moins de 20 km. Il y a un tennis, des commerces, une boulangerie, un supermarché et un bureau de poste à proximité.Elle est à vendre pour la somme de 288 000 €.Contactez Pierre Antoine BURILLE (tél : (Numéro supprimé)) pour tout renseignement sur le bien.
Saint-Père-en-Retz
TERRAIN ET MAISONMaison de 5 pièces (87 m²) en vente à Saint-Père-en-RetzIDÉALEMENT SITUÉE – MAISON 5 PIÈCES NEUVEÀ 9 km de la côte atlantique et à 14 km de Saint-Nazaire, Maisons de l’Avenir Rezé vous propose cette maison de 5 pièces de 87 m² idéalement située dans Saint-Père-en-Retz (44320).Il s’agit d’une maison de 2 niveaux. Elle dispose de quatre chambres, d’une cuisine et d’une salle de bains. La maison est neuve.Le terrain du bien s’étend sur 553 m².Cette maison est située dans un secteur attractif. Tous les types d’établissements scolaires (maternelle, élémentaire et secondaire) sont implantés à moins de 10 minutes à pied. Les nationales N171 et N165 sont accessibles à moins de 20 km. Il y a un tennis, des commerces, une boulangerie, un supermarché et un bureau de poste à quelques minutes à peine.Elle est à vendre pour la somme de 292 000 €.Contactez Pierre Antoine BURILLE ((Numéro supprimé)) pour toute question sur la maison ou sur les démarches à suivre. Concrétisez vos projets immobiliers avec Maisons de l’Avenir Rezé.
Saint-Père-en-Retz
TERRAIN ET MAISONVENTE d’une maison T5 (139 m²) à Saint-Père-en-RetzIDÉALEMENT SITUÉE – MAISON 5 PIÈCES NEUVEÀ vendre : sur le littoral atlantique et à quelques kilomètres de Saint-Nazaire, nous sommes heureux de vous proposer cette maison de 5 pièces de plain-pied de 139 m² et de 553 m² de terrain idéalement située dans Saint-Père-en-Retz (44320). Conçue de plain-pied, elle est composée de quatre chambres, d’une cuisine et de deux salles de bains.Cette maison est neuve.Le bien se situe dans un quartier attractif. Il y a des établissements scolaires de tous types à moins de 10 minutes à pied. Les nationales N171 et N165 sont accessibles à moins de 20 km. On trouve un tennis, des commerces, une boulangerie, un supermarché et un bureau de poste à proximité.Il est à vendre pour la somme de 395 500 €.Contactez Pierre Antoine BURILLE (tél : (Numéro supprimé)) pour plus de renseignements sur la maison, sur les démarches à suivre ou sur les modalités de vente.
Saint-Père-en-Retz
TERRAIN ET MAISONVENTE d’une maison de 5 pièces (111 m²) à Saint-Père-en-RetzIDÉALEMENT SITUÉE – MAISON 5 PIÈCES NEUVEÀ 9 km de l’océan Atlantique et à 14 km de Saint-Nazaire, nous vous présentons à vendre, idéalement située dans Saint-Père-en-Retz (44320), cette maison de 5 pièces de 111 m². Son intérieur comporte quatre chambres, une cuisine et deux salles de bains.Le terrain du bien est de 553 m².Il s’agit d’une maison de 2 niveaux. Elle est neuve.La propriété se trouve dans un secteur recherché. Des établissements scolaires du primaire et du secondaire sont implantés à moins de 10 minutes à pied. Les nationales N171 et N165 sont accessibles à moins de 20 km. Il y a un tennis, des commerces, une boulangerie, un supermarché et un bureau de poste à quelques minutes à peine.Elle est à vendre pour la somme de 340 000 €.Contactez Pierre Antoine BURILLE ((Numéro supprimé)) pour obtenir de plus amples informations sur la maison, sur les démarches à suivre ou sur les modalités de vente. Maisons de l’Avenir Rezé est là pour vous accompagner à toutes les étapes de votre projet.
La Plaine-sur-Mer
TERRAIN ET MAISONDans un quartier calme, à proximité de la mer.Faites construire votre maison en ossature bois sur mesure (de plain pied ou à étage).Exemple donné pour une maison de 100m² avec 3 chambres et un garage sur un terrain de 500 m².Labélisée RE2020, nos projets vous apportent confort de vie (été comme hiver) et économie d’énergie grâce à leur conception bioclimatique.Vous souhaitez faire construire une maison bois écologique, unique et moderne ?Venez nous rencontrer pour étudier ensemble un projet à votre image.L’équipe My Lovely NatureContactez-nous au (Numéro supprimé) (My Lovely Nature – Agence de Nantes MLN).*Prix indicatif pour un projet de construction d'une maison individuelle. Ne sont pas inclus les frais de branchements, raccordements aux réseaux publics, frais d'adaptations, aménagements intérieurs et extérieurs et options. viabilisation comprise, frais de notaire compris, frais divers non compris. Garanties et assurances obligatoires incluses. Terrain sélectionné par MY LOVELY NATURE auprès de nos partenaires fonciers, selon disponibilité, pour la construction d'une maison neuve. Non mandaté pour réaliser la vente (loi du 2 janvier 1970 n°70-9). Visuels non contractuels. Voir détails en agence.Cette annonce a été créée et diffusée avec le logiciel VITAHOME.
L’actualité immobilière à Saint-Michel-Chef-Chef
27/11/2023
02/11/2023
30/10/2023
20/10/2023
16/10/2023
16/10/2023