Maison à construire à Saint-Nazaire (44600)
Images
Description
Saint-Nazaire : maison de 4 pièces (120 m²) en vente
PROCHE CENTRE-VILLE - MAISON 4 PIÈCES NEUVE
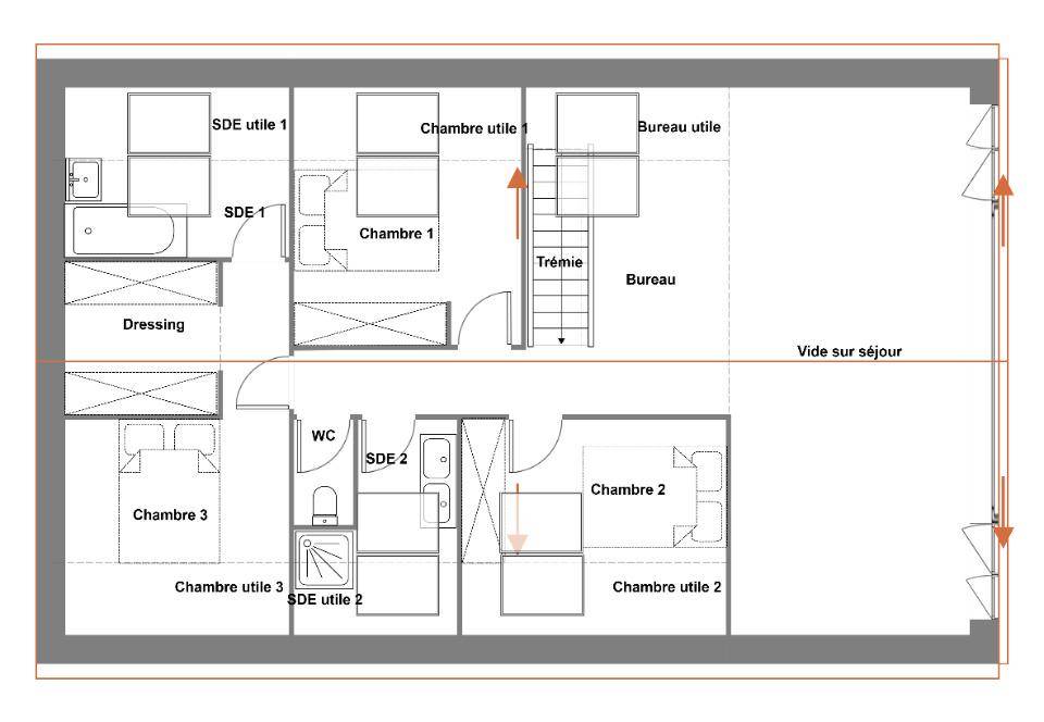
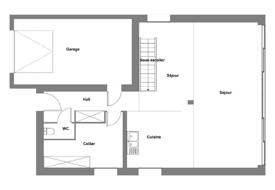
À vendre : sur la côte atlantique, votre agence Maisons de l'Avenir Orvault est ravie de vous proposer, proche du centre-ville de Saint-Nazaire (44600), cette maison de 4 pièces de 120 m² et de 490 m² de terrain. Elle se divise en trois chambres, une cuisine et deux salles de bains.
Cette maison compte 2 niveaux. Elle est neuve.
Il y a des écoles (de la maternelle au lycée) à moins de 10 minutes à pied, tout comme une structure d'accueil pour la petite enfance. Niveau transports en commun, on trouve cinq gares à moins de 10 minutes en voiture. La nationale N171 est accessible à 4 km. Il y a des commerces, des boulangeries, un supermarché, deux poissonneries et des épiceries dans les environs. Enfin, le marché Centre-Ville anime les environs.
Elle est à vendre pour la somme de 406 000 €.
Contactez Jean-Baptiste ((Numéro supprimé)) pour toute question sur la maison ou sur les modalités de vente. Faites de vos projets immobiliers une réalité avec Maisons de l'Avenir Orvault.
Logement susceptibles de vous intéresser
Nous vous proposons de découvrir aussi cette sélection de logements situés à moins de 10km de Saint-Nazaire et qui seraient susceptibles de vous intéresser.
Pornichet
TERRAIN ET MAISONMagnifique terrain situé sur la commune de Pornichet d'une surface de 490 m², terrain plat, entièrement viabilisé. Accès plages et commerces de proximités en 5 minutes de voiture. Quartier résidentiel au calme absolu. Belle exposition sud, possibilité de construire une maison sur mesure. Une maison spacieuse et élégante, conçue pour vous !. Découvrez ce modèle moderne de plus de 140 m², pensé pour allier confort et luminosité. Son vaste salon-séjour de 45 m², baigné de lumière, s’ouvre sur une cuisine conviviale. Une suite parentale au rez-de-chaussée avec dressing et salle d’eau privative, deux chambres et un bureau à l’étage, parfait pour le télétravail ou une chambre d’appoint. Garage et cellier attenant, pour un quotidien pratique et organisé. Pour un confort optimal et conforme à la RE2025, cette maison dispose d’une PAC avec plancher chauffant au rez-de-chaussée, radiateurs à l’étage et volets roulants électriques. À noter : Le prix indiqué exclut les revêtements de sol des chambres, la cuisine aménagée, la peinture, la décoration, les raccordements, les frais de notaire et l’assurance dommages-ouvrage. // Réf. : 538-210844-ELM. Prix terrain : 215 000 €, hors frais d'agence à la charge de l'acquéreur. Ce terrain vous est proposé, par nos partenaires fonciers, dans le cadre d'un projet de construction avec nous. Les informations sur les risques auxquels ce bien est exposé sont disponibles sur le site Géorisques (www.georisques.gouv.fr). Prix maison : 324 945 €.
Pornichet
TERRAIN ET MAISONMagnifique terrain situé sur la commune de Pornichet d'une surface de 490 m², terrain plat, entièrement viabilisé. Accès plages et commerces de proximités en 5 minutes de voiture. Quartier résidentiel au calme absolu. Belle exposition sud, possibilité de construire une maison sur mesure. Offrez-vous une maison où chaque espace est conçu pour répondre aux exigences du quotidien, tout en alliant modernité et fonctionnalité. Son agencement optimisé propose une pièce de vie lumineuse et spacieuse, véritable cœur de la maison, idéale pour partager des moments inoubliables. Avec trois chambres accueillantes, un bureau polyvalent, une salle de bain élégante et un cellier astucieux, tout a été pensé pour une organisation fluide et harmonieuse. Son garage intégré facilite votre quotidien en offrant praticité et sécurité. Dotée d’une architecture contemporaine et d’un système de chauffage performant, cette maison assure un confort optimal toute l’année. Un cadre de vie idéal pour une famille en quête d’espace et de bien-être. Pour vous assurer un confort de vie et conformément à la RE2025, nous avons choisi un mode de chauffage par PAC + plancher chauffant, volets roulants électriques. Prix hors peinture, décoration, revêtements de sol dans les chambres, cuisine équipée, frais de notaire, raccordements, dommage ouvrage. // Réf. : 2648-210844-ELM. Prix terrain : 215 000 €, hors frais d'agence à la charge de l'acquéreur. Ce terrain vous est proposé, par nos partenaires fonciers, dans le cadre d'un projet de construction avec nous. Les informations sur les risques auxquels ce bien est exposé sont disponibles sur le site Géorisques (www.georisques.gouv.fr). Prix maison : 173 929 €.
Pornichet
TERRAIN ET MAISONMagnifique terrain situé sur la commune de Pornichet d'une surface de 490 m², terrain plat, entièrement viabilisé. Accès plages et commerces de proximités en 5 minutes de voiture. Quartier résidentiel au calme absolu. Belle exposition sud, possibilité de construire une maison sur mesure. Une maison moderne et astucieuse, prête à accueillir vos projets de vie !. Laissez-vous séduire par cette charmante maison à étage conçue pour allier confort et fonctionnalité. Son vaste espace de vie de plus de 42 m², baigné de lumière, s’ouvre sur l’extérieur pour des moments de convivialité en famille. Profitez du confort d’une suite parentale avec dressing et salle d’eau au rez-de-chaussée, offrant intimité et praticité. À l’étage, deux belles chambres et une salle de bains complètent cet espace pensé pour toute la famille. Un garage de plus de 23 m² vient parfaire ce bien, idéal pour allier rangement et stationnement. Une maison moderne et astucieuse, prête à accueillir vos projets de vie !. Pour un confort optimal et conforme à la RE2025, cette maison dispose d’une PAC avec plancher chauffant au rez-de-chaussée, radiateurs à l’étage et volets roulants électriques. À noter : Le prix indiqué exclut les revêtements de sol des chambres, la cuisine aménagée, la peinture, la décoration, les raccordements, les frais de notaire et l’assurance dommages-ouvrage. (Carport non contractuel, non compris dans le prix). // Réf. : 2428-210844-ELM. Prix terrain : 215 000 €, hors frais d'agence à la charge de l'acquéreur. Ce terrain vous est proposé, par nos partenaires fonciers, dans le cadre d'un projet de construction avec nous. Les informations sur les risques auxquels ce bien est exposé sont disponibles sur le site Géorisques (www.georisques.gouv.fr). Prix maison : 239 582 €.
Pornichet
TERRAINMagnifique terrain situé sur la commune de Pornichet d'une surface de 490 m², terrain plat, entièrement viabilisé. Accès plages et commerces de proximités en 5 minutes de voiture. Quartier résidentiel au calme absolu. Belle exposition sud, possibilité de construire une maison sur mesure. // Réf. : T210844. Prix terrain : 215 000 €, hors frais d'agence et de notaire à la charge de l'acquéreur. Ce terrain vous est proposé, par nos partenaires fonciers, dans le cadre d'un projet de construction avec nous. Les informations sur les risques auxquels ce bien est exposé sont disponibles sur le site Géorisques (www.georisques.gouv.fr).
Montoir-de-Bretagne
TERRAIN ET MAISONVous rêvez de construire cette maison ? En choisissant My Lovely Nature, vous avez frappé à la bonne porte. Nous serons heureux de vous accompagner dans votre projet de vie au naturel.Contactez-nous au (Numéro supprimé) (My Lovely Nature – Agence de Nantes MLN).*Prix indicatif pour un projet de construction d'une maison individuelle. Ne sont pas inclus les frais de branchements, raccordements aux réseaux publics, frais d'adaptations, aménagements intérieurs et extérieurs et options. viabilisation comprise, frais de notaire compris, frais divers non compris. Garanties et assurances obligatoires incluses. Terrain sélectionné par MY LOVELY NATURE auprès de nos partenaires fonciers, selon disponibilité, pour la construction d'une maison neuve. Non mandaté pour réaliser la vente (loi du 2 janvier 1970 n°70-9). Visuels non contractuels. Voir détails en agence.Cette annonce a été créée et diffusée avec le logiciel VITAHOME.
Montoir-de-Bretagne
TERRAIN ET MAISONVous rêvez de construire cette maison ? En choisissant My Lovely Nature, vous avez frappé à la bonne porte. Nous serons heureux de vous accompagner dans votre projet de vie au naturel.Contactez-nous au (Numéro supprimé) (My Lovely Nature – Agence de Nantes MLN).*Prix indicatif pour un projet de construction d'une maison individuelle. Ne sont pas inclus les frais de branchements, raccordements aux réseaux publics, frais d'adaptations, aménagements intérieurs et extérieurs et options. viabilisation comprise, frais de notaire compris, frais divers non compris. Garanties et assurances obligatoires incluses. Terrain sélectionné par MY LOVELY NATURE auprès de nos partenaires fonciers, selon disponibilité, pour la construction d'une maison neuve. Non mandaté pour réaliser la vente (loi du 2 janvier 1970 n°70-9). Visuels non contractuels. Voir détails en agence.Cette annonce a été créée et diffusée avec le logiciel VITAHOME.
Montoir-de-Bretagne
TERRAIN ET MAISONVous rêvez de construire cette maison ? En choisissant My Lovely Nature, vous avez frappé à la bonne porte. Nous serons heureux de vous accompagner dans votre projet de vie au naturel.Contactez-nous au (Numéro supprimé) (My Lovely Nature – Agence de Nantes MLN).*Prix indicatif pour un projet de construction d'une maison individuelle. Ne sont pas inclus les frais de branchements, raccordements aux réseaux publics, frais d'adaptations, aménagements intérieurs et extérieurs et options. viabilisation comprise, frais de notaire compris, frais divers non compris. Garanties et assurances obligatoires incluses. Terrain sélectionné par MY LOVELY NATURE auprès de nos partenaires fonciers, selon disponibilité, pour la construction d'une maison neuve. Non mandaté pour réaliser la vente (loi du 2 janvier 1970 n°70-9). Visuels non contractuels. Voir détails en agence.Cette annonce a été créée et diffusée avec le logiciel VITAHOME.
Montoir-de-Bretagne
TERRAIN ET MAISONVous rêvez de construire cette maison ? En choisissant My Lovely Nature, vous avez frappé à la bonne porte. Nous serons heureux de vous accompagner dans votre projet de vie au naturel.Contactez-nous au (Numéro supprimé) (My Lovely Nature – Agence de Nantes MLN).*Prix indicatif pour un projet de construction d'une maison individuelle. Ne sont pas inclus les frais de branchements, raccordements aux réseaux publics, frais d'adaptations, aménagements intérieurs et extérieurs et options. viabilisation comprise, frais de notaire compris, frais divers non compris. Garanties et assurances obligatoires incluses. Terrain sélectionné par MY LOVELY NATURE auprès de nos partenaires fonciers, selon disponibilité, pour la construction d'une maison neuve. Non mandaté pour réaliser la vente (loi du 2 janvier 1970 n°70-9). Visuels non contractuels. Voir détails en agence.Cette annonce a été créée et diffusée avec le logiciel VITAHOME.
Montoir-de-Bretagne
TERRAIN ET MAISONVous rêvez de construire cette maison ? En choisissant My Lovely Nature, vous avez frappé à la bonne porte. Nous serons heureux de vous accompagner dans votre projet de vie au naturel.Contactez-nous au (Numéro supprimé) (My Lovely Nature – Agence de Nantes MLN).*Prix indicatif pour un projet de construction d'une maison individuelle. Ne sont pas inclus les frais de branchements, raccordements aux réseaux publics, frais d'adaptations, aménagements intérieurs et extérieurs et options. viabilisation comprise, frais de notaire compris, frais divers non compris. Garanties et assurances obligatoires incluses. Terrain sélectionné par MY LOVELY NATURE auprès de nos partenaires fonciers, selon disponibilité, pour la construction d'une maison neuve. Non mandaté pour réaliser la vente (loi du 2 janvier 1970 n°70-9). Visuels non contractuels. Voir détails en agence.Cette annonce a été créée et diffusée avec le logiciel VITAHOME.
L’actualité immobilière à Saint-Nazaire
27/11/2023
02/11/2023
30/10/2023
20/10/2023
16/10/2023
16/10/2023