Images
Description
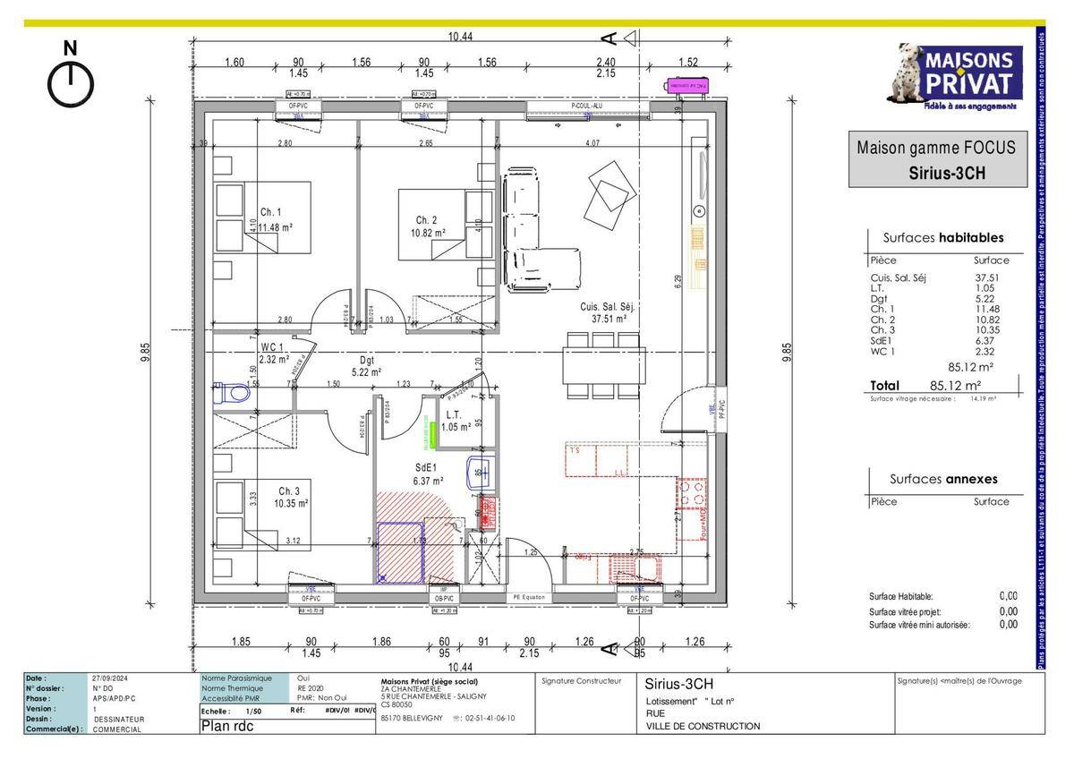
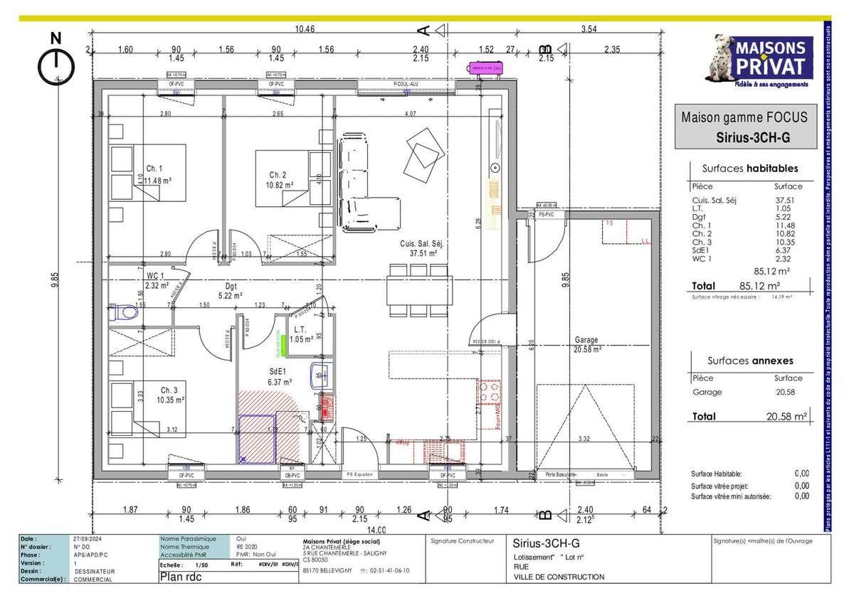
Sur ce terrain, nous vous proposons cette élégante maison de plain-pied, dont la conception soignée mise sur la luminosité et la convivialité. Dès l’entrée, vous serez accueilli par une généreuse pièce à vivre de plus de 37 m², inondée de lumière naturelle, qui rassemble salon, salle à manger et cuisine ouverte pour des moments de partage en famille ou entre amis.
La partie nuit se compose de trois chambres confortables, offrant chacune la possibilité d’aménager rangements et espace de travail selon vos envies. Une salle de bain moderne, un WC indépendant viennent compléter un agencement pensé pour simplifier votre quotidien.
Sur cette version, un garage peut être ajouté en option.
Avec sa disposition ingénieuse et ses volumes agréables, cette maison saura vous séduire par son atmosphère chaleureuse et son potentiel d’aménagement. Ne manquez pas cette belle opportunité et venez la visiter sans tarder?!
Logement susceptibles de vous intéresser
Nous vous proposons de découvrir aussi cette sélection de logements situés à moins de 10km de Saint-Père-en-Retz et qui seraient susceptibles de vous intéresser.
Saint-Père-en-Retz
TERRAIN ET MAISONA SAINT-PERE-EN-RETZ sur un terrain de 423 m², Alliance Construction vous propose de réaliser votre projet de construction de maison individuelle d'une surface de 88.04 m² habitables avec 3 chambres, à partir de 245925€*Demandez une étude gratuite et personnalisée de votre projet de construction !* Cette offre comprend :- Garanties constructeurs (dommages ouvrage, garantie de prix ferme et définitif, garantie de livraison, responsabilité civile et décennale).- Branchements aux compteurs et accès empierré sur 5m linéaires.Habitez une maison spécialement pensée et conçue pour vous et votre famille, prête à décorer, adaptée à vos modes de vie, personnalisée selon vos goûts grâce à un large choix d'options, de matériaux et d'innovations !Contactez Laurent LASSIMONNE au (Numéro supprimé) (Alliance Construction – Agence de Vallet).*Prix indicatif pour un projet de construction d'une maison individuelle. Ne sont pas inclus les frais de branchements, raccordements aux réseaux publics, frais d'adaptations, aménagements intérieurs et extérieurs et options. terrain viabilisé, frais de notaire non compris, frais divers non compris. Garanties et assurances obligatoires incluses. Terrain sélectionné par ALLIANCE auprès de nos partenaires fonciers, selon disponibilité, pour la construction d'une maison neuve. Non mandaté pour réaliser la vente (loi du 2 janvier 1970 n°70-9). Visuels non contractuels. Voir détails en agence.Cette annonce a été créée et diffusée avec le logiciel VITAHOME.
Saint-Père-en-Retz
TERRAINPrix : 90000 €.Sur ce terrain de 423 m² à SAINT-PERE-EN-RETZ, Alliance Construction vous propose de réaliser votre projet de construction de maison individuelle.Avec Alliance Construction, habitez une maison spécialement pensée et conçue pour vous et votre famille, prête à décorer, adaptée à vos modes de vie, personnalisée selon vos goûts grâce à un large choix d'options, de matériaux et d'innovations ! Demandez une étude gratuite et personnalisée de votre projet de construction sur ce terrain à SAINT-PERE-EN-RETZ !Contactez Laurent LASSIMONNE au (Numéro supprimé) (Alliance Construction – Agence de Vallet).Prix hors frais de notaire. Terrain sélectionné par ALLIANCE auprès de nos partenaires fonciers, selon disponibilité, pour la construction d'une maison neuve. Non mandaté pour réaliser la vente (loi du 2 janvier 1970 n°70-9). Visuels non contractuels. Voir détails en agence.Cette annonce a été créée et diffusée avec le logiciel VITAHOME.
Chauvé
TERRAINPrix : 53000 €.Sur ce terrain de 250 m² à CHAUVE, Alliance Construction vous propose de réaliser votre projet de construction de maison individuelle.Avec Alliance Construction, habitez une maison spécialement pensée et conçue pour vous et votre famille, prête à décorer, adaptée à vos modes de vie, personnalisée selon vos goûts grâce à un large choix d'options, de matériaux et d'innovations ! Demandez une étude gratuite et personnalisée de votre projet de construction sur ce terrain à CHAUVE !Contactez Laurent LASSIMONNE au (Numéro supprimé) (Alliance Construction – Agence de Vallet).Prix hors frais de notaire. Terrain sélectionné par ALLIANCE auprès de nos partenaires fonciers, selon disponibilité, pour la construction d'une maison neuve. Non mandaté pour réaliser la vente (loi du 2 janvier 1970 n°70-9). Visuels non contractuels. Voir détails en agence.Cette annonce a été créée et diffusée avec le logiciel VITAHOME.
Saint-Viaud
TERRAINVENTE : terrain de 345 m² à Saint-ViaudEMPLACEMENT PRIVILÉGIÉ – PROCHE DE SAINT-NAZAIREÀ vendre à 4 km de la côte atlantique et à quelques kilomètres de Saint-Nazaire à Saint-Viaud (44320), terrain de 345 m². Il est prêt à accueillir la maison de vos rêves pour toute la famille. Il donne sur un espace vert et est orienté au sud-ouest. Ce terrain se trouve dans un secteur convoité. L’École Primaire Privée Saint Vital et l’École Primaire Publique le Mont Scobrit sont implantées à moins de 10 minutes à pied, tout comme deux structures d’accueil pour la petite enfance. Niveau transports en commun, il y a la gare Donges à moins de 10 minutes en voiture. Les nationales N171 et N165 sont accessibles à moins de 15 km. On trouve un tennis, un commerce, deux boulangeries, un bureau de poste et une épicerie à quelques minutes à peine.Son prix de vente est de 75 048 €. Prenez contact avec Pierre Antoine BURILLE (tél : (Numéro supprimé)) pour plus d’informations sur ce terrain.
Saint-Viaud
TERRAIN ET MAISONVENTE d’une maison F4 (69 m²) à Saint-ViaudEMPLACEMENT PRIVILÉGIÉ – MAISON 4 PIÈCES NEUVEÀ vendre : localisée à 4 km de l’océan Atlantique et à quelques kilomètres de Saint-Nazaire, notre agence Maisons de l’Avenir Rezé est ravie de vous proposer cette maison de 4 pièces de 69 m² avec vue sur espace vert bénéficiant d’un emplacement privilégié dans Saint-Viaud (44320). Conçue de plain-pied, elle compte trois chambres, une cuisine et une salle de bains.Le terrain du bien s’étend sur 345 m².Cette maison est de plain-pied. Elle est neuve.Cette maison se trouve dans un secteur prisé. L’École Primaire Privée Saint Vital et l’École Primaire Publique le Mont Scobrit sont implantées à moins de 10 minutes à pied, tout comme deux crèches. Côté transports en commun, il y a la gare Donges à moins de 10 minutes en voiture. Les nationales N171 et N165 sont accessibles à moins de 15 km. On trouve un tennis, un commerce, deux boulangeries, une épicerie et un bureau de poste à proximité de la maison.Elle est à vendre pour la somme de 214 328 €.Contactez Pierre Antoine BURILLE (tél : (Numéro supprimé)) pour tout renseignement sur la maison. Maisons de l’Avenir Rezé vous accompagne dans toutes vos démarches et dans tous vos projets immobiliers.
Saint-Viaud
TERRAIN ET MAISONSaint-Viaud : maison F5 (85 m²) à vendreEMPLACEMENT PRIVILÉGIÉ – MAISON 5 PIÈCES NEUVEÀ 4 km de l’océan Atlantique et à quelques kilomètres de Saint-Nazaire, notre agence Maisons de l’Avenir Rezé est ravie de vous proposer cette maison de 5 pièces de plain-pied de 85 m² en vente, bénéficiant d’un emplacement d’exception dans Saint-Viaud (44320).Conçue de plain-pied, elle est composée de quatre chambres, d’une cuisine et d’une salle de bains. La maison est neuve.Le terrain de la propriété s’étend sur 345 m².Cette maison se trouve dans un secteur convoité. Il y a l’École Primaire Privée Saint Vital et l’École Primaire Publique le Mont Scobrit à moins de 10 minutes à pied et deux structures d’accueil pour les tout-petits. Niveau transports en commun, on trouve la gare Donges à moins de 10 minutes en voiture. Les nationales N171 et N165 sont accessibles à moins de 15 km. Il y a un tennis, un commerce, deux boulangeries, un bureau de poste et une épicerie à proximité.Elle est proposée à l’achat pour 261 468 €.Contactez Pierre Antoine BURILLE ((Numéro supprimé)) pour toute question sur la maison.
Saint-Viaud
TERRAIN ET MAISONSaint-Viaud : maison T5 (84 m²) à vendreEMPLACEMENT PRIVILÉGIÉ – MAISON 5 PIÈCES NEUVESur la côte atlantique et à 20 km de Saint-Nazaire, nous sommes ravis de vous proposer cette maison de 5 pièces de 84 m² et de 345 m² de terrain bénéficiant d’un emplacement d’exception dans Saint-Viaud (44320).Il s’agit d’une maison de 2 niveaux. Son intérieur offre quatre chambres, une cuisine et deux salles de bains. Cette maison est neuve.La maison se situe dans un secteur convoité. On trouve l’École Primaire Privée Saint Vital et l’École Primaire Publique le Mont Scobrit à moins de 10 minutes à pied et deux crèches. Niveau transports en commun, il y a la gare Donges à moins de 10 minutes en voiture. Les nationales N171 et N165 sont accessibles à moins de 15 km. On trouve un tennis, un commerce, deux boulangeries, une épicerie et un bureau de poste dans les environs.Son prix de vente est de 259 448 €.Prenez contact avec Pierre Antoine BURILLE (tél : (Numéro supprimé)) pour plus de renseignements sur la propriété ou sur les démarches à suivre. Donnez vie à vos projets immobiliers avec Maisons de l’Avenir Rezé.
Saint-Viaud
TERRAIN ET MAISONMaison de 6 pièces (120 m²) en vente à Saint-ViaudEMPLACEMENT PRIVILÉGIÉ – MAISON 6 PIÈCES NEUVEÀ vendre à 4 km de la côte atlantique et à 20 km de Saint-Nazaire, bénéficiant d’un emplacement d’exception dans Saint-Viaud (44320), laissez vous charmer par cette maison de 6 pièces de 120 m² et de 345 m² de terrain.Cette maison compte 2 niveaux. Son intérieur inclut cinq chambres, une cuisine et deux salles de bains. La maison est neuve.Cette maison se trouve dans un quartier prisé. Il y a l’École Primaire Privée Saint Vital et l’École Primaire Publique le Mont Scobrit à moins de 10 minutes à pied et deux crèches. Côté transports en commun, on trouve la gare Donges à moins de 10 minutes en voiture. Les nationales N171 et N165 sont accessibles à moins de 15 km. Il y a un tennis, un commerce, deux boulangeries, une épicerie et un bureau de poste à proximité du bien.Son prix de vente est de 315 048 €.Contactez notre agence (Pierre Antoine BURILLE : (Numéro supprimé)) pour toute information sur la maison.
Saint-Viaud
TERRAINVENTE : terrain de 379 m² à Saint-ViaudIDÉALEMENT SITUÉ – PROCHE DE SAINT-NAZAIREÀ 4 km de la côte atlantique et à 20 km de Saint-Nazaire à Saint-Viaud (44320), terrain de 379 m². Il est prêt à accueillir votre projet immobilier pour toute la famille. Il est orienté au sud-ouest. Ce terrain est situé dans un secteur prisé. L’École Primaire Privée Saint Vital et l’École Primaire Publique le Mont Scobrit se trouvent à moins de 10 minutes à pied, tout comme deux crèches. Niveau transports, il y a la gare Donges à moins de 10 minutes en voiture. Les nationales N171 et N165 sont accessibles à moins de 15 km. On trouve un tennis, un commerce, deux boulangeries, une épicerie et un bureau de poste à proximité du terrain.Il est à vendre pour la somme de 80 136 €. Prenez contact avec Pierre Antoine BURILLE ((Numéro supprimé)) pour toute information sur ce terrain. Maisons de l’Avenir Rezé est là pour vous accompagner à toutes les étapes de votre projet.
L’actualité immobilière à Saint-Père-en-Retz
27/11/2023
02/11/2023
30/10/2023
20/10/2023
16/10/2023
16/10/2023