Images
Description
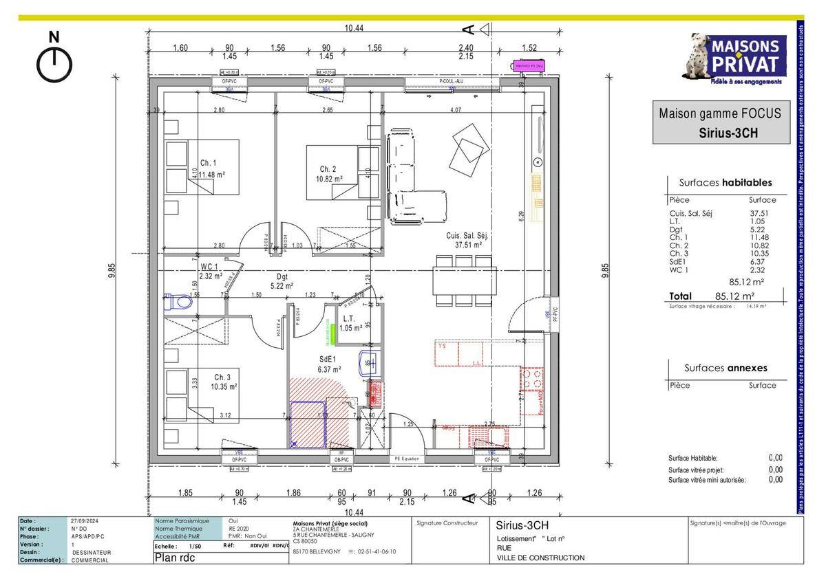
Sur ce terrain, nous vous proposons cette superbe maison de plain-pied au plan optimisé, pensée pour offrir confort et convivialité à toute la famille. Passé l’entrée, vous serez immédiatement séduit par une vaste pièce de vie baignée de lumière, où se côtoient salon, salle à manger et cuisine ouverte, idéale pour partager des moments chaleureux au quotidien.
Côté nuit, trois chambres spacieuses et lumineuses vous attendent, chacune permettant d’installer rangements et bureau selon vos envies. Une salle de bain moderne, un WC complètent cet agencement astucieux, facilitant l’organisation de la vie de famille.
Atout pratique : Un garage attenant de près de 21 m² permet de stationner votre véhicule en toute sécurité, tout en laissant de la place pour un atelier ou du rangement supplémentaire.
Moderne, fonctionnelle et pensée pour un confort optimal, cette maison saura répondre à toutes vos attentes. N’attendez plus pour venir la découvrir et laissez-vous séduire par son agencement harmonieux !
Logement susceptibles de vous intéresser
Nous vous proposons de découvrir aussi cette sélection de logements situés à moins de 10km de Saint-Père-en-Retz et qui seraient susceptibles de vous intéresser.
Saint-Père-en-Retz
TERRAIN ET MAISONVENTE d’une maison T2 (50 m²) à Saint-Père-en-RetzMAISON 2 PIÈCES NEUVE – PROCHE DE SAINT-NAZAIREÀ 9 km de l’océan Atlantique et à 14 km de Saint-Nazaire, ayez le coup de coeur pour en vente à Saint-Père-en-Retz (44320), cette maison de 2 pièces de plain-pied de 50 m². Conçue de plain-pied, elle est composée d’une chambre, d’une cuisine et d’une salle de bains.Le terrain de cette maison s’étend sur 333 m².La maison est neuve.Des établissements scolaires du primaire et du secondaire sont implantés à moins de 10 minutes . Les nationales N171 et N165 sont accessibles à moins de 20 km. Il y a un tennis, des commerces, une boulangerie, un supermarché et un bureau de poste dans les environs.Son prix de vente est de 173 800 €.Prenez contact avec notre agence (COUCHAUX Vincent : (Numéro supprimé)) pour tout renseignement sur la maison, sur les démarches à suivre ou sur les modalités de vente.
Saint-Père-en-Retz
TERRAINSaint-Père-en-Retz : terrain de 333 m² en ventePROCHE DE SAINT-NAZAIRESur le littoral atlantique et à deux pas de Saint-Nazaire à Saint-Père-en-Retz (44320), terrain de 333 m². Il est orienté au sud-est. Il y a tous les types d’écoles à moins de 10 minutes . Les nationales N171 et N165 sont accessibles à moins de 20 km. On trouve un tennis, des commerces, une boulangerie, un supermarché et un bureau de poste à proximité.Son prix de vente est de 71 000 €. Contactez notre agence (Vincent COUCHAUX : (Numéro supprimé)) pour obtenir de plus amples informations sur ce terrain. Maisons Tradilignes Pornic est là pour vous accompagner dans toutes vos démarches.
Saint-Père-en-Retz
TERRAIN ET MAISONMaison T3 (62 m²) à vendre à Saint-Père-en-RetzPROCHE DE SAINT-NAZAIRE – MAISON 3 PIÈCES NEUVEEn vente à 9 km de l’océan Atlantique et à 14 km de Saint-Nazaire, Maisons Tradilignes Pornic vous propose à Saint-Père-en-Retz (44320), cette maison de 3 pièces de plain-pied de 62 m² et de 333 m² de terrain. Conçue de plain-pied, elle dispose de deux chambres, d’une cuisine et d’une salle de bains.Cette maison est neuve.Des écoles (de la maternelle au lycée) sont implantées à moins de 10 minutes . Les nationales N171 et N165 sont accessibles à moins de 20 km. On trouve un tennis, des commerces, une boulangerie, un supermarché et un bureau de poste à proximité.Elle est à vendre pour la somme de 201 500 €.Contactez Vincent COUCHAUX ((Numéro supprimé)) pour toute information sur cette maison ou sur les modalités de vente.
Saint-Père-en-Retz
TERRAIN ET MAISONVENTE : maison de 4 pièces (75 m²) à Saint-Père-en-RetzPROCHE DE SAINT-NAZAIRE – MAISON 4 PIÈCES NEUVEEn vente : à 9 km de la côte atlantique et à quelques kilomètres de Saint-Nazaire, à Saint-Père-en-Retz (44320), nous vous présentons cette maison de 4 pièces de plain-pied de 75 m². Son intérieur est composé de trois chambres, d’une cuisine et d’une salle de bains.Le terrain de la maison s’étend sur 333 m².Cette maison est neuve.Il y a des établissements scolaires (de la maternelle au lycée) à moins de 10 minutes . Les nationales N171 et N165 sont accessibles à moins de 20 km. On trouve un tennis, des commerces, une boulangerie, un supermarché et un bureau de poste dans les environs.Elle est proposée à l’achat pour 214 500 €.N’hésitez pas à prendre contact avec Vincent COUCHAUX (tél : (Numéro supprimé)) pour tout renseignement sur la maison. Donnez vie à vos projets immobiliers avec Maisons Tradilignes Pornic.
Saint-Michel-Chef-Chef
TERRAINTerrains viabilisés de 405 m² à 570 m², libres de constructeur sur la commune de Saint-Michel-Chef-Chef, en Loire-Atlantique.Découvrez notre nouvelle opération de 5 lots « Le Clos des Embruns » située rue des Mouettes.Située sur la Côte de Jade à 17km de Saint-Nazaire via la Route bleue et à 50km à l’ouest de Nantes, la Commune de Saint-Michel-Chef-Chef fait partie du pays traditionnel du Pays de Retz. La commune de Saint-Michel-Chef-Chef fait partie de Pornic agglo Pays de Retz.La ville bénéficie d’un tissu associatif dynamique tant par le nombre d’associations et de bénévoles impliqués : sport, culture, artistique ou social, les domaines d’intervention des associations sont très diversifiés.Retrouvez l’ensemble de nos lots disponibles sur notre site internet.
Saint-Père-en-Retz
TERRAIN ET MAISONSur ce terrain, nous vous proposons cette maison neuve : la DOMPIERRUM. Conçue par Maisons Privat, constructeur centenaire avec les meilleurs avis clients de la région, cette maison de 70 m² allie modernité et fonctionnalité.La DOMPIERRUM se distingue par son style contemporain et son toit plat, offrant une esthétique soignée et actuelle. Avec une surface habitable de 70 m², cette maison de plain-pied comprend 4 pièces, dont 3 chambres, idéales pour accueillir une famille. La luminosité est au rendez-vous grâce aux larges ouvertures qui baignent chaque pièce de lumière naturelle.Le garage intégré ajoute une touche de praticité, tandis que les volets roulants motorisés assurent confort et sécurité. Parmi les options les plus demandées par nos clients, vous pouvez opter pour des menuiseries en aluminium, un système de domotique pour une maison connectée, et un dressing pour un espace de rangement optimisé.Cette maison neuve est également basse consommation et conforme à la réglementation environnementale RE2020, garantissant des performances énergétiques optimales et un impact environnemental réduit.La DOMPIERRUM est une maison qui s’adapte à toutes les configurations familiales, offrant un espace de vie agréable et ouvert sur le jardin. Ne manquez pas cette opportunité de vivre dans une maison moderne, confortable et éco-responsable.
Saint-Père-en-Retz
TERRAINDécouvrez ce magnifique terrain à bâtir d’une superficie de 422 m², idéalement situé dans le lotissement de Saint-Père-en-Retz, dans la dynamique Loire-Atlantique. Ce terrain plat, entièrement viabilisé, est parfait pour concrétiser votre projet de construction de maison et vous offre un cadre de vie agréable au cœur d’une commune en pleine effervescence. La combinaison de l’espace et des infrastructures disponibles en fait une opportunité rare sur le marché. Saint-Père-en-Retz bénéficie d’une localisation stratégique, à seulement 25 minutes de Saint-Nazaire et 15 minutes du centre de Pornic, tout en étant à 35 minutes de Nantes sud. Vous serez séduit par la proximité des commerces, notamment une zone U Express, ainsi que par les écoles et le collège alentour, facilitant ainsi le quotidien des familles. Profitez également de la belle campagne environnante, de ses étangs et promenades aménagées qui vous invitent à la détente et aux activités de plein air. Ne manquez pas cette opportunité de créer votre havre de paix dans un environnement propice à l’épanouissement familial ! Contactez-nous pour plus d’informations sur ce terrain d’exception.
Chauvé
TERRAIN ET MAISONSur ce terrain, nous vous proposons cette maison neuve : La Montoise, une maison traditionnelle de plain-pied dans laquelle il fait bon vivre. Amoureux des formes simples, du bien-vivre et de la fonctionnalité, vous aimerez ce modèle de maison de plain-pied. Son fonctionnement optimal a été conçu pour assurer le confort parfait de votre famille, quelle que soit sa composition.Une surface optimisée pour plus de confort. Vous serez séduits par son espace de vie avec cuisine ouverte, bien éclairé et spacieux. Nous avons exploité le moindre centimètre pour vous offrir des espaces confortables. Ce modèle se décline en plusieurs versions, proposé de 2 à 4 chambres avec salle de bain et w.c séparés, ses surfaces oscillent de 70 à plus de 100 m². Cette maison est adaptable aux normes en vigueur si vous souhaitez la construire pour la louer.La Montoise dispose d’une surface de 70 m², comprenant 2 chambres et 3 pièces. Vous avez le choix entre une toiture à 2 pans ou 4 pans, et la maison est équipée de baies coulissantes pour un maximum de luminosité. Les options les plus demandées par nos clients incluent un garage accolé, un carport, et des menuiseries en aluminium. Cette maison neuve est basse consommation et conforme à la RE2020, garantissant des performances énergétiques optimales et un confort de vie exceptionnel.Faites confiance à Maisons Privat, constructeur centenaire avec les meilleurs avis clients de la région, pour réaliser votre projet de vie.
Saint-Michel-Chef-Chef
TERRAINVous êtes à la recherche d’un endroit idéal pour construire votre maison de rêve ? Ne cherchez plus, ce terrain à vendre à Saint-Michel-Chef-Chef présente toutes les qualités nécessaires pour vous offrir le cadre de vie parfait. Situé dans la Loire-Atlantique, ce terrain de 520m2 se trouve dans une zone paisible et verdoyante, à proximité de toutes commodités. Vous pourrez facilement accéder aux commerces et services de la ville, tout en bénéficiant d’un environnement calme et ensoleillé. La région regorge d’attraits pour toute la famille : les plages de sable fin à seulement quelques minutes, les sentiers de randonnée pour les amoureux de la nature, ainsi que les villages pittoresques à découvrir. De plus, ce terrain se situe à quelques pas de la mer, idéal pour profiter de la vue imprenable sur l’océan. Avec son top emplacement et son terrain plat, ce terrain offre un potentiel de construction optimal pour réaliser votre maison idéale. De plus, il est non-viabilisé, vous permettant ainsi de laisser libre cours à votre imagination pour la conception de votre futur chez-vous. N’attendez plus pour saisir cette opportunité unique d’acquérir un terrain dans une région pleine de charme et avec un fort potentiel de croissance. Contactez-nous dès maintenant pour en savoir plus et planifier une visite sur place. »
L’actualité immobilière à Saint-Père-en-Retz
27/11/2023
02/11/2023
30/10/2023
20/10/2023
16/10/2023
16/10/2023