Maison à construire à Saint-Philbert-de-Grand-Lieu (44310)
Images
Description
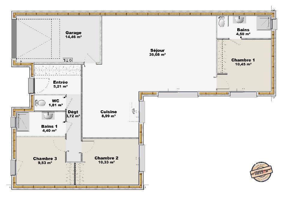
VENTE d'une maison OSSATURE BOIS de 4 pièces (95 m²) à Saint-Philbert-de-Grand-Lieu
MAISON 4 PIÈCES NEUVE - PROCHE DE NANTES
À vendre à 22 km de l'océan Atlantique et à 19 km de Nantes, ayez le coup de coeur pour cette maison de 4 pièces de plain-pied de 95 m² et de 470 m² de terrain à Saint-Philbert-de-Grand-Lieu (44310).
Conçue de plain-pied, elle compte trois chambres, une cuisine et deux salles de bains.
Son prix de vente est de 349 400 €.
Contactez notre agence (DUPONT Thibault : (Numéro supprimé)) pour toute information sur cette maison ou sur les modalités de vente. Maisons de l'Avenir Rezé est là pour vous accompagner dans toutes vos démarches.
Logement susceptibles de vous intéresser
Nous vous proposons de découvrir aussi cette sélection de logements situés à moins de 10km de Saint-Philbert-de-Grand-Lieu et qui seraient susceptibles de vous intéresser.
Saint-Colomban
TERRAIN ET MAISONA SAINT-COLOMBAN sur un terrain de 289 m², Alliance Construction vous propose de réaliser votre projet de construction de maison individuelle d'une surface de 72.93 m² habitables avec 3 chambres, à partir de 177730€*Demandez une étude gratuite et personnalisée de votre projet de construction !* Cette offre comprend :- Garanties constructeurs (dommages ouvrage, garantie de prix ferme et définitif, garantie de livraison, responsabilité civile et décennale).- Branchements aux compteurs et accès empierré sur 5m linéaires.Habitez une maison spécialement pensée et conçue pour vous et votre famille, prête à décorer, adaptée à vos modes de vie, personnalisée selon vos goûts grâce à un large choix d'options, de matériaux et d'innovations !Contactez Laurent LASSIMONNE au (Numéro supprimé) (Alliance Construction – Agence de Vallet).*Prix indicatif pour un projet de construction d'une maison individuelle. Ne sont pas inclus les frais de branchements, raccordements aux réseaux publics, frais d'adaptations, aménagements intérieurs et extérieurs et options. terrain viabilisé, frais de notaire non compris, frais divers non compris. Garanties et assurances obligatoires incluses. Terrain sélectionné par ALLIANCE auprès de nos partenaires fonciers, selon disponibilité, pour la construction d'une maison neuve. Non mandaté pour réaliser la vente (loi du 2 janvier 1970 n°70-9). Visuels non contractuels. Voir détails en agence.Cette annonce a été créée et diffusée avec le logiciel VITAHOME.
Saint-Colomban
TERRAINPrix : 50000 €.Sur ce terrain de 289 m² à SAINT-COLOMBAN, Alliance Construction vous propose de réaliser votre projet de construction de maison individuelle.Avec Alliance Construction, habitez une maison spécialement pensée et conçue pour vous et votre famille, prête à décorer, adaptée à vos modes de vie, personnalisée selon vos goûts grâce à un large choix d'options, de matériaux et d'innovations ! Demandez une étude gratuite et personnalisée de votre projet de construction sur ce terrain à SAINT-COLOMBAN !Contactez Laurent LASSIMONNE au (Numéro supprimé) (Alliance Construction – Agence de Vallet).Prix hors frais de notaire. Terrain sélectionné par ALLIANCE auprès de nos partenaires fonciers, selon disponibilité, pour la construction d'une maison neuve. Non mandaté pour réaliser la vente (loi du 2 janvier 1970 n°70-9). Visuels non contractuels. Voir détails en agence.Cette annonce a été créée et diffusée avec le logiciel VITAHOME.
Saint-Philbert-de-Grand-Lieu
TERRAINPrix : 68000 €.Sur ce terrain de 430 m² à SAINT-PHILBERT-DE-GRAND-LIEU, Alliance Construction vous propose de réaliser votre projet de construction de maison individuelle.Avec Alliance Construction, habitez une maison spécialement pensée et conçue pour vous et votre famille, prête à décorer, adaptée à vos modes de vie, personnalisée selon vos goûts grâce à un large choix d'options, de matériaux et d'innovations ! Demandez une étude gratuite et personnalisée de votre projet de construction sur ce terrain à SAINT-PHILBERT-DE-GRAND-LIEU !Contactez Laurent LASSIMONNE au (Numéro supprimé) (Alliance Construction – Agence de Vallet).Prix hors frais de notaire. Terrain sélectionné par ALLIANCE auprès de nos partenaires fonciers, selon disponibilité, pour la construction d'une maison neuve. Non mandaté pour réaliser la vente (loi du 2 janvier 1970 n°70-9). Visuels non contractuels. Voir détails en agence.Cette annonce a été créée et diffusée avec le logiciel VITAHOME.
Bouaye
TERRAIN ET MAISONA BOUAYE sur un terrain de 304 m², Alliance Construction vous propose de réaliser votre projet de construction de maison individuelle d'une surface de 77.93 m² habitables avec 3 chambres, à partir de 250700€*Informations du terrain : Opportunité Rare !Venez découvrir ce magnifique terrain à bâtir entièrement viabilisé de 304 m².Situé à seulement 300 mètres du bourg, bénéficiez d'un accès facile et rapide à l'ensemble des commodités à pied (commerces, écoles, services, etc.).Ne manquez pas cette occasion unique de construire votre avenir dans un environnement privilégié !N'hésitez pas à me solliciter si vous souhaitez des informations complémentaires pour cette annonce.Demandez une étude gratuite et personnalisée de votre projet de construction !* Cette offre comprend :- Garanties constructeurs (dommages ouvrage, garantie de prix ferme et définitif, garantie de livraison, responsabilité civile et décennale).- Branchements aux compteurs et accès empierré sur 5m linéaires.Habitez une maison spécialement pensée et conçue pour vous et votre famille, prête à décorer, adaptée à vos modes de vie, personnalisée selon vos goûts grâce à un large choix d'options, de matériaux et d'innovations !Contactez Thierry MONLEZUN au (Numéro supprimé) (Alliance Construction – Agence de Nantes Aubinière).*Prix indicatif pour un projet de construction d'une maison individuelle. Ne sont pas inclus les frais de branchements, raccordements aux réseaux publics, frais d'adaptations, aménagements intérieurs et extérieurs et options. terrain viabilisé, frais de notaire non compris, frais divers non compris. Garanties et assurances obligatoires incluses. Terrain sélectionné par ALLIANCE auprès de nos partenaires fonciers, selon disponibilité, pour la construction d'une maison neuve. Non mandaté pour réaliser la vente (loi du 2 janvier 1970 n°70-9). Visuels non contractuels. Voir détails en agence.Cette annonce a été créée et diffusée avec le logiciel VITAHOME.
Bouaye
TERRAIN ET MAISONA BOUAYE sur un terrain de 304 m², Alliance Construction vous propose de réaliser votre projet de construction de maison individuelle d'une surface de 88.04 m² habitables avec 3 chambres, à partir de 265000€*Informations du terrain : Opportunité Rare !Venez découvrir ce magnifique terrain à bâtir entièrement viabilisé de 304 m².Situé à seulement 300 mètres du bourg, bénéficiez d'un accès facile et rapide à l'ensemble des commodités à pied (commerces, écoles, services, etc.).Ne manquez pas cette occasion unique de construire votre avenir dans un environnement privilégié !N'hésitez pas à me solliciter si vous souhaitez des informations complémentaires pour cette annonce.Demandez une étude gratuite et personnalisée de votre projet de construction !* Cette offre comprend :- Garanties constructeurs (dommages ouvrage, garantie de prix ferme et définitif, garantie de livraison, responsabilité civile et décennale).- Branchements aux compteurs et accès empierré sur 5m linéaires.Habitez une maison spécialement pensée et conçue pour vous et votre famille, prête à décorer, adaptée à vos modes de vie, personnalisée selon vos goûts grâce à un large choix d'options, de matériaux et d'innovations !Contactez Thierry MONLEZUN au (Numéro supprimé) (Alliance Construction – Agence de Nantes Aubinière).*Prix indicatif pour un projet de construction d'une maison individuelle. Ne sont pas inclus les frais de branchements, raccordements aux réseaux publics, frais d'adaptations, aménagements intérieurs et extérieurs et options. terrain viabilisé, frais de notaire non compris, frais divers non compris. Garanties et assurances obligatoires incluses. Terrain sélectionné par ALLIANCE auprès de nos partenaires fonciers, selon disponibilité, pour la construction d'une maison neuve. Non mandaté pour réaliser la vente (loi du 2 janvier 1970 n°70-9). Visuels non contractuels. Voir détails en agence.Cette annonce a été créée et diffusée avec le logiciel VITAHOME.
Bouaye
TERRAIN ET MAISONA BOUAYE sur un terrain de 304 m², Alliance Construction vous propose de réaliser votre projet de construction de maison individuelle d'une surface de 95.07 m² habitables avec 3 chambres, à partir de 287900€*Informations du terrain : Opportunité Rare !Venez découvrir ce magnifique terrain à bâtir entièrement viabilisé de 304 m².Situé à seulement 300 mètres du bourg, bénéficiez d'un accès facile et rapide à l'ensemble des commodités à pied (commerces, écoles, services, etc.).Ne manquez pas cette occasion unique de construire votre avenir dans un environnement privilégié !N'hésitez pas à me solliciter si vous souhaitez des informations complémentaires pour cette annonce.Demandez une étude gratuite et personnalisée de votre projet de construction !* Cette offre comprend :- Garanties constructeurs (dommages ouvrage, garantie de prix ferme et définitif, garantie de livraison, responsabilité civile et décennale).- Branchements aux compteurs et accès empierré sur 5m linéaires.Habitez une maison spécialement pensée et conçue pour vous et votre famille, prête à décorer, adaptée à vos modes de vie, personnalisée selon vos goûts grâce à un large choix d'options, de matériaux et d'innovations !Contactez Thierry MONLEZUN au (Numéro supprimé) (Alliance Construction – Agence de Nantes Aubinière).*Prix indicatif pour un projet de construction d'une maison individuelle. Ne sont pas inclus les frais de branchements, raccordements aux réseaux publics, frais d'adaptations, aménagements intérieurs et extérieurs et options. terrain viabilisé, frais de notaire non compris, frais divers non compris. Garanties et assurances obligatoires incluses. Terrain sélectionné par ALLIANCE auprès de nos partenaires fonciers, selon disponibilité, pour la construction d'une maison neuve. Non mandaté pour réaliser la vente (loi du 2 janvier 1970 n°70-9). Visuels non contractuels. Voir détails en agence.Cette annonce a été créée et diffusée avec le logiciel VITAHOME.
Bouaye
TERRAINOpportunité Rare !Venez découvrir ce magnifique terrain à bâtir entièrement viabilisé de 304 m².Situé à seulement 300 mètres du bourg, bénéficiez d'un accès facile et rapide à l'ensemble des commodités à pied (commerces, écoles, services, etc.).Ne manquez pas cette occasion unique de construire votre avenir dans un environnement privilégié !N'hésitez pas à me solliciter si vous souhaitez des informations complémentaires pour cette annonce.Prix : 109000 €.Sur ce terrain de 304 m² à BOUAYE, Alliance Construction vous propose de réaliser votre projet de construction de maison individuelle.Avec Alliance Construction, habitez une maison spécialement pensée et conçue pour vous et votre famille, prête à décorer, adaptée à vos modes de vie, personnalisée selon vos goûts grâce à un large choix d'options, de matériaux et d'innovations ! Demandez une étude gratuite et personnalisée de votre projet de construction sur ce terrain à BOUAYE !Contactez Thierry MONLEZUN au (Numéro supprimé) (Alliance Construction – Agence de Nantes Aubinière).Prix hors frais de notaire. Terrain sélectionné par ALLIANCE auprès de nos partenaires fonciers, selon disponibilité, pour la construction d'une maison neuve. Non mandaté pour réaliser la vente (loi du 2 janvier 1970 n°70-9). Visuels non contractuels. Voir détails en agence.Cette annonce a été créée et diffusée avec le logiciel VITAHOME.
La Chevrolière
TERRAIN ET MAISONOpportunité sur le secteur de la Chevrolière, terrain viabilisé de 213 m². Des espaces optimisés pour cette charmante maison de plain-pied lumineuse grâce à son espace de vie éclairé par sa grande baie vitrée et sa lumière traversante, cuisine ouverte avec accès direct au cellier. Côté nuit, un dégagement dessert trois chambres avec rangement, salle de bains et wc indépendant. Pour vous assurer un confort de vie et conformément à la RE2025, nous avons choisi un mode de chauffage par PAC + plancher chauffant, volets roulants électriques. Prix hors fourniture et pose : des appareils sanitaires (sauf système de chauffage et d'eau chaude sanitaire), du carrelage et de la faïence, des revêtements de sol dans les chambres. Hors décoration et aménagement intérieur et peinture. Hors raccordements, frais de notaire et dommage ouvrage. // Réf. : 996-210764-MVR. Prix terrain : 73 000 €, hors frais d'agence à la charge de l'acquéreur. Ce terrain vous est proposé, par nos partenaires fonciers, dans le cadre d'un projet de construction avec nous. Les informations sur les risques auxquels ce bien est exposé sont disponibles sur le site Géorisques (www.georisques.gouv.fr). Prix maison : 118 004 €.
La Chevrolière
TERRAIN ET MAISONOpportunité sur le secteur de la Chevrolière, terrain viabilisé de 213 m². Idéal premier achat, cette maison de plain-pied fonctionnelle et lumineuse vous propose une vaste pièce de vie éclairée par sa grande baie vitrée avec cuisine ouverte, deux chambres avec rangement, salle de bains et cellier indépendantPour vous assurer un confort de vie et conformément à la RE2025, nous avons choisi un mode de chauffage par PAC + plancher chauffant, volets roulants électriques. Prix hors fourniture et pose : des appareils sanitaires (sauf système de chauffage et d'eau chaude sanitaire), du carrelage et de la faïence, des revêtements de sol dans les chambres. Hors décoration et aménagement intérieur et peinture. Hors raccordements, frais de notaire et dommage ouvrage. // Réf. : 919-210764-MVR. Prix terrain : 73 000 €, hors frais d'agence à la charge de l'acquéreur. Ce terrain vous est proposé, par nos partenaires fonciers, dans le cadre d'un projet de construction avec nous. Les informations sur les risques auxquels ce bien est exposé sont disponibles sur le site Géorisques (www.georisques.gouv.fr). Prix maison : 103 973 €.
L’actualité immobilière à Saint-Philbert-de-Grand-Lieu
27/11/2023
02/11/2023
30/10/2023
20/10/2023
16/10/2023
16/10/2023