Maison à construire à Saint-Philbert-de-Grand-Lieu (44310)
Images
Description
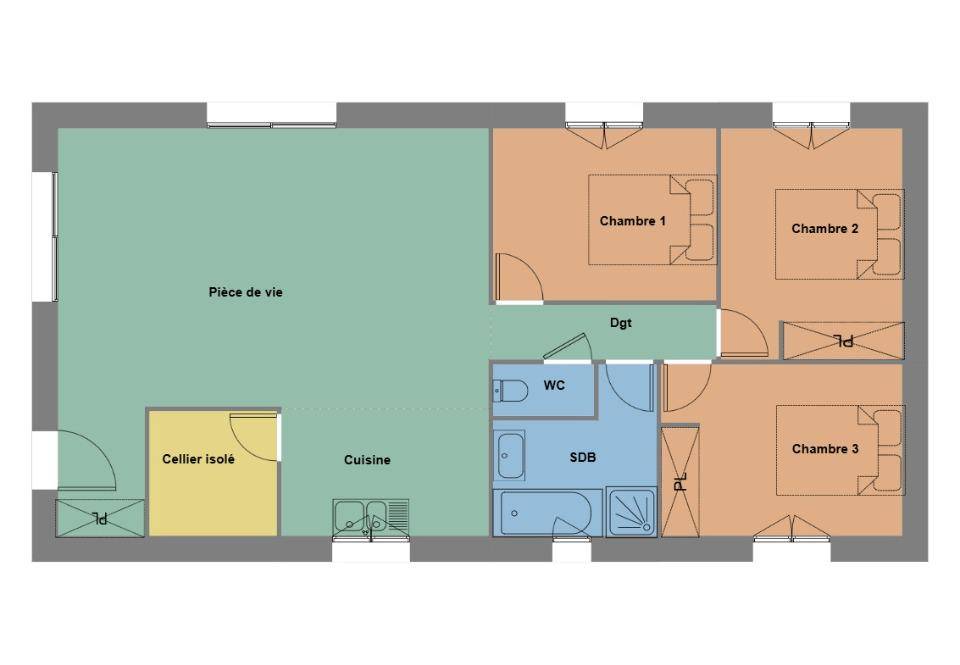
VENTE : maison F4 (85 m²) à Saint-Philbert-de-Grand-Lieu
IDÉALEMENT SITUÉE - MAISON 4 PIÈCES NEUVE
À vendre : idéalement située dans Saint-Philbert-de-Grand-Lieu (44310), venez découvrir cette maison de 4 pièces de plain-pied de 85 m² et de 470 m² de terrain. Son intérieur compte trois chambres, une cuisine et une salle de bains.
Cette maison est neuve.
La maison est située dans un secteur convoité. On trouve cinq établissements scolaires à moins de 10 minutes à pied. L'autoroute A83 et la nationale N844 sont accessibles à moins de 16 km. Il y a un tennis, des commerces, trois boulangeries, un bureau de poste, une poissonnerie et trois boucheries-charcuteries à proximité. Enfin, le marché Place de l'église anime le quartier chaque dimanche matin.
Elle est à vendre pour la somme de 277 300 €.
Prenez contact avec Badri LADIYE MOUSSA ((Numéro supprimé)) pour plus d'informations sur la propriété ou sur les démarches à suivre.
Logement susceptibles de vous intéresser
Nous vous proposons de découvrir aussi cette sélection de logements situés à moins de 10km de Saint-Philbert-de-Grand-Lieu et qui seraient susceptibles de vous intéresser.
Saint-Colomban
TERRAIN ET MAISONDécouvrez ce terrain situé à Saint Colomban, dans un environnement calme et proche du bourg. Avec une belle surface de 840 m², il constitue un cadre idéal pour concevoir et bâtir votre maison sur mesure. Les avantages de ce terrain:. Localisation privilégiée : Profitez du charme du centre bourg, paisible, tout en restant à proximité de Nantes et de ses opportunités grâce à un accès rapide aux grands axes. Cadre de vie agréable : Un secteur apprécié pour sa sérénité, parfait pour concrétiser un projet qui vous ressemble. Contactez-nous dès maintenant pour organiser une visite et obtenir plus d’informations. Un style unique, un confort absolu – et si c’était votre maison ? Ici, chaque détail a été pensé pour allier design, espace et bien-être. Une suite parentale avec dressing et salle d’eau, un séjour lumineux, une cuisine qui donne envie de partager… Cette maison est un véritable cocon moderne et fonctionnel. À l’étage, deux belles chambres, une salle de bains et des espaces optimisés pour que chacun profite pleinement de son intimité. Besoin de plus ? Cette maison s’adapte à vos envies : un bureau, un espace détente, une salle de jeux ? C’est vous qui décidez !. Pour un confort optimal et conforme à la RE2025, cette maison dispose d’une PAC avec plancher chauffant, radiateurs à l’étage et volets roulants électriques. À noter : Le prix indiqué exclut les revêtements de sol des chambres, la cuisine aménagée, la peinture, la décoration, les raccordements, les frais de notaire et l’assurance dommages-ouvrage. (Piscine non contractuelle, non comprise dans le prix). Contactez-nous dès aujourd’hui pour concrétiser votre projet et façonner votre futur chez-vous !. . . // Réf. : 542-213677-RRI. Prix terrain : 109 000 €, hors frais d'agence à la charge de l'acquéreur. Ce terrain vous est proposé, par nos partenaires fonciers, dans le cadre d'un projet de construction avec nous. Les informations sur les risques auxquels ce bien est exposé sont disponibles sur le site Géorisques (www.georisques.gouv.fr). Prix maison : 275 003 €.
Saint-Colomban
TERRAINDécouvrez ce terrain situé à Saint Colomban, dans un environnement calme et proche du bourg. Avec une belle surface de 840 m², il constitue un cadre idéal pour concevoir et bâtir votre maison sur mesure. Les avantages de ce terrain:. Localisation privilégiée : Profitez du charme du centre bourg, paisible, tout en restant à proximité de Nantes et de ses opportunités grâce à un accès rapide aux grands axes. Cadre de vie agréable : Un secteur apprécié pour sa sérénité, parfait pour concrétiser un projet qui vous ressemble. Contactez-nous dès maintenant pour organiser une visite et obtenir plus d’informations. // Réf. : T213677. Prix terrain : 109 000 €, hors frais d'agence et de notaire à la charge de l'acquéreur. Ce terrain vous est proposé, par nos partenaires fonciers, dans le cadre d'un projet de construction avec nous. Les informations sur les risques auxquels ce bien est exposé sont disponibles sur le site Géorisques (www.georisques.gouv.fr).
Saint-Colomban
TERRAIN ET MAISONDécouvrez ce terrain situé à Saint Colomban, dans un environnement calme et proche du bourg. Avec une belle surface de 840 m², il constitue un cadre idéal pour concevoir et bâtir votre maison sur mesure. Les avantages de ce terrain:. Localisation privilégiée : Profitez du charme du centre bourg, paisible, tout en restant à proximité de Nantes et de ses opportunités grâce à un accès rapide aux grands axes. Cadre de vie agréable : Un secteur apprécié pour sa sérénité, parfait pour concrétiser un projet qui vous ressemble. Contactez-nous dès maintenant pour organiser une visite et obtenir plus d’informations. Fonctionnalité et confort familial ! Un espace généreux et lumineux de plus de 160 m² habitables, conçu pour offrir un cadre de vie agréable et fluide. Un séjour spacieux, une cuisine ouverte, et 4 chambres bien agencées, dont une suite parentale avec dressing au rez-de-chaussée. Un équilibre parfait entre intimité et convivialité, avec de grandes ouvertures et un aménagement optimisé. Garage, cellier et rangements intégrés pour un quotidien plus pratique. Un projet évolutif qui s’adapte à vos envies et besoins. Pour un confort optimal et conforme à la RE2025, cette maison dispose d’une PAC avec plancher chauffant au rez-de-chaussée, radiateurs à l’étage et volets roulants électriques. À noter : Le prix indiqué exclut les revêtements de sol des chambres, la cuisine aménagée, la peinture, la décoration, les raccordements, les frais de notaire et l’assurance dommages-ouvrage. (Piscine non contractuelle, non comprise dans le prix). // Réf. : 1673-213677-RRI. Prix terrain : 109 000 €, hors frais d'agence à la charge de l'acquéreur. Ce terrain vous est proposé, par nos partenaires fonciers, dans le cadre d'un projet de construction avec nous. Les informations sur les risques auxquels ce bien est exposé sont disponibles sur le site Géorisques (www.georisques.gouv.fr). Prix maison : 442 290 €.
Saint-Colomban
TERRAIN ET MAISONDécouvrez ce terrain situé à Saint Colomban, dans un environnement calme et proche du bourg. Avec une belle surface de 840 m², il constitue un cadre idéal pour concevoir et bâtir votre maison sur mesure. Les avantages de ce terrain:. Localisation privilégiée : Profitez du charme du centre bourg, paisible, tout en restant à proximité de Nantes et de ses opportunités grâce à un accès rapide aux grands axes. Cadre de vie agréable : Un secteur apprécié pour sa sérénité, parfait pour concrétiser un projet qui vous ressemble. Contactez-nous dès maintenant pour organiser une visite et obtenir plus d’informations. Compacte et élégante, cette maison optimise chaque mètre carré pour offrir un cadre de vie chaleureux et pratique. Son vaste espace de vie ouvert, baigné de lumière, crée une atmosphère conviviale et fluide. Avec 3 chambres, dont une au rez-de-chaussée, elle s’adapte à toutes les étapes de la vie et garantit un équilibre parfait entre intimité et partage. Un garage intégré, des rangements malins et une conception bien pensée en font une maison aussi esthétique que fonctionnelle. Un modèle personnalisable, conçu pour s’adapter à vos envies et à votre style de vie. Laissez libre cours à votre imagination et contactez-nous pour en savoir plus !. Pour un confort optimal et conforme à la RE2025, cette maison dispose d’une PAC avec plancher chauffant au rez-de-chaussée, radiateurs à l’étage et volets roulants électriques. À noter : Le prix indiqué exclut les revêtements de sol des chambres, la cuisine aménagée, la peinture, la décoration, les raccordements, les frais de notaire et l’assurance dommages-ouvrage. . // Réf. : 348-213677-RRI. Prix terrain : 109 000 €, hors frais d'agence à la charge de l'acquéreur. Ce terrain vous est proposé, par nos partenaires fonciers, dans le cadre d'un projet de construction avec nous. Les informations sur les risques auxquels ce bien est exposé sont disponibles sur le site Géorisques (www.georisques.gouv.fr). Prix maison : 219 450 €.
La Marne
TERRAINTerrain à bâtir, viabilisé, situé en plein bourg de la MARNE. Impasse de 9 lots, au calme. // Réf. : T213543. Prix terrain : 73 000 €, hors frais d'agence et de notaire à la charge de l'acquéreur. Ce terrain vous est proposé, par nos partenaires fonciers, dans le cadre d'un projet de construction avec nous. Les informations sur les risques auxquels ce bien est exposé sont disponibles sur le site Géorisques (www.georisques.gouv.fr).
La Marne
TERRAIN ET MAISONTerrain à bâtir, viabilisé, situé en plein bourg de la MARNE. Impasse de 9 lots, au calme. Du charme pour cette maison de plain-pied en V composée d'un très bel espace de vie lumineux avec cuisine US. Le plus pour cette maison est son garage intégré donnant accès au cellier et à la cuisine. Un dégagement dessert l'espace nuit qui vous offre 4 chambres avec rangements, une salle de bains et wc séparés. Pour vous assurer un confort de vie et conformément à la RE2025, nous avons choisi un mode de chauffage par PAC + plancher chauffant, volets roulants électriques. Prix hors fourniture et pose : des appareils sanitaires (sauf système de chauffage et d'eau chaude sanitaire), du carrelage et de la faïence, des revêtements de sol dans les chambres. Hors décoration et aménagement intérieur et peinture. Hors raccordements, frais de notaire et dommage ouvrage. // Réf. : 670-213543-MVR. Prix terrain : 73 000 €, hors frais d'agence à la charge de l'acquéreur. Ce terrain vous est proposé, par nos partenaires fonciers, dans le cadre d'un projet de construction avec nous. Les informations sur les risques auxquels ce bien est exposé sont disponibles sur le site Géorisques (www.georisques.gouv.fr). Prix maison : 146 009 €.
La Marne
TERRAIN ET MAISONTerrain à bâtir, viabilisé, situé en plein bourg de la MARNE. Impasse de 9 lots, au calme. Maison de plain-pied en L de 110 m² habitables composée d’un espace de vie lumineux grâce à sa baie vitrée donnant sur le jardin, une cuisine ouverte qui a un accès direct sur le cellier. Côté nuit, un dégagement dessert 3 chambres dont 1 suite parentale avec dressing et salle d’eau privative, deux chambres avec rangements, une salle de bains indépendante. Pour vous assurer un confort de vie et conformément à la RE2025, nous avons choisi un mode de chauffage par PAC + plancher chauffant, volets roulants électriques. Prix hors fourniture et pose : des appareils sanitaires (sauf système de chauffage et d'eau chaude sanitaire), du carrelage et de la faïence, des revêtements de sol dans les chambres. Hors décoration et aménagement intérieur et peinture. Hors raccordements, frais de notaire et dommage ouvrage. // Réf. : 823-213543-MVR. Prix terrain : 73 000 €, hors frais d'agence à la charge de l'acquéreur. Ce terrain vous est proposé, par nos partenaires fonciers, dans le cadre d'un projet de construction avec nous. Les informations sur les risques auxquels ce bien est exposé sont disponibles sur le site Géorisques (www.georisques.gouv.fr). Prix maison : 150 418 €.
La Marne
TERRAIN ET MAISONTerrain à bâtir, viabilisé, situé en plein bourg de la MARNE. Impasse de 9 lots, au calme. Idéale pour une première acquisition, cette charmante maison de plain-pied vous accueille dans un très bel espace de vie baigné de lumière grâce à sa baie vitrée. Elle vous offre également deux chambres, une salle de bains et des wc séparés. Le garage est intégré à la maison et communique avec le cellier. Pour vous assurer un confort de vie et conformément à la RE2025, nous avons choisi un mode de chauffage par PAC + plancher chauffant, volets roulants électriques. Prix hors fourniture et pose : des appareils sanitaires (sauf système de chauffage et d'eau chaude sanitaire), du carrelage et de la faïence, des revêtements de sol dans les chambres. Hors décoration et aménagement intérieur et peinture. Hors raccordements, frais de notaire et dommage ouvrage. // Réf. : 1122-213543-MVR. Prix terrain : 73 000 €, hors frais d'agence à la charge de l'acquéreur. Ce terrain vous est proposé, par nos partenaires fonciers, dans le cadre d'un projet de construction avec nous. Les informations sur les risques auxquels ce bien est exposé sont disponibles sur le site Géorisques (www.georisques.gouv.fr). Prix maison : 112 710 €.
La Chevrolière
TERRAIN ET MAISONBeau terrain situé dans un environnement calme et verdoyant, proche des commodités et idéal pour concrétiser votre projet de construction. Agréable et spacieuse, cette maison de plain-pied vous propose une cuisine aménagée ouverte sur un vaste salon séjour donnant sur l'arrière. La cuisine est à proximité d'un cellier et d'un garage, ce qui facilite l'habitabilité de cette maison. L'espace nuit est composé de trois belles chambres avec rangement, d'une salle de bains équipée et des wc séparés. Ses jeux d'enduits personnalisables sauront vous séduire. Pour vous assurer un confort de vie et conformément à la RE2025, nous avons choisi un mode de chauffage par PAC + plancher chauffant, volets roulants électriques. Prix hors fourniture et pose : des appareils sanitaires (sauf système de chauffage et d'eau chaude sanitaire), du carrelage et de la faïence, des revêtements de sol dans les chambres. Hors décoration et aménagement intérieur et peinture. Hors raccordements, frais de notaire et dommage ouvrage. // Réf. : 1086-213534-VAS. Prix terrain : 113 000 €, hors frais d'agence à la charge de l'acquéreur. Ce terrain vous est proposé, par nos partenaires fonciers, dans le cadre d'un projet de construction avec nous. Les informations sur les risques auxquels ce bien est exposé sont disponibles sur le site Géorisques (www.georisques.gouv.fr). Prix maison : 134 030 €.
L’actualité immobilière à Saint-Philbert-de-Grand-Lieu
27/11/2023
02/11/2023
30/10/2023
20/10/2023
16/10/2023
16/10/2023