Maison à construire à Sainte-Luce-sur-Loire (44980)
Images
Description
VENTE d'une maison de 4 pièces (80 m²) à Sainte-Luce-sur-Loire
IDÉALEMENT SITUÉE - MAISON 4 PIÈCES NEUVE
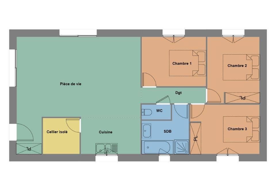
À 28 km de la côte atlantique et à 7 km de Nantes, à vendre idéalement située dans Sainte-Luce-sur-Loire (44980), notre agence Maisons de l'Avenir Rezé est ravie de vous présenter cette maison de 4 pièces de plain-pied de 80 m² et de 420 m² de terrain. Conçue de plain-pied, elle comporte trois chambres, une cuisine et une salle de bains.
Cette maison est neuve.
Le bien se trouve dans un quartier convoité. Des écoles maternelles et élémentaires sont implantées à moins de 10 minutes à pied, tout comme une structure d'accueil pour les tout-petits. Niveau transports, il y a 13 gares à moins de 10 minutes en voiture. L'autoroute A811 et la nationale N844 sont accessibles à moins de 1 km. On trouve un tennis, des boulangeries, des commerces, deux supermarchés, une poissonnerie et un bureau de poste à quelques minutes. Ne manquez pas le marché Place de Gaulle tous les samedis matin.
Son prix de vente est de 288 500 €.
Prenez contact avec notre constructeur (DUPONT Thibault : (Numéro supprimé)) pour obtenir de plus amples informations sur la maison ou sur les modalités de vente.
Logement susceptibles de vous intéresser
Nous vous proposons de découvrir aussi cette sélection de logements situés à moins de 10km de Sainte-Luce-sur-Loire et qui seraient susceptibles de vous intéresser.
Saint-Julien-de-Concelles
TERRAIN ET MAISONA SAINT-JULIEN-DE-CONCELLES sur un terrain de 485 m², Alliance Construction vous propose de réaliser votre projet de construction de maison individuelle d'une surface de 88.04 m² habitables avec 3 chambres, à partir de 270925€*Demandez une étude gratuite et personnalisée de votre projet de construction !* Cette offre comprend :- Garanties constructeurs (dommages ouvrage, garantie de prix ferme et définitif, garantie de livraison, responsabilité civile et décennale).- Branchements aux compteurs et accès empierré sur 5m linéaires.Habitez une maison spécialement pensée et conçue pour vous et votre famille, prête à décorer, adaptée à vos modes de vie, personnalisée selon vos goûts grâce à un large choix d'options, de matériaux et d'innovations !Contactez Laurent LASSIMONNE au (Numéro supprimé) (Alliance Construction – Agence de Vallet).*Prix indicatif pour un projet de construction d'une maison individuelle. Ne sont pas inclus les frais de branchements, raccordements aux réseaux publics, frais d'adaptations, aménagements intérieurs et extérieurs et options. terrain non viabilisé, frais de notaire non compris, frais divers non compris. Garanties et assurances obligatoires incluses. Terrain sélectionné par ALLIANCE auprès de nos partenaires fonciers, selon disponibilité, pour la construction d'une maison neuve. Non mandaté pour réaliser la vente (loi du 2 janvier 1970 n°70-9). Visuels non contractuels. Voir détails en agence.Cette annonce a été créée et diffusée avec le logiciel VITAHOME.
Saint-Julien-de-Concelles
TERRAINPrix : 98500 €.Sur ce terrain de 500 m² à SAINT-JULIEN-DE-CONCELLES, Alliance Construction vous propose de réaliser votre projet de construction de maison individuelle.Avec Alliance Construction, habitez une maison spécialement pensée et conçue pour vous et votre famille, prête à décorer, adaptée à vos modes de vie, personnalisée selon vos goûts grâce à un large choix d'options, de matériaux et d'innovations ! Demandez une étude gratuite et personnalisée de votre projet de construction sur ce terrain à SAINT-JULIEN-DE-CONCELLES !Contactez Laurent LASSIMONNE au (Numéro supprimé) (Alliance Construction – Agence de Vallet).Prix hors frais de notaire. Terrain sélectionné par ALLIANCE auprès de nos partenaires fonciers, selon disponibilité, pour la construction d'une maison neuve. Non mandaté pour réaliser la vente (loi du 2 janvier 1970 n°70-9). Visuels non contractuels. Voir détails en agence.Cette annonce a été créée et diffusée avec le logiciel VITAHOME.
Saint-Julien-de-Concelles
TERRAINPrix : 115000 €.Sur ce terrain de 485 m² à SAINT-JULIEN-DE-CONCELLES, Alliance Construction vous propose de réaliser votre projet de construction de maison individuelle.Avec Alliance Construction, habitez une maison spécialement pensée et conçue pour vous et votre famille, prête à décorer, adaptée à vos modes de vie, personnalisée selon vos goûts grâce à un large choix d'options, de matériaux et d'innovations ! Demandez une étude gratuite et personnalisée de votre projet de construction sur ce terrain à SAINT-JULIEN-DE-CONCELLES !Contactez Laurent LASSIMONNE au (Numéro supprimé) (Alliance Construction – Agence de Vallet).Prix hors frais de notaire. Terrain sélectionné par ALLIANCE auprès de nos partenaires fonciers, selon disponibilité, pour la construction d'une maison neuve. Non mandaté pour réaliser la vente (loi du 2 janvier 1970 n°70-9). Visuels non contractuels. Voir détails en agence.Cette annonce a été créée et diffusée avec le logiciel VITAHOME.
Carquefou
TERRAINFiche N°Id-TCT178468 : CARQUEFOU Fiche BC178468 : Carquefou, Terrain d’environ 527 m2 de 527 m2 – – Plus d’informations disponibles sur demande… – Mentions légales : Proposé à la vente à 217300 Euros (Dont 6% TTC d’honoraires à la charge de l’acquéreur, soit un prix hors honoraires de 205000 Euros) – Affaire suivie par Mme Noemie Vettier (Conseiller immobilier salarié) – Reseau Immo-Diffusion Nantes – Pour plus d’informations, contactez notre secrétariat au (Numéro supprimé) (Appel gratuit ou prix d’une communication locale)
Saint-Sébastien-sur-Loire
TERRAINVENTE : terrain de 420 m² à Saint-Sébastien-sur-LoireEMPLACEMENT PRIVILÉGIÉÀ Saint-Sébastien-sur-Loire (44230) à 26 km de l’océan Atlantique, donnez vie à votre projet immobilier sur ce terrain de 420 m². Il bénéficie d’une exposition sud-ouest. Dans un quartier attractif, ce terrain bénéficiant d’un emplacement d’exception est proche des commerces et des écoles. Le Collège René Bernier, l’École Maternelle Publique Centre et l’École Élémentaire Publique Théodore Monod sont implantés à moins de 10 minutes à pied, tout comme trois crèches. Côté transports en commun, on trouve 11 gares à moins de 10 minutes en voiture. Des autoroutes et les nationales N844 et N249 sont accessibles à moins de 10 km. Il y a une bibliothèque, un tennis, des commerces, des boulangeries, un supermarché, un bureau de poste et une poissonnerie dans les environs. Enfin, le marché Place Cambronne a lieu tous les mardis matin.Ce terrain est proposé à l’achat pour 230 000 €. N’hésitez pas à prendre contact avec Franck DUJARDIN ((Numéro supprimé)) pour tout renseignement sur le terrain. Maisons Tradilignes Saint-Sébastien-sur-Loire vous accompagne à toutes les étapes de l’achat et dans tous vos projets immobiliers.
Saint-Sébastien-sur-Loire
TERRAIN ET MAISONSaint-Sébastien-sur-Loire : maison de 6 pièces (187 m²) à vendreEMPLACEMENT PRIVILÉGIÉ – MAISON 6 PIÈCES NEUVEÀ vendre : à 26 km de la côte atlantique, bénéficiant d’un emplacement privilégié dans Saint-Sébastien-sur-Loire (44230), Maisons Tradilignes Saint-Sébastien-sur-Loire vous présente cette maison de 6 pièces de plain-pied de 187 m² et de 420 m² de terrain.Elle se divise en cinq chambres, une cuisine et deux salles de bains. Cette maison est neuve.La maison se trouve dans un quartier attractif. Il y a le Collège René Bernier, l’École Maternelle Publique Centre et l’École Élémentaire Publique Théodore Monod à moins de 10 minutes à pied et trois structures d’accueil pour les tout-petits. Côté transports en commun, on trouve 11 gares à moins de 10 minutes en voiture. Des autoroutes et les nationales N844 et N249 sont accessibles à moins de 10 km. Il y a une bibliothèque, un tennis, des commerces, des boulangeries, un supermarché, une boucherie-charcuterie et un bureau de poste dans les environs. Ne manquez pas le marché Place Cambronne chaque mardi matin.Elle est proposée à l’achat pour 782 000 €.Contactez Franck DUJARDIN (tél : (Numéro supprimé)) pour toute information sur la maison ou sur les démarches à suivre. Maisons Tradilignes Saint-Sébastien-sur-Loire est là pour vous accompagner à toutes les étapes de votre projet.
Saint-Sébastien-sur-Loire
TERRAIN ET MAISONVENTE : maison de 5 pièces (144 m²) à Saint-Sébastien-sur-LoireEMPLACEMENT PRIVILÉGIÉ – MAISON 5 PIÈCES NEUVEÀ vendre : située à 26 km de l’océan Atlantique, bénéficiant d’un emplacement d’exception dans Saint-Sébastien-sur-Loire (44230), Maisons Tradilignes Saint-Sébastien-sur-Loire vous propose cette maison de 5 pièces de 144 m² et de 420 m² de terrain. Son intérieur comporte quatre chambres, une cuisine et deux salles de bains.C’est une maison de 2 niveaux. Elle est neuve.Cette maison est située dans un secteur prisé. Le Collège René Bernier, l’École Maternelle Publique Centre et l’École Élémentaire Publique Théodore Monod sont implantés à moins de 10 minutes à pied, tout comme trois crèches. Niveau transports en commun, il y a 11 gares à moins de 10 minutes en voiture. Des autoroutes et les nationales N844 et N249 sont accessibles à moins de 10 km. On trouve une bibliothèque, un tennis, des commerces, des boulangeries, un supermarché, une poissonnerie et une supérette dans les environs. Enfin, le marché Place Cambronne anime le quartier chaque mardi matin.Elle est proposée à l’achat pour 592 000 €.Prenez contact avec Franck DUJARDIN (tél : (Numéro supprimé)) pour toute information sur la maison ou sur les modalités de vente.
Saint-Sébastien-sur-Loire
TERRAIN ET MAISONVENTE d’une maison F4 (106 m²) à Saint-Sébastien-sur-LoireEMPLACEMENT PRIVILÉGIÉ – MAISON 4 PIÈCES NEUVEÀ 26 km de la côte atlantique, laissez vous charmer par en vente, bénéficiant d’un emplacement d’exception dans Saint-Sébastien-sur-Loire (44230), cette maison de 4 pièces de 106 m² et de 420 m² de terrain.Cette maison comporte 2 niveaux. Elle offre trois chambres, une cuisine et deux salles de bains. Cette maison est neuve.Ce bien est situé dans un quartier prisé. On trouve le Collège René Bernier, l’École Maternelle Publique Centre et l’École Élémentaire Publique Théodore Monod à moins de 10 minutes à pied et trois structures d’accueil pour les enfants en bas âge. Niveau transports, il y a 11 gares à moins de 10 minutes en voiture. Des autoroutes et les nationales N844 et N249 sont accessibles à moins de 10 km. On trouve une bibliothèque, un tennis, des commerces, des boulangeries, un supermarché, une poissonnerie et un bureau de poste à quelques minutes. Ne manquez pas le marché Place Cambronne chaque mardi matin.Son prix de vente est de 475 000 €.Prenez contact avec notre agence (DUJARDIN Franck : (Numéro supprimé)) pour tout renseignement sur la maison.
Saint-Sébastien-sur-Loire
TERRAIN ET MAISONVENTE d’une maison de 5 pièces (98 m²) à Saint-Sébastien-sur-LoireEMPLACEMENT PRIVILÉGIÉ – MAISON 5 PIÈCES NEUVEEn vente à 26 km de la côte atlantique, nous sommes ravis de vous présenter, bénéficiant d’un emplacement d’exception dans Saint-Sébastien-sur-Loire (44230), cette maison de 5 pièces de 98 m². Elle offre quatre chambres, une cuisine et une salle de bains.Le terrain de la maison s’étend sur 420 m².C’est une maison de 2 niveaux. Elle est neuve.Cette maison est située dans un quartier attractif. On trouve le Collège René Bernier, l’École Maternelle Publique Centre et l’École Élémentaire Publique Théodore Monod à moins de 10 minutes à pied et trois structures d’accueil pour les tout-petits. Niveau transports, il y a 11 gares à moins de 10 minutes en voiture. Des autoroutes et les nationales N844 et N249 sont accessibles à moins de 10 km. On trouve une bibliothèque, un tennis, des commerces, des boulangeries, un supermarché, un bureau de poste et une supérette à proximité de la maison. Ne manquez pas le marché Place Cambronne tous les mardis matin.Elle est proposée à l’achat pour 462 000 €.Prenez contact avec Franck DUJARDIN ((Numéro supprimé)) pour toute information sur la maison. Faites de vos projets immobiliers une réalité avec Maisons Tradilignes Saint-Sébastien-sur-Loire.
L’actualité immobilière à Sainte-Luce-sur-Loire
27/11/2023
02/11/2023
30/10/2023
20/10/2023
16/10/2023
16/10/2023