Maison à construire à Sainte-Pazanne (44680)
Images
Description
VENTE : maison de 5 pièces (95 m²) à Sainte-Pazanne
MAISON 5 PIÈCES NEUVE - PROCHE DE NANTES
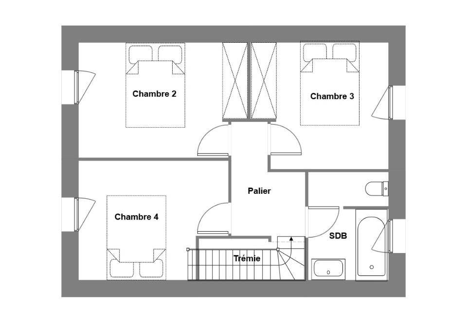
En vente : à 12 km de la côte atlantique et à quelques kilomètres de Nantes, découvrez à Sainte-Pazanne (44680), cette maison de 5 pièces de 95 m². Son intérieur propose quatre chambres, une cuisine et une salle de bains.
Le terrain du bien s'étend sur 407 m².
Cette maison possède 2 niveaux.
Elle est à vendre pour la somme de 326 000 €.
Prenez contact avec notre agence (DUPONT Thibault : (Numéro supprimé)) pour toute question sur la propriété, sur les démarches à suivre ou sur les modalités de vente. Donnez vie à vos projets immobiliers avec Maisons de l'Avenir Rezé.
Logement susceptibles de vous intéresser
Nous vous proposons de découvrir aussi cette sélection de logements situés à moins de 10km de Sainte-Pazanne et qui seraient susceptibles de vous intéresser.
Villeneuve-en-Retz
TERRAIN ET MAISONNichée en pleine nature cette maison de plain-pied, naturelle et confortable, est revêtue d’un bardage bois et d’une toiture en ardoises. Le pignon vitré offre une ouverture complète sur l’extérieur. La maison est ainsi baignée de lumière et la connexion avec la nature favorisée.Les mois les plus froids, le poêle à granulés programmable suffit à réchauffer l’ensemble de la maison.Vous rêvez de construire cette maison ? En choisissant My Lovely Nature, vous avez frappé à la bonne porte. Nous serons heureux de vous accompagner dans votre projet de vie au naturel.Contactez-nous au (Numéro supprimé) (My Lovely Nature – Agence de Nantes MLN).*Prix indicatif pour un projet de construction d'une maison individuelle. Ne sont pas inclus les frais de branchements, raccordements aux réseaux publics, frais d'adaptations, aménagements intérieurs et extérieurs et options. terrain viabilisé, frais de notaire compris, frais divers compris. Garanties et assurances obligatoires incluses. Terrain sélectionné par MY LOVELY NATURE auprès de nos partenaires fonciers, selon disponibilité, pour la construction d'une maison neuve. Non mandaté pour réaliser la vente (loi du 2 janvier 1970 n°70-9). Visuels non contractuels. Voir détails en agence.Cette annonce a été créée et diffusée avec le logiciel VITAHOME.
Villeneuve-en-Retz
TERRAINPetit lotissement, à seulement 10 minutes des premières plages.Prix : 72900 €.Vous rêvez de construire votre propre habitat naturel. Un lieu de vie qui vous reconnecte à la nature, à votre vraie nature. Un toit qui vous protège en toute saison, un refuge pour vous et ceux que vous aimez. En choisissant My Lovely Nature, vous avez frappé à la bonne porte. Nous serons heureux de vous accompagner dans votre projet de vie au naturel.Contactez-nous au (Numéro supprimé) (My Lovely Nature – Agence de Nantes MLN).Prix honoraires inclus et hors frais de notaire. Terrain sélectionné par MY LOVELY NATURE auprès de nos partenaires fonciers, selon disponibilité, pour la construction d'une maison neuve. Non mandaté pour réaliser la vente (loi du 2 janvier 1970 n°70-9). Visuels non contractuels. Voir détails en agence.Cette annonce a été créée et diffusée avec le logiciel VITAHOME.
Villeneuve-en-Retz
TERRAIN ET MAISONVous rêvez de construire cette maison ? En choisissant My Lovely Nature, vous avez frappé à la bonne porte. Nous serons heureux de vous accompagner dans votre projet de vie au naturel.Contactez-nous au (Numéro supprimé) (My Lovely Nature – Agence de Nantes MLN).*Prix indicatif pour un projet de construction d'une maison individuelle. Ne sont pas inclus les frais de branchements, raccordements aux réseaux publics, frais d'adaptations, aménagements intérieurs et extérieurs et options. terrain viabilisé, frais de notaire compris, frais divers compris. Garanties et assurances obligatoires incluses. Terrain sélectionné par MY LOVELY NATURE auprès de nos partenaires fonciers, selon disponibilité, pour la construction d'une maison neuve. Non mandaté pour réaliser la vente (loi du 2 janvier 1970 n°70-9). Visuels non contractuels. Voir détails en agence.Cette annonce a été créée et diffusée avec le logiciel VITAHOME.
Villeneuve-en-Retz
TERRAIN ET MAISONVous rêvez de construire cette maison ? En choisissant My Lovely Nature, vous avez frappé à la bonne porte. Nous serons heureux de vous accompagner dans votre projet de vie au naturel.Contactez-nous au (Numéro supprimé) (My Lovely Nature – Agence de Nantes MLN).*Prix indicatif pour un projet de construction d'une maison individuelle. Ne sont pas inclus les frais de branchements, raccordements aux réseaux publics, frais d'adaptations, aménagements intérieurs et extérieurs et options. terrain viabilisé, frais de notaire compris, frais divers compris. Garanties et assurances obligatoires incluses. Terrain sélectionné par MY LOVELY NATURE auprès de nos partenaires fonciers, selon disponibilité, pour la construction d'une maison neuve. Non mandaté pour réaliser la vente (loi du 2 janvier 1970 n°70-9). Visuels non contractuels. Voir détails en agence.Cette annonce a été créée et diffusée avec le logiciel VITAHOME.
Villeneuve-en-Retz
TERRAIN ET MAISONVous rêvez de construire cette maison ? En choisissant My Lovely Nature, vous avez frappé à la bonne porte. Nous serons heureux de vous accompagner dans votre projet de vie au naturel.Contactez-nous au (Numéro supprimé) (My Lovely Nature – Agence de Nantes MLN).*Prix indicatif pour un projet de construction d'une maison individuelle. Ne sont pas inclus les frais de branchements, raccordements aux réseaux publics, frais d'adaptations, aménagements intérieurs et extérieurs et options. terrain viabilisé, frais de notaire compris, frais divers compris. Garanties et assurances obligatoires incluses. Terrain sélectionné par MY LOVELY NATURE auprès de nos partenaires fonciers, selon disponibilité, pour la construction d'une maison neuve. Non mandaté pour réaliser la vente (loi du 2 janvier 1970 n°70-9). Visuels non contractuels. Voir détails en agence.Cette annonce a été créée et diffusée avec le logiciel VITAHOME.
Port-Saint-Père
TERRAIN ET MAISONA PORT-SAINT-PERE sur un terrain de 431 m², Alliance Construction vous propose de réaliser votre projet de construction de maison individuelle d'une surface de 92.96 m² habitables avec 3 chambres, à partir de 284900€*Informations du terrain : Vous recherchez un terrain à bâtir entièrement viabilisé proche de toutes les commodités ? Ne cherchez plus ! Ce terrain de 431 m², situé à seulement 500 mètres du centre-bourg de Port-Saint-Père, vous offre un cadre de vie idéal pour votre famille.Demandez une étude gratuite et personnalisée de votre projet de construction !* Cette offre comprend :- Garanties constructeurs (dommages ouvrage, garantie de prix ferme et définitif, garantie de livraison, responsabilité civile et décennale).- Branchements aux compteurs et accès empierré sur 5m linéaires.Habitez une maison spécialement pensée et conçue pour vous et votre famille, prête à décorer, adaptée à vos modes de vie, personnalisée selon vos goûts grâce à un large choix d'options, de matériaux et d'innovations !Contactez Thierry MONLEZUN au (Numéro supprimé) (Alliance Construction – Agence de Nantes Aubinière).*Prix indicatif pour un projet de construction d'une maison individuelle. Ne sont pas inclus les frais de branchements, raccordements aux réseaux publics, frais d'adaptations, aménagements intérieurs et extérieurs et options. terrain viabilisé, frais de notaire non compris, frais divers non compris. Garanties et assurances obligatoires incluses. Terrain sélectionné par ALLIANCE auprès de nos partenaires fonciers, selon disponibilité, pour la construction d'une maison neuve. Non mandaté pour réaliser la vente (loi du 2 janvier 1970 n°70-9). Visuels non contractuels. Voir détails en agence.Cette annonce a été créée et diffusée avec le logiciel VITAHOME.
Villeneuve-en-Retz
TERRAIN ET MAISONVous rêvez de construire cette maison ? En choisissant My Lovely Nature, vous avez frappé à la bonne porte. Nous serons heureux de vous accompagner dans votre projet de vie au naturel.Contactez-nous au (Numéro supprimé) (My Lovely Nature – Agence de Nantes MLN).*Prix indicatif pour un projet de construction d'une maison individuelle. Ne sont pas inclus les frais de branchements, raccordements aux réseaux publics, frais d'adaptations, aménagements intérieurs et extérieurs et options. terrain viabilisé, frais de notaire compris, frais divers compris. Garanties et assurances obligatoires incluses. Terrain sélectionné par MY LOVELY NATURE auprès de nos partenaires fonciers, selon disponibilité, pour la construction d'une maison neuve. Non mandaté pour réaliser la vente (loi du 2 janvier 1970 n°70-9). Visuels non contractuels. Voir détails en agence.Cette annonce a été créée et diffusée avec le logiciel VITAHOME.
Villeneuve-en-Retz
TERRAIN ET MAISONVous rêvez de construire cette maison ? En choisissant My Lovely Nature, vous avez frappé à la bonne porte. Nous serons heureux de vous accompagner dans votre projet de vie au naturel.Contactez-nous au (Numéro supprimé) (My Lovely Nature – Agence de Nantes MLN).*Prix indicatif pour un projet de construction d'une maison individuelle. Ne sont pas inclus les frais de branchements, raccordements aux réseaux publics, frais d'adaptations, aménagements intérieurs et extérieurs et options. terrain viabilisé, frais de notaire compris, frais divers compris. Garanties et assurances obligatoires incluses. Terrain sélectionné par MY LOVELY NATURE auprès de nos partenaires fonciers, selon disponibilité, pour la construction d'une maison neuve. Non mandaté pour réaliser la vente (loi du 2 janvier 1970 n°70-9). Visuels non contractuels. Voir détails en agence.Cette annonce a été créée et diffusée avec le logiciel VITAHOME.
Villeneuve-en-Retz
TERRAIN ET MAISONMaison à volumétrie simple, compacte, économe.Elle incarne le principe de la préfabrication industrialisée et d’un habitat soucieux de son impact environnemental.Elle est aussi évolutive et pourra se développer par l’ajout de nouveaux volumes au fil du temps, selon vos besoins.De larges baies coulissantes en alu, dotées de Brise-Soleil Orientables, captent la lumière naturelle au sud et à l’ouest et ouvrent sur une vaste terrasse. Avec sa structure bois, la pergola est aussi une option d’aménagement extérieur intéressante, proposant un espace de vie intermédiaire entre maison et jardin et invitant glycine, chèvrefeuille et clématite à l’ornementer.Vous rêvez de construire cette maison ? En choisissant My Lovely Nature, vous avez frappé à la bonne porte. Nous serons heureux de vous accompagner dans votre projet de vie au naturel.Contactez-nous au (Numéro supprimé) (My Lovely Nature – Agence de Nantes MLN).*Prix indicatif pour un projet de construction d'une maison individuelle. Ne sont pas inclus les frais de branchements, raccordements aux réseaux publics, frais d'adaptations, aménagements intérieurs et extérieurs et options. terrain viabilisé, frais de notaire compris, frais divers compris. Garanties et assurances obligatoires incluses. Terrain sélectionné par MY LOVELY NATURE auprès de nos partenaires fonciers, selon disponibilité, pour la construction d'une maison neuve. Non mandaté pour réaliser la vente (loi du 2 janvier 1970 n°70-9). Visuels non contractuels. Voir détails en agence.Cette annonce a été créée et diffusée avec le logiciel VITAHOME.
L’actualité immobilière à Sainte-Pazanne
27/11/2023
02/11/2023
30/10/2023
20/10/2023
16/10/2023
16/10/2023