Maison à construire à Treillières (44119)
Images
Description
VENTE : maison de 5 pièces (105 m²) à Treillières
MAISON 5 PIÈCES NEUVE - PROCHE DE NANTES
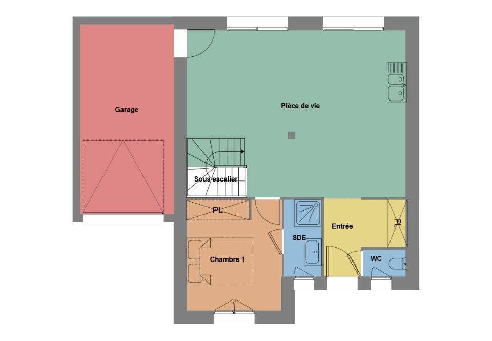
À 18 km de l'océan Atlantique et à quelques kilomètres de Nantes, en vente à Treillières (44119), Maisons de l'Avenir Rezé vous présente cette maison de 5 pièces de 105 m². Son intérieur offre quatre chambres, une cuisine et deux salles de bains.
Le terrain de la propriété s'étend sur 340 m².
Il s'agit d'une maison de 2 niveaux.
Elle est proposée à l'achat pour 396 000 €.
Prenez contact avec Thibault DUPONT (tél : (Numéro supprimé)) pour obtenir de plus amples informations sur la maison.
Logement susceptibles de vous intéresser
Nous vous proposons de découvrir aussi cette sélection de logements situés à moins de 10km de Treillières et qui seraient susceptibles de vous intéresser.
Orvault
TERRAIN ET MAISONA ORVAULT sur un terrain de 552 m², Alliance Construction vous propose de réaliser votre projet de construction de maison individuelle d'une surface de 119.53 m² habitables avec 4 chambres, à partir de 482000€*Informations du terrain : Offre rare à Orvault ! Découvrez ce superbe terrain à bâtir viabilisé, situé dans un cadre idyllique sans vis-à-vis. Ce terrain vous séduira par son environnement boisé et paisible, idéal pour construire la maison de vos rêves.Situé à Orvault, charmante commune proche de Nantes, réputée pour ses espaces verts, ses infrastructures de qualité et son cadre de vie agréable. Orvault offre un excellent compromis entre nature et accessibilité urbaine.Demandez une étude gratuite et personnalisée de votre projet de construction !* Cette offre comprend :- Garanties constructeurs (dommages ouvrage, garantie de prix ferme et définitif, garantie de livraison, responsabilité civile et décennale).- Branchements aux compteurs et accès empierré sur 5m linéaires.Habitez une maison spécialement pensée et conçue pour vous et votre famille, prête à décorer, adaptée à vos modes de vie, personnalisée selon vos goûts grâce à un large choix d'options, de matériaux et d'innovations !Contactez Thierry MONLEZUN au (Numéro supprimé) (Alliance Construction – Agence de Nantes Aubinière).*Prix indicatif pour un projet de construction d'une maison individuelle. Ne sont pas inclus les frais de branchements, raccordements aux réseaux publics, frais d'adaptations, aménagements intérieurs et extérieurs et options. terrain viabilisé, frais de notaire non compris, frais divers non compris. Garanties et assurances obligatoires incluses. Terrain sélectionné par ALLIANCE auprès de nos partenaires fonciers, selon disponibilité, pour la construction d'une maison neuve. Non mandaté pour réaliser la vente (loi du 2 janvier 1970 n°70-9). Visuels non contractuels. Voir détails en agence.Cette annonce a été créée et diffusée avec le logiciel VITAHOME.
Orvault
TERRAIN ET MAISONA ORVAULT sur un terrain de 552 m², Alliance Construction vous propose de réaliser votre projet de construction de maison individuelle d'une surface de 88.04 m² habitables avec 3 chambres, à partir de 355500€*Informations du terrain : Offre rare à Orvault ! Découvrez ce superbe terrain à bâtir viabilisé, situé dans un cadre idyllique sans vis-à-vis. Ce terrain vous séduira par son environnement boisé et paisible, idéal pour construire la maison de vos rêves.Situé à Orvault, charmante commune proche de Nantes, réputée pour ses espaces verts, ses infrastructures de qualité et son cadre de vie agréable. Orvault offre un excellent compromis entre nature et accessibilité urbaine.Demandez une étude gratuite et personnalisée de votre projet de construction !* Cette offre comprend :- Garanties constructeurs (dommages ouvrage, garantie de prix ferme et définitif, garantie de livraison, responsabilité civile et décennale).- Branchements aux compteurs et accès empierré sur 5m linéaires.Habitez une maison spécialement pensée et conçue pour vous et votre famille, prête à décorer, adaptée à vos modes de vie, personnalisée selon vos goûts grâce à un large choix d'options, de matériaux et d'innovations !Contactez Thierry MONLEZUN au (Numéro supprimé) (Alliance Construction – Agence de Nantes Aubinière).*Prix indicatif pour un projet de construction d'une maison individuelle. Ne sont pas inclus les frais de branchements, raccordements aux réseaux publics, frais d'adaptations, aménagements intérieurs et extérieurs et options. terrain viabilisé, frais de notaire non compris, frais divers non compris. Garanties et assurances obligatoires incluses. Terrain sélectionné par ALLIANCE auprès de nos partenaires fonciers, selon disponibilité, pour la construction d'une maison neuve. Non mandaté pour réaliser la vente (loi du 2 janvier 1970 n°70-9). Visuels non contractuels. Voir détails en agence.Cette annonce a été créée et diffusée avec le logiciel VITAHOME.
Orvault
TERRAINOffre rare à Orvault ! Découvrez ce superbe terrain à bâtir viabilisé, situé dans un cadre idyllique sans vis-à-vis. Ce terrain vous séduira par son environnement boisé et paisible, idéal pour construire la maison de vos rêves.Situé à Orvault, charmante commune proche de Nantes, réputée pour ses espaces verts, ses infrastructures de qualité et son cadre de vie agréable. Orvault offre un excellent compromis entre nature et accessibilité urbaine.Prix : 192000 €.Sur ce terrain de 552 m² à ORVAULT, Alliance Construction vous propose de réaliser votre projet de construction de maison individuelle.Avec Alliance Construction, habitez une maison spécialement pensée et conçue pour vous et votre famille, prête à décorer, adaptée à vos modes de vie, personnalisée selon vos goûts grâce à un large choix d'options, de matériaux et d'innovations ! Demandez une étude gratuite et personnalisée de votre projet de construction sur ce terrain à ORVAULT !Contactez Thierry MONLEZUN au (Numéro supprimé) (Alliance Construction – Agence de Nantes Aubinière).Prix hors frais de notaire. Terrain sélectionné par ALLIANCE auprès de nos partenaires fonciers, selon disponibilité, pour la construction d'une maison neuve. Non mandaté pour réaliser la vente (loi du 2 janvier 1970 n°70-9). Visuels non contractuels. Voir détails en agence.Cette annonce a été créée et diffusée avec le logiciel VITAHOME.
Notre-Dame-des-Landes
TERRAIN ET MAISONNouveau sur NOTRE-DAME-DES-LANDES et idéalement situé, ce modèle ALLIANCE propose 5 pièces avec séjour-salon, cuisine, 4 chambres, garage sur un terrain 499 m². A partir de 254000€*. Bénéficiez d’une maison certifiée NF Habitat et d’un patrimoine valorisé ! (Titulaire NF Habitat N°49-13-0182-A). Habitez une maison spécialement pensée et conçue pour vous et votre famille, prête à décorer, adaptée à votre mode de vie, personnalisée selon vos goûts grâce à un large choix d’options, de matériaux et d’innovations ! – Cuisine aménagée – équipée sur mesure (conception de plans et pose) – Maison connectée Somfy / Deltadore – Volets roulants électriques et connectés – Verrières, dressing et portes de placards Coulidoor – Chauffage intégré air/air silencieux et réversible Aldes – Portes intérieures matricées Huet – Carrelage grès cérame plein masse Porcelanosa – Faïence jusqu’à 30×90 – Placo Activ’Air – Revêtements de sols Quick Step – Sanitaires Jacob Delafond – Interrupteurs Schneider Unica – Plans PMR – Géobiologie – Feng Shui – Coaching déco – Architecture d’intérieureContactez Benoit COCHIN au (Numéro supprimé) (Alliance Construction – Agence de Pontchâteau).*Prix indicatif pour un projet de construction d'une maison individuelle. Ne sont pas inclus les frais de branchements, raccordements aux réseaux publics, frais d'adaptations, aménagements intérieurs et extérieurs et options. terrain non viabilisé, frais de notaire non compris, frais divers non compris. Garanties et assurances obligatoires incluses. Terrain sélectionné par ALLIANCE auprès de nos partenaires fonciers, selon disponibilité, pour la construction d'une maison neuve. Non mandaté pour réaliser la vente (loi du 2 janvier 1970 n°70-9). Visuels non contractuels. Voir détails en agence.Cette annonce a été créée et diffusée avec le logiciel VITAHOME.
Orvault
TERRAIN ET MAISONA ORVAULT sur un terrain de 305 m², Alliance Construction vous propose de réaliser votre projet de construction de maison individuelle d'une surface de 107.07 m² habitables avec 4 chambres, à partir de 415500€*Informations du terrain : Envie de vivre à proximité de Nantes tout en profitant d'un environnement calme ? Ce terrain viabilisé, situé à Orvault, est fait pour vous. À quelques minutes des commerces, des écoles et des transports en commun, il vous permettra de concilier vie de famille et déplacements facilités.Demandez une étude gratuite et personnalisée de votre projet de construction !* Cette offre comprend :- Garanties constructeurs (dommages ouvrage, garantie de prix ferme et définitif, garantie de livraison, responsabilité civile et décennale).- Branchements aux compteurs et accès empierré sur 5m linéaires.Habitez une maison spécialement pensée et conçue pour vous et votre famille, prête à décorer, adaptée à vos modes de vie, personnalisée selon vos goûts grâce à un large choix d'options, de matériaux et d'innovations !Contactez Thierry MONLEZUN au (Numéro supprimé) (Alliance Construction – Agence de Nantes Aubinière).*Prix indicatif pour un projet de construction d'une maison individuelle. Ne sont pas inclus les frais de branchements, raccordements aux réseaux publics, frais d'adaptations, aménagements intérieurs et extérieurs et options. terrain viabilisé, frais de notaire non compris, frais divers non compris. Garanties et assurances obligatoires incluses. Terrain sélectionné par ALLIANCE auprès de nos partenaires fonciers, selon disponibilité, pour la construction d'une maison neuve. Non mandaté pour réaliser la vente (loi du 2 janvier 1970 n°70-9). Visuels non contractuels. Voir détails en agence.Cette annonce a été créée et diffusée avec le logiciel VITAHOME.
Notre-Dame-des-Landes
TERRAIN ET MAISONA NOTRE-DAME-DES-LANDES sur un terrain de 499 m², Alliance Construction vous propose de réaliser votre projet de construction de maison individuelle d'une surface de 106.13 m² habitables avec 4 chambres, à partir de 316300€*Informations du terrain : Non loin du centreExposé plein sud sur l'arrièreDemandez une étude gratuite et personnalisée de votre projet de construction !* Cette offre comprend :- Garanties constructeurs (dommages ouvrage, garantie de prix ferme et définitif, garantie de livraison, responsabilité civile et décennale).- Branchements aux compteurs et accès empierré sur 5m linéaires.Habitez une maison spécialement pensée et conçue pour vous et votre famille, prête à décorer, adaptée à vos modes de vie, personnalisée selon vos goûts grâce à un large choix d'options, de matériaux et d'innovations !Contactez Benoit COCHIN au (Numéro supprimé) (Alliance Construction – Agence de Pontchâteau).*Prix indicatif pour un projet de construction d'une maison individuelle. Ne sont pas inclus les frais de branchements, raccordements aux réseaux publics, frais d'adaptations, aménagements intérieurs et extérieurs et options. terrain non viabilisé, frais de notaire non compris, frais divers non compris. Garanties et assurances obligatoires incluses. Terrain sélectionné par ALLIANCE auprès de nos partenaires fonciers, selon disponibilité, pour la construction d'une maison neuve. Non mandaté pour réaliser la vente (loi du 2 janvier 1970 n°70-9). Visuels non contractuels. Voir détails en agence.Cette annonce a été créée et diffusée avec le logiciel VITAHOME.
Notre-Dame-des-Landes
TERRAINNon loin du centreExposé plein sud sur l'arrièrePrix : 85000 €.Sur ce terrain de 499 m² à NOTRE-DAME-DES-LANDES, Alliance Construction vous propose de réaliser votre projet de construction de maison individuelle.Avec Alliance Construction, habitez une maison spécialement pensée et conçue pour vous et votre famille, prête à décorer, adaptée à vos modes de vie, personnalisée selon vos goûts grâce à un large choix d'options, de matériaux et d'innovations ! Demandez une étude gratuite et personnalisée de votre projet de construction sur ce terrain à NOTRE-DAME-DES-LANDES !Contactez Benoit COCHIN au (Numéro supprimé) (Alliance Construction – Agence de Pontchâteau).Prix hors frais de notaire. Terrain sélectionné par ALLIANCE auprès de nos partenaires fonciers, selon disponibilité, pour la construction d'une maison neuve. Non mandaté pour réaliser la vente (loi du 2 janvier 1970 n°70-9). Visuels non contractuels. Voir détails en agence.Cette annonce a été créée et diffusée avec le logiciel VITAHOME.
Notre-Dame-des-Landes
TERRAIN ET MAISONALLIANCE, 1er constructeur maison Feng-Shui. Votre maison 4 pièces avec 3 chambres sur un terrain de 499 m² à partir de 276000€*.Bénéficiez d’une maison certifiée NF Habitat et d’un patrimoine valorisé ! (Titulaire NF Habitat N°49-13-0182-A).Habitez une maison spécialement pensée et conçue pour vous et votre famille, prête à décorer, adaptée à votre mode de vie, personnalisée selon vos goûts grâce à un large choix d’options, de matériaux et d’innovations !Contactez Benoit COCHIN au (Numéro supprimé) (Alliance Construction – Agence de Pontchâteau).*Prix indicatif pour un projet de construction d'une maison individuelle. Ne sont pas inclus les frais de branchements, raccordements aux réseaux publics, frais d'adaptations, aménagements intérieurs et extérieurs et options. terrain non viabilisé, frais de notaire non compris, frais divers non compris. Garanties et assurances obligatoires incluses. Terrain sélectionné par ALLIANCE auprès de nos partenaires fonciers, selon disponibilité, pour la construction d'une maison neuve. Non mandaté pour réaliser la vente (loi du 2 janvier 1970 n°70-9). Visuels non contractuels. Voir détails en agence.Cette annonce a été créée et diffusée avec le logiciel VITAHOME.
Orvault
TERRAIN ET MAISONA ORVAULT sur un terrain de 552 m², Alliance Construction vous propose de réaliser votre projet de construction de maison individuelle d'une surface de 95.07 m² habitables avec 3 chambres, à partir de 378800€*Informations du terrain : Offre rare à Orvault ! Découvrez ce superbe terrain à bâtir viabilisé, situé dans un cadre idyllique sans vis-à-vis. Ce terrain vous séduira par son environnement boisé et paisible, idéal pour construire la maison de vos rêves.Situé à Orvault, charmante commune proche de Nantes, réputée pour ses espaces verts, ses infrastructures de qualité et son cadre de vie agréable. Orvault offre un excellent compromis entre nature et accessibilité urbaine.Demandez une étude gratuite et personnalisée de votre projet de construction !* Cette offre comprend :- Garanties constructeurs (dommages ouvrage, garantie de prix ferme et définitif, garantie de livraison, responsabilité civile et décennale).- Branchements aux compteurs et accès empierré sur 5m linéaires.Habitez une maison spécialement pensée et conçue pour vous et votre famille, prête à décorer, adaptée à vos modes de vie, personnalisée selon vos goûts grâce à un large choix d'options, de matériaux et d'innovations !Contactez Thierry MONLEZUN au (Numéro supprimé) (Alliance Construction – Agence de Nantes Aubinière).*Prix indicatif pour un projet de construction d'une maison individuelle. Ne sont pas inclus les frais de branchements, raccordements aux réseaux publics, frais d'adaptations, aménagements intérieurs et extérieurs et options. terrain viabilisé, frais de notaire non compris, frais divers non compris. Garanties et assurances obligatoires incluses. Terrain sélectionné par ALLIANCE auprès de nos partenaires fonciers, selon disponibilité, pour la construction d'une maison neuve. Non mandaté pour réaliser la vente (loi du 2 janvier 1970 n°70-9). Visuels non contractuels. Voir détails en agence.Cette annonce a été créée et diffusée avec le logiciel VITAHOME.
L’actualité immobilière à Treillières
27/11/2023
02/11/2023
30/10/2023
20/10/2023
16/10/2023
16/10/2023