Maison à construire à Vertou (44120)
Images
Description
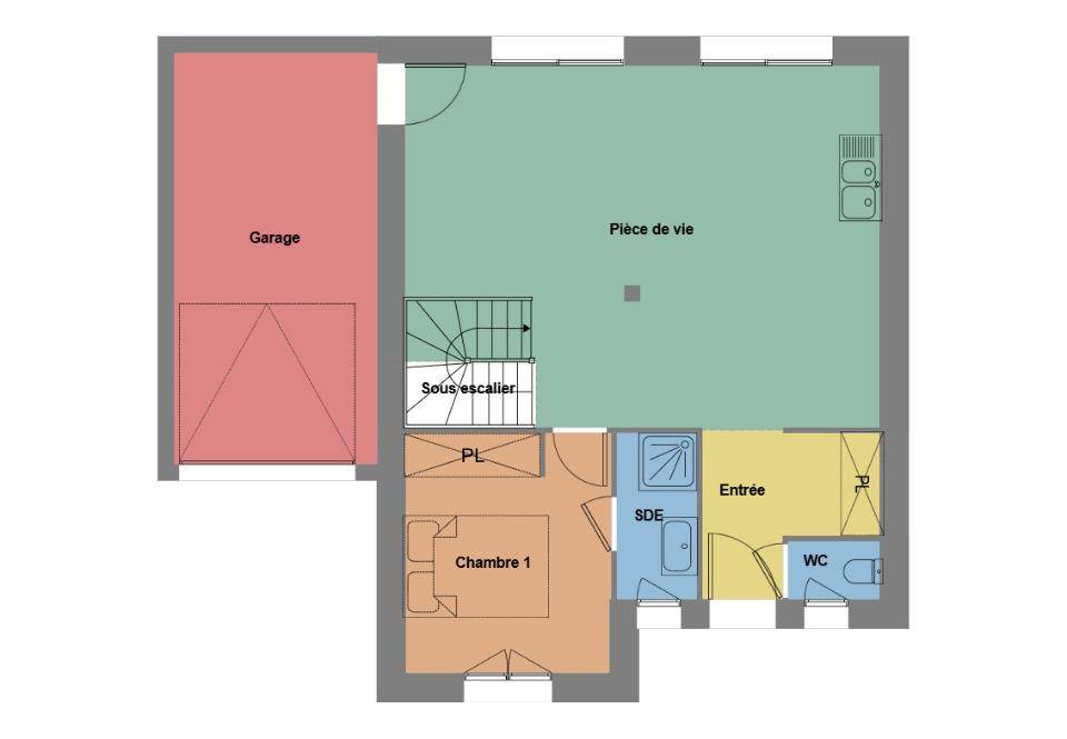
Maison F5 (89 m²) en vente à Vertou
EMPLACEMENT PRIVILÉGIÉ - MAISON 5 PIÈCES NEUVE
À vendre à 31 km de la côte atlantique, venez découvrir, bénéficiant d'un emplacement privilégié dans Vertou (44120), cette maison de 5 pièces de 89 m². Son intérieur propose quatre chambres, une cuisine et deux salles de bains.
Le terrain de cette maison s'étend sur 581 m².
C'est une maison de 2 niveaux. Elle est neuve.
Ce bien se trouve dans un secteur attractif. Plusieurs établissements scolaires (maternelle, élémentaire, primaire et collège) y sont implantés. Côté transports, il y a sept gares à moins de 10 minutes en voiture. L'autoroute A83 et les nationales N844 et N249 sont accessibles à moins de 5 km. On trouve une bibliothèque et un tennis à quelques minutes à peine.
Son prix de vente est de 388 300 €.
Contactez Pierre Antoine BURILLE (tél : (Numéro supprimé)) pour tout renseignement sur la maison. Maisons de l'Avenir Rezé vous accompagne à toutes les étapes de votre projet et dans tous vos projets immobiliers.
Logement susceptibles de vous intéresser
Nous vous proposons de découvrir aussi cette sélection de logements situés à moins de 10km de Vertou et qui seraient susceptibles de vous intéresser.
Vertou
TERRAINFiche N°Id-TCT177471 : VERTOU Fiche BC177471 : Vertou, secteur Les pegers, Terrain d’environ 1250 m2 – – Equipements annexes : – chauffage : Aucun – Plus d’informations disponibles sur demande… – Mentions légales : Proposé à la vente à 162000 Euros (Dont 8% TTC d’honoraires à la charge de l’acquéreur, soit un prix hors honoraires de 150000 Euros) – Affaire suivie par Mr Mickael CLEMENCEAU (Agent commercial independant) – Reseau Immo-Diffusion Vertou – Pour plus d’informations, contactez notre secrétariat au (Numéro supprimé) (Appel gratuit ou prix d’une communication locale)
Rezé
TERRAINRezé : terrain de 470 m² à vendreEMPLACEMENT PRIVILÉGIÉ – VUE SANS VIS-À-VISÀ 21 km de l’océan Atlantique à Rezé (44400), terrain de 470 m². Réalisez-y votre résidence principale ou secondaire. Il profite d’une vue sans vis-à-vis en bord de sevre et est orienté au sud-est. Dans un secteur recherché, ce terrain bénéficiant d’un emplacement d’exception est proche des écoles et des commerces. Il y a plusieurs écoles (maternelle, élémentaire et collège) à moins de 10 minutes à pied, tout comme trois crèches. Niveau transports en commun, on trouve neuf gares à moins de 10 minutes en voiture. L’autoroute A83 et les nationales N844, N249 et N444 sont accessibles à moins de 9 km. Il y a une bibliothèque, des commerces, des boulangeries, un supermarché, un bureau de poste et deux épiceries à quelques minutes de la propriété.Il est proposé à l’achat pour 150 000 €. N’hésitez pas à prendre contact avec Franck DUJARDIN ((Numéro supprimé)) pour toute question sur ce terrain.
Saint-Sébastien-sur-Loire
TERRAINVENTE : terrain de 420 m² à Saint-Sébastien-sur-LoireEMPLACEMENT PRIVILÉGIÉÀ Saint-Sébastien-sur-Loire (44230) à 26 km de l’océan Atlantique, donnez vie à votre projet immobilier sur ce terrain de 420 m². Il bénéficie d’une exposition sud-ouest. Dans un quartier attractif, ce terrain bénéficiant d’un emplacement d’exception est proche des commerces et des écoles. Le Collège René Bernier, l’École Maternelle Publique Centre et l’École Élémentaire Publique Théodore Monod sont implantés à moins de 10 minutes à pied, tout comme trois crèches. Côté transports en commun, on trouve 11 gares à moins de 10 minutes en voiture. Des autoroutes et les nationales N844 et N249 sont accessibles à moins de 10 km. Il y a une bibliothèque, un tennis, des commerces, des boulangeries, un supermarché, un bureau de poste et une poissonnerie dans les environs. Enfin, le marché Place Cambronne a lieu tous les mardis matin.Ce terrain est proposé à l’achat pour 230 000 €. N’hésitez pas à prendre contact avec Franck DUJARDIN ((Numéro supprimé)) pour tout renseignement sur le terrain. Maisons Tradilignes Saint-Sébastien-sur-Loire vous accompagne à toutes les étapes de l’achat et dans tous vos projets immobiliers.
Maisdon-sur-Sèvre
TERRAINVENTE d’un terrain de 370 m² à Maisdon-sur-SèvreIDÉALEMENT SITUÉ – PROCHE DE NANTESÀ 41 km de la côte atlantique et à deux pas de Nantes à Maisdon-sur-Sèvre (44690), terrain de 370 m². Il bénéficie d’une exposition sud-ouest. Dans un quartier recherché, le terrain idéalement situé est proche des écoles et des commerces. On trouve l’École Primaire Publique Jules Verne et l’École Primaire Privée Sainte Anne à moins de 10 minutes à pied. Niveau transports, il y a quatre gares à moins de 10 minutes en voiture. L’autoroute A83 et la nationale N249 sont accessibles à moins de 9 km. On trouve un tennis, un commerce, une boulangerie et une épicerie à quelques minutes.Ce terrain est à vendre pour la somme de 95 000 €. Contactez notre agence (DUJARDIN Franck : (Numéro supprimé)) pour obtenir de plus amples informations sur le terrain, sur les démarches à suivre ou sur les modalités de vente. Concrétisez vos projets immobiliers avec Maisons Tradilignes Saint-Sébastien-sur-Loire.
Rezé
TERRAIN ET MAISONRezé : maison de 6 pièces (187 m²) en venteEMPLACEMENT PRIVILÉGIÉ – MAISON 6 PIÈCES NEUVEÀ 21 km de l’océan Atlantique, notre agence Maisons Tradilignes Saint-Sébastien-sur-Loire est ravie de vous présenter cette maison de 6 pièces de plain-pied de 187 m² et de 470 m² de terrain bénéficiant d’un emplacement privilégié dans Rezé (44400).Elle est composée de cinq chambres, d’une cuisine et de deux salles de bains. Cette maison est neuve.La maison se trouve dans un secteur recherché. Plusieurs établissements scolaires (maternelle, élémentaire et collège) sont implantés à moins de 10 minutes à pied, tout comme trois crèches. Niveau transports en commun, on trouve neuf gares à moins de 10 minutes en voiture. L’autoroute A83 et les nationales N844, N249 et N444 sont accessibles à moins de 9 km. Il y a une bibliothèque, des commerces, des boulangeries, un supermarché, deux épiceries et un bureau de poste à quelques minutes.Son prix de vente est de 685 000 €.Contactez Franck DUJARDIN ((Numéro supprimé)) pour toute question sur la maison, sur les modalités de vente ou sur les démarches à suivre. Faites de vos projets immobiliers une réalité avec Maisons Tradilignes Saint-Sébastien-sur-Loire.
Rezé
TERRAIN ET MAISONMaison T5 (144 m²) à vendre à RezéEMPLACEMENT PRIVILÉGIÉ – MAISON 5 PIÈCES NEUVEÀ 21 km de l’océan Atlantique, nous vous présentons cette maison de 5 pièces de 144 m² et de 470 m² de terrain bénéficiant d’un emplacement d’exception dans Rezé (44400). Elle comporte quatre chambres, une cuisine et deux salles de bains.Cette maison possède 2 niveaux. Elle est neuve.Le bien se trouve dans un secteur convoité. Plusieurs établissements scolaires (maternelle, élémentaire et collège) sont implantés à moins de 10 minutes à pied, tout comme trois structures d’accueil pour la petite enfance. Niveau transports en commun, on trouve neuf gares à moins de 10 minutes en voiture. L’autoroute A83 et les nationales N844, N249 et N444 sont accessibles à moins de 9 km. Il y a une bibliothèque, des commerces, des boulangeries, un supermarché, un bureau de poste et deux épiceries dans les environs.Il est à vendre pour la somme de 507 000 €.Contactez Franck DUJARDIN (tél : (Numéro supprimé)) pour plus de renseignements sur la maison. Donnez vie à vos projets immobiliers avec Maisons Tradilignes Saint-Sébastien-sur-Loire.
Rezé
TERRAIN ET MAISONRezé : maison de 4 pièces (139 m²) à vendreEMPLACEMENT PRIVILÉGIÉ – MAISON 4 PIÈCES NEUVEÀ vendre : à 21 km de l’océan Atlantique, bénéficiant d’un emplacement d’exception dans Rezé (44400), Maisons Tradilignes Saint-Sébastien-sur-Loire vous propose cette maison de 4 pièces de 139 m².Cette maison compte 2 niveaux. Elle compte trois chambres, une cuisine et deux salles de bains. La maison est neuve.Le terrain du bien est de 470 m².Cette maison se situe dans un secteur prisé. Plusieurs établissements scolaires (maternelle, élémentaire et collège) sont implantés à moins de 10 minutes à pied, tout comme trois crèches. Niveau transports, il y a neuf gares à moins de 10 minutes en voiture. L’autoroute A83 et les nationales N844, N249 et N444 sont accessibles à moins de 9 km. On trouve une bibliothèque, des commerces, des boulangeries, un supermarché, un bureau de poste et deux épiceries à quelques minutes de la maison.Elle est proposée à l’achat pour 485 000 €.Prenez contact avec notre agence (Franck DUJARDIN : (Numéro supprimé)) pour toute question sur la maison, sur les démarches à suivre et sur les modalités de vente. Maisons Tradilignes Saint-Sébastien-sur-Loire est là pour vous accompagner dans tous vos projets immobiliers.
Rezé
TERRAIN ET MAISONRezé : maison de 4 pièces (95 m²) en venteEMPLACEMENT PRIVILÉGIÉ – MAISON 4 PIÈCES NEUVEÀ 21 km de l’océan Atlantique, à vendre bénéficiant d’un emplacement d’exception dans Rezé (44400), nous sommes heureux de vous proposer cette maison de 4 pièces de plain-pied de 95 m². Conçue de plain-pied, elle propose deux chambres, une cuisine et une salle de bains.Le terrain de la propriété s’étend sur 470 m².Cette maison est neuve.La maison est située dans un quartier recherché. On trouve plusieurs écoles (maternelle, élémentaire et collège) à moins de 10 minutes à pied, tout comme trois crèches. Côté transports en commun, il y a neuf gares à moins de 10 minutes en voiture. L’autoroute A83 et les nationales N844, N249 et N444 sont accessibles à moins de 9 km. On trouve une bibliothèque, des commerces, des boulangeries, un supermarché, deux épiceries et un bureau de poste dans les environs.Elle est proposée à l’achat pour 395 000 €.Prenez contact avec Franck DUJARDIN ((Numéro supprimé)) pour obtenir de plus amples informations sur le bien ou sur les démarches à suivre. Maisons Tradilignes Saint-Sébastien-sur-Loire vous accompagne à toutes les étapes de votre projet et dans tous vos projets immobiliers.
Rezé
TERRAIN ET MAISONVENTE : maison T3 (113 m²) à RezéEMPLACEMENT PRIVILÉGIÉ – MAISON 3 PIÈCES NEUVEEn vente à 21 km de la côte atlantique, notre agence Maisons Tradilignes Saint-Sébastien-sur-Loire est ravie de vous présenter cette maison de 3 pièces de plain-pied de 113 m² et de 470 m² de terrain, bénéficiant d’un emplacement d’exception dans Rezé (44400).Elle offre trois chambres, une cuisine et une salle de bains. La maison est neuve.Cette maison se situe dans un quartier convoité. Plusieurs écoles (maternelle, élémentaire et collège) sont implantées à moins de 10 minutes à pied, tout comme trois structures d’accueil pour les tout-petits. Niveau transports en commun, on trouve neuf gares à moins de 10 minutes en voiture. L’autoroute A83 et les nationales N844, N249 et N444 sont accessibles à moins de 9 km. Il y a une bibliothèque, des commerces, des boulangeries, un supermarché, un bureau de poste et deux épiceries à proximité.Son prix de vente est de 354 000 €.Contactez notre agence (DUJARDIN Franck : (Numéro supprimé)) pour toute question sur la maison ou sur les modalités de vente. Maisons Tradilignes Saint-Sébastien-sur-Loire vous accompagne dans tous vos projets immobiliers et à toutes les étapes de l’achat.
L’actualité immobilière à Vertou
27/11/2023
02/11/2023
30/10/2023
20/10/2023
16/10/2023
16/10/2023