Maison à construire à Villeneuve-en-Retz (44580)
Images
Description
VENTE : maison de 2 pièces (50 m²) à Villeneuve-en-Retz
MAISON 2 PIÈCES NEUVE - PROCHE DE SAINT-HERBLAIN
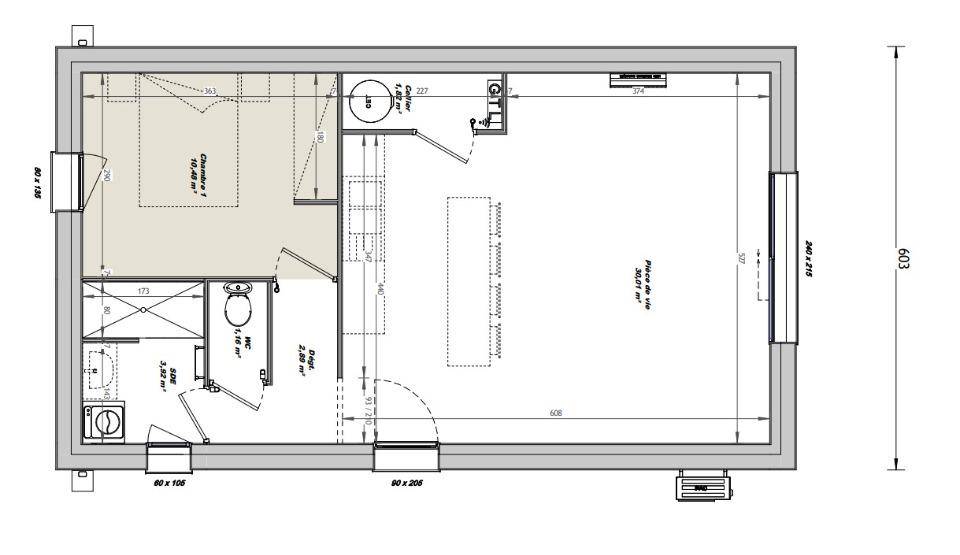
En vente : située à 9 km de l'océan Atlantique et à quelques kilomètres de Saint-Herblain, votre agence Maisons Tradilignes Pornic est heureuse de vous présenter cette maison de 2 pièces de plain-pied de 50 m² à Villeneuve-en-Retz (44580).
Conçue de plain-pied, elle inclut une chambre, une cuisine et une salle de bains. La maison est neuve.
Le terrain de la propriété s'étend sur 369 m².
Il y a l'École Primaire Privée Sainte Julitte à moins de 10 minutes . Niveau transports en commun, on trouve quatre gares à moins de 10 minutes en voiture.
Elle est proposée à l'achat pour 181 000 €.
N'hésitez pas à prendre contact avec notre agence (Vincent COUCHAUX : (Numéro supprimé)) pour obtenir de plus amples renseignements sur cette maison, sur les démarches à suivre ou sur les modalités de vente.
Logement susceptibles de vous intéresser
Nous vous proposons de découvrir aussi cette sélection de logements situés à moins de 10km de Villeneuve-en-Retz et qui seraient susceptibles de vous intéresser.
Machecoul-Saint-Même
TERRAIN ET MAISONA MACHECOUL sur un terrain de 218 m², Alliance Construction vous propose de réaliser votre projet de construction de maison individuelle d'une surface de 98 m² habitables avec 4 chambres, à partir de 244274 €Découvrez cette maison neuve de 98 m², prête à emménager, située sur un terrain plat à proximité du centre-ville et de toutes les commodités. Son emplacement privilégié permet un accès rapide aux commerces, écoles et transports, offrant un cadre de vie pratique et agréable.Elle se compose de :4 chambres spacieusesUne pièce de vie généreuse, lumineuse et convivialeUne salle de bain moderne et 2 WCUne petite dépendance, idéale pour un espace de rangement, un bureau ou un atelierCette maison allie confort, fonctionnalité et accessibilité. Une opportunité à saisir.Contactez-nous pour plus d’informations* Cette offre comprend :- Garanties constructeurs (dommages ouvrage, garantie de prix ferme et définitif, garantie de livraison, responsabilité civile et décennale).- Branchements aux compteurs et accès empierré sur 5m linéaires.Habitez une maison spécialement pensée et conçue pour vous et votre famille, prête à décorer, adaptée à vos modes de vie, personnalisée selon vos goûts grâce à un large choix d'options, de matériaux et d'innovations !Contactez Laurent LASSIMONNE au (Numéro supprimé) (Alliance Construction – Agence de Vallet).*Prix indicatif pour un projet de construction d'une maison individuelle. Ne sont pas inclus les frais de branchements, raccordements aux réseaux publics, frais d'adaptations, aménagements intérieurs et extérieurs et options. terrain viabilisé, frais de notaire non compris, frais divers non compris. Garanties et assurances obligatoires incluses. Terrain sélectionné par ALLIANCE auprès de nos partenaires fonciers, selon disponibilité, pour la construction d'une maison neuve. Non mandaté pour réaliser la vente (loi du 2 janvier 1970 n°70-9). Visuels non contractuels. Voir détails en agence.Cette annonce a été créée et diffusée avec le logiciel VITAHOME.
Machecoul-Saint-Même
TERRAINPrix : 49700 €.Sur ce terrain de 218 m² à MACHECOUL, Alliance Construction vous propose de réaliser votre projet de construction de maison individuelle.Avec Alliance Construction, habitez une maison spécialement pensée et conçue pour vous et votre famille, prête à décorer, adaptée à vos modes de vie, personnalisée selon vos goûts grâce à un large choix d'options, de matériaux et d'innovations ! Demandez une étude gratuite et personnalisée de votre projet de construction sur ce terrain à MACHECOUL !Contactez Laurent LASSIMONNE au (Numéro supprimé) (Alliance Construction – Agence de Vallet).Prix hors frais de notaire. Terrain sélectionné par ALLIANCE auprès de nos partenaires fonciers, selon disponibilité, pour la construction d'une maison neuve. Non mandaté pour réaliser la vente (loi du 2 janvier 1970 n°70-9). Visuels non contractuels. Voir détails en agence.Cette annonce a été créée et diffusée avec le logiciel VITAHOME.
Sainte-Pazanne
TERRAINCe terrain viabilisé de 399 m² est idéalement situé à Sainte-Pazanne, à proximité immédiate de la gare. Il vous offre la possibilité de réaliser votre projet de maison individuelle dans un environnement calme et verdoyant tout en bénéficiant de la proximité des transports en commun.Pour une visite, contactez-nousPrix : 115000 €.Sur ce terrain de 399 m² à SAINTE-PAZANNE, Alliance Construction vous propose de réaliser votre projet de construction de maison individuelle.Avec Alliance Construction, habitez une maison spécialement pensée et conçue pour vous et votre famille, prête à décorer, adaptée à vos modes de vie, personnalisée selon vos goûts grâce à un large choix d'options, de matériaux et d'innovations ! Demandez une étude gratuite et personnalisée de votre projet de construction sur ce terrain à SAINTE-PAZANNE !Contactez Thierry MONLEZUN au (Numéro supprimé) (Alliance Construction – Agence de Nantes Aubinière).Prix hors frais de notaire. Terrain sélectionné par ALLIANCE auprès de nos partenaires fonciers, selon disponibilité, pour la construction d'une maison neuve. Non mandaté pour réaliser la vente (loi du 2 janvier 1970 n°70-9). Visuels non contractuels. Voir détails en agence.Cette annonce a été créée et diffusée avec le logiciel VITAHOME.
Sainte-Pazanne
TERRAINCe terrain à bâtir est situé dans un petit lotissement de seulement 10 lots, garantissant ainsi un environnement calme et convivial.Entièrement viabilisé, il vous offre la possibilité de construire la maison de vos rêves sans vous soucier des raccordements. De plus, sa situation géographique est idéale : la gare TER est accessible en seulement 3 minutes, vous permettant de rejoindre facilement Nantes et ses alentours.Prix : 115000 €.Sur ce terrain de 361 m² à SAINTE-PAZANNE, Alliance Construction vous propose de réaliser votre projet de construction de maison individuelle.Avec Alliance Construction, habitez une maison spécialement pensée et conçue pour vous et votre famille, prête à décorer, adaptée à vos modes de vie, personnalisée selon vos goûts grâce à un large choix d'options, de matériaux et d'innovations ! Demandez une étude gratuite et personnalisée de votre projet de construction sur ce terrain à SAINTE-PAZANNE !Contactez Thierry MONLEZUN au (Numéro supprimé) (Alliance Construction – Agence de Nantes Aubinière).Prix hors frais de notaire. Terrain sélectionné par ALLIANCE auprès de nos partenaires fonciers, selon disponibilité, pour la construction d'une maison neuve. Non mandaté pour réaliser la vente (loi du 2 janvier 1970 n°70-9). Visuels non contractuels. Voir détails en agence.Cette annonce a été créée et diffusée avec le logiciel VITAHOME.
Sainte-Pazanne
TERRAINEnvie d'une construction sur-mesure ? Ce terrain de 448 m², exposé ouest est fait pour vous. Situé dans un quartier paisible et recherché, il bénéficie de tous les avantages de la vie en bourg : commerces, écoles, transports en commun… à quelques pas de chez vous. Viabilisé, il ne vous reste plus qu'à imaginer votre futur chez-vous.Prix : 124500 €.Sur ce terrain de 448 m² à SAINTE-PAZANNE, Alliance Construction vous propose de réaliser votre projet de construction de maison individuelle.Avec Alliance Construction, habitez une maison spécialement pensée et conçue pour vous et votre famille, prête à décorer, adaptée à vos modes de vie, personnalisée selon vos goûts grâce à un large choix d'options, de matériaux et d'innovations ! Demandez une étude gratuite et personnalisée de votre projet de construction sur ce terrain à SAINTE-PAZANNE !Contactez Thierry MONLEZUN au (Numéro supprimé) (Alliance Construction – Agence de Nantes Aubinière).Prix hors frais de notaire. Terrain sélectionné par ALLIANCE auprès de nos partenaires fonciers, selon disponibilité, pour la construction d'une maison neuve. Non mandaté pour réaliser la vente (loi du 2 janvier 1970 n°70-9). Visuels non contractuels. Voir détails en agence.Cette annonce a été créée et diffusée avec le logiciel VITAHOME.
Villeneuve-en-Retz
TERRAIN ET MAISONA BOURGNEUF-EN-RETZ sur un terrain de 350 m², Alliance Construction vous propose de réaliser votre projet de construction de maison individuelle d'une surface de 93.75 m² habitables avec 4 chambres, à partir de 268705€*Informations du terrain : Envie de construire votre maison dans un environnement privilégié ? Ce terrain hors lotissement, à Bourgneuf-en-Retz, vous offre une localisation exceptionnelle. À seulement 6 km des plages et à proximité de toutes les commodités, il est le lieu idéal pour s'installer et profiter de la douceur de vivre.Demandez une étude gratuite et personnalisée de votre projet de construction !* Cette offre comprend :- Garanties constructeurs (dommages ouvrage, garantie de prix ferme et définitif, garantie de livraison, responsabilité civile et décennale).- Branchements aux compteurs et accès empierré sur 5m linéaires.Habitez une maison spécialement pensée et conçue pour vous et votre famille, prête à décorer, adaptée à vos modes de vie, personnalisée selon vos goûts grâce à un large choix d'options, de matériaux et d'innovations !Contactez Thierry MONLEZUN au (Numéro supprimé) (Alliance Construction – Agence de Nantes Aubinière).*Prix indicatif pour un projet de construction d'une maison individuelle. Ne sont pas inclus les frais de branchements, raccordements aux réseaux publics, frais d'adaptations, aménagements intérieurs et extérieurs et options. terrain non viabilisé, frais de notaire non compris, frais divers non compris. Garanties et assurances obligatoires incluses. Terrain sélectionné par ALLIANCE auprès de nos partenaires fonciers, selon disponibilité, pour la construction d'une maison neuve. Non mandaté pour réaliser la vente (loi du 2 janvier 1970 n°70-9). Visuels non contractuels. Voir détails en agence.Cette annonce a été créée et diffusée avec le logiciel VITAHOME.
Villeneuve-en-Retz
TERRAIN ET MAISONA FRESNAY-EN-RETZ sur un terrain de 442 m², Alliance Construction vous propose de réaliser votre projet de construction de maison individuelle d'une surface de 95.07 m² habitables avec 3 chambres, à partir de 249500€*Informations du terrain : Terrain à bâtir entièrement viabilisé. Cette parcelle est, à seulement 10 minutes des premières plages et à 20 minutes de Pornic.Deux gares TER, permettant un accès facile aux transports en commun.Proche des commodités et des plages.Demandez une étude gratuite et personnalisée de votre projet de construction !* Cette offre comprend :- Garanties constructeurs (dommages ouvrage, garantie de prix ferme et définitif, garantie de livraison, responsabilité civile et décennale).- Branchements aux compteurs et accès empierré sur 5m linéaires.Habitez une maison spécialement pensée et conçue pour vous et votre famille, prête à décorer, adaptée à vos modes de vie, personnalisée selon vos goûts grâce à un large choix d'options, de matériaux et d'innovations !Contactez Thierry MONLEZUN au (Numéro supprimé) (Alliance Construction – Agence de Nantes Aubinière).*Prix indicatif pour un projet de construction d'une maison individuelle. Ne sont pas inclus les frais de branchements, raccordements aux réseaux publics, frais d'adaptations, aménagements intérieurs et extérieurs et options. terrain viabilisé, frais de notaire non compris, frais divers non compris. Garanties et assurances obligatoires incluses. Terrain sélectionné par ALLIANCE auprès de nos partenaires fonciers, selon disponibilité, pour la construction d'une maison neuve. Non mandaté pour réaliser la vente (loi du 2 janvier 1970 n°70-9). Visuels non contractuels. Voir détails en agence.Cette annonce a été créée et diffusée avec le logiciel VITAHOME.
Machecoul-Saint-Même
TERRAIN ET MAISONA MACHECOUL sur un terrain de 223 m², Alliance Construction vous propose de réaliser votre projet de construction de maison individuelle d'une surface de 95.07 m² habitables avec 3 chambres, à partir de 218100€*Informations du terrain : Ne manquez pas cette opportunité d'acquérir un terrain à bâtir entièrement viabilisé, idéal pour un premier achat ou un investissement judicieux. Situé à proximité immédiate du bourg et de toutes ses commodités, ce terrain offre un accès abordable à la propriété.Pour plus d'informations et pour discuter de votre projet, veuillez nous contacterDemandez une étude gratuite et personnalisée de votre projet de construction !* Cette offre comprend :- Garanties constructeurs (dommages ouvrage, garantie de prix ferme et définitif, garantie de livraison, responsabilité civile et décennale).- Branchements aux compteurs et accès empierré sur 5m linéaires.Habitez une maison spécialement pensée et conçue pour vous et votre famille, prête à décorer, adaptée à vos modes de vie, personnalisée selon vos goûts grâce à un large choix d'options, de matériaux et d'innovations !Contactez Thierry MONLEZUN au (Numéro supprimé) (Alliance Construction – Agence de Nantes Aubinière).*Prix indicatif pour un projet de construction d'une maison individuelle. Ne sont pas inclus les frais de branchements, raccordements aux réseaux publics, frais d'adaptations, aménagements intérieurs et extérieurs et options. terrain viabilisé, frais de notaire non compris, frais divers non compris. Garanties et assurances obligatoires incluses. Terrain sélectionné par ALLIANCE auprès de nos partenaires fonciers, selon disponibilité, pour la construction d'une maison neuve. Non mandaté pour réaliser la vente (loi du 2 janvier 1970 n°70-9). Visuels non contractuels. Voir détails en agence.Cette annonce a été créée et diffusée avec le logiciel VITAHOME.
Sainte-Pazanne
TERRAIN ET MAISONA SAINTE-PAZANNE sur un terrain de 374 m², Alliance Construction vous propose de réaliser votre projet de construction de maison individuelle d'une surface de 92.96 m² habitables avec 3 chambres, à partir de 279600€*Informations du terrain : Votre projet de construction prend forme !Découvrez ce terrain viabilisé de 374 m² idéalement situé au cœur de Sainte-Pazanne. Exposition sud, quartier calme et résidentiel. Toutes les commodités à pied : commerces, écoles, transports…Demandez une étude gratuite et personnalisée de votre projet de construction !* Cette offre comprend :- Garanties constructeurs (dommages ouvrage, garantie de prix ferme et définitif, garantie de livraison, responsabilité civile et décennale).- Branchements aux compteurs et accès empierré sur 5m linéaires.Habitez une maison spécialement pensée et conçue pour vous et votre famille, prête à décorer, adaptée à vos modes de vie, personnalisée selon vos goûts grâce à un large choix d'options, de matériaux et d'innovations !Contactez Thierry MONLEZUN au (Numéro supprimé) (Alliance Construction – Agence de Nantes Aubinière).*Prix indicatif pour un projet de construction d'une maison individuelle. Ne sont pas inclus les frais de branchements, raccordements aux réseaux publics, frais d'adaptations, aménagements intérieurs et extérieurs et options. terrain viabilisé, frais de notaire non compris, frais divers non compris. Garanties et assurances obligatoires incluses. Terrain sélectionné par ALLIANCE auprès de nos partenaires fonciers, selon disponibilité, pour la construction d'une maison neuve. Non mandaté pour réaliser la vente (loi du 2 janvier 1970 n°70-9). Visuels non contractuels. Voir détails en agence.Cette annonce a été créée et diffusée avec le logiciel VITAHOME.
L’actualité immobilière à Villeneuve-en-Retz
27/11/2023
02/11/2023
30/10/2023
20/10/2023
16/10/2023
16/10/2023