Images
Description
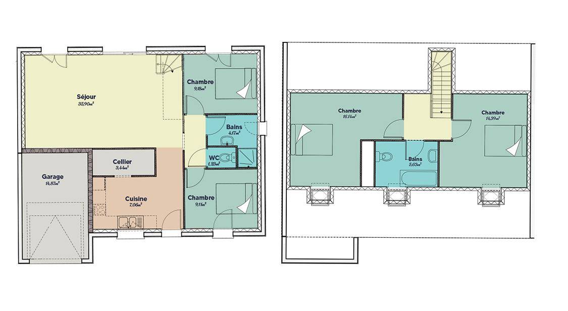
Sur ce terrain, nous vous proposons cette maison neuve : la Focus EVO, un modèle unique de 110 m² conçu par Babeau-Seguin, constructeur offrant le meilleur rapport qualité/prix du marché. Cette maison basse consommation est conforme à la norme RE2020, garantissant des performances énergétiques exceptionnelles.
La Focus EVO se distingue par son concept évolutif, alliant une maison neuve prête à vivre et une maison prête à finir. Livrée avec 73 m² habitables, elle est conçue pour évoluer avec vos besoins futurs. Grâce à ses combles aménageables, vous pouvez facilement augmenter votre surface habitable à 110 m², ajoutant ainsi deux chambres supplémentaires et une salle de bain, pour un total de 4 chambres et 2 salles de bains.
Les caractéristiques principales de cette maison incluent un garage intégré, un cellier, et des combles aménageables. Les options les plus demandées par nos clients, telles que la version Investisseur et les prises USB murales, sont également disponibles.
La Focus EVO est idéale pour tous ceux qui recherchent une maison complète à un prix compétitif. Elle comprend une grande pièce de jour traversante, 4 chambres, une salle de bain, et un garage de 15 m². Que vous soyez un jeune couple, un célibataire ou une famille en pleine expansion, cette maison saura s'adapter à vos besoins et à vos envies.
Ne manquez pas cette occasion unique de devenir propriétaire d'une maison évolutive, économe en énergie et conforme aux dernières normes environnementales. Contactez-nous dès aujourd'hui pour plus d'informations et pour planifier une visite.
Logement susceptibles de vous intéresser
Nous vous proposons de découvrir aussi cette sélection de logements situés à moins de 10km de Chailly-en-Gâtinais et qui seraient susceptibles de vous intéresser.
La Cour-Marigny
TERRAINBeau terrain de 1441 m² situé dans un lotissement récent, calme et résidentiel à seulement 15 mn de Montargis et des commerces. Ecole élémentaire dans village. // Réf. : T210532. Prix terrain : 34 000 €, hors frais d'agence et de notaire à la charge de l'acquéreur. Ce terrain vous est proposé, par nos partenaires fonciers, dans le cadre d'un projet de construction avec nous. Les informations sur les risques auxquels ce bien est exposé sont disponibles sur le site Géorisques (www.georisques.gouv.fr).
La Cour-Marigny
TERRAIN ET MAISONBeau terrain de 1441 m² situé dans un lotissement récent, calme et résidentiel à seulement 15 mn de Montargis et des commerces. Ecole élémentaire dans village. Compacte et fonctionnelle, cette maison de plain-pied vous propose un bel espace de vie lumineux, avec une grande baie vitrée donnant sur le jardin. Sa cuisine est ouverte sur le séjour et dispose d'un accès direct au cellier, et au garage intégré. Son espace nuit est composé de deux chambres avec rangements, d'une salle de bains et de wc séparés. Pour vous assurer un confort de vie et conformément à la RE2025, nous avons choisi un mode de chauffage par PAC + plancher chauffant, volets roulants électriques. Prix hors fourniture et pose : des appareils sanitaires (sauf système de chauffage et d'eau chaude sanitaire), du carrelage et de la faïence, des revêtements de sol dans les chambres. Hors décoration et aménagement intérieur et peinture. Hors raccordements, frais de notaire et dommage ouvrage. // Réf. : 838-210532-SYV. Prix terrain : 34 000 €, hors frais d'agence à la charge de l'acquéreur. Ce terrain vous est proposé, par nos partenaires fonciers, dans le cadre d'un projet de construction avec nous. Les informations sur les risques auxquels ce bien est exposé sont disponibles sur le site Géorisques (www.georisques.gouv.fr). Prix maison : 128 229 €.
La Cour-Marigny
TERRAIN ET MAISONBeau terrain de 1441 m² situé dans un lotissement récent, calme et résidentiel à seulement 15 mn de Montargis et des commerces. Ecole élémentaire dans village. Vous serez séduits par cette maison contemporaine qui se distingue par son porche en façade et ses enduits bi-ton personnalisable. Elle vous accueille dans un très bel espace de vie de plus de 42 m² très lumineux grâce à ses nombreuses ouvertures. La cuisine ouverte est très fonctionnelle puisqu’à la fois ouverte sur le séjour et accolée au cellier. L’espace nuit est composé de trois chambres avec tous les rangements nécessaires ainsi que d’une salle de bain et des wc séparés. Le plus de cette maison est sans nul doute son garage intégré. Pour vous assurer un confort de vie et conformément à la RE2025, nous avons choisi un mode de chauffage par PAC + plancher chauffant, volets roulants électriques. Prix hors fourniture et pose : des appareils sanitaires (sauf système de chauffage et d'eau chaude sanitaire), du carrelage et de la faïence, des revêtements de sol dans les chambres. Hors décoration et aménagement intérieur et peinture. Hors raccordements, frais de notaire et dommage ouvrage. // Réf. : 613-210532-SYV. Prix terrain : 34 000 €, hors frais d'agence à la charge de l'acquéreur. Ce terrain vous est proposé, par nos partenaires fonciers, dans le cadre d'un projet de construction avec nous. Les informations sur les risques auxquels ce bien est exposé sont disponibles sur le site Géorisques (www.georisques.gouv.fr). Prix maison : 131 279 €.
La Cour-Marigny
TERRAIN ET MAISONBeau terrain de 1441 m² situé dans un lotissement récent, calme et résidentiel à seulement 15 mn de Montargis et des commerces. Ecole élémentaire dans village. Une maison spacieuse et fonctionnelle, idéale pour toute la famille ! Avec son design moderne et son agencement optimisé, cette maison offre un cadre de vie agréable et lumineux, parfait pour répondre aux besoins de chacun. Au rez-de-chaussée, vous profitez d’un vaste espace de vie ouvert, alliant salon, salle à manger et cuisine dans une atmosphère chaleureuse et conviviale. Un cellier pratique facilite l’organisation et le rangement du quotidien. La suite parentale avec dressing et salle d’eau privative garantit un confort optimal aux parents, offrant un véritable espace d’intimité. À l’étage, trois belles chambres bien réparties permettent à toute la famille de disposer de son propre cocon. Une grande salle de bain et un WC indépendant complètent cet étage pour plus de praticité. Une maison élégante, confortable et pensée pour s’adapter aux modes de vie modernes !. Pour vous assurer un confort de vie optimal et en conformité avec la RE2025, nous avons opté pour un système de chauffage par pompe à chaleur (PAC) avec plancher chauffant au rez-de-chaussée et radiateurs à l’étage. Le logement est également équipé de volets roulants électriques. Prix hors fourniture et pose : des appareils sanitaires (sauf système de chauffage et d'eau chaude sanitaire), du carrelage et de la faïence, des revêtements de sol dans les chambres. Hors décoration et aménagement intérieur et peinture. Hors raccordements, frais de notaire et dommage ouvrage. // Réf. : 1473-210532-SYV. Prix terrain : 34 000 €, hors frais d'agence à la charge de l'acquéreur. Ce terrain vous est proposé, par nos partenaires fonciers, dans le cadre d'un projet de construction avec nous. Les informations sur les risques auxquels ce bien est exposé sont disponibles sur le site Géorisques (www.georisques.gouv.fr). Prix maison : 172 115 €.
Vieilles-Maisons-sur-Joudry
TERRAIN ET MAISONBeau terrain constructible de 3000m² partiellement boisé avec une façade de 31 ml. Situé dans un secteur calme à 5 mn de la ville de Lorris avec ses commerces , écoles et collège. Une conception en L pour cette maison de plain-pied permettant une distribution harmonieuse des espaces et une excellente circulation entre les pièces. Un séjour spacieux de 30 m² baigné de lumière naturelle, offrant une atmosphère chaleureuse et accueillante pour vos moments de détente et de convivialité, une cuisine ouverte avec cellier attenant. Trois chambres bien agencées offrant des espaces de repos confortables pour chaque membre de la famille, une salle de bains indépendante. Pour vous assurer un confort de vie et conformément à la RE2025, nous avons choisi un mode de chauffage par PAC + plancher chauffant, volets roulants électriques. Prix hors fourniture et pose : des appareils sanitaires (sauf système de chauffage et d'eau chaude sanitaire), du carrelage et de la faïence, des revêtements de sol dans les chambres. Hors décoration et aménagement intérieur et peinture. Hors raccordements, frais de notaire et dommage ouvrage. . // Réf. : 2513-210529-SYV. Prix terrain : 45 000 €, hors frais d'agence à la charge de l'acquéreur. Ce terrain vous est proposé, par nos partenaires fonciers, dans le cadre d'un projet de construction avec nous. Les informations sur les risques auxquels ce bien est exposé sont disponibles sur le site Géorisques (www.georisques.gouv.fr). Prix maison : 123 786 €.
Vieilles-Maisons-sur-Joudry
TERRAIN ET MAISONBeau terrain constructible de 3000m² partiellement boisé avec une façade de 31 ml. Situé dans un secteur calme à 5 mn de la ville de Lorris avec ses commerces , écoles et collège. Une maison spacieuse et lumineuse, idéale pour toute la famille ! Conçue pour offrir confort et praticité, cette maison séduit par son agencement optimisé et ses beaux volumes. Au rez-de-chaussée, une vaste pièce de vie ouverte vous invite à la convivialité, avec un espace salon, une salle à manger et une cuisine moderne parfaitement intégrée. Un cellier discret facilite l’organisation et le rangement. Un WC indépendant et une salle d’eau ajoutent un confort supplémentaire au quotidien. L’étage est dédié au repos avec quatre chambres bien agencées, offrant à chacun un espace personnel confortable. Une salle de bain moderne et un second WC viennent compléter cet étage pour une organisation fluide et pratique. Un design contemporain, des espaces optimisés et une maison pensée pour votre bien-être ! Pour vous assurer un confort de vie optimal et en conformité avec la RE2025, nous avons opté pour un système de chauffage par pompe à chaleur (PAC) avec plancher chauffant au rez-de-chaussée et radiateurs à l’étage. Le logement est également équipé de volets roulants électriques. Prix hors fourniture et pose : des appareils sanitaires (sauf système de chauffage et d'eau chaude sanitaire), du carrelage et de la faïence, des revêtements de sol dans les chambres. Hors décoration et aménagement intérieur et peinture. Hors raccordements, frais de notaire et dommage ouvrage. . // Réf. : 1299-210529-SYV. Prix terrain : 45 000 €, hors frais d'agence à la charge de l'acquéreur. Ce terrain vous est proposé, par nos partenaires fonciers, dans le cadre d'un projet de construction avec nous. Les informations sur les risques auxquels ce bien est exposé sont disponibles sur le site Géorisques (www.georisques.gouv.fr). Prix maison : 148 539 €.
Vieilles-Maisons-sur-Joudry
TERRAIN ET MAISONBeau terrain constructible de 3000m² partiellement boisé avec une façade de 31 ml. Situé dans un secteur calme à 5 mn de la ville de Lorris avec ses commerces , écoles et collège. Transformez votre maison avec Evolia. Avec Evolia, construisez la maison de vos rêves, étape par étape. Profitez d'une modularité unique et faites de votre foyer un espace évolutif et adaptable à chaque moment de votre vie. Notre atout majeur ? Un garage de 41 m² transformable en un espace de vie exceptionnel. Ce vaste garage peut devenir trois chambres supplémentaires et une salle d'eau, vous permettant d'agrandir votre maison sans déménagement et en maximisant chaque mètre carré pour répondre à vos besoins changeants. Prix hors fourniture et pose : des appareils sanitaires (sauf système de chauffage et d'eau chaude sanitaire), du carrelage, de la faïence, de la cuisine aménagée, des revêtements de sol dans les chambres. Hors décoration, aménagement intérieur, peinture, raccordements, frais de notaire et dommage ouvrage. (Surface habitable 49 m²+garage 41 m²). // Réf. : 2600-210529-SYV. Prix terrain : 45 000 €, hors frais d'agence à la charge de l'acquéreur. Ce terrain vous est proposé, par nos partenaires fonciers, dans le cadre d'un projet de construction avec nous. Les informations sur les risques auxquels ce bien est exposé sont disponibles sur le site Géorisques (www.georisques.gouv.fr). Prix maison : 99 423 €.
Lorris
TERRAIN ET MAISONBeau terrain entièrement viabilisé de 643 m² situé dans une impasse au calme. Ecoles et commerces à pieds. Cette maison de plain-pied en L, fonctionnelle et spacieuse vous propose un bel espace de vie lumineux et traversant. Sa cuisine est ouverte sur le séjour et a un accès direct au cellier. Son espace nuit est composé de trois belles chambres dont une suite parentale avec dressing et salle de bain privative, une deuxième salle de bains équipé ainsi que des wc séparés. Pour vous assurer un confort de vie et conformément à la RE2025, nous avons choisi un mode de chauffage par PAC + plancher chauffant, volets roulants électriques. Prix hors fourniture et pose : des appareils sanitaires (sauf système de chauffage et d'eau chaude sanitaire), du carrelage et de la faïence, des revêtements de sol dans les chambres. Hors décoration et aménagement intérieur et peinture. Hors raccordements, frais de notaire et dommage ouvrage. // Réf. : 802-210524-SYV. Prix terrain : 39 866 €, hors frais d'agence à la charge de l'acquéreur. Ce terrain vous est proposé, par nos partenaires fonciers, dans le cadre d'un projet de construction avec nous. Les informations sur les risques auxquels ce bien est exposé sont disponibles sur le site Géorisques (www.georisques.gouv.fr). Prix maison : 143 112 €.
Lorris
TERRAIN ET MAISONBeau terrain entièrement viabilisé de 643 m² situé dans une impasse au calme. Ecoles et commerces à pieds. Devenez Propriétaire de votre Maison Evolutive avec EVOLIA . Bienvenue dans l'ère de la maison évolutive avec EVOLIÂ. Spécialement conçue pour s'adapter à chaque étape de votre vie, la maison EVOLIÂ vous offre une flexibilité inégalée et une transformation facile pour répondre à vos besoins changeants. Que vous soyez une jeune famille, un couple ou une personne seule, EVOLIÂ évolue avec vous. Agrandissez, réduisez ou modifiez vos espaces de vie au gré de vos besoins et de vos envies. Ne laissez plus vos besoins en logement vous limiter. Avec EVOLIÂ, votre maison s’adapte à vous, et non l’inverse. Contactez nos experts conseillers en construction dès aujourd’hui pour découvrir comment EVOLIÂ peut devenir la maison de vos rêves. Prix hors fourniture et pose : des appareils sanitaires (sauf système de chauffage et d'eau chaude sanitaire), du carrelage, de la faïence, de la cuisine aménagée, des revêtements de sol dans les chambres. Hors décoration et aménagement intérieur et peinture. Hors raccordements, frais de notaire et dommage ouvrage. // Réf. : 2457-210524-SYV. Prix terrain : 39 866 €, hors frais d'agence à la charge de l'acquéreur. Ce terrain vous est proposé, par nos partenaires fonciers, dans le cadre d'un projet de construction avec nous. Les informations sur les risques auxquels ce bien est exposé sont disponibles sur le site Géorisques (www.georisques.gouv.fr). Prix maison : 75 437 €.
L’actualité immobilière à Chailly-en-Gâtinais
27/11/2023
02/11/2023
30/10/2023
20/10/2023
16/10/2023
16/10/2023